

来自 HAD上海湾流建筑设计咨询有限公司 对gooood的分享
每一年毕业季后, “设计之都”深圳都会迎来数以万计的热情青年来这座城市里寻找发光发热的机会。湾流国际共享社区华天社区应运而生,项目前身是一个落寞的老旧商场,业主希望通过设计改造,将这栋老楼打造为一个年轻化的青年公寓,为初入社会的青年们提供一个活力社区。
▼项目概览

▼项目原始状况

项目公区是一个长进深的空间,HAD设计师通过多边形的隔断巧妙地把一个近40米的长空间分割成各个功能区块,并且通过各种错位窗洞的设计,使人在空间的体验上不会有过分狭长的感受。
▼项目公共区域总平图 – 趣味空间

项目外立面利用大幅墙绘,用夸张的色彩与几何图案来强调社区的设计主旨,让这栋老楼给人耳目一新的感觉。
▼湾流国际共享社区华天社区外立面

明朗亮眼的艺术气质,新奇出众的搭配图案,绚丽夸张的色彩组合,强烈碰撞的色彩对比,HAD设计师将波普艺术的典型元素充分融入了空间之中,踏入社区仿佛误入了一个艺术展览馆,第一时间带给你满满的活力感。
▼湾流国际共享社区华天社区入户接待处


▼艺术装置细节图

穿梭于回廊之间,你不必担心廊道的狭长会让你孤寂,HAD设计师利用了半开放式的手法将本来幽暗狭长的廊道与大空间相结合,提升了廊道的趣味,使本来的廊道更加透气,配合局部的灯带点缀,仿佛置身于光的怀抱。
▼光之回廊


穿过廊道,整个空间延续着整体简洁轻快的氛围,运用色彩鲜明的家具、饱和撞色的艺术挂画治愈了白色空间的“视觉疲劳”,给入住者们营造了轻松随意的互动氛围。
▼开放共享空间

身处路演区内,白色干练的阶梯教室让你在闲暇之余约上三五好友来一场紧张刺激的头脑风暴;也可以在边上的水吧台处小酌几杯,聊聊工作,聊聊生活,细品时光。
▼路演区

书吧区属于一个半开放空间,设计师摒弃了传统书架形式,采用展示层架的形式,配置诸多展示画册,打开了空间,解放思想。惬意的午后,慵懒的坐在沙发上,享用着色彩风暴中的一处安静,来一场书与人的灵魂对话。
▼书吧区

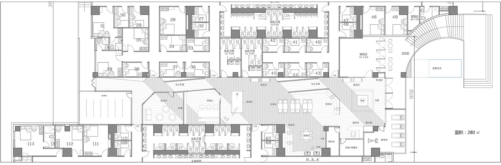
▼平面图

项目名称:湾流国际共享社区华天社区
设计方:HAD上海湾流建筑设计咨询有限公司
联系邮箱: [email protected]
项目设计 & 完成年份:2018.8
主创及设计团队:刘欣旎,王健,杜斌彦,黄思俊,孙青
项目地址:深圳市罗湖区泥岗东路1120号
建筑面积:2700m²(公共区域280m²)
摄影版权:深圳雯华设计顾问有限公司
合作方:深圳雯华设计顾问有限公司
客户:湾流国际共享社区
版权©www.gooood.cn,欢迎转发,禁止以gooood编辑版本进行任何形式转载

▼ 网站最新24小时精彩项目集锦
www.gooood.cn

全文完