项目地处郑州十大组团之一的高新新城板块,将商业、办公、居住等多种不同功能空间进行有机组合,带来餐饮、购物、教育、影院等室内外公共活动体验,力求打导致为地标性开放式社区综合体,为新区注入活力。
▼沿科学大道由东向西看郑州万科城

基地距郑州市中心约12KM,北接火炬街,西临红叶路,南临科学大道,东接西四环,南侧接驳规划地铁站点,北侧紧邻市政公共停车场,对外交通便捷。
▼从绿地看向项目


我们尝试通过项目用地东西向的流线贯通,以更加主动的姿态刺激街区人流联动,在与东侧绿地自然环境的交互中实现本案“开放街区”的初衷。
▼分析图,流线贯通,实现开放街区

街巷构成人们最基本的生活场景。我们希望在“理想城市”内部实现“局部开放”,更加完整地定义整个社区而非某段街道或某个建筑。让商业街及广场不再是内街、内广场,而真正成为城市步行街区的延伸,或城市广场的一部分;街道与广场联系更为紧密,让传统的商业空间具备更多的可能性。
▼项目内部街巷



为提升可售公寓品质,与城市共融,公寓东侧与市政公园相呼应,形成公寓+商业+公园的复合模式。
▼业态分析图

重视内部与外部街区之间人流的沟通关系、平面或立体人流的自然顺畅与分配关系,最大限度避免街区出现盲区和死角,让街区的商业动线贯通。
▼无死角的街巷空间贯通商业流线




建筑立面通过尺度研究,生成适度的体块切割,化解板式高层建筑群对城市的压迫感。同时,提升项目的昭示性。
▼立面生成分析图




立面富有变化与韵律。在建筑顶部通过手法的变化划分界面,在错落的体量中,跳跃出几个肌理不同的盒子。在每层横向挑板的策划下,将窗、空调位、实墙尽可能统一色彩和元素,在变化中又归于整体。
▼富有变化的裙楼立面




塔楼立面以普通窗系统为主,暖灰色涂料、仿木色竖向铝百叶与灰色涂料、灰色穿孔铝板两种肌理穿插交错,并在重点位置辅以带灰色横向百叶的玻璃幕墙。同时,在部分体块顶部通过色彩和线条的差异化设计,形成空间节奏感。
▼塔楼立面

在未来,“城市”相对于“住区”是一个更为多元和复合的空间载体,人们不再满足于单一的功能需求,我们试图创造更多元的城市公共空间。这一“开放街区”的设计,希望成为“无边界”城市设计的一次探索。
▼总平面图

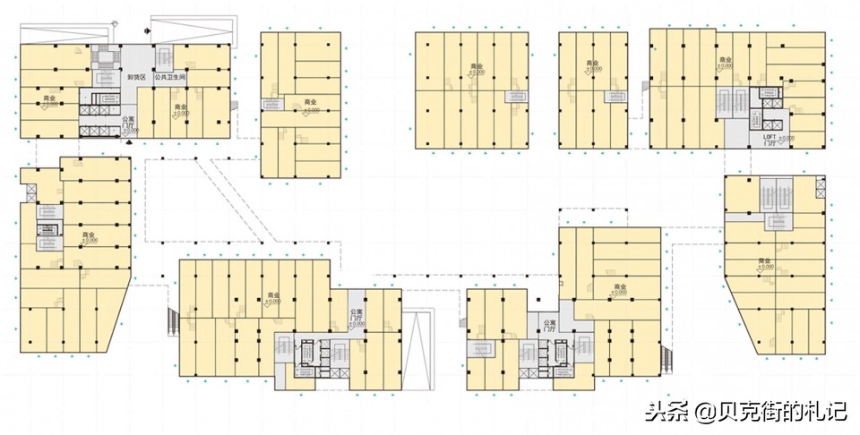
▼一层平面图

▼二层平面图

项目名称:郑州万科城
设计:朴隅建筑设计有限公司
联系邮箱:[email protected]
项目设计&完成年份:2017年/2018年
主创及设计团队:向鹏,余帆,陈静,何天易,张艺凡,吕桂君,李艳丽
项目地址:河南省郑州市高新新城
建筑面积:17.5万平方米
摄影版权:M LEE Studio
客户:郑州万科美景房地产开发有限责任公司