项目名称:FRIDAY HOMETOWN设计年份:2016年完成年份:2017年项目地点:泰国南塔武里景观面积:4800平方米设计公司:Na Laan Studio主创设计师:Gullyawat Lertpeerakorn, Theerapong Sanguansripisut图片:Kasempan Keawthumrong
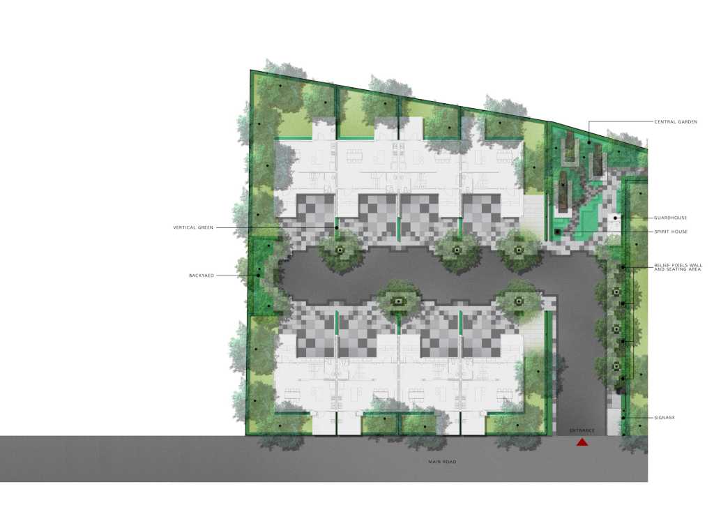
Na Laan Studio:Friday Hometown的设计理念是绿色的像素,通过绿色生态的方式连接景观与建筑,地面图案,人行道,绿色空间,栅栏,和外墙通过统一的像素元素构成了整个项目——从入口到中心花园,贯串所有的8栋建筑,一直延伸到后院。


该项目的主要宗旨是:创造特点景观绿化——中央庭院及每个房子的前院都种植了许多树木;优化绿地——电力、供水和电视电缆等服务设备都隐藏在地下;扩展空间——通过像素镜面;整合的绿色植物——沿着篱笆种植攀缘植物,树木种植在阳台上,将房子连接起来。

平面图 Master Plan
将该住宅的开发与附近的其他房屋区分开来,是建筑师对Friday hometown的一个愿景。在布局中添加了“像素树”这个想法后,每栋房子都可以拥有令人印象深刻的绿色景观,再将“地板像素”模块式地放置在人行道上,通过它将所有区域连接在一起。


入口区域——入口车道上绿树成荫,在边界墙上创建一个“像素浮雕”。墙壁上的“像素镜面”,可以从不同角度反射绿色植物。



公共区域——像素图案从入口一直延续到公共区域花园。将3个不同的平台作为休息区,将图案转化为三维空间。为了创造荫凉,还种植了Bucida molineti,同样,也配合种植了其他灌木来模拟自然条件。



房屋——在地面和阳台上精心种植“像素树木”,呈现出每栋房屋内部的绿色景观。这些像素元素也同样延续到了后院。






▼细节 Details


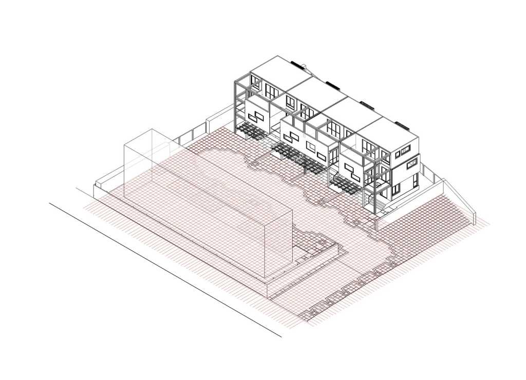
▼场地结构分解图 Diagram




▼场地结构总图 Diagram All

-end-