【小区名称】高速花园
【建筑面积】95平
【装修风格】新中式风格
【装饰公司】济南生活家整体家装
【服务理念】让每一个中国人都享用健康家居
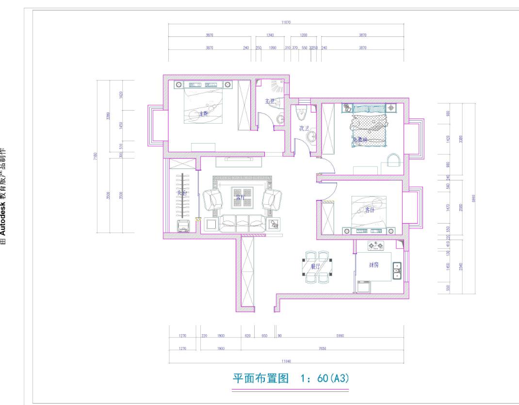
97平的户型,面向年轻人消费群体,设计为现代简约风格。
设计理念:本案例为简约风格,简化了传统家具繁复的设计,融入现代化元素,使得家具线条更加圆润流畅,他既注重了局部的美感也照顾到了空间的实用性。

设计理念以人为本,赏心悦目与合理实用并重。通过对平面布置的不断研究,保证本方案每处空间既能尽其所用又合理美观

客厅的不同材质碰撞出客厅独有的风格。


多色彩、多材质的空间打造增加了空间的层次感和结构感。


从一进家门到客厅,或从客厅到其它卧房空间,若是能掌握出入动线的简化,让客厅看起来更清亮、宽敞,也可以提升整个房子的使用机能。

餐厅的采光很好,角落里摆放的绿植很茂盛,桌面上的鲜花也很艳丽,将餐厅装点得十分富有情调