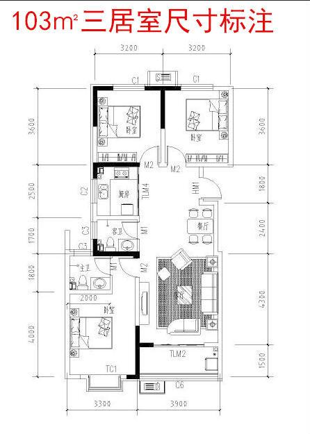
鄄城上上城四期的103㎡三室二厅二卫自推出户型后,备受大家欢迎。其特点是南北通透全明空间、总价低的优势让很多买房者都有购买的优势。但是也有很多买房者说了103㎡是不是有点小,空间有点拥挤哪?就这个问题,上上城户型设计工程师专门把户型的每个房间都标注尺寸,让户型更加透明的展示大家。

在整个户型中,大家都怕室内面积太小了,如果给你112㎡的三室你感觉挺好,今天我给大家找个可以对比的户型,让你相信自己的眼睛。


在以上图片对比中,2个次卧比较可以看出来,103㎡的2个次卧比112㎡2个次卧还要大。这个可以看出来不是面积小都小的。

客餐一体背身就显得空间大,你算算26米的客餐一体,把你的活动区域扩展的更大。客厅朝阳,阳光洒在客厅里,让整个家跟有温暖。

在主卧中,103㎡稍微小点,整体空间并不比112㎡的小太多,这个尺寸在很多鄄城的110左右的主卧还是差不多的。卧室和客厅是买房者最挑剔的,在和112平米比较中,103平米占优势的还是多。


103平米空间没有走廊,整个空间利用率高。
112平米在三个卧室以及卫生间处设有走廊,
此处空间占10多㎡,
如果利用103设计理念,把空间利用提升,
把占走廊的面积放在卧室里面,户型就完美了。
在以上和112比较中,大家这样就能看出我们上上城103平米户型空间还是挺大的,可以比肩112平米的卧室以及客厅餐厅了。
我们上上城的口号是:让业主们得到最大服务。让业主们少花钱,住上好房子。