石家庄中基碧域2号楼 (石家庄中基碧域尚城40年)

简约欧式风格大气、更贴近于自然,也符合国人审美,因此近年在国内发展较快,但仍未普及。从字面意思分析,简欧也就是简化了的欧式装修风格,但原先欧式风格的高雅仍然被保留了下来。近年来,随着简约室内设计风格的升级和传统欧式风格的净化,不少人开始推崇和追逐简欧的家居风格。这种风格从整体到局部、从空间到室内陈设塑造,精雕细琢,给人一丝不苟的印象。

今天小编给大家带来一套为石家庄中基碧域业主做的135平户型简欧风格案例,希望大家喜欢!

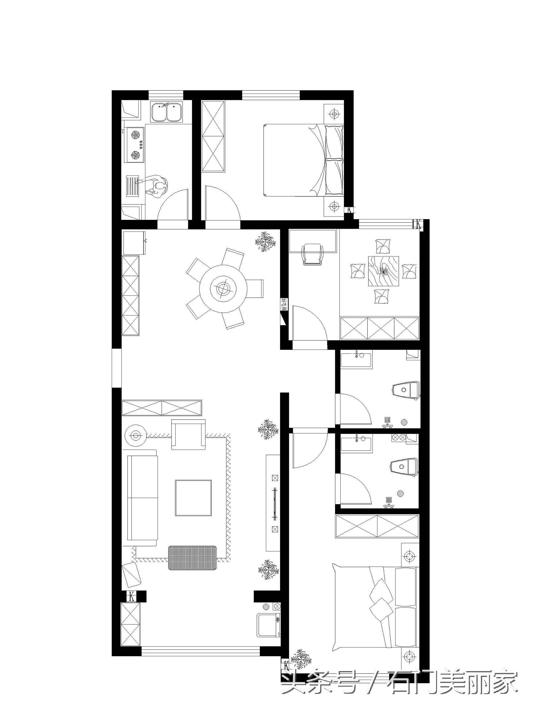
石家庄中基碧域135平米三室两厅两卫一厨简欧风格浪漫雅居国际惯例平面图奉上:中基碧域135平户型案例平面布置图

设计理念:在百味生活中品尝浪漫之甜。

石家庄中基碧域135平米三室两厅两卫一厨简欧风格浪漫雅居电视背景墙设计效果-中基碧域135平户型-三室两厅两卫一厨简欧风格效果

设计理念:客厅的“龙头”之威,采用深蓝色大花壁纸与沙发的相呼应,彰显了客户的独特品味。微黄菱形的壁纸更是浪漫中的彩色之笔,浪漫而又不失别雅。

材料:地砖,木门,石膏板吊顶。

石家庄中基碧域135平米三室两厅两卫一厨简欧风格浪漫雅居沙发背景墙设计效果-中基碧域135平户型-三室两厅两卫一厨简欧风格效果

设计理念:客厅作为整个家庭的视觉中心点,会客休闲之际,沙发背景墙的设计,采用欧式大花纹壁纸,展现了别雅的情趣。吊顶上的筒灯,暖而亮的灯光,为客厅增添了

材料一抹亮光。材料:石膏板造型,壁纸,挂画。

石家庄中基碧域135平米三室两厅两卫一厨简欧风格浪漫雅居客厅设计效果-中基碧域135平户型-三室两厅两卫一厨简欧风格效果

设计理念:简约欧式风格沿袭古典欧式风格的主元素,融入了现代的生活元素。欧式的居室有的不只是豪华大气,更多的是惬意和浪漫。通过完美的典线,精益求精的细节处理,带给家人不尽的舒服触感,实际上和谐是欧式风格的最高境界。

石家庄中基碧域135平米三室两厅两卫一厨简欧风格浪漫雅居玄关设计效果-中基碧域135平户型-三室两厅两卫一厨简欧风格效果

设计理念:客厅在走廊的部分,做了较有特点的菱形勾缝吊顶,搭配客餐厅吊顶的圆弧,别有一番韵味。走廊吊顶两侧的菱形壁纸,与吊顶的造型相之呼应,整体感美观而又不失文雅。

材料:福乐阁墙漆,挂画,布艺沙发,石膏板造型。

今日案例展示完毕,喜欢小编的作品就多多支持哦,有不足的地方多多交流,欢迎大家积极评论^--^ 小主们有想看自己小区户型的效果案例也可以多多留言或者加小编微信15354414230(长按可复制),添加微信可提供免费量房、验房、出平面方案希望能给小主们带来帮助!