铁杆球迷可能知道足球明星梅西曾经开过一家餐厅。不过,如果是在不知情的状况下去到餐厅,应该只会觉得这是家让人感到轻松和舒适的餐馆,传达着欢乐情调。
Bellavista北部花园餐厅·巴塞罗那
▼


从入门处就能窥见,上千朵花组成的花海,带来一场让人眼花缭乱的花卉盛宴,十分切合餐厅的主题。


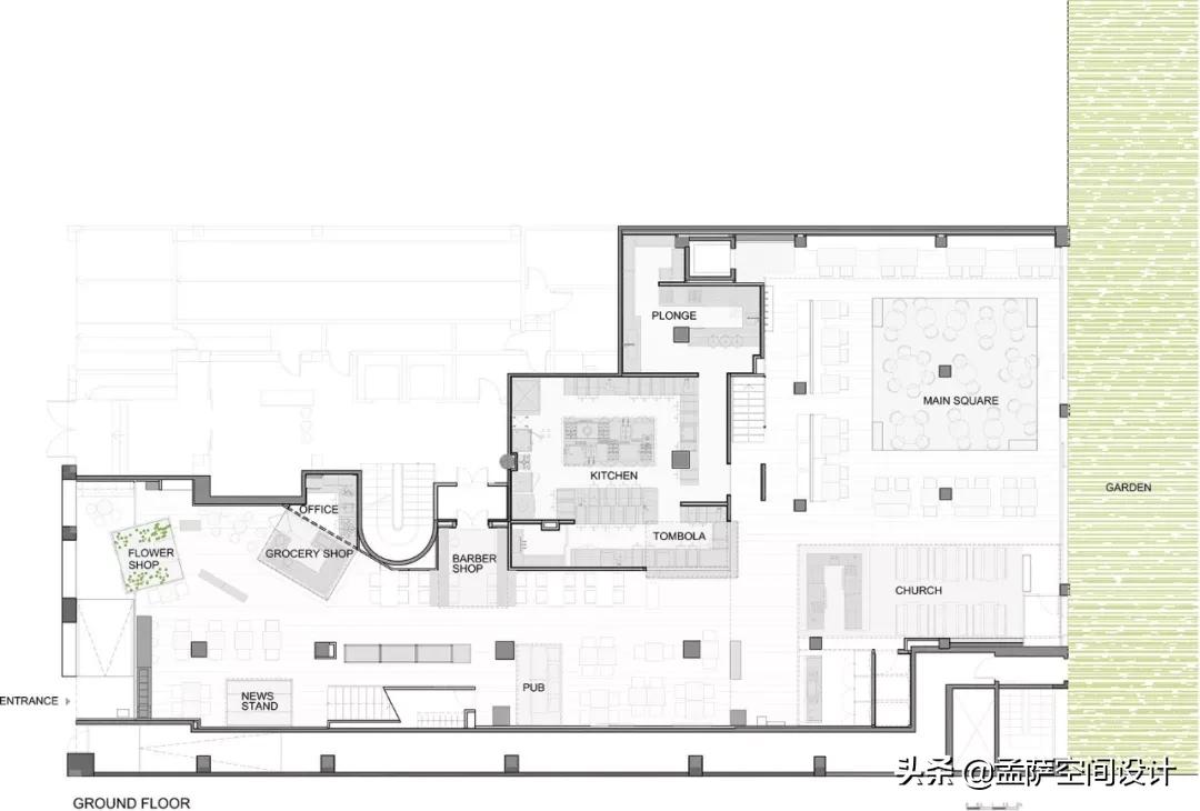
餐厅有两层,占地面积1000平方米,空间以西班牙乡村生活为灵感,将空间划分成不同主题的区域,营造出一个放松有趣的环境。


这是一个对于西班牙人来说极具亲切感的空间,有杂货店、报刊亭;再往里走走就是用餐区域,布置成了“绿茵草地”的酒吧,旁边还有饶有趣味的理发店和彩票摊,这很有梅西的风格。
杂货店
▼

报刊亭
▼

酒吧
▼

理发店
▼


彩票摊
▼

经过上述空间,来到尽头广场与教堂主题用餐区,两层通高的空间不仅非常宏伟且舒适。


彩旗装饰、悬吊灯泡共同营造出的仿露天就餐区,萦绕着欢乐的气氛。

二楼还设有私人集会区域,像烟花一般的灯光,线纹墙纸重复着室外的鲜花主题,阳光透过玻璃,心情顿时就被五彩斑斓的光影渲染。

黑白珠子拼接起来的隔断,也使得空间更为深邃。



餐厅由不同的主题无缝连接,设计师以植物作为联系,串联起了这些独立存在的区域,还原了一个具备多种功能的村庄。

透过玻璃墙,上千朵五彩缤纷的花展现在眼前,显得美轮美奂。


