明清家具中有榫卯结合近百种,常见的有格角榫、托角榫、粽角榫、燕尾榫、夹头榫、抱肩榫、龙风榫、楔钉榫、插肩榫、围栏榫、套榫、挂榫、半榫与札榫等。
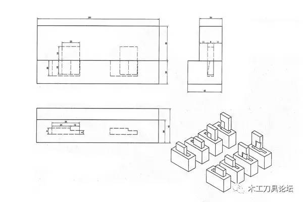
一、抱肩榫

抱肩榫
抱肩榫是牙条与腿足结合有几种形式,抱肩榫的做法采用45度,榫肩出榫和打眼,嵌入的牙条与腿足构成同一层面,是有束腰的明清家具常用的榫卯结构。
抱肩榫是结构复杂的榫卯结构,因为要解决腿足与面板、腿足与束腰、腿足与腿足之间的连接。以有束腰的方桌为例,腿足的上端,做出两个相互垂直但不连接的半榫头、这是与桌面相连的。在与束腰相接的部位,要做出45度角的斜肩,并凿三角形榫眼,以便与牙条的45度的斜尖及三角形的榫舌相接。斜尖上还留做上小下大、断面为半个银锭形的“挂销”,与开在牙条背面的槽口套挂。
明及清前期的有束腰家具,牙条与束腰是用一块独木做出的,凭此挂销,可使束腰及牙条和腿足牢固地连接在一起。这是抱肩榫的标准做法。清中期以后,抱肩榫的做法就开始简化,挂销省略不做了,为了省料,牙条和束腰也改为用两块木条单独做了。到清代晚期,抱肩榫的做法进一步简化,连牙条上的榫舌也没有了,只靠用胶粘合。桌子的牢固程度大大降低。
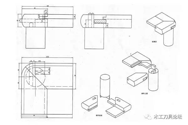
二、霸王枨

霸王枨是用于方桌、方凳的一种榫卯,也可以说是一种不用横枨加固腿足的榫卯结构。在制作桌子时,为增加四条腿的牢固性,一般要在桌腿的上端加一条横枨即可。但有时要制作造型清秀的桌子,又嫌四条横枨碍事,但又要兼顾桌子牢固,于是就可采用“霸王枨”。霸王枨为S形,上端与桌面的穿带相接,用销钉固定,下端与腿足相接(位置在本来应放横枨处)。枨子下端的榫头为半个银锭形。腿足上的榫眼是下大上小。装配时,将霸王枨的榫头从腿足上榫眼插入,向上一拉,便勾挂住了,再用木楔将霸王枨固定住。
霸王枨与桌腿形成45°角,一端有挂钩榫,插入榫孔后向上推,用下面的楔钉将榫推向上部,形成挂钩;另一端则与面带底面用销钉连接。除销钉外,常刻口顶住穿带,以使霸王枨定位。
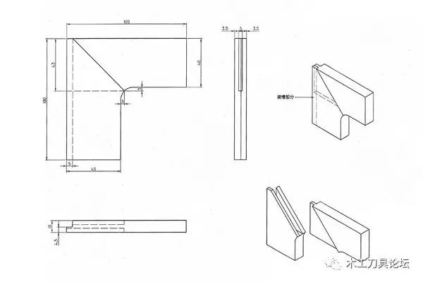
三、夹头榫

此结构常用于案形结构牙板与腿的连接,牙板与牙头攒成一体,里面开有凹槽,装配时牙板沿腿子中间凹槽自上而下推入;用于圆腿桌案时,牙板中心线与腿子中心线重叠。
夹头榫是制作案类家具常用的榫卯结构。腿足在顶端出榫,与案面底面的卯眼结合。腿足上端开口,嵌夹牙条及牙头,故其外观腿足高出在牙条及牙头之上。此种结构,是利用四足把牙条夹住,连接成方框,上承案面,使案面和腿足的角度不易变动,并能很好地把案面板的重量分散,传递四条腿足上来。
四、插肩榫

是制作案类家具的榫卯结构。腿足顶端有半头直榫,与案面大边上的卯眼连接,腿足上端的前脸也做出角形的斜肩;牙板的正面上也剔刻出与斜肩等大等深的槽口;装配时,牙条与腿足之间是斜肩嵌入,形成平齐的表面;当面板承重时,牙板也受到压力,但可将压力通过腿足上斜肩传给四条腿足。
五、粽角榫

粽角榫因其外形像粽子角而得名,从三面看都集中到角线的是45度的斜线,又叫“三角齐尖”。多用于框形的连接。另外,明式家具中还有“四十式”桌,其腿足、牙条、面板的连接均要用粽角榫。用于柜、桌等无束腰结构的家具,是面板与腿连接的常用榫, 要注意留“抬肩”。
六、栽榫(走马销)

又叫“桩头”、“走马销”,是一种用于可拆卸家具部件之间的榫卯结构。由于要拆卸,榫头易磨损,甚至损坏,出于维修方便,也避免因榫头损坏而使家具部件报废的情况,一般都采用另外一种木料来制成榫头,然后将榫头栽到家具部件上。栽榫多采用挂榫结构。罗汉床圈子与围子之间及侧面围子与床身之间,多用栽榫。
用于活装结构部件连接,如扶手与靠背、罗汉床床围子等;走马销榫头二分之一处做成头大根小,榫孔亦做成阶梯状,将榫头插入榫孔大端向小端推,则会将构件锁住;凡三面簸箕形结构,装配顺序均为先将两侧构件由后端装入向前推,到位后插入后面构件,顺序及方向均不能反;凡打对的走马销,榫孔直边均在外侧。
七、楔钉榫

楔钉榫是用来连接圆棍状又带弧形的家具部件,如圆形扶手的榫卯结构。虽然也是两根圆棍各去一半、作手掌式的搭接,但每片榫头的前端,都有一个台阶状的小直榫,可插入另一根上的凹槽中。这样便使连接部不能上下移动。然后在连接部的中间位置凿一个一端略大的方孔,再做一个与此等大的四棱台形长木楔,插入后,便能保证两个小直榫不会前后脱出。制作圈椅的扶手、圆形家具都要用楔钉榫。
此结构常用于弯料相接,如圈椅椅圈等;双头扣手榫俗称“巴掌榫”,《明式家具研究》里称之为楔钉榫,即将榫舌插入对方槽内,最后加入楔钉。楔钉一般角度为18-20°;接圈时从上面看顺序为:上脑压中节,中节压扶手,依此类推;楔钉分大小头,应为大头在外(凸),小头向内(凹)。
八、 格肩

单面人字肩
此结构常用于两横枨与腿子连接部位;制作时外面人字肩,里面平肩。

半榫人字肩
常用于腿枨连接;榫孔外皮剔除人字肩时,里面要留有“舌头”,以增加腿外皮的强度。完全剔除易使腿部强度受损;刹肩时不能再尖角外留有锯痕(俗称耗子尾巴)。

半榫人字肩
由于半榫强度不如透榫,留夹皮可以不损失榫卯深度,增大胶粘面积;使榫孔料少受损伤,最大限度增加外皮强度;常用于腿枨连接,有透榫、半榫之分。

半榫小割肩(蹾肩榫)
此榫常用于腰枨或与线形有关的家具,如眼珠线等;小割肩比较短,像是尖部被蹾了一下,因此称为“蹾肩”;此结构对榫皮伤害较小,可增加榫孔强度。

圆腿双面飘肩半榫
此结构常用于圆形腿枨连接部位;腿粗枨细是其特点,如腿枨直径相同,则应将飘肩适度抹头,但不能有明显痕迹;此结构有透榫半榫之分。
传统家具横竖材料相交,将出榫料外半部皮子截割成等腰的三角尖,另一料在榫眼相应的半面皮子同样割成等腰三角形的豁口,然后相接交合,通称“格肩”,所以以上所示均属格肩。
九、长短榫

一般腿部与面子的边抹接合时,腿料出榫做成一长一短互相垂直的两个榫头,分别与边抹的榫眼结合,故称“长短榫”。因边抹接合用格角榫,抹头两边从打榫眼腿料出榫与大边出榫相碰,故只有长短榫才能牢固。
十、抄手榫(插手榫):

此结构常用于箱柜类家具内部边框连接;抄手榫多为透榫,胶粘面积大,牢固程度高,加工工艺性能好;对于外观要求较高的家具也可使用此结构,只是将透榫改为半榫,如紫檀材料的面边连接,或上脑与立脚的连接。但半榫抄手榫需做深些。
十一、挂榫

直腿彭牙:常用于牙板与腿子的连接,特指牙板里面的燕尾形肖子槽及端头的单肩半榫;穿肖挂榫也包括鼓腿彭牙造型,区别在于该形状牙板与腿会形成一定夹角,而此图牙板与腿为平行方向;有时缩腰也挂肖,但多数不挂,只是两端贴于腿部平面。

鼓腿彭牙:常用于牙板与腿子的连接,特指牙板里面的燕尾形肖子槽及端头的单肩半榫;此穿肖挂榫与普通穿肖挂榫区别于牙板与腿有夹角;有时缩腰也挂肖,但多数不挂,只是两端贴于腿部平面。
十二、割角榫

大割肩榫:常用于面板攒边结构;常为透榫,如在表面雕花,则使用半榫,但半榫要尽量深些,且采用双榫或抄手榫以增加结构强度;面边超宽的大画案类家具,榫根处留减榫,以防止面边卷翘,加强榫的牢固程度;透榫宽度不宜过大,应比面边宽度尺寸的一半少2-5mm。

单插皮透榫减榫:此结构常用于门边与抹头连接;减榫时注意留出堵槽部分。

割角插皮透榫:此榫常用于榆木家具柜门,是白木家具榫卯结构做法的典型;插皮榫胶粘面积较大,对门边外角损伤少,牢固度高; 由于端头露立茬,因此不推荐红木家具使用。

双抄手燕尾榫:此榫常用于扶手或上脑与立腿连接处,由于难度较高,现在极少应用。一般经常需要拉拽、抬起的宝座等强度要求较高的家具使用此榫;双抄手中间加燕尾半榫,燕尾方向视家具的力学要求而定,一般以扶手或上脑不能向上拔起为目的。
取得联系。若涉及以上版权问题,敬请原作者联系我们删除或处理。
木工刀具论坛“zjwoodtools”[微信号]
木工刀具网(http://www.zjwoodtools.cn)-木工刀具行业网站,木材切削加工技术专业交流论坛。本站专注木工刀锯行业各种相关资讯和技术问题讨论,免费发布给关注本平台的粉丝阅读,每日更新图文内容;提供木工刀具业内人员交流讨论的和谐平台,满足访问者行业需求。
承接|刀具广告|软文推广|求职招聘|微信推送
商务合作QQ:157561175
▼ 点下面「阅读原文」进入社区参与评论互动