青岛中海玫瑰庭院270平的联排别墅,整体建筑风格以西班牙风格为主,结合现代简约主义。室内装饰以现代简约风格为主,电视背景墙运用电视背景墙运用大理石线条框,里面满贴硬包,外摆放植物、电视、电视柜等配饰,使电视背景墙既不复杂反而简洁大方。彰显出一番更为大气的华丽。
项目名称:玫瑰庭院
项目类型:联排别墅
项目地址:李沧区
项目面积:270㎡
设计风格:现代简约风格
工程造价:120万
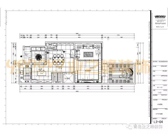
平面布局图

平面布置图

平面户型参考图

青岛玫瑰庭院270平联排别墅
玄关

青岛玫瑰庭院270平联排别墅,现代简约风格
客厅

青岛玫瑰庭院270平联排别墅,现代简约风格

青岛玫瑰庭院270平联排别墅,现代简约风格
西厨

青岛玫瑰庭院270平联排别墅,现代简约风格
餐厅

青岛玫瑰庭院270平联排别墅,现代简约风格
(若联系我,点头像,发私信)
你,新家要装修?可以点击下方图片免费获取装修报价!