
还记得Ho酱安利过的
方便、好玩还便宜的旱地冰球吗?
相关阅读:那些说打冰球又麻烦又贵的,都该打脸了
自从入了这个坑,
一有机会就举着杆子冲到外面的空地上一阵猛怼,
回家后还不忘研究理论技术,
誓做一名能打能说的全才
现在Ho酱要开始分享这几天的功课了,
你是否准备好笔和小本子了呢?
▼
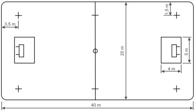
标准旱地冰球的场地大小为长40米宽20米的长方形场地,其四周应有国际旱地冰球联合会(IFF)核准的圆角形挡板。球场所有的界线宽四至五厘米,球门区为长四米,宽五米的长方形。而守门员区为长2.5米,宽1米的长方形。如果是自己私底下玩,场子小一些或大一些都没什么问题。

在这个说大不大、说小不小的场地上,能做的事情真的太多了!来看个视频,感受下把守门员虐到生无可恋的画面:
视频加载中...
这位小哥的带球技术已经到了出神入化的境界,不仔细看还以为他用胶水把球黏在了杆子上了呢。当然,冰冻三尺非一日之寒,修炼成大神的道路,还是要从学习基本功开始。
本着言简意赅、干货至上的风格与态度,Ho酱为大家进行了旱地冰球常用技术的精华部分:
1
传球

球和拍的保持很近距离,传球后拍面正面的方向就是传球的方向,身体保持平衡,整个过程抬头、看球场。
2
接球

接球时首先拍头上前迎球,接触球时动作一定要很软、有弹性,接球的整个过程抬头、看球场,身体要保持平衡。
3
击球

腕力击球:球和拍保持全程接触

劲射:拍击球前接触地面
4
防守

防守时用身体、脚和手臂等不让对手靠近和接触球,球拍总是要放在对手强求的那一方,球要持的很好。
5
带球

球整个过程跟拍接触,轻接触,不要打,预备好从右手和左手两个方向都传球,要守住球。
6
假动作

做假动作*考前**虑好你要把对手欺骗到哪一个方向,假动作时持球要练得非常好,锻炼速度和身体控制,假动作的时机很关键。
▼
练就上面这几招
你就可以很自信的说自己是个会打旱地冰球的人了~
什么时候约Ho酱切磋切磋?