16载【半岛一号】繁华大城,久等了
有人说,【半岛1号】就是惠阳的香蜜湖。
这不仅仅是对半岛品质的赞誉,也是对半岛成就的肯定。

2019年,粤港澳大湾区与深圳东进加速的大时代背景下,
【半岛1号--8期】载誉而归,为超越而来!
同样的城熟享用,不一样的视野风光。敬请期待!
久等的您,我们来了!
惠州惠阳半岛一号
半岛一号位于东华大道半岛1号(体育会展中心旁)项目总占地约100万㎡,总建筑面积约120万㎡,容积率仅有1.07,半岛一号截止19年共历经16载时光淬炼,目前已入住业主高达万户,小区绿化率高达40%,是惠湾区域不可多得的生态宜居大盘。
半岛一号项目共分12期建设开发,目前1期、2期、3期、4期、5期和11期已经开发售罄并入住,居住氛围非常浓厚。

【新高度】
16年始终如一,用新筑悦生活之美
16年来,半岛1号始终致力于打造城市高品质住宅典范,与城市载誉同行,保持超高的生命力与活跃度,让10000多位业主都对半岛愈加信任与骄傲!
2019年,粤港澳大湾区与深圳东进加速的大时代背景下,【半岛1号-8期】为超越而来,同样的城熟享用,不一样的视野风光。开启大盘新视点,领秀一城人居新高度!
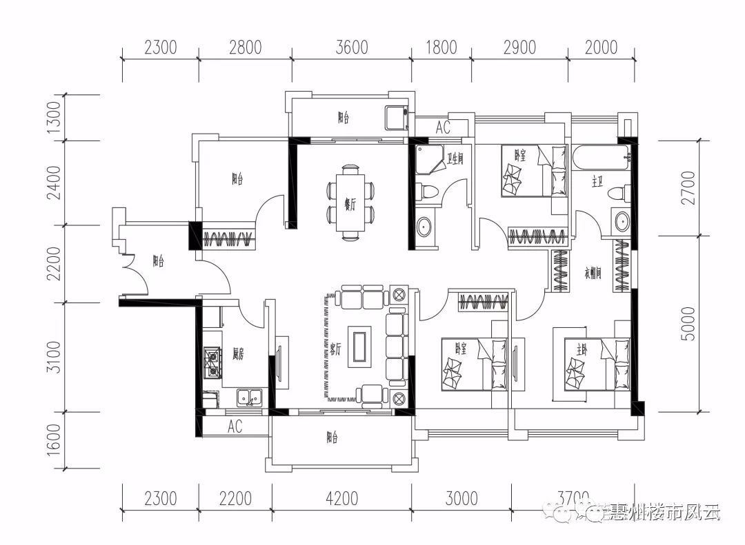
半岛一号8期位于项目的东侧,8期占地10.6万,涵盖别墅、洋房、高层业态的产品,整体建筑规划西班牙风格,园林规划地中海风格,可以说是最具风情的一个组团。主打高层86-127㎡,洋房138-142㎡,170-204㎡双拼别墅。看房提前联系赵经理:150-1351-5943(免费专车接送看房)

【新筑作】
16年醇熟资本,生活随心所欲
【半岛1号】历经16年时光淬炼,打造涵盖别墅、洋房、高层、商业四大业态在内的百万方超级成熟大盘!半岛文化体育公园、棕榈岛高尔夫球场、天虹商场、大剧院、格兰云天国际酒店、三和医院等,应有尽有,一站式配套随时畅享;公立学校、会所、风情商业街、运动场等社区高配资源,让生活从此随心所欲。

【新典范】
百万超级大盘,城就人居新高度
被时间沉淀过的才是经典。半岛1号位于惠阳区政府北侧,将城市有限的公园、河水、高尔夫球场等自然资源纳入其中,打造百万方超级生态生活大盘。
【半岛1号8期】全新低密全景高层和别墅,层层历练的精端匠品,全系生活配套环绕,精端细节设计,将再一次成就城市人居新高度。

【新视野】
河、岸、林、岛、墅交相辉映
【半岛1号】占据城市有限的自然资源,将河、岸、林、岛、墅交相辉映的大美风景纳入怀中,带给您别处没有的立体感官体验。高层阔绰视野,将淡水河风光、地中海园林尽收眼底,让你在闲庭信步、挥汗淋漓时都能享用到清爽绿荫和醇美自然!
【新出行】
大湾区时代多维交通,深港惠路路畅通
【半岛1号】位于惠阳区政府北侧,雄踞深圳龙岗、大亚湾和惠阳三地的黄金交汇点,北环路与人民路纵横交错,深汕高速直通深圳,多路公交直达厦深高铁惠州南站。多维交通路网,深港惠三城生活随意切换。

【新礼遇】
半岛新城市物管,定制尊崇礼遇
经得起挑剔的物业才是好物业。惠阳半岛新城市物管,拥有以业主至上的超前理念和超高素养的专业服务团队,曾荣获“广东省物业管理优秀示范住宅小区”称号。半岛新城市物管,贴心为您想更多,让您享更多。
【新享用】
河畔 全景 高层
【半岛1号--8期】全景高层,科学的设计与合理的布局,打造动静皆宜舒适空间,让阳光清风随时造访。惬意的观景阳台,引景入户,看得更远,观得更全,让生活更上一层。
半岛1号8期品质升级力作,为城市菁英量身打造舒适多样的居住空间,产品系涵盖建面约86-127㎡观景高层、建面约138㎡花园洋房、建面约145-200㎡湖岸小别墅。
别墅:


建面约86-127㎡观景高层:








8期八大购买理由
16载百万大盘
半岛1号经16载时光淬炼,已积淀成为涵盖别墅、洋房、高层、商业的百万大盘。目前已有近万名业主入住,是不可多得的湾区宜居大盘。

城芯中轴席位
半岛一号地处惠阳区政府北侧,与惠阳区政仅一步之隔,占据城中正席;淡水河环绕,隔离城市喧嚣,繁华中独享宁静,离尘不离城,是城芯难得的静谧住区。

约1小时深港速达
半岛1号地处交通枢纽处,约1公里淡水出口直通深汕高速,惠大高速、长深高速;多条线路直达高铁站惠州南站;出门即城市主干道,出行畅达无阻。

万象繁华尽揽
运营逾十年的醇熟风情商业街融汇万象,天虹商场、英之皇、家乐福等大型商业环伺;约2公里内惠阳三和医院、惠阳中医医院等各大医院;举步即达约100万㎡半岛体育文化公园、棕榈岛高尔夫、淡水河畔。

一站式菁英教育
9年制公立学校惠阳半岛学校、半岛崇雅实验幼儿园、崇雅艺术教育中心就在社区内,孩子步行即可享用一站式全优基础教育。孩子成长不离家,父母自然安心。

醇美低密住区
16年时光积淀,项目内生长十余年的园林,丰茂的林荫大道,依地势打造出静美内湖,城市中奢享出则繁华,入则宁静的纯水岸悠美住区,如同把家搬进公园里。

欧式轻奢园林
8期打造地中海主题园林,以“探索地中海经典城市之旅”主题贯串,让您栖居于浪漫的欧洲风情之中;园内设有阳光步道、活力运动场、老年活动区等,全龄可享健康活力生活。
