
提到户型,大部分人都知道两句“坐北朝南”、“户型方正”的*法讲**,可说到底这些只是皮毛。
实际看房时,置业顾问一般会对你说“竖厅”、“横厅”这样更高明的话术,即便你提前做过功课,也可能因为不懂专业术语而被带到坑里。
那么 竖厅 和 横厅 到底是什么意思呢?


竖厅户型
竖厅也叫直厅,是 开间<进深的布局,进门后的布局顺序依次为入户玄关→厨房→餐厅→客厅,客厅和餐厅相互独立。
竖厅的优点是动静分明、空间独立性强、隐私性好,而且沙发可以靠墙摆放,因为符合中国人的生活习惯和需求,所以更受开发商与业主的青睐,有95%以上的家庭都是选择竖厅户型。

横厅户型
横厅户型,是近两年随着人们需求的变化而开始盛行的一种户型,它的开间<进深,虽然客厅面积大、采光充足,但客餐厅之间没有明显的分界线,一旦没装修好就容易显得杂乱无章。
尤其是小户型,面积越小,对功能设计的要求越高,没有明确分区和动线规划的横厅户型实在不友好。
再加上横厅的 卧室和客厅两两相望,缺少私密性,让人很没有安全感,所以经济条件充裕的家庭基本不会考虑这样的户型。
毕竟钱足够,咱买个大面积、动静分离、功能齐全的豪宅它不香吗?


原建平面图
从图中可以看到,这是一个 三房两厅两卫的横厅户型,户型很方正,但卧室、厨房都正对着客厅,客人要上卫生间可能会打扰到卧室,私密性差了许多,一些家具也无法靠墙摆放,更没有明确的客餐厅分区,因此很难做出像竖厅那样有条理又有安全感的布置。

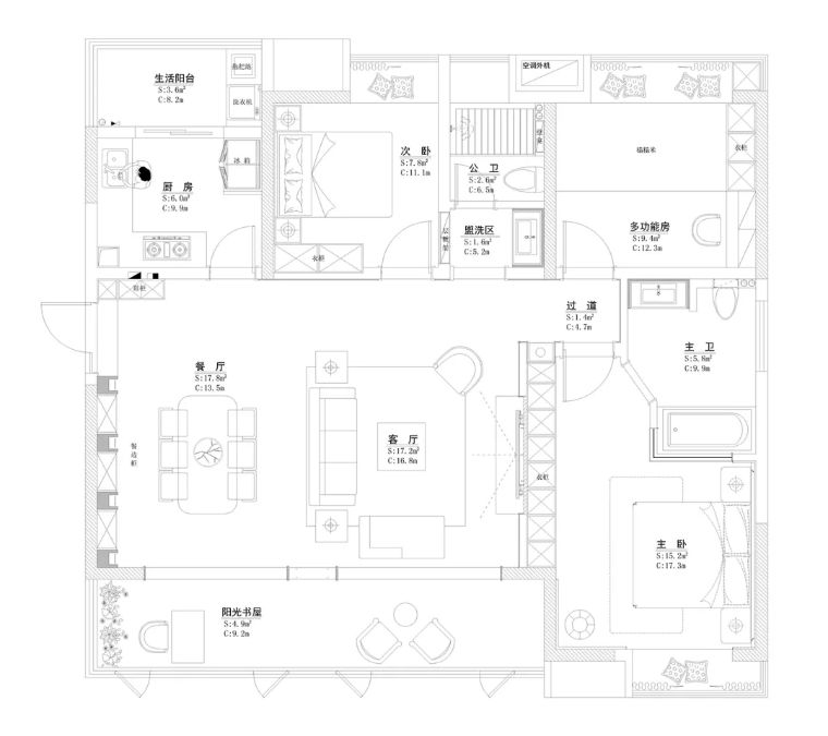
平面布置图
设计师与业主沟通后,决定基本保留原有结构,只将房间门进行微调。 围绕客户生活习惯,通过家具摆放合理规划动线,扩大收纳容量的同时,以色彩、材质的搭配塑造有尊贵感和豪华感的居住空间。


横厅的公共空间无明显过道,设计师 以电视墙为界布置客餐厅,隔出从玄关一通到底的过道。客厅与餐厅在同条直线上并排摆放,共享采光,通透敞亮。

沙发作为客餐厅隔断,和餐椅 留出1m左右距离,方便行走。

设计师打掉了阳台与客厅之间的墙体,利用一道竖高陈列架,像画框一样 在改善采光的同时形成分界,视觉上工整对称,摆放上艺术品更凸显文化感。



背景墙用 天然大理石搭配实木墙板,花纹都是精心选择,灯光照射在木质表面散发温馨的光芒,对称造型含蓄又优雅,显露东方气质。


黄铜材质的电视柜拉手、茶几底座、吊灯,在低调中折射出金属光泽,带来感官上的奢华体验。

森林绿与爱马仕橙 两种具有生命力的颜色 极具国际范,让空间在平静中美丽脱俗,活跃会客氛围。
朋友来家做客时,屋主可以随性拿起心爱的小提琴为客人演奏一曲,展现自己的艺术细胞和热情好客。

阳台一角, 水墨画背景和青灰砖墙将中式元素融入现代简约中,打造清新优雅的阳光书房。

厨房与生活阳台的开门位置做了偏移,避免“穿堂风”。内部动线也进行了优化,做饭时产生的油烟不会直冲客餐厅,饭菜做好后能够以最短的路径端上餐桌。


设计师独有的创作方式,将 轻盈的玻璃材质和轻奢的金属材质融合在一起,空间层次丰富,光线充足,呈现出简单而奢华的现代小资情调。

皮阿诺定制餐边柜到顶的设计将空间收纳功能最大化。上方开放式层板美观易打扫,下方抽屉式设计侧重实用性可防灰,碗盘以及其他用餐所需品一并收纳其中,尽显人文关怀。



次卧作为儿童房,进门方向做了调整, 房门选择隔音效果好的TATA静音门,且用层板把卧室与盥洗区、公卫完全分离。卧室关上房门就可以免受外界打扰,也方便客人使用卫生间。

过道尽头的筒灯光线打在灰色壁纸和装饰画上,静谧深邃,成为动区和静区最好的过渡地带。


多功能房用 榻榻米+组合收纳柜+飘窗的形式,赋予空间强大的收纳能力,还可以当做书房、茶室以及客房使用,清晰的木质纹理,自由的线条给使用者带来美感和舒适的双重享用。

主卧和客厅之间墙体设计了一组超大衣柜,解决收纳顾虑,又起到很好的隔音效果。
主卫的进门方向也重新设计,避免卫生间门正对卧室床, 玻璃墙隔断让主卫与卧室都拥有更好的采光。

用材:TOTO洁具/欧神诺瓷砖
壁挂式盥洗台+防雾镜,智能马桶+壁龛组合,再结合深灰、浅灰、奶白等不同颜色的瓷砖,在6㎡的卫生间内打造功能与颜值并重的高品质生活方式。


主卧背景墙采用进口墙布,寥寥数笔水墨风格绘画,创造出富有内涵的中式雅奢空间,几抹深绿点缀更是带人重回山野,静隐归心,放松投入自然环绕的专属时光。

没有一无是处的户型,只有最贴合现实的设计,充分发挥空间的优势,将生活代入,这就是我们存在的意义。
