这一期荣登大雅之糖issue60的是屋主@Mermaidry 的家,一进门,就被一屏大蓝墙惊艳了,明亮黄的单品加以点缀,清爽的气息扑面而来,仿佛自己此刻就在海洋精灵的秘境。
另外,Mermaidry还记录了装修的全过程,内容详细实用,或许刚好能解决你装修的苦恼呢~快来看看这份超有诚意的装修手册吧~

Mermaidry的主业是新媒体编辑+文案,还是个业余插画师、作词人,爱好阅读、弹唱,是货真价实的才女哦~
大学时期是合唱团的团长,重点是成功把大她三届的团长拐回家了,也就是现在的家属于老师。

- Mermaidry的部分个人作品 -
想进一步了解屋主的可以关注她的
微博:智障少女Mermaidry;微信公众号:Mer0518
这个家,我们叫它New Holly,这其实是一个谐音,具体的就不详细说了,不然就暴露位置了哈哈。
家里住着我和我家属于老师,还有我们的狗子詹姆斯·来来。

- 新家一隅 -

- 狗子 詹姆斯·来来 -
捕获一只超级可爱的詹姆斯!
接下来是我家的装修全记录
还有我的装修心得

- 01 -
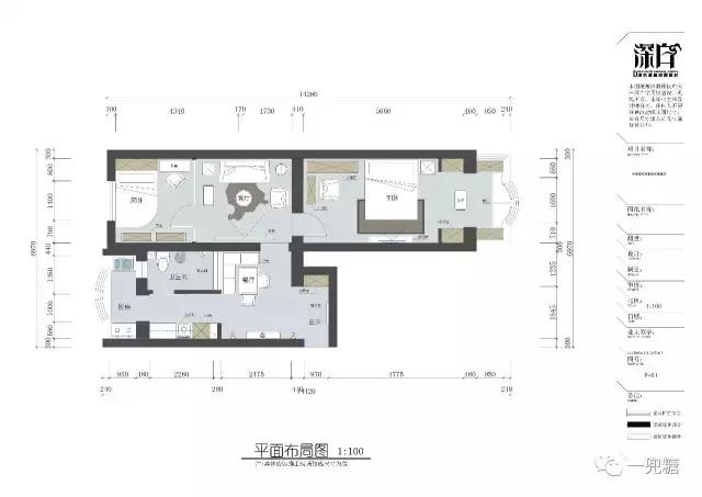
收房

- 户型设计图 -

家的位置在市中心的一幢老楼,是南北通透,采光不错的小两室,但装修风格还是“90年代经典款”。
由于是个二手房,很多地方需要修缮,装修自然是个大工程啦。
- 02 -
配色方案
配色其实是贯串始终的,如果你真的觉得自己对颜色很不敏感,那就黑白灰再点缀一点点喜欢的颜色就好了。如果有非常偏爱的颜色,那就选它当做主色,然后点缀一点点其他颜色。
注意,千万不要出现太多颜色!

举例说明,我家最开始选的主色就是稍微有一点点偏绿的蓝色,搭配“让人心都化了”的年度潘通色——静谧蓝和蔷薇粉。

粉色其实出现得很少,因为一旦多了就会显得杂乱,然后在配件上点缀了主色调蓝色的对比色黄色,让冷色为主的屋子提亮。
选每一件单品都要在脑子里努力想象整体效果,如果实在想象不出来,那就找图片放一起看。
不会PS?那你用Word!别找什么客观理由,你真想努力就总有办法。
- 03 -
知识储备
前期准备在我看来是相当重要的一个环节,上网学习了各种装修知识,找喜欢的案例图素,根据房型和自身需要,疯狂头脑风暴想创意……

成品能够尽可能接近想象,当然不是跑到设计师那里说“我要个啥啥风格你弄吧”这么简单的。

虽然有设计想法,但苦于不会专业软件,只能靠ppt的形式尽量总结脑内纲要。
过程几乎看遍了知乎的装修经验,先总结出自己需要的点,再找图配文。软装阶段的单品还单独做了一个ppt。
有了想法就要找团队,先在网上看各种工作室的案例,然后电话联系再跑去面谈,确实也找了不少,最后考虑再三,选择了深白设计帮忙出设计图和他们推荐的大宅工程进行施工。
- 04 -
找设计师
如果你没有充足的时间和一定的装修经验,建议还是找个设计师。
毕竟设计师可以给出更多合理的建议,比如有的想法在施工上有哪些困难,或者有什么更优化的方式。
而且对于我们这种异地装修(北京工作,只有周末可以回天津来现场)的人来说,有设计师在日常施工的过程中进行视觉把控,也能更放心一点。

- 设计师给出的部分设计图 -
前期沟通到位,设计图就不会有太大问题,细节改动就在实施过程中再调整就好了,毕竟真动工了一定还是有许多突发状况……

- 01 -
拆砸、改水电

开始改造的时候就先拆成毛坯。
要注意的是水电线路一定要留底,避免之后墙壁钻孔动到线路啥的。

水电改造是个要舍得花钱的地方,毕竟家具坏了可以换,管路出问题要修理就很麻烦了。
- 02 -
铺砖、地板、石材

厨房和阳台都选了小黑砖铺墙。洗手间则是小白砖铺墙,大面积地面都选了水泥砖。
得出一个经验:地砖选择深色,有头发什么的不会很明显。

异地装修大部分东西靠网购,风险也多了很多。
比如上图的花砖,本来买的是彩色的,结果寄来了黑白的,如下图。

提前没交代好,工人师傅不知道就给铺上了,后来发现再找卖家售后解决,再寄来,再重新拆了再铺……浪费了不少时间也添了不少麻烦。

像瓷砖推荐深色一个道理,为了耐脏,地板推荐浅色。还有一个优点,比如现在火爆了的日式、北欧风格,它都能完美搭配。

石材要说的不多,亲自去建材市场看看实物就好了,选好合适的颜色。推荐干净的白色,纹路不要太复杂。
- 03 -
墙漆、墙裙
刷墙之前选色卡很紧张,感觉是个重大的决定,担心最后上墙还是有不可避免的色差,实际上也确实有一些色差哈哈哈。

- 刷好之后的颜色 -

接下来是墙裙,最开始的创意就是两个卧室选择墙裙,墙裙经过的门、柜子,甚至暖气都要整齐划一。
这个想法和设计师聊的时候确实给他出了个难题,因为刷墙、柜子、暖气的漆不是同一种漆,出现色差就会破坏效果。

- 主卧的隐形柜 -
网上看到的参考图基本上都是国外的,国内做”刷一切”的家庭估计相当少,实施有一定难度,不过最后心灵手巧的工人师傅还是做到啦!撒花!
- 04 -
格窗、移门、榻榻米

洗手间的一面墙做了个假格窗,因为格窗右侧那面墙是承重墙,不能打开,于是决定借这个角打造一个带卡座的小餐厅。
假窗一方面能透光,另一方面在用餐时有种餐厅靠窗座位的感觉。
关于洗手间的隐私,我们选择了在窗户内侧挂浴帘来解决,最后效果也确实不错。

次卧和客厅之间从前是个老式推拉门,感觉上还是不够通透,于是我们选了全透明的细黑框格子移门,平日打开和客厅连成一体,如果需要住人,内侧挂帘也能保证私密性。
找这款移门也费了一番工夫,外地能做这种造型的价位相当高,天津本地能做的就很少,要么就是框很粗,要么就是有各种浮夸的造型,最后终于找到这个和理想最接近的,价位比普通的要高,但也还能接受,像是完成一桩心愿一样。
真枪实弹的施工、安装结束
接下来就是软装
如果你很care自己家的颜值
那就在软装阶段多花花心思!

- 01 -
灯具

这款灯是在很多年前看一个画展见过的,当时就超级喜欢,现在终于有机会了,说啥也要搞到家里面来!虽然有点矮……

- 得到很多人称赞的角落吊灯 -
由于房子本身就不高,再加上客厅为了遮住一条房梁不得已做了吊顶,所以没办法再安装传统的吊灯了。
选择筒灯+角落造型吊灯的方式虽然有点特立独行,但效果很有可能超乎想象哇!

关于灯具,有一个非常重要的问题:务必确认好尺寸!
想起还是很泪目,在网上看到一个心仪已久的吊灯,一开始看尺寸觉得还算合适,买来安装时发现实在是太低了,家里没有任何一个地方能接纳,最后没办法,只能退掉……
- 02 -
橱柜、大家具
说到这个环节真是百感交集。
关于橱柜以及家里各个位置的定制家具,我们选择了一家能做原木色的店,提需求和出图纸等环节都比较顺利,但安装阶段却状况不断。

- 带储物功能的卡座 -
由于我们不能每天亲临现场,这家橱柜安装的工人又确实不太靠谱,结果导致屡次三番的返工、延期,对整个施工都导致了影响,也让我们自己的施工队几次白跑一趟,没法作业。
所以朋友问起橱柜相关的事宜,我们都说:这家的东西确实质量很棒,但服务很差,如果没有打持久战的准备,还是不推荐了……

阳台放了带轮子可移动的储物柜,还有隐形柜、橱柜、鞋柜……总之橱柜选择木色或者白色都是怎么搭都不会错的。
大件家具会对整体风格有不小的影响,大家应该都知道的。
本来我们看中的是日式的衣柜、床,但遭到了家长的强烈反对,比如嫌款式太简单、木材不够好、价格过高……

最后协商选择了图中的这件,颜值和性价比都很高,唯一的缺点就是和原有想法出入很大,主卧更偏向美式乡村,后期配件选择就要整体有所调整。
这里有一个小提示:衣柜、窗帘都最好选择“顶天立地”式,普通衣柜上方多余的空间能合理利用,并且能从视觉上拉高房高。
- 03 -
装饰画

关于装饰画,运送床和衣柜的时候被我发现了几块用来防震的木板,感觉好好看,就留下了,放在一旁不放心还留了个字条“别扔!!!”,因为看着真的是废品哈哈哈哈。

后来抽时间在原有的木纹基础上用丙烯手绘了两幅画,现在摆在客厅,省去了购置装饰画的部分成本,嘻嘻。

购置装饰画这件事,没把握就成套购买吧。我是自己选购单品,然后用Word拼到一起看整体是否和谐。
很麻烦的是要确认每幅画的尺寸比例,再考虑怎么排版,真的很麻烦,但是效果确实比很多成套的还要好,并且便宜。

- 玄关&餐厅 -

玄关上下都做了鞋柜,中间的卡座加了靠垫,换鞋的时候也不能随便。
这里有个小插曲,我家玄关处有个拐角,裸露的大白墙非常容易脏,家长要求购置护墙角,市面上常见的就是一块L形玻璃,上面有大牡丹或者小蝴蝶啥的(不知道的可以网上搜一下)。

反正我是誓死反抗,但这个位置易脏的问题着实要解决,在设计师的提示下,想到可以选择墙绘!

先在手机上画好简易的示意图,贴胶带方便画直线,铅笔起个稿,然后用疯狂抹丙烯就好了。
但难点是,如果画错了就要重新刷漆重新画,非常麻烦。所以建议心里有底或者不怕画坏的人尝试。

- 最终成品 -
由于墙绘经验不足,画之前还咨询了知名插画师傅大橘子大老师,所以这个家每一处都是广大人民群众共同的努力与支持哇!

- 餐厅的卡座下可以储物 -
- 客厅 -

客厅的蓝色地毯就像大海一样,深浅交替,很有意境。

我和我家属都是合唱团团长,家里有两把吉他,我喜欢弹唱,我们平时都会玩。

家里有超多CD收藏,都放在次卧的柜子里。

现在客厅角落放了张桌子,平时坐在这里看书,是个阅读角。
我是个书类爱好者,也收藏了很多书,有很多散文、画册、绘本、漫画。
- 主卧&次卧 -

大件的家具不是自己最初想要的,但现在用的颜值也很高,有一点点偏美式风格,但还是很好看啊!

蔷薇粉的单人沙发,搭配金色的小茶几。

因为想要秋千,爸爸亲手给我做了一个。平时不用的时候可以拆下来,重点是他做的零件很高级,拆下来无痕!

阳台平时也是我的工作间,我会在这里画画。

次卧按计划安装了榻榻米,安装的时候发现颜色和地板十分和谐,后来发现和家具、挂钟都很和谐,开心:)
榻榻米带收纳和升降桌,来朋友就变身麻将桌,放平又能当做双人床用来休息。
如今身边很多朋友都选择了安装榻榻米,实用性很强,要注意的就是和整体气氛是否和谐吧,其实选择每一款都要考虑这件事:和整体气氛是否和谐。

次卧的五斗柜和地板的颜色超和谐,柜上放了很多迷你小花瓶和小摆件。

这个柜子就拿来放CD啦。
- 厨房 -

因为我家厨房比较小,所以把厨房分成两部分。这个部分是简单加热区,和做菜洗碗的地方分开。

因为户型原因,我家的厨房台面是弧形的。
- 卫生间 -

卫生间挂了蓝色的浴帘。

柜子上也放了很多迷你的小花瓶,因为家里老人说新房要多放花瓶。
▍装修TIPS:
1.去知乎或一些优质的公众号文章看一看,会有很多针对性的总结,选自己需要的。
2.网购的建议就是:国外很多设计比如Hay、Normann、ferm living确实很棒,不过价位很高,最喜欢的可以选几件海外代购一下。选择国内同款还是慎重,不然很可能“你要的白不是这个白”。
3.关于房子的风格,我的建议是,不要过于纠结于这件事。不是有个榻榻米就是日式了,也不是有个拱门就是地中海,还有现在的网红北欧风格,真不是你自以为足够性冷淡就是北欧了。整体和谐、实用就好了,一味追求颜值,住的时候就傻眼了。
说白了
家不还是自己喜欢住着高兴最重要吗?
-end-
如果想了解更过可以微信搜索关注“一兜糖家居”(id:yidoutang123)