
▲ 点击“火柴设计联盟”,关注设计互动平台 每天更新,喜欢的可以点赞关注转发哦!
滑到文章底部获取免费资料
《 Callison 》┆『 厦门华润中心万象城商业设计规划 』效果图JPG┃概念规划JPG+PDF┃商业室内JPG+PDF┃1G〖火柴设计联盟〗第 2565 期
▼ - 部分作品阅览 -
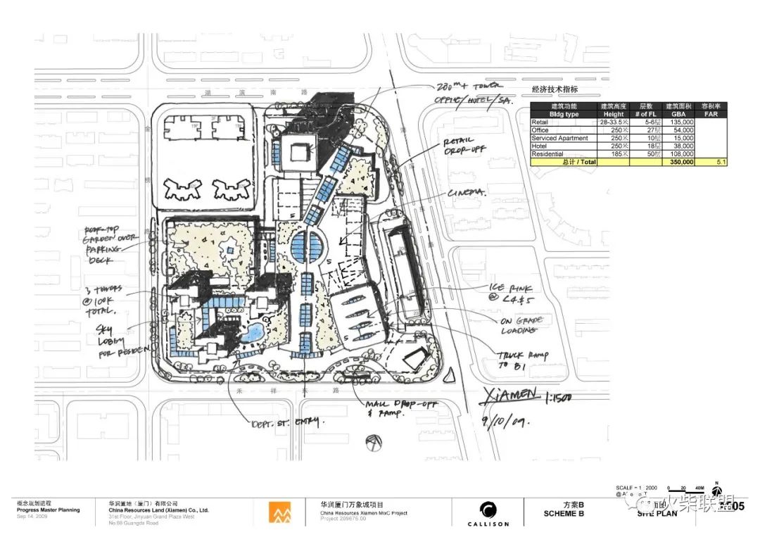
1.项目概况











2.资料截图

3.商业室内规划



























4.概念及效果图
















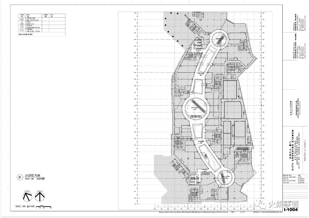
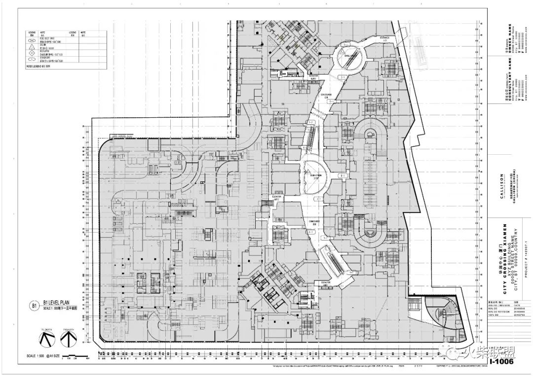
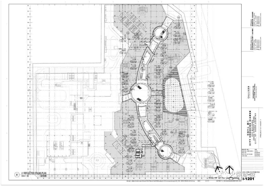
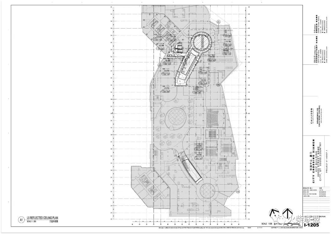
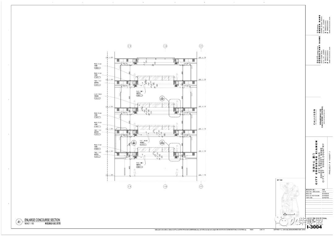
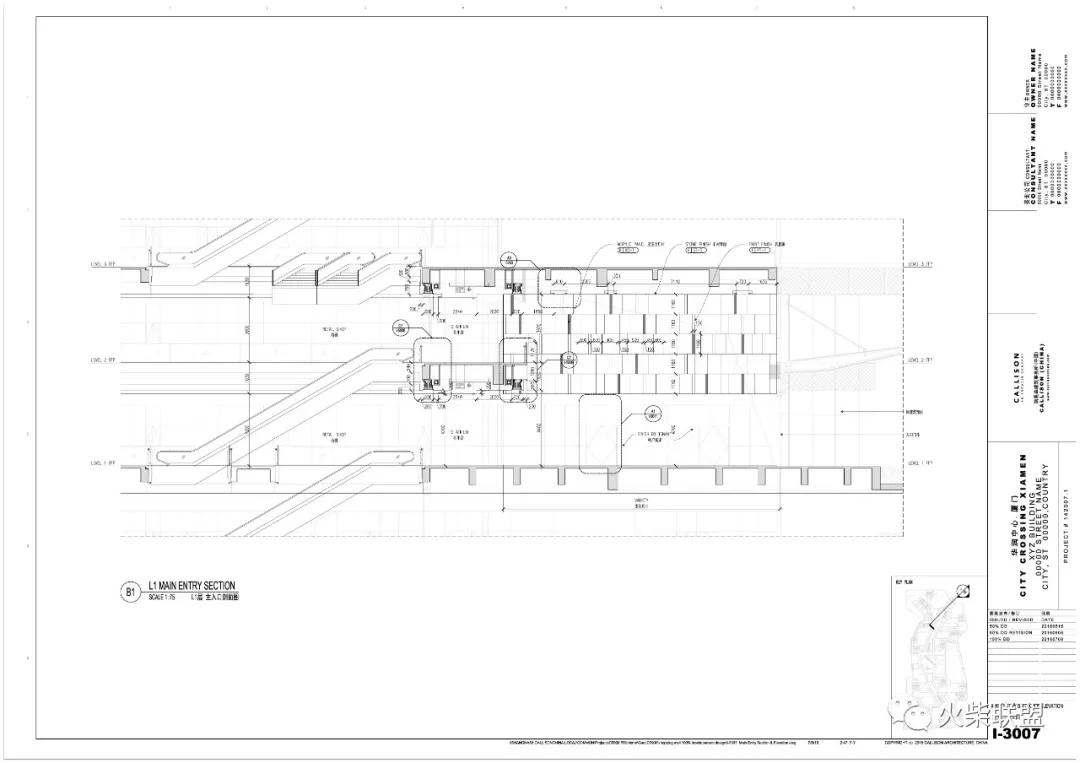
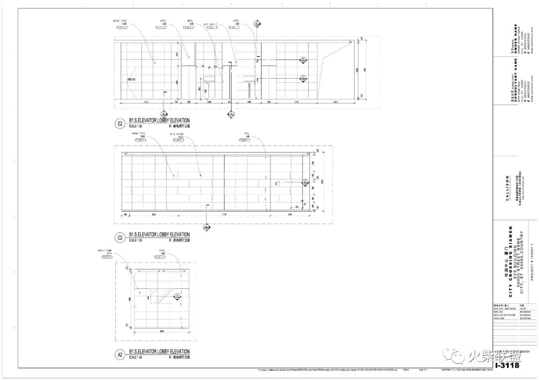
5.施工图样图

















【作品名称】:『厦门华润中心万象城商业设计规划』
【作品内容】:效果图JPG┃概念规划JPG+PDF┃商业室内JPG+PDF
【文件格式】:DWG,PDF,JPG
【资料大小】:1G
【免费获取方式】
关注转发加评论后私信“2565” 即可获取此套完整版资料
免责声明:
以上图片及资料内容来源于网络,由我方整顿,版权归原作者及其公司所有;
本资料仅供学习研究之用,不得用作于商业用途,若此图库侵犯到您的权益,请与我们联系删除;
本文章版权归本头条号所有,未经同意不得随意转载 ,若恶意侵权将追究其法