源政创业大厦

一, 项目简介
1,项目位置:位于中国,深圳市,南山区,科技园北区,朗山路与科技北三路。
2,开发商:深圳市源政投资集团有限公司
3,,用地面积:8611.34㎡
4,建筑面积:约80000㎡
5,建筑高度: 高 50米
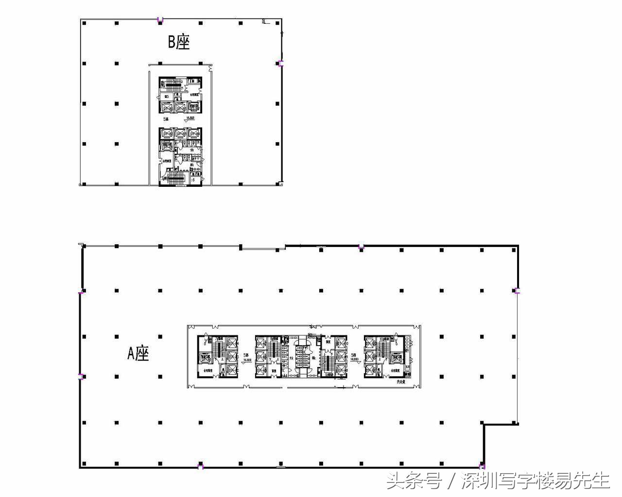
6,写字楼体量:58172.64㎡
7,楼层:地上11层,地下2层
8,标准层面积::约7300㎡,A栋约5000 ㎡ ,B栋约2300㎡
9,层高:1层5.1米; 3层4.2米; 2、4-11层:3.8米
10,物业管理: 源政上品物业
11,电梯:21部原装进口讯达电梯 (客梯17 部,消防梯 4 部)
12,幕墙系统:LOW-E中空钢化玻璃幕墙
13,网络:光纤入户
14,电路:双回路电源供电系统,
15,大堂高度:7.6米
16,大堂面积:955.76平
17,空调系统:VAV水冷中央空调系统
18,停车位:380个停车位
19,车位费:暂时未定
20,柱间距:6.8米 – 13米
21,出租楼层:4--11层 ,
22,出租面积段:500--1000--2300--5000㎡,A栋整层5000 ㎡ ,B栋整层2300㎡,大小面积均有。
23,出租价格:120-150元 /月/㎡(含税)
24,实用率:78%
25,物业费:15元 /月/㎡
26,空调费:24小时计电费
27,水电费: 水费:4.82元/m³ 电费:1.06元/度

源政投资集团简介
创办于1994年,致力于创新科技领域的投资、孵化与发展。公司成立二十多年来,先后投资、孵化培育了近百个科技企业和项目。在生命科学领域重点致力于具有自主知识产权、全球领先的基因治疗、干细胞治疗与细胞免疫治疗技术的研究开发与产业化,先后参与创办、投资、培育了十多家生物医药企业,如海普瑞、北科生物、源兴医药、源兴基因、恒瑞源正等;
在互联网、新能源、新材料、文化教育、电子商务等领域致力于挖掘核心技术和助推“中国创造”,投资、孵化与发展世界范围拥有知识产权的优秀项目,如:全球激光显示领域的领跑者光峰光电,发明出全球最薄柔性显示屏的柔宇科技等。
源政投资集团作为坚持创新科技的推动者,在中国深圳硅谷创建了源兴科技大厦、源政创业大厦约170000平方米创新创业承载空间,坚持筑巢引凤,融天下优秀英才,集世界科学技术,汇全球科技投资资本,努力推动中国创造,成就科技未来。
公司物业欢迎垂询 : 136--7021--0987 易经理
二,项目配套
商业配套:
华润万家、麦德龙商场等
餐饮配套:
意大利餐厅、创客小馆、荣粤、星巴克、肯德基、711、奈雪の茶、贡茶等。
酒店配套:
深圳朗钰酒店,万昌公寓,深圳北京公寓等
交通配套:
地铁:1号线,高新园站、深大站(10分钟车程)
环绕本项目周边公交站点:“华翰站站”,“朗山路口站”,“海普瑞站”等公交站点,多条公交线路。
银行:中国建设银行,平安银行、招商银行、中国银行、中国工商银行、中国建设银行等。






