买房要考虑哪些因素?地段、价格、面积、环境等等很多因素,但“户型”绝对是影响房子居住舒适度的关键。

房子好不好关键看户型,“满分”户型可遇不可求,能拥有评分80以上的户型,住起来就会很舒服;本期分享的是国内常见的20款户型,如果不知道自己房子的户型好坏,那么可以参考下面这些户型,来对比下你的户型到底能值多少分吧!
满分户型:横厅+通透的房子

▲满分户型
就目前房产市场来讲,横厅+通透的户型算是比较完美的房子,横厅可以让空间看起来更加“豪横”,通透让房子住起来更加舒服。

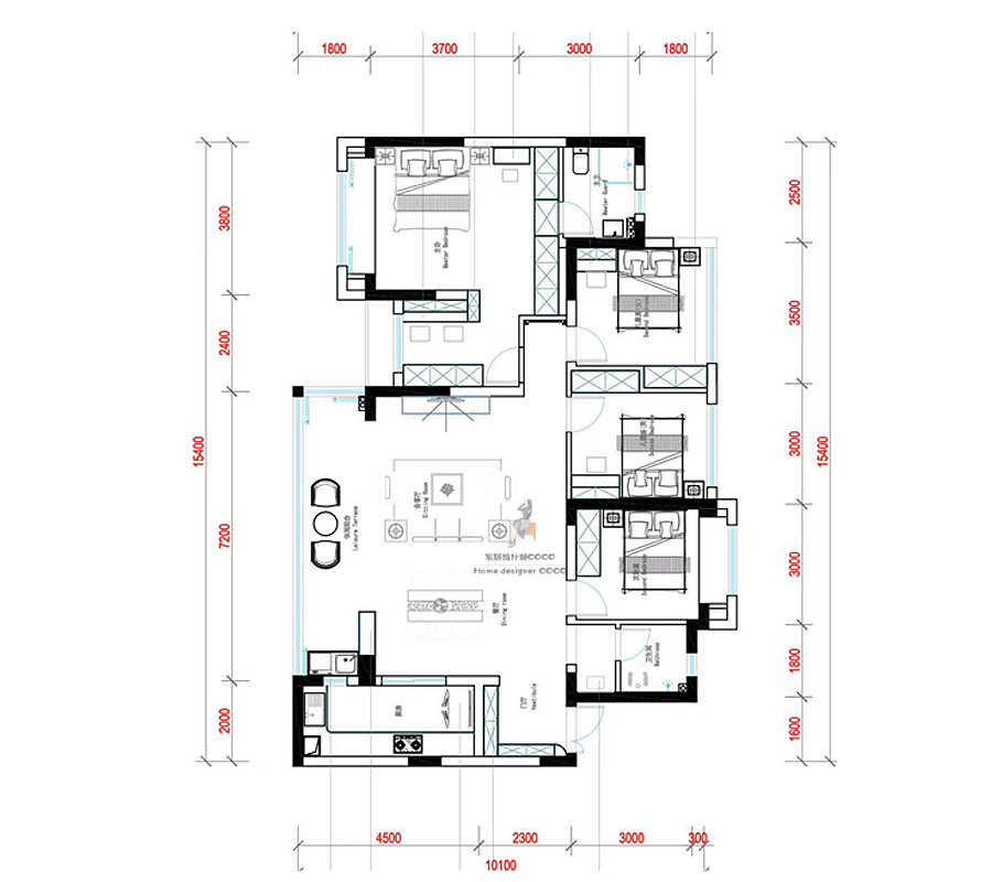
▲横厅户型的装修
横厅的房子住起来有多爽,也许只有住过的人才知道!
客厅与餐厅一体化的设计,就算你的户型不大,一进门看到那么宽敞的空间,也会感觉像是一个大“豪宅”。
横厅堪称小户型的一个“bug”,可以混淆人的视觉感受。

▲通透的房子
如果横厅加上通透,就具备一个满分户型的最大的两个条件,通透的房子不仅仅是通风,光线也会得到互相的补充,让整个共同空间显得非常敞亮。

▲南北通透
客厅的窗户与餐厅的窗户,分别位于房子南北两侧,如果客厅和餐厅都带阳台,那么将会是更加完美的户型。
横厅的房子就一定是好户型吗?
我不这么认为!

▲横厅不一定就是满分户型
有的房子尽管是横厅的布局,但却不是南北通透,或者是“伪通透”,加上较短的“横距”和书房对厕所门,这一些小小的改动,就会让横厅的效果成倍折扣,虽然不算差的户型,但离满分却有一定的差距。
这样的户型只能算是65分及格户型。

▲不及格的横厅户型
有的户型虽然是横厅,但连“及格线”都达不到,像这个户型,客厅的朝阳位于阴面,阳光照射时间短,给人一种冰冷冷的感觉,加上不通透,住起来一点也不舒服。
这样的房子,单论户型来讲真的“不及格”。
满分户型:可横厅可竖厅的房子
对于房子可能横厅是时下最“潮流”的,但是不一定每个人都喜欢,而有的人就喜欢竖厅的布局。

▲可横厅可竖厅
这个户型就是一种可以做横厅也可以做竖厅的房子,拆掉父母间的墙改成书房,就可以实现客厅和书房的横厅效果。
堪称满分户型。

▲可横可竖的完美户型
这个户型的最大的优点就是可以去掉一个次卧,形成客厅+书房+钢琴区的超大三功能横厅,拥有一个非常大采光面积,是让房子舒服的前提。
但是这个户型的缺陷就是没有独立的玄关区。
满分户型:多阳台的通透户型

▲多阳台的户型
通透是户型的必要条件,而多阳台就是更难得的一个条件,阳台越多,生活的幸福感越高。
而且很多房子的阳台属于赠送或者半赠送面积,如果买房子,最少要选择双阳台的房子,一个用做休闲娱乐,一个用做洗衣生活区。

▲多阳台的户型
客厅拥有休闲阳台,餐厅拥有生活阳台,主卧配备花园式阳台,既可以在客厅享用阳光,也可以在卧室享用私人的阳光浴。

▲全阳台的户型
如果你一旦遇到全阳台的户型,就可以果断下手了,尽管有的房间是飘窗,但是依然不耽误在房间享用阳光的温暖。

▲单阳台的户型
例如这个户型,虽然也算是比较不错的户型,有独立的门厅、南北通透等优质条件;但是只有一个阳台,尽管这个阳台很大,但是休闲区和生活区混杂在一起,在视觉和心理上总归要打上一定折扣。
满分户型:朝阳空间多的房子
有的户型尽管有一些缺陷,但是拥有超多的朝阳面积,可以让房子享用更多的阳光,这样房子住起来,幸福感爆棚。

▲六开间朝阳
类似这种六开间朝阳的房子,是很稀有的,可遇不可求。
常规的房子,能拥有三开间朝阳或者四开间朝阳就算是不错的户型了。
80分户型:独立门厅+衣帽间
有的房子尽管存在一定的缺陷,但是仍然可以称为比较优质的户型。

▲80分的户型
一个房子如果不具备南北通透的基本条件,那么它最高只能算80分的优质户型。
这套户型拥有独立门厅、衣帽间、双卫、横厅等很多的优势,但是因为客餐厅位置无法得到北向的阳光而导致舒适度减弱。
所以这样的户型只能算80分左右的房子。
70分户型:“伪通透”的房子

▲“伪通透”户型
这种房子只能算是中规中矩的优质户型,有亮点也有缺陷。
超大的阳台,横向朝阳开间多,但是南北的通透感还要经过厨房,严重影响了餐厅的通风和采光,所以这种户型只能得70分左右,称为“伪通透”户型。
60分户型:南北狭长的房子
南北通透就一定是好户型吗?
答案是否定的!

▲60分户型
这个房子从通透角度来说,也算是南北通透,但是因为南北的距离太过于狭长,导致南北的光线和通风受到影响。
同时,客厅和餐厅中间的面积过度浪费,另外入户对厕所门,没有玄关区也是很大的一个缺点,但好处是这些缺点可以通过后期的改造来弥补。
不及格户型:缺陷明显

▲不及格户型
这是一个我以为不及格的户型,尽管它拥有一个面宽较大的客餐厅。
这是一个东边户,最大的缺陷是横厅的布局位于东侧,享用阳光时间较短,朝阳的面积只有两个卧室,空间不通透。

▲不及格户型
这个套户型之所以不及格,主要是因为朝阳的空间只有一个客厅和一个卧室。
而且南北过于狭长,缺乏门厅、衣帽间等高级功能区。

▲不及格户型
入户无玄关,进门冲厨房,而且入户的右手侧面积利用十分不合理,餐厅对着厕所,明明是个不小的户型,但看起来却非常的拥挤。

▲不及格户型
“不及格”户型,最经典的就是这种“手枪型”的房子,整个空间只有一个卧室朝阳,而且还需要晾晒衣物。
入户冲餐厅,没有高级功能区,客餐厅在天气不好的情况下,还需要开灯才能满足日常的生活。
总结:房子的好坏虽然不能全看户型,但是户型决定是关键所在,一个户型如果具备:南北通透、横厅、独立门厅、多阳台、多空间朝阳、多卫、独立衣帽间等高级功能区,那么从户型角度讲,它可以称为满分户型。
如果你的户型缺少其中的一个条件,那么你可以相应地进行扣分,快来参考给你的房子打打分吧!
COCO在文章中讲的这些户型,当然也不是绝对的因素,如果你的房子足够大,位置足够好,房价足够便宜,哪么户型的重要性就无限的缩小了。
