
1
招标概况
项目名称: 上海黄金交易所深圳运营中心项目
招标项目名称: 上海黄金交易所深圳运营中心项目设计
工程类型: 设计
招标方式: 公开招标(接受联合体投标)
(备注:将视报名情况,投标报名截止时间可能顺延)
2
重要提示
报名投标者请及早在住建局办投标员卡等相关事项。欲报从速!
报名链接(点击文末“阅读原文”即可):
https://www.szjsjy.com.cn:8001/jyw/jyw/zbGongGao_View.do?ggguid=edcef131-0fdf-4d43-a2fa-83eafcf70ad3
3
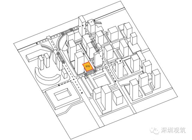
项目信息
上海黄金交易所深圳运营中心项目工程地址位于福田区民田路西侧。

项目由上海黄金交易所出资,计划投资2.5亿元人民币(暂定),兴建灾难备份、金库及运营用房,总用地面积为5581.12平方米(其中建设用地2804.72平方米,广场用地2776.4平方米),总建筑面积暂定25000平米,其中计入容积率建筑面积不超过14000平方米(含地上办公10000平方米,地下金库2500平方米,地下商业1500平方米),建筑高度不超过24米,容积率不超过1.79,建筑覆盖率不超过90%。

4
注意事项
投标人须提前办理以下事项,否则投标将不予受理:
(1)参加勘察、设计和施工图审查工程的企业必须提前办理企业信息备案,办理流程详见深圳市住房和建设局网站(WWW.SZJS.GOV.CN)“办事指南”18.11《深圳市勘察设计企业信息备案办理和更新指南》。
(2)办理信息卡及投标员指纹采集,办理流程详见深圳建设工程交易服务网(WWW.SZJSJY.COM.CN)“办事指南”中《深圳市建设工程货物与服务类企业办理信息卡、投标员指纹采集指南》。
(3)办理金建数字证书和电子招投标服务,办理流程详见深圳建设工程交易服务网(WWW.SZJSJY.COM.CN)“办事指南”中《数字证*办理书**指南》和《电子招投标服务申请办理指南》。
5
招标人及招标代理
建设单位: 深圳市住宅工程管理站
经办人: 谭时卓
办公电话: 83942052
6
项目主办
深圳市建筑工务署
深圳市住宅工程管理站
深圳市建筑工务署是市属正局级行政管理类事业单位。主要职能包括:负责市政府投资建设工程项目<水务和交通工程项目除外>的资金管理;项目前期审批事项报批、招投标管理、预决算和投资控制管理;政府公共房屋本体结构性维修工程的监督管理;对部分适合的建设项目策划实施代建制。深圳市住宅工程管理站是深圳市建筑工务署直属机构。
7
建设项目
-
深圳大运中心(总投资约45亿)


-
南方科技大学(一期)(总投资约12.6亿)


-
深圳创业投资大厦(总投资约6.5亿)

-
香港中文大学(深圳)一期(总投资约18亿)

更多信息请关注:
深圳市建筑工务署网站以及微信公众号
报名点击:阅读原文
爱设计
爱生活
分享国内外竞赛资讯
分享优秀设计作品
DC
设计竞赛
微信号:sheji-jingsai
小编微信(入群):1805481152