
设计说明:
素雅大方的民宅设计,中式民居融合现代设计手法,既舒适又时尚,住在这啊,想不幸福都难!
案例基本信息
☑ 占地尺寸:12x16m
☑ 建筑面积:310㎡
☑ 建筑情况:5室2厅5卫1厨2书房3衣帽间1洗衣房
☑ 建筑结构:砖混结构
☑ 造价估算:36万
平面图
一层前后设计有入户门廊,前面门廊设计与花池相连,让这栋温馨朴素的民居建筑显得更加温暖。

▲ 一层平面图
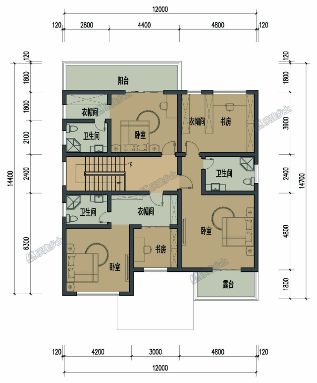
二层的居住空间也非常人性化,三间衣帽间为日常生活提供了便利,东侧豪华套间,体现业主对品质生活的追求。

▲ 二层平面图
立面图

▲ 北立面图

▲ 东立面图

▲ 西立面图
我们对于房子始终就有着一份特殊的情节。房子更是“家”的一个载体,它是温暖的、维系着一家人亲情的地方,无论它是什么风格,都因“爱”而最美!
乐建乡土——最贴心的乡村建房服务平台!
【专业问答】-【免费图纸】-【定制设计】