装修案例看多了才明白,往往越高级的效果越简单,所谓大道至简是也。
而今天要分享的案例也是如此。房子130㎡,位于浙江杭州,屋主一对年轻时髦的夫妇,育有一个孩子,装修上,笃信大道至简的他们,采用了大量的“留白”设计,因而尽管看起来简单,也没有什么造型,但效果出来却有藏不住的高级感,实在是太美了,不信给大伙介绍一下吧。
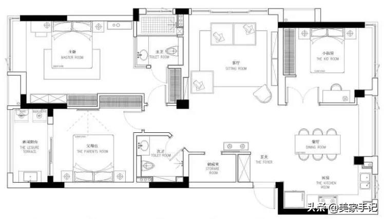
平面图

这是这套房的平面布置图,由于整体结构一目了然,这里就不再赘言了,大家自行参考皆可。
入户

现在看实景。推门而入是玄关,左侧定制了一组顶天立地的白色鞋柜,满足收纳需求的同时,也可以弱化体积感,并看着干净纯粹,令人赏心悦目。
餐厨


餐厅右转就到了。装修上,这里直接摆放质感温润的木质餐桌就可以了,并搭配简约时尚的餐椅,结构轻巧灵活,颜值很高。其它是对面的餐厅墙,选用马赛克样式的米老鼠装饰画,给留白的空间增添了一丝活力,不然显得过于单调。

屋主喜好烹饪,原来的厨房空间又过于狭小,便打通做成了开放式,这样显得开阔明亮多了。需要补充的是餐厅收纳,为了提高利用率,就靠窗设置了地柜+操作台的形式,这样既满足了储物需求,也能作为西厨使用。



这是中厨细节,简约的橱柜做了凹凸感的模压框架造型,看着有层次感多了。其它是右侧的嵌入式冰箱和勾连西厨所形成的超7.2米长的操作台。

有些人担心开放式的厨房油烟外溢怎么办?答案是选择吸力强劲的好点抽油烟机就可以了,尤其集成灶,然后再做好预防,一般都没有问题。

预防的话有两种,一种是装修前学日式住宅那样,装上一层珐琅板作为防溅墙,这样油烟不容易附着,而且污渍什么的用抹布轻轻一擦就能搞定。

另外一种方式就是贴上防油烟贴纸,不仅好用不贵,而且装饰效果极强,加之防油防潮的同时还耐磨耐高温,贴到墙砖、橱柜以及操作台上都没有问题。
当然,这里还是建议尽量不做开放式厨房。
客厅


效果看起来极其简单,除了灰色的地砖,背景墙和顶面都采用了“四白落地”刷白漆的方式,再搭配柔软舒适的沙发椅,就有了大道至简的留白效果,难怪说高级感藏不住,真的太美了。


布局方面也蛮有新意,采用了去客厅化的设计,所以我们没有看到电视墙,所以说现在的年轻人一个是不热衷看电视,所以敢于大胆创新,再一个家是自己的,所以怎么舒适怎么来。有些人疑惑,影音方面的需求该如何?答案是预装投影仪就可以了。至于对面是一排半高的成品斗柜,主要用于藏书和收纳饰品摆件及杂物为主,如此客厅也是一个舒适的阅读区。

没有买茶几,中间预留了开阔的地方作为未来孩子活动的地方。


需要补充的是家具,沙发非常灵活,既可单独拆分出来作为椅子,也能并排组合起来一座落座。而背景墙的话有一道凹槽,做了层板并摆放装饰画,这样可以增强层次感的同时,丰富空间效果。而绿植的点缀,则为这个家注入了源源不断的生机与活力。


换一个角度是对面的储藏室和客卫,前者以谷仓门为主,看着耳目一新颜值高,后者以透光不透形的磨砂玻璃门为主,通透和隐私都得到了保障。

另外为了提高利用率,过道走廊上摆放了一款收纳小推车,因为灵活可移动,除了可以取代茶几用来收纳杂物,充当沙发两侧的边几柜以及床头柜都可以的,不过最常见的还是用于厨卫犄角旮旯的空间,用来收纳调味料和洗浴洗漱用品。

梳理一下,这个是客厅全景,干净纯粹的效果令人非常解压。
主卧


一共三间房,这间是主卧,硬装上延续了之前干净利索的风格,基于此这里就不多讲了。值得一提的是床头墙,适当采用深色调看起来会更加有质感。

床头左侧高低错落的Z字形悬空柜,既可以解决手机和充电线等杂物的收纳,也能作为梳妆台使用的同时,便于清洁打理卫生。

床尾的话是白色免拉手的衣柜,好处在于整体性更强,看着犹如裹上了饰面板的背景墙,美观大方有富有质感。至于飘窗为木质台面,并选用百叶窗帘,这样闲暇时分坐在上面放松观景真的太惬意了。

床头右侧摆放了一款简约高颜值的成品斗柜来满足日常生活物品的收纳。

换一个角度是对面的主卫,为了增强通透感,上半部分采用了透明可视的玻璃材质作为隔断。另外就是右侧位于主卧进门走廊的另外一组衣柜,如此一个男用,一个女用,显得更加干净整洁。
次卧




次卧作为父母房,在硬装上保留了留白的设计,再摆放黑色铁艺结构的卧室床,加上柔软舒适的床品,效果也不错。其它就是附带的阳台,主要解决衣物清洗和晾晒的问题。

右侧是床尾背景墙,向与之相邻的主卧挪动一段距离,从而借用部分空间才定制的衣柜。
儿童房


儿童房和主卧差不多,这里就不多讲了。



这是走廊前后两侧的效果。
卫浴


主卫为左洗漱、右马桶,对面是淋浴房的格局。

洗漱台细节,一体式的台盆颜值高,也便于清洁打理。底部的话没有浴室柜,直接置物隔板代替,放些常用的洗漱用品足矣。

马桶为壁挂式,底部悬空看着轻巧灵活,重要的是减少了与地面的接触,这样就不用使用玻璃胶填充,不然的话容易发霉变黑。

当然,若是装了普通的落地式马桶,且考虑到厨卫水渍较多,可以在家中常备一款除霉啫喱,各种犄角旮旯的空间,包括洗衣机和冰箱的硅胶圈处发霉,都可以用它来解决。


最后是客卫,洗漱台底部悬空虽然没有储物空间,但清洁打理变得方便了很多,至于收纳,有一直延伸到马桶上方的镜柜就可以了。至此本案就分享到了这里,感谢大家阅读。(注:本案文字原创,图片来源于@墨菲空间设计,如有侵权,请联系删除)
想了解更多精彩内容,快来关注@美家手记