对衣帽间的需求是不分男女的,任何人任何家里,都想要一个单独的衣帽间。怎么去实现,需要根据自家的设计去进行,不论大小如果用心的话,都可以实现。今天通过实例看看别人家都是怎么做到的。< 点击图片都可以放大 >
1
移动墙体以及门洞实现


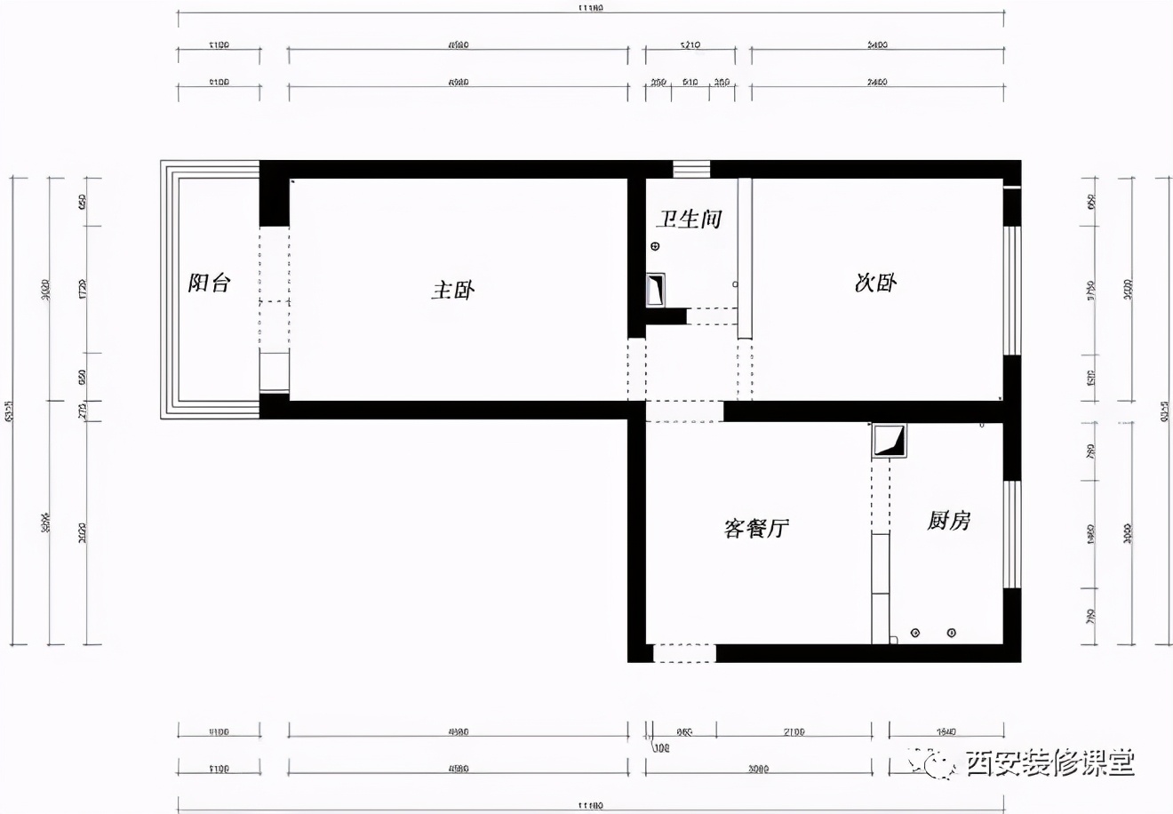
▲如图很普通的两室空间,竟然 实现了两个衣帽间 。主卧移动厨房墙体实现,次卧移动门洞实现,虽小,但是都有了功能。


▲左图为主卧装修后实景,不仅实现了衣帽间,而且旁边采用薄收纳柜的定制,关上门以后视觉上是个整体空间;右图为次卧衣帽间,移动门洞以后实现,采用灰玻移门设计,里头不仅满足儿童房衣物的收纳,同时满足所有玩具的放置
2
一个区域三个功能


▲这是一套两室变三室的户型,而且主卧改造,同时兼顾客厅,主卧以及衣帽间功能,采用上下铺的灵感,把主卧放到了衣帽间的上头,这样下方剩余空间还可以作为客厅使用


▲装修后的实景,一个主卧,进门后下方是步入式衣帽间,衣帽间上方是床铺睡人,剩下的区域作为客厅使用;一个区域完美实现了三个空间的功能
3
公寓房成就两室还有衣帽间


▲普通公寓房,不仅分割出两个卧室,同时还实现了一个衣帽间。

▲装修后的实景,缩小卧室空间,腾出客厅区域,同时利用客厅局部实现一个步入式衣帽间
4
移动两个卧室门,挤出一个衣帽间


▲如图,想要成就一个衣帽间,改变了两个卧室的入门位置,挤出一个很小的衣帽间,而且还实现了采光的通透

▲装修后的实景,原来两个卧室门并排,改变位置以后,在两个卧室的夹角实现一个衣帽间,让格局和采光都得到提升
5
只要卧室大,衣帽间都会有


▲这个就比较简单了,只要卧室够大,都可以单独分割一个衣帽间的,如图利用卧室的拐角位置实现衣帽间空间,其实这样的做法有一个弊端,会让空间变得更小


▲装修后的实景,有了衣帽间,进门后还可以做一组衣柜,虽小但是有了。

▲但其实还有一个 更好的做法 ,直接定制 L型拐角衣柜 ,完全满足一个衣帽间的存储量,最重要的是不会缩小空间,让卧室更大,更敞亮
6
缩小厨卫成就衣帽间


▲改变卫生间位置,缩小厨卫以后,成就一个小的衣帽间,而且还间接成就各个空间的采光

▲装修后的实景,L型衣帽间,刚好遮挡卫生间门,衣帽间的采光也变得通透
7
主卫变客卫,砸掉阳台成就衣帽间


▲主卫变客卫,同时砸掉阳台缩进主卧空间,实现了主卧衣帽间的收纳

▲装修后实景,为了节省空间,衣帽间采用长虹玻璃移门,颜值也高
8
卫生间改衣帽间没有难度,只有风险


▲如图牺牲主卫空间改衣帽间,没有什么难度,唯一就是风险,如果是顶楼可以随便改,其他楼层还是谨慎

▲装修后实景,主卫做了衣帽间,L型布局衣柜定制,管道也利用衣柜隐藏了,刚好窗户满足采光
9
采用分割衣帽间成就进门玄关


▲入户门居中,分割两边客餐厅,这种户型很多,如图借用做衣帽间,不仅实现进门玄关,而且让户型的动线变得更合理

▲装修后实景,突出做衣帽间分割了空间,同时成就进门玄关,而且让动线更合理
