11米农村二层别墅多少钱 (11款一层农村别墅)

新的一年,新的开始,随着2018年中央一号文件的公布,乡村的发展前景也越来越好。农村户口真真是身价倍增!今年小编也发现越来越多的人选择在农村建房了。小编收到很多留言咨询一层自建房的。今天小编就专题分享一层的自建房给大家吧!

01编号: DC0371

层数: 一层

结构形式: 砖混结构

主体造价: 18-22万

开间: 14米

进深: 11米

占地面积: 158.6平方米

建筑面积: 188.6平方米

农村一层100平方轻钢别墅要多少钱,11款一层农村别墅

农村一层100平方轻钢别墅要多少钱,11款一层农村别墅

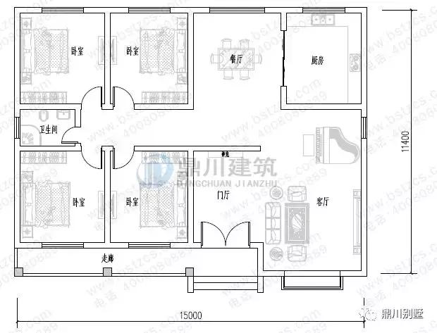
02编号: DC0369

层数: 一层

结构形式: 砖混结构

主体造价: 16-20万

开间: 15米

进深: 11.4米

占地面积: 177.39平方米

建筑面积: 217.03平方米

农村一层100平方轻钢别墅要多少钱,11款一层农村别墅

农村一层100平方轻钢别墅要多少钱,11款一层农村别墅

03编号: DC0350

层数: 一层带阁楼

结构形式: 砖混结构

主体造价: 18-22万

开间: 17.4米

进深: 12米

占地面积: 186.56平方米

建筑面积: 235.58平方米

农村一层100平方轻钢别墅要多少钱,11款一层农村别墅

农村一层100平方轻钢别墅要多少钱,11款一层农村别墅

04编号: DC0302

层数: 一层

结构形式: 砖混结构

主体造价: 25-30万

开间: 19.8米

进深: 13.8米

占地面积: 243.56平方米

建筑面积: 346.94平方米

农村一层100平方轻钢别墅要多少钱,11款一层农村别墅

农村一层100平方轻钢别墅要多少钱,11款一层农村别墅

05编号: DC0264

层数: 一层带阁楼

结构形式: 砖混结构

主体造价: 15-20万

开间: 13.8米

进深: 12米

占地面积: 138.15平方米

建筑面积: 202.41平方米

农村一层100平方轻钢别墅要多少钱,11款一层农村别墅

农村一层100平方轻钢别墅要多少钱,11款一层农村别墅

06编号: DC0249

层数: 一层带阁楼

结构形式: 砖混结构

主体造价: 14-18万

开间: 13.2米

进深: 12米

占地面积: 153.38平方米

建筑面积: 187.85平方米

农村一层100平方轻钢别墅要多少钱,11款一层农村别墅

农村一层100平方轻钢别墅要多少钱,11款一层农村别墅

07编号: DC0237

层数: 一层带阁楼

结构形式: 砖混结构

主体造价: 10-15万

开间: 16米

进深: 9.3米

占地面积: 145.38平方米

建筑面积: 267.99平方米

农村一层100平方轻钢别墅要多少钱,11款一层农村别墅

农村一层100平方轻钢别墅要多少钱,11款一层农村别墅

08编号: DC0220

层数: 一层

结构形式: 砖混结构

主体造价: 15-18万

开间: 16.2米

进深: 12.5米

占地面积: 183.25平方米

建筑面积: 236.72平方米

农村一层100平方轻钢别墅要多少钱,11款一层农村别墅

农村一层100平方轻钢别墅要多少钱,11款一层农村别墅

09编号: DC0189

层数: 一层带阁楼

结构形式: 砖混结构

主体造价: 16-20万

开间: 14.04米

进深: 11.34米

占地面积: 144.36平方米

建筑面积: 210.69平方米

农村一层100平方轻钢别墅要多少钱,11款一层农村别墅

农村一层100平方轻钢别墅要多少钱,11款一层农村别墅

10编号: DC0158

层数: 一层

结构形式: 砖混结构

主体造价: 9-12万

开间: 15.5米

进深: 9米

占地面积: 133.2平方米

建筑面积: 178.14平方米

农村一层100平方轻钢别墅要多少钱,11款一层农村别墅

农村一层100平方轻钢别墅要多少钱,11款一层农村别墅

11编号: DC0070

层数: 一层

结构形式: 砖混结构

主体造价: 10-13万

开间: 11.1米

进深: 9米

占地面积: 91.94平方米

建筑面积: 104.13平方米

农村一层100平方轻钢别墅要多少钱,11款一层农村别墅

农村一层100平方轻钢别墅要多少钱,11款一层农村别墅