房子240㎡,是一套不折不扣的大平层,往往这样的家,很多人会刻意追求豪华的装饰效果,但业主没有,反而以现代极简风为基础,既不将就,也不刻意追求豪华,没想到即使这样还是装出大宅范,真的太美了!就忍不住晒晒。

原始结构图

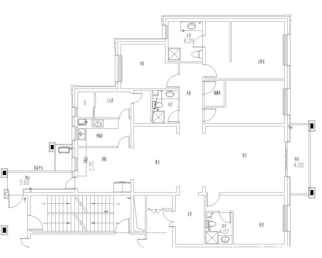
平面布局图
装修这套房的时候,业主已经有个5岁大的宝宝,有考虑要二胎,所以四房的格局差不多正好,一间主卧留给自己,一间儿童房,一间婴儿房,外加一间父母房兼临时客房。改动的话其实也有,那便是舍弃了餐厅,然后作为亲子互动区为孩子做准备,厨房的话将中西两个不同的烹饪区外加工人房全部打通,然后变为开放式结构,一来空间变得敞亮大气,二来也能设中岛餐桌解决吃饭的问题。

推门而入是玄关,为了打造端景墙的迷人效果,摆放了一款精致的成品柜,加上台面的摆件以及背景墙上的装饰画,无疑让回家有了一种浓浓的仪式感。

一般来说入户的格局因为有隔墙的阻挡,导致采光不是很好,基于此业主定制白色的免拉手柜子,这样不仅显得干净纯粹,而且具有提亮空间的作用。有些人心想柜子会不会多了点?其实这点也是根据业主的需求来的,男主是民航机长,女主是空姐,平时进出门的时候可能会用到相应的制服,而顶天立柜刚好就能解决这个收纳问题,无疑让居家生活方便了很多。


来到客厅。能够发现现在越来越多人不再做传统意义上的装饰性电视墙,而是改以整墙的柜子为主,如此实用大气不说,而且不留清洁死角特别好打理。至于基本的影音需求,在柜子中间预留摆放电视机的凹槽或者安装投影仪就可以了,所以说学他家这么装全屋实用倍增!右侧是沙发墙,以经典的灰色面漆为主,结合拉平的吊顶,极简风的气息十足,面对这样的效果加上柔软舒适的沙发和座椅,真的能让人在回到家的那一刻无比放松。(极简风并不等同于简单装修,这点请知悉)

电视墙预留部分开放式的收纳区,放些使用频次高的东西从而便于拿取。色调的话利用黑色和白色作为对比,这样显得有层次感。

茶几选用爵士白的大理石结合黄铜色的支脚整体显得轻奢时尚。


中间这个是走廊,而左侧是亲子互动区,前面我们已经说过这里的原始结构为餐厅,只不过考虑到有个5岁大的男宝以及将来的二宝,就开辟了这么一处空间,以后无论是让两个孩子在这里活动,还是在父母的陪伴下做游戏都是可以的。至于懒人沙发采用了蓝色的丝绒材质,能够提升整个空间的品味。

这个是折叠展示架,用来放书可以陪伴孩子阅读让其爱上学习,此是其一,其二摆放一些展示品也是可以的,总之关键看需求。

厨房打通中西烹饪区以及工人房的隔墙然后,变为了开放式的结构,再餐厨一体化实用不少,毕竟左侧的岛台餐桌就可以解决吃饭的问题。当然这也是男主的需求,想要一个大大的厨房来施展自己的厨艺,女主的话希望收纳空间要多,所以对面的蒸烤一体机以及冰箱的右侧还分布着一个储物间。

另一面是西式水吧台,柜子中间预留了尺寸得当的操作台,平时用来泡茶以及研磨咖啡啥的很方便,当然烹制一些简单糕点也是可以的。左侧的话,过道背景墙还嵌入了一个显示器,吃饭、下厨时用来解闷差不多正好。

对面是沙发墙右侧的柜子,之所以这么做一来提高利用率,二来不至于让家显得太过空荡,因而具有一定的装饰效果。

补充一个细节,由于没有实景图就只能通过平面图来向大家展示了,那就是走廊有个储物间。

考虑到男主喜欢手办,就做了两点改动,一个是砸掉走廊右侧的隔墙然后用玻璃柜来替代,这样收藏手办以及展示手办的地方都有了,另一个是把储物间纳入到主卧中来变为衣帽间,这样男女的衣物分开来收纳使用效率会更高。


主卧背景墙用温馨素雅的壁纸打底看着很舒服,而床头左侧的梳妆台很精致,加上深色的靠背以及柔软舒适的床品,整个空间落落大方适合休息。


床尾是一款小书桌。硬装的话延续了之前的风格拉平吊顶看着大气。

婴儿房的氛围很活泼。

这是第三间卧室,整体风格和之前保持一致,不过黄铜色的靠背看起来更有质感。

最后是一些细节。至此本案就分享到了这里,尽管是240㎡的房子,但丝毫没有浮夸的效果,反而以极简风打造了一个高品位的时尚大宅,希望大家喜欢,谢谢!
项目地址:武汉
项目设计:设计师刘盈杉
想了解更多精彩内容,快来关注@美家手记