人是在什么时候对一座城市有了归属感呢?
是在拼搏中梦想逐渐绽放,
从一个人的坚强到两个人携手的幸福治愈
是在夜幕中看着万家灯火,
这条路的某一处也有一盏为自己亮着的灯
是在归家时推开门的刹那,
耳边传来的稚嫩声音“爸爸/妈妈回来啦”.......

上述的归属感,恰恰就是今天要讲的案例中业主夫妇的心境,他们在中山市拼搏了8年,收获了爱与成长,凭着努力,终于在顺景壹号院拥有了160平方米的三居室。

业主的需求很明确,重视 “空间细节设计带来的舒适感” 。就如女业主所说的,疲倦了,翻开一本书;口渴了,打开冰箱,在这里做的每件事都是那么自然。
家居生活的舒适感, 不仅仅外在设计的美观,还在于明确完善每个空间的功能分区。

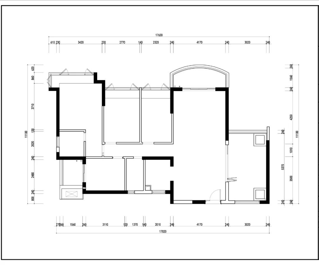
为了实现这样的期望,设计师先 将空间进行了如上的布局: 玄关与餐厅相邻,直走是客厅与阳台,左侧为静区,分别是主次卧、儿童房与主卫、公卫,右侧的动区则为茶室,并加建了一处阁楼为儿童娱乐区。

部分实景
从空间的每个细节上来看,玄关处是顶天立地的收纳柜,中部及底部空出,让日常收纳换鞋更加方便;

餐厅空间:餐边柜内嵌灯带,实用的照明作用。在木工进场前,事先量好了餐边柜与冰箱的尺寸,预留了合适的位置,实现了嵌入式冰箱的平齐效果,满足了业主的“既美观又能收纳”的需求。

客厅整体色调与整个房子保持一致,设计师使用 KD饰面板、岩板、大理石 等,打造出了以白色、木色、浅灰色为主色调的淡雅恬然空间。

再以软装点缀,突出细节上的亮点,比如沙发墙上的创意照明灯、餐厅与茶室的艺术灯、儿童娱乐区中带着云朵笑脸的窗帘,都实现了业主“ 简单又不失精致 ”的想法。




在施工上,按照业主的想法,“ 希望把普通的日子过得细致 ”,设计师充分发挥了华浔工艺的优势,保障隐蔽工程的质量。
比如 吊顶用轻钢龙骨制作 ,无须再单独进行特殊处理,减少装修污染,更加环保健康。而这种工艺安装出来的无主灯照明,也让整个空间看起来更加开阔通透。


历时六个月,在整个沟通过程中,业主与设计师由于在某些经历上的相似而相谈甚欢,作品最终的呈现效果得到了业主甚至工地检查保安的一致认可:“ 这个当时在整个小区施工的单位来讲,是效果最好的 ”。

在验收后,业主主动要求写下这个作品的设计说明,其中有这么一段话:
作为普通人,或许我们没有环游世界的资本,不能追逐到诗和远方,但可以把普通的日子过得细致。反反复复去琢磨家具用品的颜色和形状搭配,然后家里的每个物品摆设都有发生了属于TA的故事,然后存放在我记忆里。城市很大,霓虹闪烁地讲诉每天的故事。但我相信,最温暖的那盏灯,一定在我们回家的路上。

华浔的设计师也相信,通过设计,成为客户人生某个阶段的一盏灯,去照亮他们的生活,是一件十分荣幸又值得骄傲的事。