一、支架使用条件
1.1 煤层的赋存条件
2号煤为大部可采煤层,煤层厚度0~4.26m,平均厚度1.80m,可采煤层厚度为0.8~3.62m,平均厚度1.76m,属薄~厚煤层,以中厚煤层为主。标准差0.89,变异系数0.40,面积可采概率56%。122盘区首采区煤层厚度主要在1.5~2.0m,确定工作面采高为1.5~2.0m。
煤层顶板岩性主要为细粒砂岩、粉砂岩,次为泥岩或中粒砂岩;底板岩性主要为粉砂岩,次为细粒砂岩、中粒砂岩、炭质泥岩、砂质泥岩。
1.2 开采方法
采用综合机械化长壁采煤法,一次采全高,全部跨落法管理工作面顶板,工作面推进长度为2000m,工作面倾斜长度(实体煤)239.65m。
1.3 巷道断面
工作面运输巷(矩形):4.6×2.8m
工作面回风巷(矩形):4.8×2.8m。
二、工作面配套设备
采煤机: MG2x200/925-AWD
刮板输送机: SGZ900/1050
转载机: SZZ1000/315
*碎机破**: PCM200
皮带自移机尾:ZY2700
中间支架: ZY10000/11/22D
过渡支架: ZYG10000/11/22D
端头支架: ZYT10000/15/30D
三、支架技术参数
3.1 中部支架技术参数:
型 式 两柱掩护式液压支架
型 号 ZY10000/11/22D
高 度 1100~2200mm
宽 度 1670~1870mm
中心距 1750mm
支护强度(f=0.2) 0.91~0.97MPa
底板尖端比压(f=0.2) 2.6~3.4MPa
初撑力 7141kN
工作阻力(P=44.1MPa) 10000kN
操作方式 电液控制
推移步距 800mm
泵站压力: 31.5MPa
操作方式: 电液控制
工作寿命(循环次数): 不低于40000 次
推移行程: 900mm
◆立 柱: 双伸缩,2个
立柱内缸径(大/中): 380/270mm
立柱杆径(中/活柱): 360/235mm
◆推移千斤顶: 普通双作用,1个
缸内径/柱径 160/105mm
◆平衡千斤顶 普通双作用,1个
缸内径/柱径 200/140mm
◆侧推千斤顶: 普通双作用(内进液), 3个
缸径/柱径 80/60mm
◆抬底千斤顶 普通双作用,1个
缸径/柱径 125/95 mm

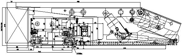
中部配套断面图
3.2 过渡支架技术参数
型 式: 两柱掩护式液压支架
型 号: ZYG10000/11/22D
高 度:(最低~最高) 1.1~2.2m
宽 度:(最小~最大) 1.67~1.87 m
中心距: 1.75 m
初撑力:(P=31.5MPa) 7141kN
工作阻力:(P=44.1MPa) 10000kN
对地比压:(前端) 2.5~3.2MPa
支护强度: 0.89~0.91MPa
移架步距: 800mm
泵站压力: 31.5MPa
操作方式: 电液控制
工作寿命(循环次数): 不低于40000 次
推移行程: 900mm
◆ 立柱、油缸主要技术参数同中部液压支架,顶梁加长。
3.3 端头支架技术参数
型 式: 两柱掩护式液压支架
型 号: ZYT10000/15/30D
高 度:(最低~最高) 1.5~3.0m
宽 度:(最小~最大) 1.67~1.87m
中心距: 1.75m
初撑力:(P=31.5MPa) 7141kN
工作阻力:(P=44.1MPa) 10000kN
对地比压:(前端) 2.2~3.0MPa
支护强度: 0.87~0.94MPa
移架步距 800mm
泵站压力: 31.5MPa
操作方式: 电液控制
工作寿命(循环次数): 不低于40000 次
人行道宽度: 大于600 mm
推移千斤顶行程: 900mm
◆ 推移千斤顶: 1个
型 式 普通双作用
缸内径/杆径 200/140mm
◆ 平衡千斤顶: 1个
型 式 普通双作用
缸内径/杆径 230/140mm
◆ 伸缩千斤顶: 1个
型 式 普通双作用
缸内径/杆径 100/70mm
◆ 端头架空顶侧加装翻转侧翻板;煤帮侧设计可拆卸的侧护板,增大侧护板的高度,起到护矸及密封与中部架间缝隙的作用。整个工作面配置各两个以上机构。
◆ 立柱、其它油缸、阀类、胶管和其它参数同中部液压支架相同
四、其它技术要求
4.1 控制及操作系统:采用电液控制系统。
4.2 设备入井前应取得中国国家煤矿安全标志证书和″MA″标识牌。
4.3 支架可适应工作面走向倾角±10°,工作面倾角±10°。
4.4支架的底座对底板的最大比压前端不超过 3.5MPa,平均不超过2.3MPa。
4.5移架有效步距 800mm,推移框架与刮板机的连接装置互相匹配。
4.6推移油缸和推移框架可在井下方便更换。
4.7支架设有抬底装置。
4.8侧护板为右侧活动,左侧焊死的结构形式。
4.9液压支架供液系统额定压力31.5MPa.
4.10液压支架装有喷雾系统,并由电液系*独统**立控制,保证煤机割煤后灭尘。
4.11所有大于60Kg的部件均设置起吊环或孔。
4.12支架四连杆轴孔名义间隙不应超0.75mm。
4.13支架最低位置时设有机械限位装置。
4.14支架顶梁和掩护梁最大夹角175°时设有机械限位装置。
4.15立柱底座柱窝加装阻燃防静电的BSC填充物。
4.16立柱出厂应带有可伸缩式保护套。
4.17支架过胶管的孔均有胶管护套,用以保护胶管不被磨损。
4.18支架电控与主控阀具有自动压力补偿功能。
4.19推移千斤顶推溜控制回路设液压闭锁装置,防止输送机倒拉。
4.20平衡油缸设差压双向液压锁并加装平衡油缸设安全阀溢流液体集中装置,安全阀流量400L/min。
4.21支架整体防腐,立柱要求采用烤漆工艺 。
4.22每架支架上均配备编号铭牌,支架上设计挂座。
4.23液压支架出厂前采取防冻措施,冬季免费加注防冻液。
五. 材料
5.1板材:Q690约占支架所用板材的80%;Q550约占支架所用板材的20%。
5.2液压缸:管材27SiMn、活塞杆27SiMn或40Cr;
5.3销轴:35CrMnSiA或30CrMnTi;
六.供回液系统管路及接头
6.1工作面采用双进双回环形供液系统,输送机电缆槽内安置一路主进回液管路;
6.2沿顺槽主供液管公称直径DN50mm,工作压力35MPa;主回液管公称直径DN65mm,工作压力16MPa;喷雾主供水管直径DN40mm。
6.3架间高压管公称直径DN40mm,回液管公称直径DN50mm;架内主进主回与主阀接口为DN25;电缆槽内高压管公称直径DN50mm,回液管公称直径DN65mm。喷雾系统架间管公称直径DN25mm。
6.4 顺槽供液系统需配备的胶管数量如下:
主供液管(DN50) 825m(15m×54根+5m×3根)卡箍连接;
主回液管(DN65) 825m(15m×54根+5m×3根)卡箍连接;
喷雾冷却供液管(DN40) 525m(15m×34根+5m×3根)。
6.5工作面端头第一架到乳化液泵站距离 200m。
6.6 顺槽供液管路应给转载机机头和胶带机尾留有供回液接口。
6.7 管路附件及管接头附件必须满足系统功能及密封要求。
6.8 所有快速接头的尺寸精度和表面粗糙度均采用德国DIN标准。