一套独特的现代中式,接近140平米的空间,通过韵味端庄的氛围搭配,在电视墙上加入意境的屏风,搭配上整屋的舒适精致的摆饰,搭配出一个独特的新中式格调。
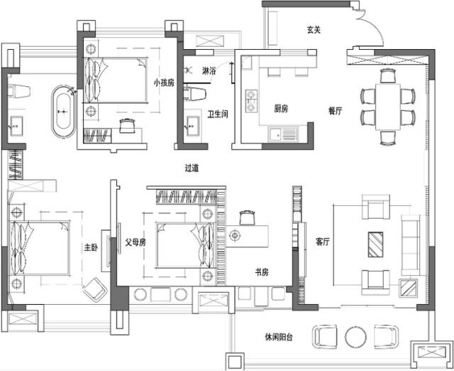
平面布置图

客厅
整个客厅以儒雅端庄的格调,在现代清新的空间基础下,搭配上中式的禅意细节,整体呈现出一个优雅端庄又高档大方的空间氛围;

电视墙中间的这个屏风,是个谷仓门结构的,可以向两侧推拉,而两侧的展示架则是摆满了禅意的花瓶摆饰,显得禅意韵味十足,茶几上的禅意插枝,结合2个小狮子,住在沙发上看到2个屏风上的意境图案,可以感受到满满的惬意与舒适;

餐厅
餐厅背景墙是个餐边柜+两侧展示收纳架,结合中间一幅鲜艳的装饰画,铁艺架+板块的吊灯,一套禅意端庄的餐桌椅搭配上一套茶具,整个餐厅都充满了禅意端庄的气息;

主卧
主卧整体空间以现代端庄的空间基础,加入一些禅意精致的软装与舒适的床单,整体给人以轻松大方的感觉;

次卧
次卧的床头以木饰板打造,中间对称挂上2幅方块圆心的叶子画,结合现代优雅的床单,圆形的床头柜,充满了优雅大方的氛围感;

床尾位置荷花图案的地毯,也为空间增添了几分禅意端庄的气息;

书房
书房的小飘窗,摆了一套茶台,打导致一个休闲禅意的空间;书桌两侧的收纳展示柜,黑色的柜体摆上优雅的摆饰,整体显得格外的舒适端庄;

书桌上的笔墨纸砚,可以看出主人是个很有品味的人;

儿童房
儿童房的床头贴着竖纹彩色壁纸,并装了个小搁架,摆着照片与可爱的摆饰,搭配上粉色调的床单、墙面显得童趣又浪漫;

厨房
厨房的墙面以独特的暖色调的水泥灰打造,整体空间感很是粗犷大方;同时在厨房还设置了小吧台,方便平时快速解决就餐问题;

阳台
休闲阳台,摆着2个落地大花瓶,整体空间显得格外的禅意精致。

↙ 5秒帮你算出家里装修价格, 戳原文链接
买了房不知道怎么装修?
推荐一个超赞的微信订阅号:绘本家居
长按二维码关注