今天分享的这组大平层户型,来自粤东地区的一个豪宅项目——锦峰璟玺高层区,共21幢42-53层超高层住宅。

项目鸟瞰图
户型图如下:

6、8栋01户型

6、8栋02户型

6、8栋03户型

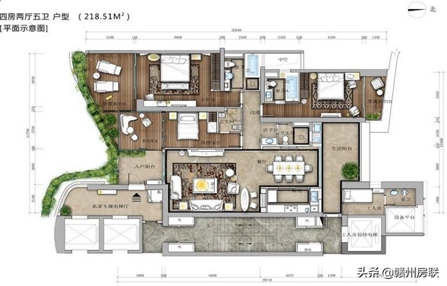
6、8栋04户型

6、8栋(43+44)复式04户型(首层平面图 )

6、8栋(43+44)复式04户型(天面平面图 )

4、7、9栋03户型

4、7、9栋02户型

4、7、9栋01户型

4、7、9栋04户型

6、8栋(43+44)复式04户型二层平层图

4、7、9栋05户型
有你喜欢的吗?欢迎留言讨论~
今天分享的这组大平层户型,来自粤东地区的一个豪宅项目——锦峰璟玺高层区,共21幢42-53层超高层住宅。

项目鸟瞰图
户型图如下:

6、8栋01户型

6、8栋02户型

6、8栋03户型

6、8栋04户型

6、8栋(43+44)复式04户型(首层平面图 )

6、8栋(43+44)复式04户型(天面平面图 )

4、7、9栋03户型

4、7、9栋02户型

4、7、9栋01户型

4、7、9栋04户型

6、8栋(43+44)复式04户型二层平层图

4、7、9栋05户型
有你喜欢的吗?欢迎留言讨论~