本期为大家分享的这套案例来自以色列,看到这套装修的第一眼,就让我有种眼前一亮的感觉。这个”亮“包含有三层含义,一是视觉上的明亮,二是空间上的敞亮,三是设计上的亮眼,它们三者相互配合,将这套房子展现得实用好看,又别具一格,非常值得参考!

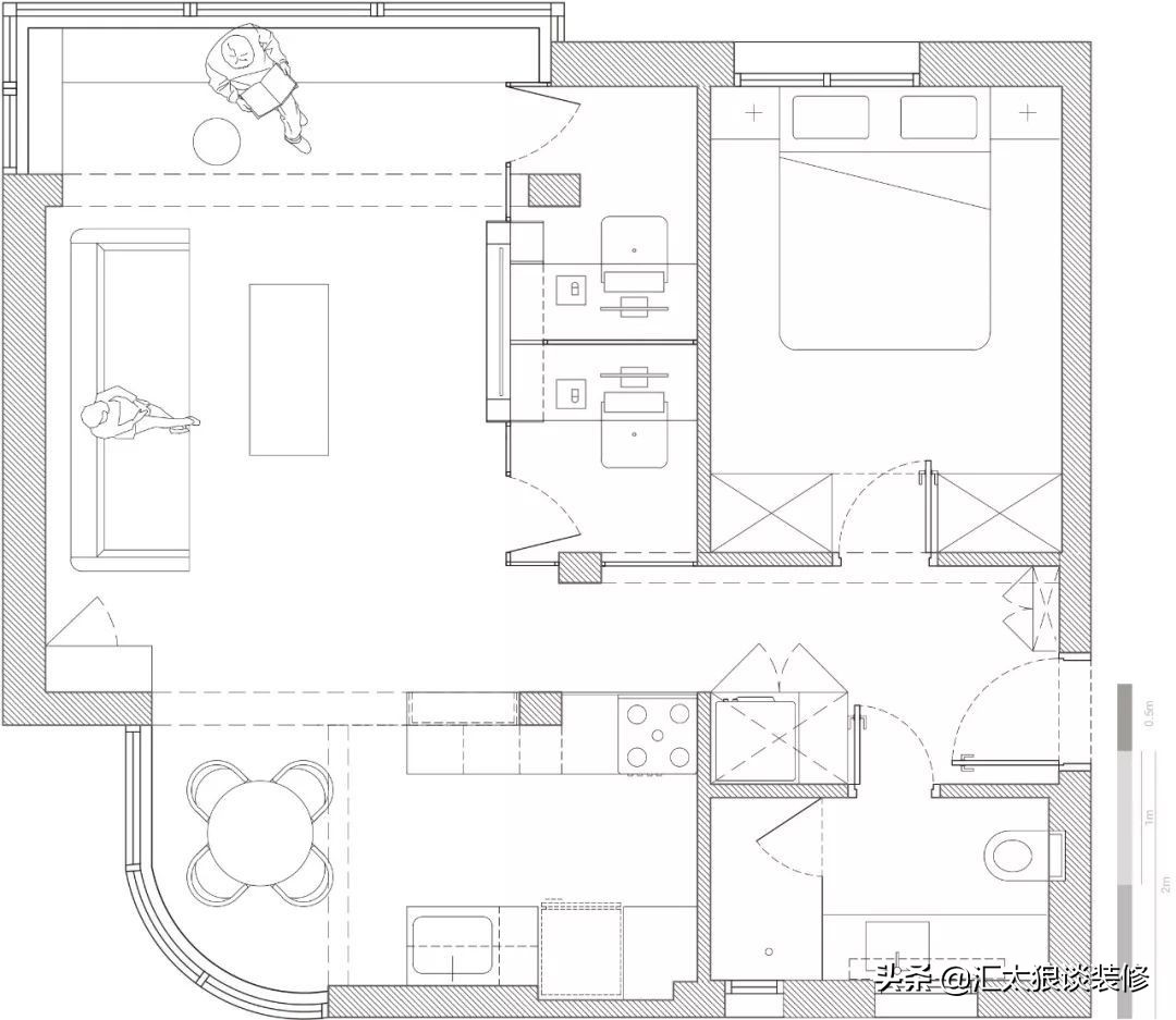
平面布置图
这套房子的使用面积只有53平米,屋主是一对在家办公的年轻夫妻,所以,这套房子需要兼顾办公和居家两种模式,而两种模式之间,需要有明确的空间划分,并能保障基本的私隐问题。对于设计师来说,最需要解决的问题就是,如何在空间这么小,又不能大拆大改的前提下,将屋主需要的各种功能都能填充进去,且能保证室内的明亮整洁,并尽可能地提升舒适度。
于是,整个空间被分成了三个部分。门口处是包含 卧室、卫生间和衣帽间在内的私密区域,往里走则是客餐厨一体的公共区域,而办公区域,则位于这两个区域之间,这就很好地满足了屋主对于功能划分的需求了。一起来看看内景如何吧!

玄关
女主所站的位置 ,就是位于卫生间门口的衣帽柜,从图上,还可以看到大门右侧有一个中间镂空的鞋柜,白墙、木地板配上黑色筒灯,进门就感觉很干净利落。

卫生间

卫生间
卫生间的墙面和地面,分别采用小白砖与灰砖铺设,搭配原木色的洗手台和镜柜,将卫浴区衬托得格外地清新自然。这个镜柜的设计也颇有心机,它的门板是推拉式的,推到窗户这一侧,刚好可以挡住它,就不需要再另外配窗帘了。这个小设计,不仅让室内显得清爽利落,采光也更自由!

卧室
这是卧室,因为房内空间比较窄,所以衣柜就设计成了一个以房门为中心的倒U字形结构。白色的柜体与浅米色的墙面衬在一起,显得非常的温馨清爽。对面那个黑色的门,便是卫生间的门,门上开了一个透光窗,让室内更亮堂。

卧室
床头背景墙上,用黑色线条做了个简单的造型,与白色的百叶窗衬在一起,显得十分和谐。虽然内里空间不算很大,但功能充足,清爽利落,私密性更没问题,总体来说,还是很实用的。

厨房

厨房
厨房这边拆掉隔墙后,保留了原始的墙柱,并沿柱子定制吊柜和地柜,使厨房与过道明确区分开了。裸露的混凝土柱子与悬吊着的厨具衬在一起,有一种别具一格的美,非常显气质。

厨房

厨房
厨房呈双一字型设计, 一边是水槽区和电器柜,一边是料理区和烹饪区,操作空间和储物空间都非常地充足,少掉实墙的阻隔后,整个空间都变得特别的敞亮。

餐厅

餐厅
餐厅设在阳台区域,与厨房和客厅呈一体式设计,从客厅处望过去,眼前明亮清爽,让人赏心悦目。餐厅与客厅之间,还设计了一个双面的书柜,既充当了隔断的作用,又增加了实用性。

客厅

阳台
镜头一转,看到客厅这边的场景,简直让人惊艳极了。弧形的垭口造型,不仅放大了视觉空间,还像一双张开的手臂一样,将外面的光线通通揽入了它的怀里,将室内照得明晃晃的,让人觉得浑身舒坦。设计师还沿窗台下方定制了一排卡座,既能当休闲凳子用,又能增加储物容量。
沙发对面的电视背景墙,也是一大亮点,它是将电视柜卡在玻璃门内的,这个柜子是双面的,背后那一面,则是书柜。

工作区

工作区
电视背景墙后方,是两个面对面的工作区,它们是由铁架与玻璃墙围合而成的,既相互独立,也可以将中间的窗户打开,让两个空间的人,可以互相沟通。
看了这套装修后,你是否有跟我一样的感受呢?