【 目 录 】
(1)复地御香山 - 硬装完工
小科普:木蜡油和清漆的区别是什么?
(2)凯德世纪名邸 - 硬装完工
小科普:隐形门使用时间较长后会出哪些问题,如何解决?
(3)光明城市 - 硬装完工
小科普:水泥饰面板的注意事项
(4)成都花园 - 水电改造
小科普:哪些情况强弱电会出现干扰?

Fu Di Yu Xiang Shan

■ 面积 | 户型 | 类型
141㎡,3室2厅2卫,毛坯房
■ 设计负责 | 施工负责
独立设计师谢秉恒,造梦家土豆


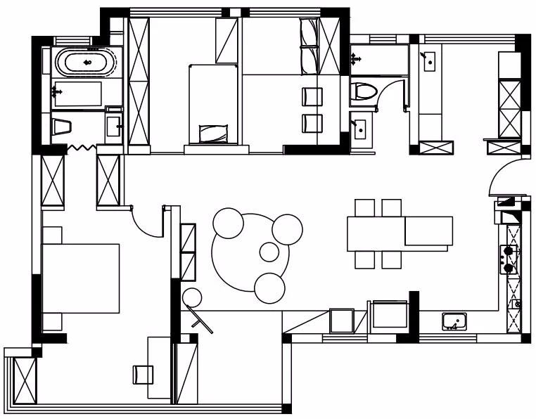
Plane layout 平 面 布 局 图 ▲

Construction Site 施 工 现 场 ▼


硬装完工 —— 玄关现场形象呈现






硬装完工 —— 各个区域现场形象呈现
全屋均为加长风口
整体的设计感从小细节上就得以体现



硬装完工 —— 卫生间及厨房现场形象呈现
卫生间白色拉槽砖
开孔使用专业的瓷砖开孔工具
淋浴花洒、面盆龙头目前还未安装



硬装完工 —— 老木制品
柜门、门套、装饰物均为老木料加工而成
最后在老木制品表面喷涂木蜡油即可
去掉老木本来的粗犷
但留下了老木岁月的纹理
【 小 科 普 】
木蜡油和清漆的区别是什么?
■ 主要成分
木蜡油:主要成分是亚麻籽油、蓟油、向日葵油、豆油和巴西棕榈蜡等,使用木蜡油不会在木器表面形成硬膜。
清漆:主要成分是树脂和溶剂或者树脂、油和溶剂。清漆会在木器表面留下一层相对较硬的漆膜以保护木制品表面。
■ 实际功能
木蜡油:最主要的功能是木蜡油渗透进木材内部以滋润养护木材,其中蜡的成分与木材纤维牢固结合,阻止液态水渗入木材里。
清漆:可木材的表面形成一层光滑、透明但不透气的树脂膜,以隔绝空气、水分,让木器内部不收外部的影响。

Kai De Shi Ji Ming Di

■ 面积 | 户型 | 类型
121㎡,3室2厅2卫,毛坯房
■ 设计负责 | 施工负责
拾光悠然设计,造梦家灰面


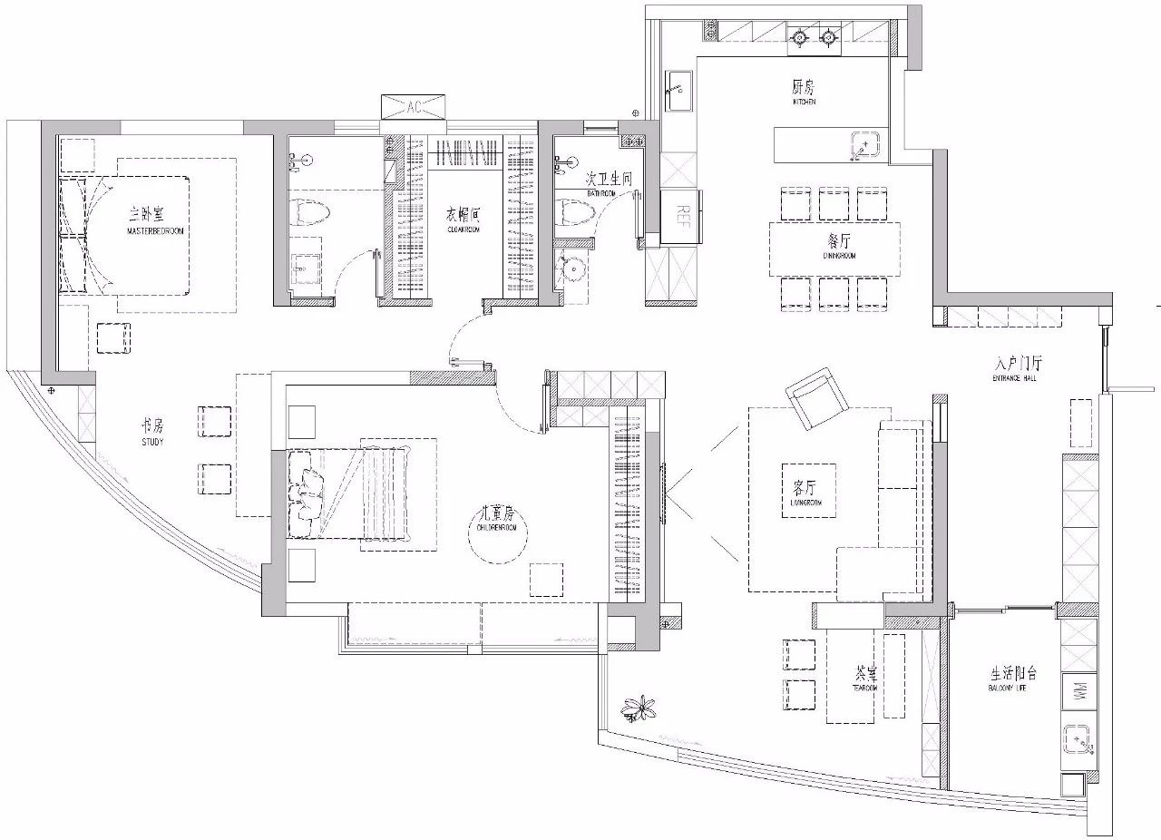
Plane layout 平 面 布 局 图 ▲

Construction Site 施 工 现 场 ▼



硬装完工 —— 玄关及开放式厨房现场呈现



硬装完工 —— 现场木作隐形门
这种为最常见的平开式隐形门
现场制作隐形门门套及木作的墙面基层
最后张贴固定木饰面即可




硬装完工 —— 各个区域现场形象呈现
【 小 科 普 】
隐形门使用时间较长后可能会出现哪些问题,如何解决?
■ 变形
隐形门变形(下沉)的话,可重新更换五金合页
■ 油漆磨损
门体碰撞磨损油漆脱落,前期需记住油漆色号,后期破损重新购买修补(同一色号油漆,由于时间长短所呈现的颜色也会略有不同)
■ 木饰面起翘
木饰面边角起翘,可使用蚊钉重新固定
■ 木饰面污染
木饰面表面大面积被污染无法通过物理方法修复,联系商家购买新的木饰面替换(同一型号的木饰面,不同批次呈现效果也会略有不同)

Guang Ming Cheng Shi

■ 面积 | 户型 | 类型
170㎡,3室2厅2卫,毛坯房
■ 设计负责 | 施工负责
拾光悠然设计,造梦家土豆


Plane layout 平 面 布 局 图 ▲

Construction Site 施 工 现 场 ▼



硬装完工 —— 厨房及客厅形象呈现
水泥饰面板中最为常见的是美岩板
也有一些人直接称呼它为纤维水泥板



硬装完工 —— 茶室现场形象呈现
图片左右两个的柜体
左为造梦家现场木作
右为品牌定制柜体




硬装完工 —— 主卧及次卧现场形象呈现
【 小 科 普 】
水泥饰面板的注意事项
█ 尺寸
美岩板都有固定尺寸,根据自家实际情况需要切割,需提前跟卖家沟通,将具体尺寸告知卖家,卖家使用专业工具切割处理再送达至工地。
由于板材原因,普通切割工具切割后会有豁口影响整体美观。
█ 板间留缝
水泥饰面板具有一定的热胀冷缩的特性和弹性,所以建议板间留3~5mm的伸缩缝。
注意:缝隙处,需要提前用黑色或者灰色的涂料涂刷在基层板材上,后期整体效果更美观。
█ 施工中防止移位
购买美岩板处还可购买专用免钉胶,使用打胶枪在美岩板背面打胶固定,
将美岩板固定在基层板材上,胶体未干透前在留缝处加小木块,以防板材脱落或移位。

Cheng Du Hua Yuan

■ 面积 | 户型 | 类型
122㎡,3室2厅2卫,二手房
■ 设计负责 | 施工负责
拾光悠然设计,造梦家青木

Plane layout 平 面 布 局 图 ▲

Construction Site 施 工 现 场 ▼



水电改造 —— 工地现场形象呈现
管道口用保护盖封闭
避免杂物落入堵塞管道


水电改造 —— 强弱电
强弱电交接处用锡纸包裹绝缘
【 小 科 普 】
哪些情况强弱电会出现干扰?
A. 强弱电共穿同一根线管
B. 强弱电走线交叉部分未使用锡箔纸进行隔离保护
C. 弱电线自身屏蔽破损
D. 折断式的直角转弯