衣柜布局衣柜布局的设计关乎着人们在使用过程的便利性。所以衣柜布局设计要充分考虑使用者的生活习惯、使用者的年龄阶层,同时要结合利用家居的每一处空间,这样才能保证整个衣柜布局不仅美观,而且使用。现在的整体衣柜内部格局,已经实现了个性化定制,这让广大消费者对于衣柜布局的设计有了更多的选择,既满足了个性品位的需求,同时又能解决收纳的问题



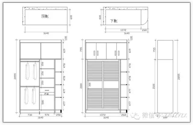
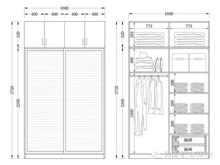
大衣柜的进深一般为55—60公分(特殊的可增加深度);如果空间不是特别紧张的话,建议60公分的进深比较好,而且55和60公分厂家的收费是一样的,但挂衣服的感觉就不一样了,挂衣服后柜门不会无法关上的情况发生。



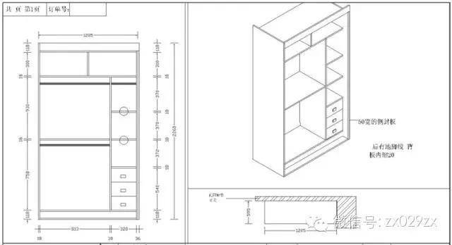
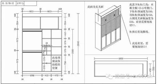
平开的柜门宽度在45左右公分之间为最佳,推拉柜门宽度在80公分左右为最佳;合页的承压能力不如轨道,所以对于平开柜门,门板不宜太宽太重,较高的平开门,建议选择5个铰链增加受力点。


悬挂大衣的高度140公分足够用


实践证明,最长的睡袍悬挂高度不到140公分,长羽绒服130公分,西服收纳装袋后也就120公分长。有的说这个高度应该在140;160公分之间,最好还是能做到恰到好处,跟储物空间不同,悬挂空间留多了也是浪费。



定制衣柜可以根据实际使用情况来调整和增加衣柜的功能,但要注意衣柜的内部结构、尺寸、以及功能的合理性。一般衣柜下柜高2000-2400mm,外侧板深度600mm,间距宽不要超过1200mm比较好,挂衣服的空最好为1850 mm以下,顶柜设计为550mm为好。此外,应该预留一个大空用来挂女主人的衣服。


如今市场上的整体衣柜,主要分为两类,一类是有门的,一类是开放的(无门)。开放式的入墙柜,将花花绿绿的美衣全部尽收眼底,很适合年轻人的家居氛围,如果再有心,可以就此为主体,围合成一个衣帽间。



有门的整体衣柜,则在趟门上做起了美丽文章。如欧贝克的趟门,就推出了虎纹、斑点狗纹、豹纹等图案,看着像挂画。目前市场上可供制作推拉门的材料有木板、玻璃、镜子及其他材料。木板朴实、自然,比较大众化,磨砂、布纹玻璃门则带来朦胧遮隐的效果,尤其在灯光映射下感觉甚为曼妙。镀银玻璃则有一种高档豪华气。透明的玻璃门显得晶莹剔透。此外还有百叶门,很新颖。







整体衣柜的内部构造也是颇有机关,柜身可为多种分柜,可根据室内空间大小及个人喜好,挑选若干分柜进行自由组合,一些活动层板、抽屉数量也可适当增减。另外,在有些入墙衣柜中还配有弹性拉伸设备,任意升级、简洁实用,体现出匠心独运的设计思想,所以在入墙衣柜中,哪里是抽屉,哪里是隔板,哪里放衣服,都会为您安排好,甚至毛巾、袜子、领带等,也能各就各位,一些入墙柜还设置有带滑轮的裤架,可以整齐地挂上十几条裤子,保持通风,不会皱褶,一目了然,而且拿取方便。

























★不懂装修,害怕装修,赶紧关注西安装修微信公众号【zx029zx】