项目名称: 宁波东钱湖康得思度假酒店
建筑面积:3000平方米
项目位置:浙江宁波东钱湖旅游度假区沙山路28号
设计公司:一夕设计 & 洪涛设计
主创设计师:邱希雯 易沙 王勇 朱玲
主要材料:火山岩、鞍山岩、胡桃木、橡木、实木复合地板、不锈钢等
摄影师:井旭峰
客户:朗廷酒店集团
完成年份:2019年5月
宁波东钱湖康得思酒店拥有4个各具特点、富有设计感的餐厅及酒吧:东悦市集全日餐厅、明阁中餐厅、湖居特点餐厅及29°酒吧。

东悦市集全日餐厅
全日餐厅最大的特点是室外有很漂亮的园林绿化,再配合建筑幕墙上的格栅,感觉就像丛林一般。
以室外的景作为主导,实际上室内它一定是比较的简洁才能衬托这种比较漂亮的外景。天花的处理将室外的格栅天花延伸进来,模糊掉室内外的这种空间界限。并且将这种元素延续到了半开敞的就餐区及旋转楼梯,作为空间隔断的形式。
▼ ORDIS酒店-全日餐厅





明阁中餐厅
中餐厅的设计演绎清雅风韵,以不同灰度相融调节视觉调性,强调舒适感。室外的园林景观,在中式吊灯的映衬下,盛开得格外翠绿;私密的包厢沿袭了整体空间的清雅与平和,空间色彩、形式,无一不在提示着过去、现在,东方人文的演变与糅合。
▼ CORDIS酒店-中餐包房







湖居特点餐厅
特点餐厅是LOFT风格的主题餐厅,以“农场到餐桌”为主题,采摘当地最新鲜的原生土产和湖泊食材为特点,满足客人在日益污染的今天也能够享用到绿色无污染、有机的菜品。
餐厅同时也是一个多功能厅,以应对活动空间日益增长的需求。地面采用水磨石,墙面为混泥土墙漆延伸至天花,配合坡屋顶的金属框架,定制的灯泡以矩阵形式悬挂排列,呈现出简单而又有序列感的照明效果,同时也灵活适用于不同场合对空间的使用需求。
▼ CORDIS酒店-特点餐厅




二十九度酒吧
酒吧还原了原建筑坡顶木梁的纯粹美感,裸露的铜管与充满质感的砖墙、混泥土、老木地板形成鲜明的对比。复古风格的红、绿色皮沙发和钢管椅,回收的老物件及带有重工业时期的墙面绘画,这一系列的设计元素共同营造一个时尚摩登又略带怀旧的酒吧空间。
▼ CORDIS酒店-酒吧




▼ CORDIS酒店-全日餐厅立面图

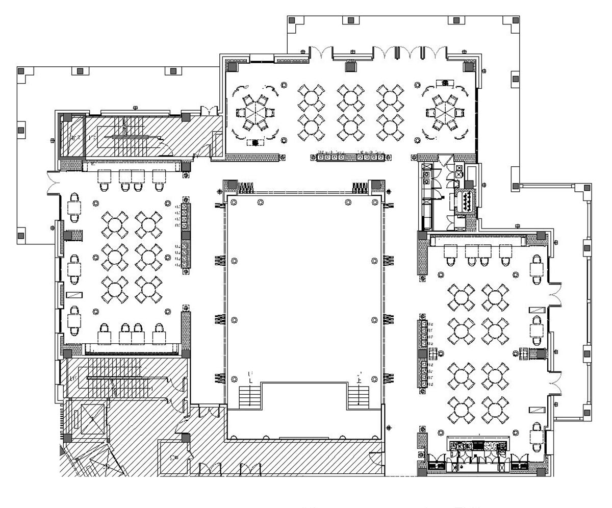
▼ CORDIS酒店-全日餐厅平面图

▼ CORDIS酒店-中餐包房A立面图

▼ CORDIS酒店-中餐包房A平面图

▼ CORDIS酒店-中餐包房B平面图

▼ CORDIS酒店-中餐包房C平面图

▼ CORDIS酒店-中餐厅立面图

▼ CORDIS酒店-中餐厅平面图

▼ CORDIS酒店-特点餐厅立面图

▼ CORDIS酒店-特点餐厅平面图

▼ CORDIS酒店-酒吧立面图1

▼ CORDIS酒店-酒吧立面图2

▼ CORDIS酒店-酒吧平面图
