ITEM 1
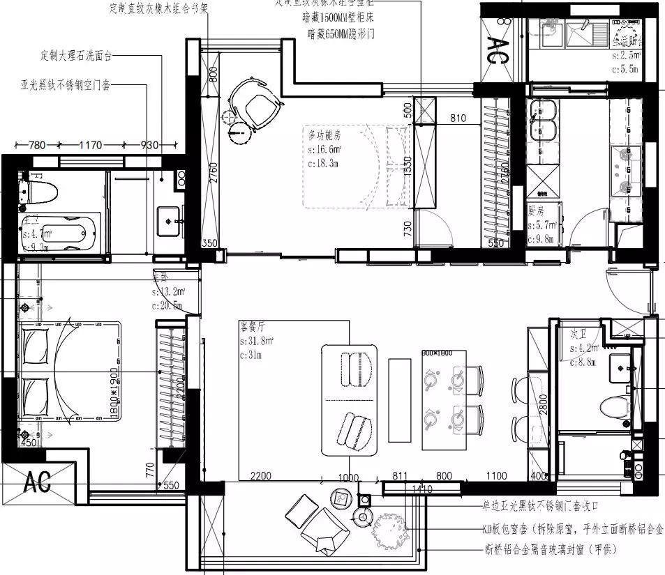
中 港 C C
Zhong Gang C C
◐ 标 签 : 滚涂墙锢和地锢 - 前期
项目面积:93 ㎡
项目户型:2室2厅2卫
项目类型:毛坯房

Plane layout | 平面布置


Construction site | 施工现场

墙锢滚涂完毕

墙面指示语标识

小 科 普
墙锢的作用什么?
①封闭铲除后的墙面浮灰,渗透到墙体对墙体固化,增加石膏及腻子层的附着力,降低后期墙面空鼓开裂的概率。
②水电改造阶段初期需要弹线放线,墙体有颜色后线条更清晰直观。
③视觉效果上更美观,避免墙体上灰蒙蒙的感觉。


开始滚涂地锢


全屋滚涂墙锢地锢整体效果展示

小 科 普
地锢的作用是什么?
①有效防止后续施工过程中水泥地面的灰尘颗粒附着在工作面上,让施工环境更清洁卫生。
②防止地面起沙、起灰,降低室内粉尘和可吸入颗粒物,减少灰沙对各装饰面的污染,俗称预防“扑灰”。
③地固耐水防潮,可以避免木地板受潮气侵蚀而产生的变形。


施工标准-成品保护

ITEM 2
凯 德 世 纪 名 邸 B 户
Kai de shi ji ming di
◐ 标 签 : 墙体新建 - 前期
项目面积:121 ㎡
项目户型:3室2厅2卫
项目类型:毛坯房

Plane layout | 平面布置


Construction site | 施工现场

红外线水平仪辅助墙体新建

新建墙体内部植筋

新建墙体完毕效果展示
顶部切记“斜铺”

新建墙体需挂钢网

小 科 普
什么称为“植筋挂网”?
植筋(种筋):简称植筋,又叫种筋。是建筑结构抗震加固工程上的一种钢筋后锚固利用结构胶锁键握紧力作用的连接技术。简单来说就是为了增加一次结构和二次结构的连接性和稳定性。
植筋流程:钻孔 -> 清孔 -> 配胶 -> 注胶 ,注意新建墙体内部的植筋需有180°的弯钩。
挂网:这里说的挂网,指的是挂铁丝网。起到降低墙体砂浆抹灰层开裂概率的作用,尤其是新旧墙体的交接处(需铲除一部分旧墙体的砂浆抹灰层)。

ITEM 3
金 科 廊 桥 水 乡
Jin Ke Lang Qiao Shui Xiang
◐ 标 签 : 瓷砖铺贴及第一遍腻子层 - 中期
项目面积:285 ㎡
项目户型:5室2厅3卫
项目类型:毛坯房

Plane layout | 平面布置




Construction site | 施工现场


瓷砖铺贴完毕

水电走向标识及电线底盒保护

第一遍腻子工程完毕

小 科 普
为什么需要粘贴水电走向标识?
水电走向标识指的是水电线管的走向。
热水器、花洒、暖气片、毛巾架、墙挂式马桶刷之类的都需要在墙上打眼,才能固定安装。粘贴标识就是为了避免后期安装这些物件时,不清楚水电走向,导致出现二次施工。

ITEM 4
凯 德 世 纪 名 邸 A 户
Kai de shi ji ming di
◐ 标 签 : 墙面工程 - 中期
项目面积:121 ㎡
项目户型:3室2厅2卫
项目类型:毛坯房

Plane layout | 平面布置


Construction site | 施工现场

全屋挂玻纤网(“全屋”为我方施工标准)

玻纤网批挂腻子后的细节图

玻纤网批挂腻子后的整体图

同时阴阳角需加上阴阳角条

小 科 普
安装PVC阴阳角条的作用?
①加固墙体边角,以防墙角出现磕碰导致坑坑洼洼的情况。
②解决本身阴阳角不顺直的问题。
(墙体突出的地方称之为阳角,凹陷的地方称之为阴角)

▼ 点击【了解更多】,浏览更多案例