
富饶山居别墅设计图纸
建设地点
福建厦门
图纸编号
61
尺 寸面宽20.0米 进深23.0米
建筑面积2100.0㎡

项目背景
项目基地位于十字路口旁,东、西、北侧皆有住宅

设计难点
从风水来看,由于基地位置特殊,基地内有冲煞,设计师要在设计中对其化解

设计构思
东侧化解基地的风水冲煞,用实墙违合,不开窗;西侧为住宅主入口及车库入口

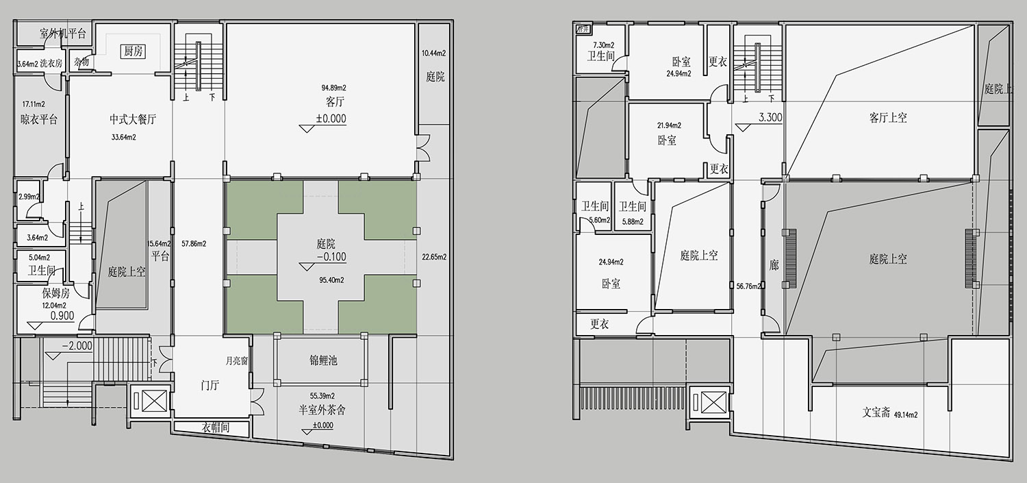
整体布局中,融入中国传统的“宅”、“院”理念,以南北向为轴线,划分出东、西一大一小两个庭院

设计亮点
西侧庭院被住宅空间环绕,让室内拥有充分的采光、良好的通风和清新的庭院景致


东侧庭院较大,为全家人的室外活动空间;院内设有锦鲤池,与砖雕石墙结合,以化解风水煞

充分利用空间资源,在屋顶设空中潜水池,视野开阔、隐秘性好

效果图

△鸟瞰图

△庭院鸟瞰图

△南透视图

△西南透视图

△东南透视图

△门厅对景、庭院对景

△门厅对景
图纸中心

△地下平面图、入口层平面图

△首层平面图、二层平面图

△三层平面图、四层平面图

△夹层平面图、顶层平面图