在农村建房,首先要考虑的就是自家宅基地的具体情况。大多数平原地区的朋友不用考虑这个问题。但在多山多丘陵的地区,在建房时就要根据地势进行相应的设计。
下面这个案例就很好地考虑到了当地的地理环境。变劣势为优势,既符合当地特点又提高了生活品味同时也顺应了当地农村朋友的生活和劳动习惯。


1. 设计中坡屋面的运用,既传承了传统民居文脉,又体现了时代特 色。
2. 青石板外墙及勒脚,白色外墙漆外墙面,木色窗套,青灰色水泥 彩瓦的设计,清新淡雅,简洁明快,充分体现农村特点、地方特点、乡 土特点和民俗民风特点。
3. 通过台阶、门廊、退台、楼梯的合理策划与运用,使功能分区明 确、使用灵活,丰富了各功能空间关系,内外环境渗透,
4. 结合地势,建筑为依山而建、层层退台、分层设门,视野开阔、 起居方便,并尽量在南北向设门窗,有利于东北方向主导风的引入及南 北向采光。建筑东西向尽量不设窗户,避免了东西向太阳能强辐射,有利于节能。
5. 依地势退台,外向台地绿化,内向楼梯门廊,加强上下层的对话,增强空气流动,增加南向采光面。大进深,小面宽的设计,节约土地。

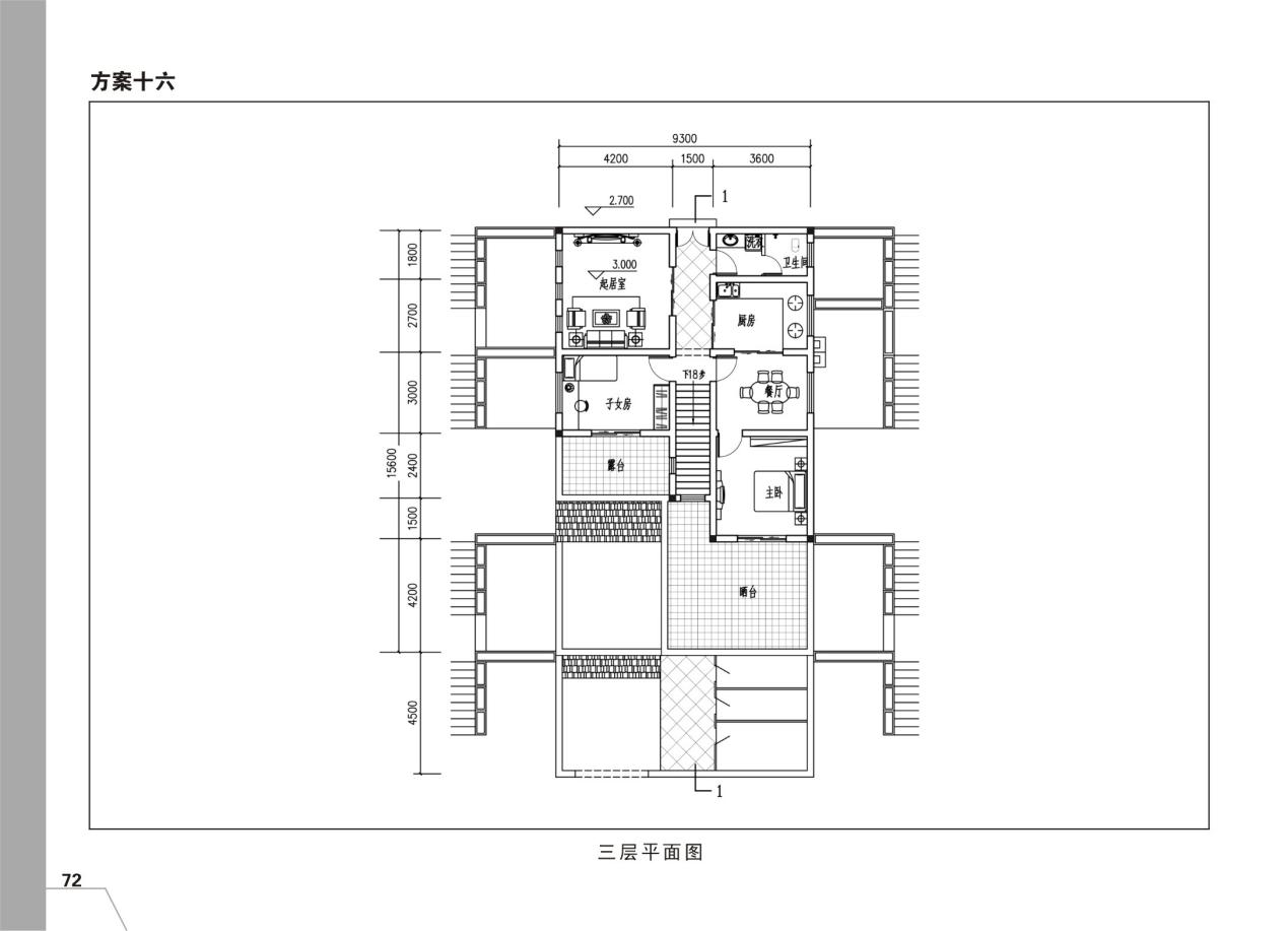
一层为辅助生产空间,基本处于下风向,采光不利,设置生蓄养 殖、储藏或农具房;二层为生活空冋,主要设计餐厨、客厅:

三层为起 居空间,主要设置卧室:五人户时将有两代分居的出现,三层考虑了餐 厨用房。
免费送图纸啦,为了感谢你对我们的关注。2000套图纸免费送。客服微信18721622330
[匠品宅造]:乡村别墅一站式服务商。
您还可以关注我们的同名公众号,进入智能报价系统,一键预估你心中所想。
