
一、概述
本手册是为了让项目实施人员尽快掌握施工要求及方法,保证施工质量,供相关人员参考,由于现场情况不一,实际操作情况还需要进行调整。
参考标准:
电气装置安装工程电缆线路施工及验收规范GB50168-2006
混凝土结构施工质量验收标准gb50204-2015
电气装置安装工程接地装置施工及验收规范GB 50169-2016
二、施工方法及工艺
2.1 工程勘察
现场勘察就是了解现场情况,把所有需要记录的数据通过拍照、绘图等方式详细地记录下来,并编制成文档及图纸,在施工前需完成勘察工作。
2.2 施工现场的准备工作
施工现场必备的各种施工用具及计量仪器设备(见附表一),检查各种设备的性能,保证满足施工要求。
策划施工组成员学习施工安全知识,准备安全防护用具。
一切准备工作结束后,开始展开施工。
2.3 立杆基础施工
(1) 确定基础位置
立杆基础开挖时,首先根据前期勘察资料或借助纬度仪、GPS等仪器,落实点位具体位置,并根据施工图确定基础开挖具体位置。
(2) 基础尺寸参考
基础开挖需要根据立杆横臂(以L杆为例)确定立杆基础尺寸,必须满足设计图纸要求,如现场条件不满足时应保证立杆基础的体积和设计体积相等,基础规格可参考下表。

若立杆防风等级高于8级、抗震等级高于5级或基础开挖处土质松的话,基础均需要加大。
(3)基础施工流程
基础浇筑完成后,必须要养护一段时间,对采用硅酸盐水泥、普通硅酸盐水泥或矿渣硅酸盐水泥拌制的混凝土,不得少于7天,养护期内温度确保零上5摄氏度及以上。对掺用缓凝外加剂、矿物掺和料或有抗渗性能要求的混凝土,不得少于14天,以确保混凝土能达到一定的安装强度。
基础的浇筑、混凝土强度等级必须符合GB50204-2015的要求。
立杆基础的开挖、浇筑流程,如下面所示:
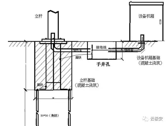
1) 基础在开挖过程中需注意垂直、美观,一般土质情况下打两根角钢(一般情况1.5m)下去,做接地使用,如下图:

2) 打入角钢后(角钢末端预留30公分露出坑底泥土面),基础底部采用直径为:8MM的圆钢筋敷设一层尺寸为:20CM*20CM的钢筋网并浇筑上20公分厚混凝土,表面抹至水平状态,作为立杆基础的占底层,如下图:

3) 两根角钢,通过扁铁和地笼焊接,并将地笼固定,固定时需要注意地笼的相位,确保杆件横臂垂直车辆行驶方向,地笼的地脚螺杆从基础底部起每隔50CM横向于基础坑壁焊接一根角钢用于加固,保证基础的地笼和混凝土浇筑后有优良的一体性,如下图:

4) 地笼内引入PE管,固定住,并通往杆件配套的手井,如下图:

5) 在浇灌过程中,混凝土尽量对准地笼中间浇灌,以免地笼偏移,并保证浇灌过程中分三次震动,浇灌后立即使用水平仪测量地笼是否安装垂直,如下图:

6) 浇灌后的基础效果图,如下图:

2.4 接地施工
前端设备安装于室外,易遭到雷电打击;前端设备的电源一般在现场就近取用,易受雷电波影响产生高压和浪涌电流;如果没有必要的防雷、避雷措施,前端设备的运行将得不到保障,有可能导致摄像主机等设备短期内大量损坏,使系统瘫痪。为了前端设备能可靠、长久地运行,摄像机杆、前端机箱及相应设备须接地。
接地体施工应符合电气装置安装工程接地装置施工及验收规范GB 50169-2016
1)立杆采用整体接地;
2)设备机箱内设接地柱或接地排,将机箱内设备接地,并将接地柱或接地排与立杆接地极相连;
3)接地方式如下示意图所示:

在基坑底部打两根角钢(一般情况1.5m)下去,角钢与基础地笼用40×4mm扁钢焊接,保证立杆整体接地。
扁钢焊接至立杆配套手井,预留接头。
从手井内扁钢接头处引接地线入设备箱接地柱或接地排。接地线使用软质铜绞线,其截面为10mm²以上。
确保接地电阻<4Ω,如测试未达标准,则采用扩大地网(增加接地角钢数量,直至接地电阻<4Ω)的方式,如下图所示:

两个角钢之间距离3米,用扁钢焊接连接。
可以在开挖预埋管道时的沟道里打入,与PE管一起埋好。也可现场全部恢复再做接地桩,需注意避开地下管道。焊接处用磷化液或防锈液等做防锈处理。
增加的角钢通过扁钢与立杆配套手井内的扁钢焊接。
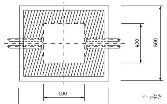
2.5 落地机柜安装施工
(1) 落地机柜安装方法
落地机柜基础长宽高尺寸为0.8m×0.6m×0.8m,基础浇筑完成后,必须要养护一段时间,对采用硅酸盐水泥、普通硅酸盐水泥或矿渣硅酸盐水泥拌制的混凝土,不得少于7天,养护期内温度确保零上5摄氏度及以上。对掺用缓凝外加剂、矿物掺和料或有抗渗性能要求的混凝土,不得少于14天,以确保混凝土能达到一定的安装强度。
基础的浇筑、混凝土强度等级必须符合GB50204-2015的要求。
机柜基础示意图如下:


机柜基础在浇灌过程一定注意不要有杂物或混凝土进入管道,保证管道口有保护措施(可用塑料袋封住管口)。穿线管路保证完好通向各连接井内。
基础采用明挖法施工,整平、夯实基底,控制标高;施工完毕,基础分层回填夯实。采用C25混凝土现浇,表面与基础顶面平齐并保持水平。
机柜安装于基础上一般有两种方式:
《1》、基础内浇筑了机箱预埋件(即采用钢筋混凝土基础,预埋件和机箱一起设计、生产)。
如下图所示:


《2》、基础内无预埋件,通过打膨胀螺丝(即采用素混凝土基础)。
如下图所示,在红点处打入4个膨胀螺丝,具体打入位置参考机箱尺寸:

(2) 落地机柜安装工艺
安装机柜时注意机柜门垂直马路,并保证机柜安装垂直牢固;
在机柜门之前留有一定空间,便于机柜门开合及人员操作设备留有一定的空间;
落地机柜示意图如下图所示:

2.6 挂杆机箱安装施工
挂杆机箱长宽深尺寸为0.6m×0.5m×0.4m。
挂杆机箱示意图如下,一般和杆件一起设计生产:

机箱安装方式,机箱与底座之间用四个螺丝固定,且底座开孔用于穿线。

机箱安装方式,机箱与杆件之间采用抱箍固定,且机箱底座开孔与杆件之间用金属波纹管相连穿线。
2.7 手井施工
(1)手井施工方法
手井长宽高尺寸为0.6m×0.6m×0.4m,做手井的同时铺设好穿线管。
过夜基坑需加盖保护板,采取相应的安全措施。
手井施工方法如图:



混凝土手井

复合材料手井
(2)手井施工工艺
混凝土井圈及混凝土井盖均为预制件,砌体使用砖块及普通硅酸盐水泥,手井内外壁采用水泥砂浆抹面,厚度20mm。
手井采用明挖法施工,整平、夯实基底,严格控制标高;施工完毕,基础分层回填夯实,手井底部应设有渗水孔。
手井盖可根据环境要求选配混凝土井盖或复合材料井盖。
2.8 立杆安装施工
(1)立杆吊装方法
立杆需在基础养护一段时间后进行,对采用硅酸盐水泥、普通硅酸盐水泥或矿渣硅酸盐水泥拌制的混凝土,不得少于7天,养护期内温度确保零上5摄氏度及以上。对掺用缓凝外加剂、矿物掺和料或有抗渗性能要求的混凝土,不得少于14天,以确保混凝土能达到一定的安装强度。吊装如下,以L杆为例:
《1》、在路面上先将立杆和横杆固定,如下图:

《2》. 在杆件内穿好铁丝,用于穿线缆,如下图:

《3》 在横杆顶端绑上绳索,吊装时调整杆件位置用,如下图:

《4》.吊杆过程,如下图:


《5》. 调整好杆件位置后,将杆件固定,如下图:

(2)立杆吊装工艺
- 1)立杆在现场组装前,需提前和路政及交警部门协调沟通好,对车流量较大的路段需要有专人疏导交通,在不影响交通和确保人员安全情况下进行。
- 2)立杆吊装区,使用安全路锥和警示牌隔离。
- 3)立杆组装吊装时,占用道路宽度不超过7米,白天吊杆道路封闭距离与作业区保持最少30米,夜间作业情况下必须架设警示灯顺延至30M到150M之间处,所有现场人员(包括施工和指挥人员)必须穿着反光背心。
- 4)施工期间严禁同一个卡口2根杆件同时安装,且同一时间段内仅有一组杆件临时占用道路安装。
- 5)在立杆吊装调整过程中,需保证横杆与竖杆的垂直度与平衡度。
2.9 线圈切割及线圈铺设施工
(1)线圈切割施工方法
地感线圈切割位置参考勘察资料现场布局图所示。
线圈切割的流程,如下面所示。
《1》、划线:按照施工图画上开槽尺寸线。

2、切槽:用开槽机(柴油切割机)按图施工,首先应当切割距路边最远的线圈槽和引线槽,这样避免导线的交叉和减少导线接头。

3、槽内清理:开槽后要对槽内进行清理,使槽内无硬渣,槽底平整,保持干燥,必须用空压机吹槽。

4、槽内下线:在路边手井中预留1.5米线圈线后再引至线圈环形槽边,在其中按顺时针紧绕圈,再将另一端引到路边手井中,从环形线圈到手井中的两线应相互绞合(每米大于20绞)平行,导线下槽后用钝物将其压实(不准用尖锐利器捣压,图中用砂轮滚),最后将导线抽头作序号。


5、填槽:先用冷浇法,使用环氧树脂使槽内数匝线圈互相粘合保证可靠性,稍等片刻,用热浇法把沥清混合物填入槽内,浇注时要注意沥清温度不能过高(一般80℃左右),并且要灌实不能有气泡,以免影响电参数。

6、结束:在沥青未完全凝固定型之前,将溢出槽外的沥青铲清。

(2)线圈切割施工工艺
线圈环形槽,其宽度为4至5毫米,双绞部分的槽宽在6至7毫米,槽深都为7至8厘米。以上线圈的宽度和深度,为使用1.5平方线缆的标准,若使用2.5平方线缆,各尺寸都需相应增加2毫米。
开槽断面齐整,为了避免下线时因拐角弯度过小而损坏导线,在槽的四个拐角处切45o斜角,对线圈起保护作用。
施工按半幅方式进行,以防路面线槽及沥青(或环氧树脂)没有凝固前,汽车将槽边压塌,影响路面强度,应首先封闭半幅交通。
环形线圈按顺时针绕圈,一般绕四圈,出环形线槽后的两线应相互绞合平行(每米大于20绞),最后将导线抽头作序号,参考下图:

多车道时,线圈切割参考下图:

使用吹风机吹干、烘干线槽,并注意烘干时吹风机移动的速度,防止破坏沥青混凝土的化学特性。
线圈可自由放入槽内,按自然状态放线,不可损坏绝缘层,对地要绝缘。
安置线圈的槽内除了线圈本身外不得有其它任何导体。当环形线圈是被放置于钢筋混泥土的钢筋之上时,线圈线务必在钢筋之上至少5厘米。
安置的线圈应当离任何可移动的金属物品(手井盖等)至少1米以上。
线圈线对地的绝缘电阻在500伏电压时测量应大于10MΩ,串联电阻应小于10Ω。
线圈线至车检器间的馈线,其长度保证在300米之内,不要超出此范围,否则会影响检测效果。
线圈和馈线连接点应该位于手井内,并采用焊接方式或紧压方式进行连接,焊接方式将焊接头彼此至少错开20cm,紧压连接用铜或铝套管套在被连接的线缆上,再用压接钳或压接模具压紧套管使芯线保持连接。连接完成后用绝缘胶带、防水胶带紧裹数匝,并在表面涂上环氧树脂固化,馈线的屏蔽套必须可靠接大地。布设的每根馈线都两头做好标记。
