机关事业单位人员必备:公文排版全攻略
南充市顺庆区西门市场管理办公室 邓智宁
在机关工作多年,对公文排版还是有差错,偶有闲暇,想把排版这件事做精致,于是全方位进行了整顿,愿对大家有用。
1
公文分版头、主体、版记三部分,页码位于版心外。技巧细节如下:
1.公文用纸。公文用纸采用GB/T 148中规定的A4型纸。
2.版面。公文用纸天头(上白边)为37 mm±1 mm,公文用纸订口(左白边)为28mm±1mm,版心尺寸为156 mm×225 mm。
3.字体和字号。如无特殊说明,公文格式各要素一般用3号仿宋体字。特定情况可以作适当调整。
4. 行数和字数。一般每面排22行,每行排28个字,并撑满版心。特定情况可以作适当调整。
5.文字的颜色。如无特殊说明,公文中文字的颜色均为黑色。
6. 装订要求。公文应当左侧装订,不掉页,两页页码之间误差不超过4 mm,裁切后的成品尺寸允许误差±2mm,四角成90°,无毛茬或缺损。骑马订或平订的公文应当:订位为两钉外订眼距版面上下边缘各70mm处,允许误差±4mm;骑马订钉锯均订在折缝线上,平订钉锯与书脊间的距离为3mm--5mm。
8.份号。如需标注,一般用6位3号阿拉伯数字,顶格编排在版心左上角第一行。
9.密级和保密期限。如需标注密级和保密期限,一般用3号黑体字,顶格编排在版心左上角第二行;保密期限中的数字用阿拉伯数字标注。
10. 紧急程度。如需标注紧急程度,一般用3号黑体字,顶格编排在版心左上角;如需同时标注份号、密级和保密期限、紧急程度,按照份号、密级和保密期限、紧急程度的顺序自上而下分行排列。
11.发文机关标志。由发文机关全称或者规范化简称加“文件”二字组成,也可以使用发文机关全称或者规范化简称。发文机关标志居中排布,上边缘至版心上边缘为35mm,推荐使用小标宋体字,颜色为红色,以醒目、美观、庄重为原则。联合行文时,如需同时标联署发文机关名称,一般应当将主办机关名称排列在前;如有“文件”二字,应当置于发文机关名称右侧,以联署发文机关名称为准上下居中排布。
12. 发文字号。编排在发文机关标志下空二行位置,居中排布。年份、发文顺序号用阿拉伯数字标注;年份应标全称,用六角括号“〔〕”括入;发文顺序号不加“第”字,不编虚位(即1不编为01),在阿拉伯数字后加“号”字。上行文的发文字号居左空一字编排,与最后一个签发人姓名处在同一行。
13. 签发人。由“签发人”三字加全角冒号和签发人姓名组成,居右空一字,编排在发文机关标志下空二行位置。“签发人”三字用3号仿宋体字,签发人姓名用3号楷体字。如有多个签发人,签发人姓名按照发文机关的排列顺序从左到右、自上而下依次均匀编排,一般每行排两个姓名,回行时与上一行第一个签发人姓名对齐。
14.版头中的分隔线。发文字号之下4mm处居中印一条与版心等宽的红色分隔线。
15. 标题。一般用2号小标宋体字,编排于红色分隔线下空二行位置,分一行或多行居中排布;回行时,要做到词意完整,排列对称,长短适宜,间距恰当,标题排列应当使用梯形或菱形。
16. 主送机关。编排于标题下空一行位置,居左顶格,回行时仍顶格,最后一个机关名称后标全角冒号。如主送机关名称过多导致公文首页不能显示正文时,应当将主送机关名称移至版记。
17. 正文。公文首页必须显示正文。一般用3号仿宋体字,编排于主送机关名称下一行,每个自然段左空二字,回行顶格。文中结构层次序数依次可以用“一、”“(一)”“1.”“(1)”标注;一般第一层用黑体字、第二层用楷体字、第三层和第四层用仿宋体字标注。
18.附件说明。如有附件,在正文下空一行左空二字编排“附件”二字,后标全角冒号和附件名称。如有多个附件,使用阿拉伯数字标注附件顺序号(如“附件:1. XXXXX”);附件名称后不加标点符号。附件名称较长需回行时,应当与上一行附件名称的首字对齐。
19. 加盖印章的公文。成文日期一般右空四字编排,印章用红色,不得出现空白印章。单一机关行文时,一般在成文日期之上、以成文日期为准居中编排发文机关署名,印章端正、居中下压发文机关署名和成文日期,使发文机关署名和成文日期居印章中心偏下位置,印章顶端应当上距正文(或附件说明)一行之内。联合行文时,一般将各发文机关署名按照发文机关顺序整齐排列在相应位置,并将印章一一对应、端正、居中下压发文机关署名,最后一个印章端正、居中下压发文机关署名和成文日期,印章之间排列整齐、互不相交或相切,每排印章两端不得超出版心,首排印章顶端应当上距正文(或附件说明)一行之内。
20.不加盖印章的公文。单一机关行文时,在正文(或附件说明)下空一行右空二字编排发文机关署名,在发文机关署名下一行编排成文日期,首字比发文机关署名首字右移二字,如成文日期长于发文机关署名,应当使成文日期右空二字编排,并相应增加发文机关署名右空字数。联合行文时,应当先编排主办机关署名,其余发文机关署名依次向下编排。
21.加盖签发人签名章的公文。单一机关制发的公文加盖签发人签名章时,在正文(或附件说明)下空二行右空四字加盖签发人签名章,签名章左空二字标注签发人职务,以签名章为准上下居中排布。在签发人签名章下空一行右空四字编排成文日期。联合行文时,应当先编排主办机关签发人职务、签名章,其余机关签发人职务、签名章依次向下编排,与主办机关签发人职务、签名章上下对齐;每行只编排一个机关的签发人职务、签名章;签发人职务应当标注全称。签名章一般用红色。
22.成文日期中的数字。用阿拉伯数字将年、月、日标全,年份应标全称,月、日不编虚位(即1不编为01)。
23. 附注。如有附注,居左空二字加圆括号编排在成文日期下一行。
24.附件。附件应当另面编排,并在版记之前,与公文正文一起装订。“附件”二字及附件顺序号用3号黑体字顶格编排在版心左上角第一行。附件标题居中编排在版心第三行。附件顺序号和附件标题应当与附件说明的表述一致。附件格式要求同正文。如附件与正文不能一起装订,应当在附件左上角第一行顶格编排公文的发文字号并在其后标注“附件”二字及附件顺序号。
25.版记中的分隔线。版记中的分隔线与版心等宽,首条分隔线和末条分隔线用粗线(推荐高度为0. 35 mm),中间的分隔线用细线(推荐高度为0. 25 mm)。首条分隔线位于版记中第一个要素之上,末条分隔线与公文最后一面的版心下边缘重合。
26.抄送机关。如有抄送机关,一般用4号仿宋体字,在印发机关和印发日期之上一行、左右各空一字编排。“抄送”二字后加全角冒号和抄送机关名称,回行时与冒号后的首字对齐,最后一个抄送机关名称后标句号。如需把主送机关移至版记,除将“抄送”二字改为“主送”外,编排方法同抄送机关。既有主送机关又有抄送机关时,应当将主送机关置于抄送机关之上一行,之间不加分隔线。
27.印发机关和印发日期。印发机关和印发日期一般用4号仿宋体字,编排在末条分隔线之上,印发机关左空一字,印发日期右空一字,用阿拉伯数字将年、月、日标全,年份应标全称,月、日不编虚位(即1不编为01),后加“印发”二字。版记中如有其他要素,应当将其与印发机关和印发日期用一条细分隔线隔开。
28. 页码。一般用4号半角宋体阿拉伯数字,编排在公文版心下边缘之下,数字左右各放一条一字线;一字线上距版心下边缘7mm。单页码居右空一字,双页码居左空一字。公文的版记页前有空白页的,空白页和版记页均不编排页码。公文的附件与正文一起装订时,页码应当连续编排。
29.公文中计量单位、标点符号和数字的用法。公文中计量单位的用法应当符合GB 3100、GB 3101和GB 3102(所有部分),标点符号的用法应当符合GB/T 15834,数字用法应当符合GB/T 15835。
30. 信函格式。发文机关标志使用发文机关全称或者规范化简称,居中排布,上边缘至上页边为30mm,推荐使用红色小标宋体字。联合行文时,使用主办机关标志。发文机关标志下4 mm处印一条红色双线(上粗下细),距下页边20 mm处印一条红色双线(上细下粗),线长均为170 mm,居中排布。如需标注份号、密级和保密期限、紧急程度,应当顶格居版心左边缘编排在第一条红色双线下,按照份号、密级和保密期限、紧急程度的顺序自上而下分行排列,第一个要素与该线的距离为3号汉字高度的7/8。发文字号顶格居版心右边缘编排在第一条红色双线下,与该线的距离为3号汉字高度的7/8。标题居中编排,与其上最后一个要素相距二行。第二条红色双线上一行如有文字,与该线的距离为3号汉字高度的7/8。首页不显示页码。版记不加印发机关和印发日期、分隔线,位于公文最后一面版心内最下方。
31. 纪要格式。纪要标志由“XXXXX纪要”组成,居中排布,上边缘至版心上边缘为35 mm,推荐使用红色小标宋体字。标注出席人员名单,一般用3号黑体字,在正文或附件说明下空一行左空二字编排“出席”二字,后标全角冒号,冒号后用3号仿宋体字标注出席人单位、姓名,回行时与冒号后的首字对齐。标注请假和列席人员名单,除依次另起一行并将“出席”二字改为“请假”或“列席”外,编排方法同出席人员名单。
32.制作红头文件发文机关制作的操作步骤。依次点击【插入】-【文本框】-【绘制文本框】,此时光标会变成一个‘十’字,在文档适当位置摁住鼠标左键不放,拖动绘制文本框。在文本框边缘点右键,选择【其他布局选项】。打开的对话框如图,在【位置】标签中“水平”项中的“对齐方式”设置为“居中”,相对于“页面”,“垂直”的“绝对位置”设置为3.5厘米(平行文标准)或者8厘米(上行文标准),“下侧”选择“上边距”。将打开的对话框切换到【大小】标签中,将文本框的高度设置为2厘米,宽度设置为15.5厘米。在文本框边缘点右键,选择【设置形状格式】。打开如图所示对话框,【填充】设置为无填充,【线条】设置为无线条。在【布局属性】中将文本框上下左右边距都设置为0。然后将字体设置成标题,宋体,字体大小以充满文本框为宜,红色,加粗不能换行。由发文机关全称或者规范化简称加“文件”二字组成,也可以使用发文机关全称或者规范化简称。发文机关标志居中排布,上边缘至版心上边缘为35mm,推荐使用小标宋体字,颜色为红色,以醒目、美观、庄重为原则。联合行文时,如需同时标注联署发文机关名称,一般应当将主办机关名称排列在前;如有“文件”二字,应当置于发文机关名称右侧,以联署发文机关名称为准上下居中排布。
33.制作红头文件红线制作的操作步骤。依次点击【插入】-【形状】-【线条】选择直线。摁住左手【shift】键不放,在页面绘制一条直线。在直线上点击右键,选择【其他布局选项】。在【位置】选项卡里将“水平”项的“对齐方式”设置为“居中”,相对于“页面”。“垂直”项中的“绝对位置”设置成7cm(平行文或下行文标准,上行文为13.5cm),下侧选为“页边距”。切换到【大小】选项卡里,将“宽度”的绝对值设置为15.5cm。【确定】退出,再次点击右键,选择【设置形状格式】。在【线条与颜色】项中将其设置为“实线”,颜色为“红色”。切换到【线型】选项卡下,将“宽度”设置为2.25磅。【关闭】退出。发文字号之下4mm处居中印一条与版心等宽的红色分隔线。
34.公文标题标注要规范。公文标题由发文机关名称、事由和文种组成,不能缺项。公文标题要能概括公文的主要内容,使用正确文种,做到准确、精练,通过标题使受文者及时了解文件的主旨和要义。标题中要尽量少用标点符号,除书名号、引号、括号之外,其他标点符号不能在标题中随意乱用。
35.具体页面设置。
(1)选择“文件”——“页面设置”选择“页边距”附签,上:3.7厘米,下:3.5厘米,左:2.8厘米,右:2.6厘米。

(2)选择“纸张”附签,“纸张大小”设成“A4”。

(3)选择“版式”附签,将“页眉和页脚”设置成“奇偶页不同”,在该选项前打“√”,“页脚”设置成“2.5厘米”。

(4)选择“文档网格”附签,“字体设置”,“中文字体”设置为“仿宋”;“字号”设置成“三号”,单击“确定”按钮。

(5)进入“文档网格”附签,选中“指定行网格和字符网格”,将“每行”设置成“28”个字符;“每页”设置成“22”行。然后单击“确定”按钮,这样就将版心设置成了以三号仿宋体为标准、每页22行、每行28个汉字的国家标准。

(6)插入页号
选择“插入”——“页码”,“位置”设置为“页面底端(页脚)”,“对齐方式”设置为“外侧”。

然后单击“格式”按钮,“数字格式”设置为-1-,-2-,-3-显示格式,单击“确定”按钮,再次单击“确定”按钮完成页码设置。

双击页码,选中页码(包括左右两条短线),将页码字号设置成“四号”;字体为宋体的阿拉伯数字;奇数页的页码设置成右空一个汉字,偶数页的页码设置成左空一个汉字。


(7)文号制作
平行文或下行文号:文号——三号仿宋、居中显示,编排在发文机关标识下空二行位置。

上行文文号:文号——三号仿宋字体、左空一个字的距离;签发人——三号仿宋字体;签发人姓名——三号楷体、右空一个字的距离,编排在发文机关标识下空二行位置。

注:文号一定要使用六角符号。六角符号插入方法:选择“插入”——“符号”——“符号”附签,找到六角符号后,将光标置于准备插入的地方,单击“插入”按钮即可。

36.公文正文排版
制作公文正文内容:正文内容根据实际需求,可以直接录入文字,也可以从其它软件中将文字复制进来,但必须遵循以下国家标准:
1.标 题——2号小标宋字体,居中显示,编排于红色分隔线下空二行位置。
2.主送机关——3号仿宋字体,居左顶格,冒号使用全角方式,编排于标题下空一行位置。
3.正 文——3号仿宋字体。
4.文种结构层次——依次用“一、” “(一)” “1.” “(1)” 标注。一级标题用3号黑体字,二级标题用3号楷体,三级和四级和正文一样用3号仿宋。
5.附件——是正文内容的组成部分。3号仿宋字体,在正文下空一行,左空2字编排,“附件”二字后标全角冒号和附件名称,附件名称后不标注标点符号。
6.发文机关署名——3号仿宋字体,距最后一行正文内容3个空行放置,以成文日期为准居中编排。
7.成文日期——3号仿宋字体,发文机关下方右空4个字格编排。
8.印章——加盖端正,以成文日期中心为准,印章下端压成文日期。
37.版记制作
1.选择“表格”——“插入”——“表格”,设置“列数”为1,“行数”为2。

2.选中表格,单击鼠标右键——表格属性——“表格”附签,“对齐方式”设置为“居中”。

3.然后单击“边框和底纹”按钮,在“预览”窗口中将每行的下线选中,竖线取消;同时,设置第一行和最后一行下线的宽度为1½磅,中间一行下线宽度为½磅,点击“确定”。

4.进入“表格属性”——“列”附签,设置指定宽度为15.6厘米,点击确定。

5.在制作成功的表格第一行,输入主送单位、抄送单位,用4号仿宋体字,编排在印发机关和印发日期之上一行,左右各空一字编排,回行时与冒号后的首字对齐,最后一个抄送机关名称后标句号;表格第二行,输入印发机关、印发日期,用4号仿宋体字,印发机关左空一字,印发日期右空一字后加“印发”二字。

注:因现行的规范是要求公文双面打印的,因此公文的最后一页必定是偶数页,也就是如果公文在奇数页完结,则要版记排在背面的偶数页,否则背面偶数页空白,不是一个整体。
38.打印设置
机关公文打印采用双面印刷,左侧装订,现有大部分打印设备只具备单面打印功能,请按以下步骤设置文本打印。
选择“文件”——“打印”——“打印(R)”,设置奇数页,点击“确定”。

将打印完毕的奇数页文件,空白背面按顺序叠放,放置打印设备送纸盒。
选择“文件”——“打印”——“打印(R)”,设置偶数页,点击“确定”。

上述版面设置方法是拟制各种公文的前提条件,也是“套打”输出红头文件首页的基础。为便于理解,后附公文格式图解说明,请参照学习。
附:机关正式公文格式图解

公文格式 图解

公文格式 图解

公文格式 图解

公文格式 图解

公文格式 图解

公文格式 图解

公文格式 图解
*党**政机关公文处理工作条例
(*共中**中央办公厅 国务院办公厅*办发中**〔2012〕14号 2012年4月16日)
第一章 总 则
第一条 为了适应中国*产党共**机关和国家行政机关(以下简称*党**政机关)工作需要,推进*党**政机关公文处理工作科学化、制度化、规范化,制定本条例。
第二条 本条例适用于各级*党**政机关公文处理工作。
第三条 *党**政机关公文是*党**政机关实施领导、履行职能、处理公务的具有特定效力和规范体式的文书,是传达贯彻*党**和国家的方针政策,公布法规和规章,指导、布置和商洽工作,请示和答复问题,报告、通报和交流情况等的重要工具。
第四条 公文处理工作是指公文拟制、办理、管理等一系列相互关联、衔接有序的工作。
第五条 公文处理工作应当坚持实事求是、准确规范、精简高效、安全保密的原则。
第六条 各级*党**政机关应当高度重视公文处理工作,加强策划领导,强化队伍建设,设立文秘部门或者由专人负责公文处理工作。
第七条 各级*党**政机关办公厅(室)主管本机关的公文处理工作,并对下级机关的公文处理工作进行业务指导和督促检查。
第二章 公文种类
第八条 公文种类主要有:
(一)决议。适用于会议讨论通过的重大决策事项。
(二)决定。适用于对重要事项作出决策和部署、奖惩有关单位和人员、变更或者撤销下级机关不适当的决定事项。
(三)命令(令)。适用于公布行政法规和规章、宣布施行重大强制性措施、批准授予和晋升衔级、嘉奖有关单位和人员。
(四)公报。适用于公布重要决定或者重大事项。
(五)公告。适用于向国内外宣布重要事项或者法定事项。
(六)通告。适用于在一定范围内公布应当遵守或者周知的事项。
(七)意见。适用于对重要问题提出见解和处理办法。
(八)通知。适用于发布、传达要求下级机关执行和有关单位周知或者执行的事项,批转、转发公文。
(九)通报。适用于表彰先进、批评错误、传达重要精神和告知重要情况。
(十)报告。适用于向上级机关汇报工作、折射情况,回复上级机关的询问。
(十一)请示。适用于向上级机关请求指示、批准。
(十二)批复。适用于答复下级机关请示事项。
(十三)议案。适用于各级人民政府按照法律程序向同级人民代表大会或者人民代表大会常务委员会提请审议事项。
(十四)函。适用于不相隶属机关之间商洽工作、询问和答复问题、请求批准和答复审批事项。
(十五)纪要。适用于记载会议主要情况和议定事项。
第三章 公文格式
第九条 公文一般由份号、密级和保密期限、紧急程度、发文机关标志、发文字号、签发人、标题、主送机关、正文、附件说明、发文机关署名、成文日期、印章、附注、附件、抄送机关、印发机关和印发日期、页码等组成。
(一)份号。公文印制份数的顺序号。涉密公文应当标注份号。
(二)密级和保密期限。公文的秘密等级和保密的期限。涉密公文应当根据涉密程度分别标注“绝密”“机密”“秘密”和保密期限。
(三)紧急程度。公文送达和办理的时限要求。根据紧急程度,紧急公文应当分别标注“特急”“加急”,电报应当分别标注“特提”“特急”“加急”“平急”。
(四)发文机关标志。由发文机关全称或者规范化简称加“文件”二字组成,也可以使用发文机关全称或者规范化简称。联合行文时,发文机关标志可以并用联合发文机关名称,也可以单独用主办机关名称。
(五)发文字号。由发文机关代字、年份、发文顺序号组成。联合行文时,使用主办机关的发文字号。
(六)签发人。上行文应当标注签发人姓名。
(七)标题。由发文机关名称、事由和文种组成。
(八)主送机关。公文的主要受理机关,应当使用机关全称、规范化简称或者同类型机关统称。
(九)正文。公文的主体,用来表述公文的内容。
(十)附件说明。公文附件的顺序号和名称。
(十一)发文机关署名。署发文机关全称或者规范化简称。
(十二)成文日期。署会议通过或者发文机关负责人签发的日期。联合行文时,署最后签发机关负责人签发的日期。
(十三)印章。公文中有发文机关署名的,应当加盖发文机关印章,并与署名机关相符。有特定发文机关标志的普发性公文和电报可以不加盖印章。
(十四)附注。公文印发传达范围等需要说明的事项。
(十五)附件。公文正文的说明、补充或者参考资料。
(十六)抄送机关。除主送机关外需要执行或者知晓公文内容的其他机关,应当使用机关全称、规范化简称或者同类型机关统称。
(十七)印发机关和印发日期。公文的送印机关和送印日期。
(十八)页码。公文页数顺序号。
第十条 公文的版式按照《*党**政机关公文格式》国家标准执行。
第十一条 公文使用的汉字、数字、外文字符、计量单位和标点符号等,按照有关国家标准和规定执行。民族自治地方的公文,可以并用汉字和当地通用的少数民族文字。
第十二条 公文用纸幅面采用国际标准A4型。特殊形式的公文用纸幅面,根据实际需要确定。
第四章 行文规则
第十三条 行文应当确有必要,讲求实效,注重针对性和可操作性。
第十四条 行文关系根据隶属关系和职权范围确定。一般不得越级行文,特殊情况需要越级行文的,应当同时抄送被越过的机关。
第十五条 向上级机关行文,应当遵循以下规则:
(一)原则上主送一个上级机关,根据需要同时抄送相关上级机关和同级机关,不抄送下级机关。
(二)*党**委、政府的部门向上级主管部门请示、报告重大事项,应当经本级*党**委、政府同意或者授权;属于部门职权范围内的事项应当直接报送上级主管部门。
(三)下级机关的请示事项,如需以本机关名义向上级机关请示,应当提出倾向性意见后上报,不得原文转报上级机关。
(四)请示应当一文一事。不得在报告等非请示性公文中夹带请示事项。
(五)除上级机关负责人直接交办事项外,不得以本机关名义向上级机关负责人报送公文,不得以本机关负责人名义向上级机关报送公文。
(六)受双重领导的机关向一个上级机关行文,必要时抄送另一个上级机关。
第十六条 向下级机关行文,应当遵循以下规则:
(一)主送受理机关,根据需要抄送相关机关。重要行文应当同时抄送发文机关的直接上级机关。
(二)*党**委、政府的办公厅(室)根据本级*党**委、政府授权,可以向下级*党**委、政府行文,其他部门和单位不得向下级*党**委、政府发布指令性公文或者在公文中向下级*党**委、政府提出指令性要求。需经政府审批的具体事项,经政府同意后可以由政府职能部门行文,文中须注明已经政府同意。
(三)*党**委、政府的部门在各自职权范围内可以向下级*党**委、政府的相关部门行文。
(四)涉及多个部门职权范围内的事务,部门之间未协商一致的,不得向下行文;擅自行文的,上级机关应当责令其纠正或者撤销。
(五)上级机关向受双重领导的下级机关行文,必要时抄送该下级机关的另一个上级机关。
第十七条 同级*党**政机关、*党**政机关与其他同级机关必要时可以联合行文。属于*党**委、政府各自职权范围内的工作,不得联合行文。
*党**委、政府的部门依据职权可以相互行文。
部门内设机构除办公厅(室)外不得对外正式行文。
第五章 公文拟制
第十八条 公文拟制包括公文的起草、审核、签发等程序。
第十九条 公文起草应当做到:
(一)符合*党**的理论路线方针政策和国家法律法规,完整准确体现发文机关意图,并同现行有关公文相衔接。
(二)一切从实际出发,分析问题实事求是,所提政策措施和办法切实可行。
(三)内容简洁,主题突出,观点鲜明,结构严谨,表述准确,文字精练。
(四)文种正确,格式规范。
(五)深入调查研究,充分进行论证,广泛听取意见。
(六)公文涉及其他地区或者部门职权范围内的事项,起草单位必须征求相关地区或者部门意见,力求达成一致。
(七)机关负责人应当主持、指导重要公文起草工作。
第二十条 公文文稿签发前,应当由发文机关办公厅(室)进行审核。审核的重点是:
(一)行文理由是否充分,行文依据是否准确。
(二)内容是否符合*党**的理论路线方针政策和国家法律法规;是否完整准确体现发文机关意图;是否同现行有关公文相衔接;所提政策措施和办法是否切实可行。
(三)涉及有关地区或者部门职权范围内的事项是否经过充分协商并达成一致意见。
(四)文种是否正确,格式是否规范;人名、地名、时间、数字、段落顺序、引文等是否准确;文字、数字、计量单位和标点符号等用法是否规范。
(五)其他内容是否符合公文起草的有关要求。
需要发文机关审议的重要公文文稿,审议前由发文机关办公厅(室)进行初核。
第二十一条 经审核不宜发文的公文文稿,应当退回起草单位并说明理由;符合发文条件但内容需作进一步研究和修改的,由起草单位修改后重新报送。
第二十二条 公文应当经本机关负责人审批签发。重要公文和上行文由机关主要负责人签发。*党**委、政府的办公厅(室)根据*党**委、政府授权制发的公文,由受权机关主要负责人签发或者按照有关规定签发。签发人签发公文,应当签署意见、姓名和完整日期;圈阅或者签名的,视为同意。联合发文由所有联署机关的负责人会签。
第六章 公文办理
第二十三条 公文办理包括收文办理、发文办理和整顿归档。
第二十四条 收文办理主要程序是:
(一)签收。对收到的公文应当逐件清点,核对无误后签字或者盖章,并注明签收时间。
(二)登记。对公文的主要信息和办理情况应当详细记载。
(三)初审。对收到的公文应当进行初审。初审的重点是:是否应当由本机关办理,是否符合行文规则,文种、格式是否符合要求,涉及其他地区或者部门职权范围内的事项是否已经协商、会签,是否符合公文起草的其他要求。经初审不符合规定的公文,应当及时退回来文单位并说明理由。
(四)承办。阅知性公文应当根据公文内容、要求和工作需要确定范围后分送。批办性公文应当提出拟办意见报本机关负责人批示或者转有关部门办理;需要两个以上部门办理的,应当明确主办部门。紧急公文应当明确办理时限。承办部门对交办的公文应当及时办理,有明确办理时限要求的应当在规定时限内办理完毕。
(五)传阅。根据领导批示和工作需要将公文及时送传阅对象阅知或者批示。办理公文传阅应当随时掌握公文去向,不得漏传、误传、延误。
(六)催办。及时了解掌握公文的办理进展情况,督促承办部门按期办结。紧急公文或者重要公文应当由专人负责催办。
(七)答复。公文的办理结果应当及时答复来文单位,并根据需要告知相关单位。
第二十五条 发文办理主要程序是:
(一)复核。已经发文机关负责人签批的公文,印发前应当对公文的审批手续、内容、文种、格式等进行复核;需作实质性修改的,应当报原签批人复审。
(二)登记。对复核后的公文,应当确定发文字号、分送范围和印制份数并详细记载。
(三)印制。公文印制必须确保质量和时效。涉密公文应当在符合保密要求的场所印制。
(四)核发。公文印制完毕,应当对公文的文字、格式和印刷质量进行检查后分发。
第二十六条 涉密公文应当通过机要交通、邮政机要通信、城市机要文件交换站或者收发件机关机要收发人员进行传递,通过密码电报或者符合国家保密规定的计算机信息系统进行传输。
第二十七条 需要归档的公文及有关材料,应当根据有关档案法律法规以及机关档案管理规定,及时收集齐全、整顿归档。两个以上机关联合办理的公文,原件由主办机关归档,相关机关保存复制件。机关负责人兼任其他机关职务的,在履行所兼职务过程中形成的公文,由其兼职机关归档。
第七章 公文管理
第二十八条 各级*党**政机关应当建立健全本机关公文管理制度,确保管理严格规范,充分发挥公文效用。
第二十九条 *党**政机关公文由文秘部门或者专人统一管理。设立*党**委(*党**组)的县级以上单位应当建立机要保密室和机要阅文室,并按照有关保密规定配备工作人员和必要的安全保密设施设备。
第三十条 公文确定密级前,应当按照拟定的密级先行采取保密措施。确定密级后,应当按照所定密级严格管理。绝密级公文应当由专人管理。
公文的密级需要变更或者解除的,由原确定密级的机关或者其上级机关决定。
第三十一条 公文的印发传达范围应当按照发文机关的要求执行;需要变更的,应当经发文机关批准。
涉密公文公开发布前应当履行解密程序。公开发布的时间、形式和渠道,由发文机关确定。
经批准公开发布的公文,同发文机关正式印发的公文具有同等效力。
第三十二条 复制、汇编机密级、秘密级公文,应当符合有关规定并经本机关负责人批准。绝密级公文一般不得复制、汇编,确有工作需要的,应当经发文机关或者其上级机关批准。复制、汇编的公文视同原件管理。
复制件应当加盖复制机关戳记。翻印件应当注明翻印的机关名称、日期。汇编本的密级按照编入公文的最高密级标注。
第三十三条 公文的撤销和废除,由发文机关、上级机关或者权力机关根据职权范围和有关法律法规决定。公文被撤销的,视为自始无效;公文被废除的,视为自废除之日起失效。
第三十四条 涉密公文应当按照发文机关的要求和有关规定进行清退或者销毁。
第三十五条 不具备归档和保存价值的公文,经批准后可以销毁。销毁涉密公文必须严格按照有关规定履行审批登记手续,确保不丢失、不漏销。个人不得私自销毁、留存涉密公文。
第三十六条 机关合并时,全部公文应当随之合并管理;机关撤销时,需要归档的公文经整顿后按照有关规定移交档案管理部门。
工作人员离岗离职时,所在机关应当督促其将暂存、借用的公文按照有关规定移交、清退。
第三十七条 新设立的机关应当向本级*党**委、政府的办公厅(室)提出发文立户申请。经审查符合条件的,列为发文单位,机关合并或者撤销时,相应进行调整。
第八章 附 则
第三十八条 *党**政机关公文含电子公文。电子公文处理工作的具体办法另行制定。
第三十九条 法规、规章方面的公文,依照有关规定处理。外事方面的公文,依照外事主管部门的有关规定处理。
第四十条 其他机关和单位的公文处理工作,可以参照本条例执行。
第四十一条 本条例由*共中**中央办公厅、国务院办公厅负责解释。
第四十二条 本条例自2012年7月1日起施行。1996年5月3日*共中**中央办公厅发布的《中国*产党共**机关公文处理条例》和2000年8月24日国务院发布的《国家行政机关公文处理办法》停止执行。
解读
《*党**政机关公文处理工作条例》:七个变化,九个细节
《条例》的发布施行,对推进*党**政机关公文处理工作科学化、制度化、规范化将发挥重要作用。与《办法》对比,《条例》中出现了许多新的变化,主要表现在以下七个方面:
一、公文处理的概念更加科学
《办法》规定"公文处理是指公文的办理、管理、整顿(立卷)、归档等一系列相互关联、衔接有序的工作",《条例》中按照公文办理的工作流程将公文办理工作概括为"拟制、办理、管理"三个相互关联、衔接有序的工作环节,简洁明了,"拟制"包括了"起草、审核、签发"三个环节(《办法》中隶属于发文办理),同时将整顿(立卷)、归档划归至公文办理范畴。
二、公文的种类更加丰富
原《办法》中规定公文种类为13种,新《条例》中规定公文种类为15种,增加了"决议"(适用于会议讨论通过的重大决策事项)和"公报"(适用于公布重要决定或者重大事项),同时将"会议纪要"改为"纪要"。
三、公文要素做出了调整
《办法》第三章第九条规定"公文一般由份号、密级和保密期限、紧急程度、发文机关标志、发文字号、签发人、标题、主送机关、正文、附件说明、发文机关署名、成文日期、印章、附注、附件、抄送机关、印发机关和印发日期、页码等组成",增加了"份号"、"发文机关署名"、"页码",减少了"主题词",成文及发文日期中的数字改用阿拉伯数字。同时,对涉密文件、紧急公文、联合行文、公文标题等有了明确的规定:涉密文件要标注份号,紧急公文标注"特急""加急",联合发文可以单独用主办机关名称,公文标题应标明发文机关,有特定发文机关标志的普发性公文可以不加盖公章等。
四、行文规则上做了具体规定
《条例》中规定向上级机关行文"原则上主送一个上级机关";"*党**委、政府的部门向上级主管部门请示、报告重大事项,应当经本级*党**委、政府同意或者授权";"请示"应当一文一事,并要提出倾向性意见;"除上级机关负责人直接交办事项外,不得以本机关名义向上级机关负责人报送公文,不得以本机关负责人名义向上级机关报送公文";向下级机关行文也有明确的规定,"*党**委、政府的办公厅(室)根据本级*党**委、政府授权,可以向下级*党**委、政府行文,其他部门和单位不得向下级*党**委、政府发布指令性公文或者在公文中向下级*党**委、政府提出指令性要求。需经政府审批的具体事项,经政府同意后可以由政府职能部门行文,文中须注明已经政府同意"、"*党**委、政府的部门在各自职权范围内可以向下级*党**委、政府的相关部门行文"。
五、文件签发程序更加规范
《条例》规定"重要公文和上行文由机关主要负责人签发"(《办法》只对上行文作此规定),"*党**委、政府的办公厅(室)根据*党**委、政府授权制发的公文,由受权机关主要负责人签发或者按照有关规定签发"。
六、公文办理环节更加简明
收文办理环节增加了"承办"和"传阅"环节,对"承办"和"传阅"环节也做出了具体的规定和要求;发文办理环节减少为四个,将"起草"、"审核"、"签发"环节划归到"公文拟制"部分了,"用印"划分到"印制"部分了。
七、公文管理环节更加严格
第七章第二十九条规定"*党**政机关公文由文秘部门或者专人统一管理。设立*党**委(*党**组)的县级以上单位应当建立机要保密室和机要阅文室,并按照有关保密规定配备工作人员和必要的安全保密设施设备",第三十二条对"复制、汇编机密级、秘密级公文"也做出了明确详细的规定。
对照两办的《条例》检查工文办理过程中的格式和办理环节,"公务员考试之路"新浪博客博主上海刘源老师还发现有很多与新要求不一致的地方,疏理之后发现主要表现在以下九个方面:
1、明确密级及保密期限。经过定密程序定为秘密文件的,应当在文件上标注密级及保密期限,规范用语为"绝密""机密""秘密"。
2、明确紧急程度。有时审计工作时间紧、任务重,在安排布署工作发文时,要在文件上标明紧急程度,文件上的规范用语应标注"特急""加急",电报上的规范用语应标注"特提""特急""加急""平急"。
3、规范发文标志。《条例》中规定发文标志"由发文机关全称或者规范化简称加’文件’二字组成,也可以使用发文机关全称或者规范化简称。联合行文时,发文机关标志可以并用联合发文机关名称,也可以单独用主办机关名称",对于一个部门一个单位应有一个统一规定,是用发文机关全称,还是用规范化简称加"文件"两字,必须统一。有时用发文机关全称,有时用简称加"文件"两字,让人犯疑。
4、落实签发人。在《条例》中文件格式部分对"签发人"有明确的要求:重要公文和上行文应当标注签发人姓名。
5、规范文件标题。文件标题由发文机关名称、事由和文种组成,在工作实务中,有时由于文件标题太长,文件上又有发文标志,往往在标题中忽略了发文机关名称,亟需规范。
6、规范文件落款。在《条例》第三章文件格式部分中,增加了"发文机关署名"的内容("署发文机关全称或者规范化简称"),在现实中因为要加盖单位公章,或文件头上已有发文标志,往往只署发文日期,没署发文机关,亟需改正。
7、规范成文日期。按照《条例》中的规定"署会议通过或者发文机关负责人签发的日期。联合行文时,署最后签发机关负责人签发的日期。"
8、删除主题词一栏。在公文的要素上,《条例》中减少了"主题词"的内容,在以后制文时就需删除这一栏内容,同时还规范抄送机关和印发机关及印发日期:除主送机关外需要执行或者知晓公文内容的其他机关,应当使用机关全称、规范化简称或者同类型机关统称。
9、严格上行文的报送程序:*党**委、政府的部门向上级主管部门请示、报告重大事项,应当经本级*党**委、政府同意或者授权;属于部门职权范围内的事项应当直接报送上级主管部门。
至于文件的字体、字号、版式等,按照《*党**政机关公文格式》国家标准执行。
《*党**政机关公文格式》
1 范围
本标准规定了*党**政机关公文通用的纸张要求、排版和印制装订要求、公文格式各要素的编排规则,并给出了公文的式样。
本标准适用于各级*党**政机关制发的公文。其他机关和单位的公文可以参照执行。
使用少数民族文字印制的公文,其用纸、幅面尺寸及版面、印制等要求按照本标准执行,其余可以参照本标准并按照有关规定执行。
2 规范性引用文件
下列文件对于本标准的应用是必不可少的。凡是注日期的引用文件,仅所注日期的版本适用于本标准。凡是不注日期的引用文件,其最新版本(包括所有的修改单)适用于本标准。
GB/T 148 印刷、书写和绘图纸幅面尺寸
GB 3100 国际单位制及其应用
GB 3101 有关量、单位和符号的一般原则
GB 3102(所有部分) 量和单位
GB/T 15834 标点符号用法
GB/T 15835 出版物上数字用法
3 术语和定义
下列术语和定义适用于本标准。
3.1
字 word
标示公文中横向距离的长度单位。在本标准中,一字指一个汉字宽度的距离。
3.2
行 line
标示公文中纵向距离的长度单位。在本标准中,一行指一个汉字的高度加3号汉字高度的7/8的距离。
4 公文用纸主要技术指标
公文用纸一般使用纸张定量为60 g/m2—80 g/m2的胶版印刷纸或复印纸。纸张白度80%—90%,横向耐折度≥15次,不透明度≥85%,pH值为7.5—9.5。
5 公文用纸幅面尺寸及版面要求
5.1 幅面尺寸
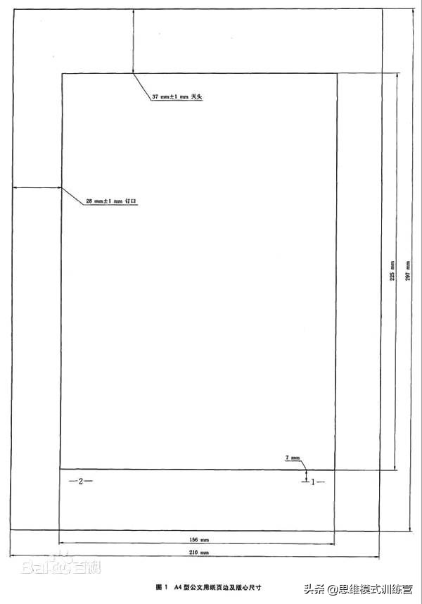
公文用纸采用GB/T 148中规定的A4型纸,其成品幅面尺寸为:210 mm×297 mm。
5.2 版面
5.2.1 页边与版心尺寸
公文用纸天头(上白边)为37 mm±1 mm,公文用纸订口(左白边)为28mm±1mm,版心尺寸为156 mm×225 mm。
5.2.2 字体和字号
如无特殊说明,公文格式各要素一般用3号仿宋体字。特定情况可以作适当调整。
5.2.3 行数和字数
一般每面排22行,每行排28个字,并撑满版心。特定情况可以作适当调整。
5.2.4 文字的颜色
如无特殊说明,公文中文字的颜色均为黑色。
6 印制装订要求
6.1 制版要求
版面干净无底灰,字迹清楚无断划,尺寸标准,版心不斜,误差不超过1 mm。
6.2 印刷要求
双面印刷;页码套正,两面误差不超过2 mm。黑色油墨应当达到色谱所标BL100%,红色油墨应当达到色谱所标Y80%、M80%。印品着墨实、均匀;字面不花、不白、无断划。
6.3 装订要求
公文应当左侧装订,不掉页,两页页码之间误差不超过4 mm,裁切后的成品尺寸允许误差±2mm,四角成90º,无毛茬或缺损。
骑马订或平订的公文应当:
a)订位为两钉外订眼距版面上下边缘各70 mm处,允许误差±4mm;
b)无坏钉、漏钉、重钉,钉脚平伏牢固;
c)骑马订钉锯均订在折缝线上,平订钉锯与书脊间的距离为3mm—5mm。
包本装订公文的封皮(封面、书脊、封底)与书芯应吻合、包紧、包平、不脱落。
7 公文格式各要素编排规则
7.1 公文格式各要素的划分
本标准将版心内的公文格式各要素划分为版头、主体、版记三部分。公文首页红色分隔线以上的部分称为版头;公文首页红色分隔线(不含)以下、公文末页首条分隔线(不含)以上的部分称为主体;公文末页首条分隔线以下、末条分隔线以上的部分称为版记。 页码位于版心外。
7.2 版头
7.2.1 份号
如需标注份号,一般用6位3号阿拉伯数字,顶格编排在版心左上角第一行。
7.2.2 密级和保密期限
如需标注密级和保密期限,一般用3号黑体字,顶格编排在版心左上角第二行;保密期限中的数字用阿拉伯数字标注。
7.2.3 紧急程度
如需标注紧急程度,一般用3号黑体字,顶格编排在版心左上角;如需同时标注份号、密级和保密期限、紧急程度,按照份号、密级和保密期限、紧急程度的顺序自上而下分行排列。
7.2.4 发文机关标志
由发文机关全称或者规范化简称加“文件”二字组成,也可以使用发文机关全称或者规范化简称。
发文机关标志居中排布,上边缘至版心上边缘为35mm,推荐使用小标宋体字,颜色为红色,以醒目、美观、庄重为原则。
联合行文时,如需同时标注联署发文机关名称,一般应当将主办机关名称排列在前;如有“文件”二字,应当置于发文机关名称右侧,以联署发文机关名称为准上下居中排布。
7.2.5 发文字号
编排在发文机关标志下空二行位置,居中排布。年份、发文顺序号用阿拉伯数字标注;年份应标全称,用六角括号“〔〕”括入;发文顺序号不加“第”字,不编虚位(即1不编为01),在阿拉伯数字后加“号”字。
上行文的发文字号居左空一字编排,与最后一个签发人姓名处在同一行。
7.2.6 签发人
由“签发人”三字加全角冒号和签发人姓名组成,居右空一字,编排在发文机关标志下空二行位置。“签发人”三字用3号仿宋体字,签发人姓名用3号楷体字。
如有多个签发人,签发人姓名按照发文机关的排列顺序从左到右、自上而下依次均匀编排,一般每行排两个姓名,回行时与上一行第一个签发人姓名对齐。
7.2.7 版头中的分隔线
发文字号之下4 mm处居中印一条与版心等宽的红色分隔线。
7.3 主体
7.3.1 标题
一般用2号小标宋体字,编排于红色分隔线下空二行位置,分一行或多行居中排布;回行时,要做到词意完整,排列对称,长短适宜,间距恰当,标题排列应当使用梯形或菱形。
7.3.2 主送机关
编排于标题下空一行位置,居左顶格,回行时仍顶格,最后一个机关名称后标全角冒号。如主送机关名称过多导致公文首页不能显示正文时,应当将主送机关名称移至版记,标注方法见7.4.2。
7.3.3 正文
公文首页必须显示正文。一般用3号仿宋体字,编排于主送机关名称下一行,每个自然段左空二字,回行顶格。文中结构层次序数依次可以用“一、”“(一)”“1.”“(1)”标注;一般第一层用黑体字、第二层用楷体字、第三层和第四层用仿宋体字标注。
7. 3.4 附件说明
如有附件,在正文下空一行左空二字编排“附件”二字,后标全角冒号和附件名称。如有多个附件,使用阿拉伯数字标注附件顺序号(如“附件:1. XXXXX”);附件名称后不加标点符号。附件名称较长需回行时,应当与上一行附件名称的首字对齐。
7.3.5 发文机关署名、成文日期和印章
7.3.5.1 加盖印章的公文
成文日期一般右空四字编排,印章用红色,不得出现空白印章。
单一机关行文时,一般在成文日期之上、以成文日期为准居中编排发文机关署名,印章端正、居中下压发文机关署名和成文日期,使发文机关署名和成文日期居印章中心偏下位置,印章顶端应当上距正文(或附件说明)一行之内。
联合行文时,一般将各发文机关署名按照发文机关顺序整齐排列在相应位置,并将印章一一对应、端正、居中下压发文机关署名,最后一个印章端正、居中下压发文机关署名和成文日期,印章之间排列整齐、互不相交或相切,每排印章两端不得超出版心,首排印章顶端应当上距正文(或附件说明)一行之内。
7.3.5.2 不加盖印章的公文
单一机关行文时,在正文(或附件说明)下空一行右空二字编排发文机关署名,在发文机关署名下一行编排成文日期,首字比发文机关署名首字右移二字,如成文日期长于发文机关署名,应当使成文日期右空二字编排,并相应增加发文机关署名右空字数。
联合行文时,应当先编排主办机关署名,其余发文机关署名依次向下编排。
7.3.5.3 加盖签发人签名章的公文
单一机关制发的公文加盖签发人签名章时,在正文(或附件说明)下空二行右空四字加盖签发人签名章,签名章左空二字标注签发人职务,以签名章为准上下居中排布。在签发人签名章下空一行右空四字编排成文日期。
联合行文时,应当先编排主办机关签发人职务、签名章,其余机关签发人职务、签名章依次向下编排,与主办机关签发人职务、签名章上下对齐;每行只编排一个机关的签发人职务、签名章;签发人职务应当标注全称。签名章一般用红色。
7.3.5.4 成文日期中的数字
用阿拉伯数字将年、月、日标全,年份应标全称,月、日不编虚位(即1不编为01)。
7.3.5.5 特殊情况说明
当公文排版后所剩空白处不能容下印章或签发人签名章、成文日期时,可以采取调整行距、字距的措施解决。
7.3.6 附注
如有附注,居左空二字加圆括号编排在成文日期下一行。
7.3.7 附件
附件应当另面编排,并在版记之前,与公文正文一起装订。“附件”二字及附件顺序号用3号黑体字顶格编排在版心左上角第一行。附件标题居中编排在版心第三行。附件顺序号和附件标题应当与附件说明的表述一致。附件格式要求同正文。
如附件与正文不能一起装订,应当在附件左上角第一行顶格编排公文的发文字号并在其后标注“附件”二字及附件顺序号。
7.4 版记
7.4.1 版记中的分隔线
版记中的分隔线与版心等宽,首条分隔线和末条分隔线用粗线(推荐高度为0. 35 mm),中间的分隔线用细线(推荐高度为0. 25 mm)。首条分隔线位于版记中第一个要素之上,末条分隔线与公文最后一面的版心下边缘重合。
7.4.2 抄送机关
如有抄送机关,一般用4号仿宋体字,在印发机关和印发日期之上一行、左右各空一字编排。“抄送”二字后加全角冒号和抄送机关名称,回行时与冒号后的首字对齐,最后一个抄送机关名称后标句号。
如需把主送机关移至版记,除将“抄送”二字改为“主送”外,编排方法同抄送机关。既有主送机关又有抄送机关时,应当将主送机关置于抄送机关之上一行,之间不加分隔线。
7.4.3 印发机关和印发日期
印发机关和印发日期一般用4号仿宋体字,编排在末条分隔线之上,印发机关左空一字,印发日期右空一字,用阿拉伯数字将年、月、日标全,年份应标全称,月、日不编虚位(即1不编为01),后加“印发”二字。
版记中如有其他要素,应当将其与印发机关和印发日期用一条细分隔线隔开。
7.5 页码
一般用4号半角宋体阿拉伯数字,编排在公文版心下边缘之下,数字左右各放一条一字线;一字线上距版心下边缘7 mm。单页码居右空一字,双页码居左空一字。公文的版记页前有空白页的,空白页和版记页均不编排页码。公文的附件与正文一起装订时,页码应当连续编排。
8 公文中的横排表格
A4纸型的表格横排时,页码位置与公文其他页码保持一致,单页码表头在订口一边,双页码表头在切口一边。
9 公文中计量单位、标点符号和数字的用法
公文中计量单位的用法应当符合GB 3100、GB 3101和GB 3102(所有部分),标点符号的用法应当符合GB/T 15834,数字用法应当符合GB/T 15835。
10 公文的特定格式
10.1 信函格式
发文机关标志使用发文机关全称或者规范化简称,居中排布,上边缘至上页边为30mm,推荐使用红色小标宋体字。联合行文时,使用主办机关标志。
发文机关标志下4 mm处印一条红色双线(上粗下细),距下页边20 mm处印一条红色双线(上细下粗),线长均为170 mm,居中排布。
如需标注份号、密级和保密期限、紧急程度,应当顶格居版心左边缘编排在第一条红色双线下,按照份号、密级和保密期限、紧急程度的顺序自上而下分行排列,第一个要素与该线的距离为3号汉字高度的7/8。
发文字号顶格居版心右边缘编排在第一条红色双线下,与该线的距离为3号汉字高度的7/8。
标题居中编排,与其上最后一个要素相距二行。
第二条红色双线上一行如有文字,与该线的距离为3号汉字高度的7/8。
首页不显示页码。
版记不加印发机关和印发日期、分隔线,位于公文最后一面版心内最下方。
10.2 命令(令)格式
发文机关标志由发文机关全称加“命令”或“令”字组成,居中排布,上边缘至版心上边缘为20 mm,推荐使用红色小标宋体字。
发文机关标志下空二行居中编排令号,令号下空二行编排正文。
签发人职务、签名章和成文日期的编排见7.3.5.3。
10.3 纪要格式
纪要标志由“XXXXX纪要”组成,居中排布,上边缘至版心上边缘为35 mm,推荐使用红色小标宋体字。
标注出席人员名单,一般用3号黑体字,在正文或附件说明下空一行左空二字编排“出席”二字,后标全角冒号,冒号后用3号仿宋体字标注出席人单位、姓名,回行时与冒号后的首字对齐。
标注请假和列席人员名单,除依次另起一行并将“出席”二字改为“请假”或“列席”外,编排方法同出席人员名单。
纪要格式可以根据实际制定。
11 式样
A4型公文用纸页边及版心尺寸见图1;公文首页版式见图2;联合行文公文首页版式1见图3;联合行文公文首页版式2见图4;公文末页版式1见图5;公文末页版式2见图6;联合行文公文末页版式1见图7;联合行文公文末页版式2见图8;附件说明页版式见图9;带附件公文末页版式见图10;信函格式首页版式见图11;命令(令)格式首页版式见图12。

公文格式图解

公文格式图解

公文格式图解

公文格式图解

公文格式图解

公文格式图解

公文格式图解

公文格式图解

公文格式图解

公文格式图解

公文格式图解

公文格式图解

公文格式图解

公文格式图解

公文格式图解

公文格式图解

公文格式图解

公文格式图解

公文格式图解

公文格式图解

公文格式图解

公文格式图解

公文格式图解