看户型的时候我们都知道,方正的平面更好住, 一旦遇到带斜角的户型平面,就要充分考验屋主和设计师的功力了。
因为好的方案不仅能因势利导、化腐朽为神奇,更能为房间带来特别的气质。
今天与大家分享的案例,就是住范儿的客户王女士和陈先生的家。
虽然原始户型优势不大,但依然靠着绝妙的设计,设计师成功创造出明亮宽敞的客餐厨空间。
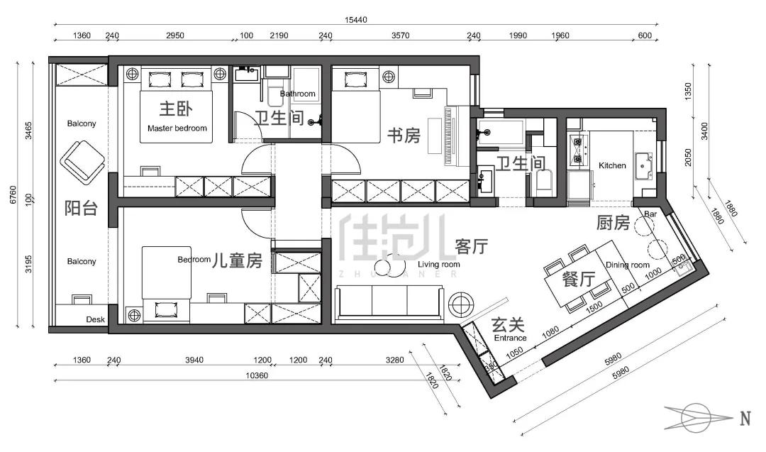
原始户型问题:
● 餐厅和北窗朝向和客厅形成夹角,需要考虑如何划分区域和布置,更好使用又不显空间怪异;
● 客厅面积大而无当,交通空间过多,使用效率不高,电视墙太短;
● 书房面积太小,无法满足未来两孩独立房间的需求;
● 储藏空间不足,无法满足二孩家庭的使用需要。

原始户型图
改造重点:
● 中西厨设计,形成岛台和早餐台,备餐和储物功能结合,解决了原来东西不够放的难题。
● 利用玄关和餐厨统一的朝向,营造出两个空间互相嵌套的体验,令空间转变自然流畅。
● 电视墙前移,改变了开门方向,增加书房面积的同时,也使客厅使用效率提高了。
● 原来用柜子隔成的双阳台,恢复成整体阳台,贯串儿童房和主卧,变成有趣的亲子空间。
● 改变卧室的开门方向,把通向四个空间的主要通道“藏起来”,家的右边是动区,进过道之后就是休息的静区。
● 改变动线之后,客卫特意做了幽灵门,弱化门的存在感,避免尴尬,并做了三分离。

平面布置图
房屋位置: 上海
房屋面积: 建面128㎡,套内99.15㎡
房屋户型: 三室两厅两厨两卫
装修套餐: 颜值革命4.0 A 系列
全部花费:40万(硬装23万+家具电器17万)
常住人口:4人
设计经理: 王文君
卧室和厨卫都是正南北方向,但餐厅区域却是斜边空间,为了消除不规整空间的不适感,设计师和屋主特意 刷上了绿色的墙面色块 。
再通过家具的布置,灯光布局和屏风摆放 ,把这个空间的两个朝向做合理的划分。

装饰风格上,屋主和设计师意见一致, 倾向于稳重素雅的整体色调,讲究材质本身的质感,更看重品质而不是装饰性 。
01
玄关

原始户型中没有玄关,进门左边设计整墙鞋柜, 柜体凹槽用作换鞋凳和挂衣区 ,水泥灰色耐看也好搭配。

柜体下方留空正好收纳一家人的外穿鞋子,不会担心灰尘弄脏柜内空间, 柜门无把手设计,很好的避免了孩子的磕碰撞伤 。

因为厨房用了长虹玻璃,所以进门也用两片长虹玻璃做缓冲,不会一开门就看到整个厅,光线也可以毫无遮挡的穿透过去。
玄关桌上放上一些植物,回家瞬间充满生态自然感。

进门右边的布置和墙面平行,靠近北面光线比较好,所以大胆用绿色刷涂天花板和玄关一侧的墙面, 靠色彩来定义空间 。

02
西厨+餐厅

不规整的空间成为了西厨+餐厅的组合功能区 ,靠近窗户的区域用作早餐台,预留出连接中厨的纵向通道。
墙角天花板安装了监控 ,碰到屋主出差孩子在家的情况,可以随时了解家里的情况。
厨房的橱柜和中岛立面都是灰色, 整个家的装修风格是以黑白灰为主,剩下的主色是屋主喜欢的鼠尾草绿 ,一些木色家具和绿植点缀,住多久也不会视觉疲劳。

中岛刚好划分开西厨和餐厅,岩板餐桌尺寸是1.4×0.85m,紧贴着中岛,为餐桌两侧预留舒适的活动空间;
既要满足储物功能,又不能占太多面积 ,还要搭配餐桌与岛台,挑了好久才找到这款 20cm的岩板顶面餐边柜 。

墙漆色号PPG1124-4
餐桌后面做了一个 U型转角的西厨空间岛台 ,做早餐或者看着外面发呆都很好。
墙面开放格置物架放一些常用的茶饮和咖啡, 储备的物品放在台面下方的开放格 ,方便拿取又不会在视觉上显得杂乱。
全屋地暖的水路也隐藏在吧台下方,检修维护很方便。

因为位于中户,阳台没有下水,卫生间的空间又很有限,索性 把洗衣机和烘干机放在岛台下方隐藏起来 ,作为折中的方案。
平时清洁处理衣物,用烘干机就足够了,实在需要晾衣服,就用小篮子装好拿到阳台去,并不麻烦。
放在这里还有一个好处,机器操作起来的噪音,不会影响家人在卧室休息。

餐厅的灯光做了多元化的设计 ,除了射灯,中岛吧台和餐桌上方都是屋主精心挑选的高颜值吊灯。



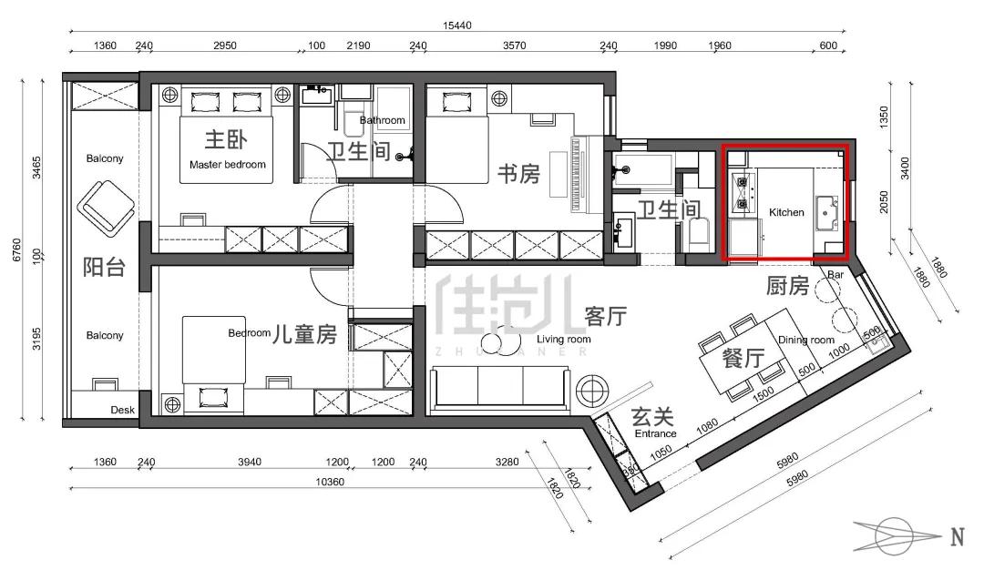
03
中厨

邻近西厨就是原来的厨房,本身面积比较小,屋主希望能把双开门冰箱放进厨房,就改导致了专门的中厨, 根据使用习惯设计成U型的操作台面 。
正对着厨房透明推拉门的,是屋主 经过无数次数据研究、挑选比对而选 的 德普蒸烤一体集成灶,吸力非常大 ,方便屋主父母偶尔过来炒炒菜。
下面配彩屏的 大容量蒸烤一体箱 也很好用,旁边的地柜内安装了西门子洗碗机,用柜板隐藏成与橱柜一体。

上方的L型橱柜一直延伸到冰箱上方, 小空间用白色的柜门看起来更加轻盈 ;威能锅炉很完美尺寸嵌在西厨右侧空间。
开放格在顺手拿取的高度,保持空无一物的台面就是高效率厨房的关键!

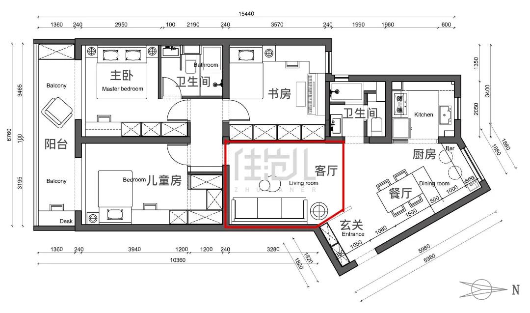
04
客厅

改造前的客厅面积比较大,电视背景墙是书房的外侧墙,改造之后把墙面往前挪,和客卫的墙面拉平, 缩减客厅的面积,扩大了书房的空间 。
这也是出于 对客厅使用功能的综合考虑 ,客厅平时用的不多,偶尔看看电视,铺上大块灰色花纹地毯,方便孩子们娱乐玩耍。
靠近卧室的墙面安置了展示柜和书柜的结合体, 沙发背后灰色的艺术漆墙面,搭配中和了灰色皮沙发和地毯的色调 。


单*皮人**沙发坐感很舒适,本身价格不算贵,但做工很扎实,跟功能沙发一样可以升降和调整。
之前家里一直用的比较简洁的布艺沙发,虽然皮质维护起来会稍微麻烦一点,搬新家还是决定换成了更显品质和坐感更舒适的皮沙发,也提前跟孩子说好要多多注意。



客厅和电视之间的走道通向静区,为了保持足够宽敞舒适的距离, 没有定制整墙电视柜,65寸的电视直接放在电视矮柜上 。

从客厅看向厨房,并没有不规则空间带来的视觉不适感,各个区域通过 色块和家具布局 ,规整得很清晰。

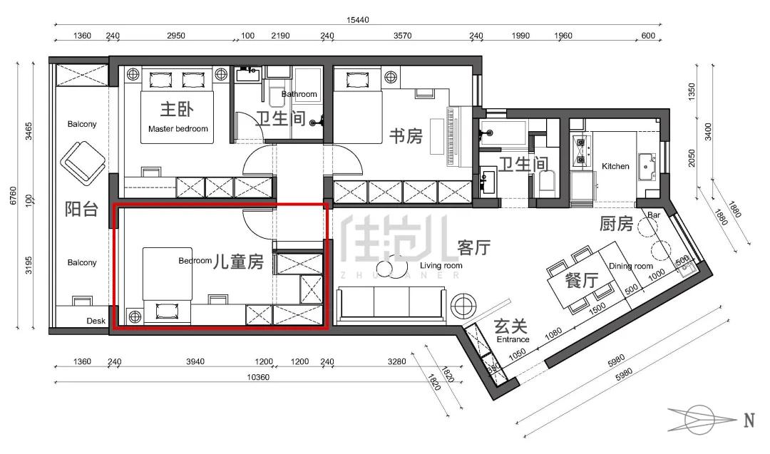
05
儿童房

客厅的弧形门洞用 不锈钢折边 ,通过门洞就进入了整个家的静区, 过道直接连接两个卧室、书房和客厅 。

墙面刷上了水泥墙, 儿童房外打算定制一个玩具展示柜,还在设计中 ,暂时放了一个薄书架, 另一侧主卧外墙是素描稿的大幅挂画,色调完全统一。


儿童房的颜色稍微活泼一些,墙面用浅桃色,所有家具陈设尽量靠墙摆放,中间就能空出充足的活动空间。
两个孩子姐姐是10岁,弟弟是5岁, 儿童房是姐姐的独立房间,写完作业就能直接休息 ,弟弟可以睡双层床或者和爸爸妈妈睡。
等上了小学之后,再把书房改成弟弟的房间。

墙漆色号PPG1195-2
金属书架整整齐齐的归置了图书、画册和玩具摆件,书架的内壁很薄,最大化了收纳空间,又不会被图书压变形。

高低床是宜家新出的产品,比较扎实,用起来很不错 ,白色灰色也符合这个房间灰*粉白**的颜色搭配。
床头靠近储物柜的地方,刚好塞下白色薄款小书架,整墙储物柜隐藏着U型 可步入的衣帽间 ,放孩子一些换季的衣物和不常用的物品,完全没问题。


当时决定买下这套房子,明亮宽敞的双阳台也是决定因素之一 ,装修上没有做太多的调整,只是把原来隔开的阳台连通,视觉上更透气。
因为很劳碌,不打算给自己压力太大, 搬家还没来得及规整的纸箱,暂时先放在窗户下方,慢慢整顿 ;靠墙安装储物柜和阳台洗漱空间,旁边是家里的小宠物龙猫。


阳台夜景
06
书房

扩大后的书房,在门后增加了一整面墙的储物空间。
墙面刷了和西厨餐厅一样的绿色,地板则偏偏挑了较深的胡桃木色,中间的水泥灰定制柜中和色调 ,整个空间的颜色选择极其克制。

暂时用作书房,所以没有摆放床,而是布置了 办公桌、书柜和钢琴 ,统一的黑色简约风格。


墙漆色号PPG1124-4
07
主卧

主卧是运用绿色最多的空间, 进门最抢眼的就是绿色的衣柜柜门 ,当时正因为一眼看中了这个颜色,才决定把它作为卧室的主色调。
绿色砂岩质感墙纸和光滑的绿色柜门,丰富了空间的的材质搭配 ,剩下的颜色就是地板、床边柜和窗帘统一的棕黄色森林系。


胡桃木的双人床和床边柜都是维莎原木的产品,活动时性价比很高, 床头板设计了一个凹槽小搁架,内嵌灯光,手机眼镜放在上面不容易掉,也方便充电 。
对屋主夫妻俩来说,床最重要的就是床垫,金可儿35cm床垫表面很柔软,下面的支撑又很足够,睡感很放松。
是两人一张张试睡下来最完美契合了两个人的睡感要求的一张床垫。


为了扩大主卫的空间,卧室的宽度向内缩了一些。
只放一个床头柜, 靠近卫生间的墙面放置床边柜,可以放喜欢的书还有各种护肤用品,代替了化妆台 。上面放置投影仪,后期会在柜门上安置电动投影幕布,已预留插座。
因为 卫生间是暗卫,设计师在主卧和主卫之间的墙面安装了一排气泡玻璃砖 ,从阳台透过来的自然光也可以照进来,不会太闷和压抑。
晚上卧室也会透出浴室里温暖的黄光,很温馨。


从卧室进门看向阳台,宽阔的视野让空间扩容不少,之前窗户用的是移窗,噪音直接影响两个卧室的睡眠质量, 换成系统门窗之后,关上基本没有声音,隔音效果很好 。
儿童房和主卧的双阳台打通之后, 6.7m的长阳台成为孩子最喜欢的娱乐区域 。


08
卫生间

主卫和客卫两个卫生间都是完全隔断型,干湿分离做得很彻底。
主卫洗手池、马桶区和淋浴区一字排开, 墙面横向铺贴绿色瓷砖,和主卧的整体色调保持一致 ,浴室柜上的镜前灯一打开,复古又精致。


马桶区和淋浴区中间,靠灰色玻璃隔断分开, 小小的方形日本深泡浴缸,是爱泡澡的姐姐弟弟的最爱 ,大人泡也很舒服。

客卫设计了 灰色的幽灵门 ,隐藏的轨道需要定位很准确,比起常规的吊轨门和天地轨道,对工艺的要求更高。


内部格局是完美的三分离,洗手台和卫生间相对,侧边是一字型的淋浴房, 三个空间完全独立,上厕所、洗漱和洗澡互不干扰。
客卫的顶上藏下了新风主机,中央空调与新风系统管道完美从书房的柜子顶部与房间周边布线 ,不需要再做吊顶降低本身层高,因为地暖本身已经抬高了8cm地面。
浴室柜的是按压式开启,柜门上贴心的粘上了“push”的标识,镜柜下方也贴了“挥手感应”(开启镜前灯)的标识,偶尔父母来家里的时候,能够使用更加方便和舒服。


随着孩子逐渐长大,家里也会跟着调整,除了书房改导致弟弟的儿童房,现在的儿童房和主卧的阳台,之后也可能安装落地的玻璃门,让家里每个人自己的房间相对独立一些,隐私性也更好。
正像屋主说的:“装修完入住只是家的第一步,后面还会根据大家的生活方式不停的演化。”
喜欢这个 充满生命力和质感的家 ,赶快为我们的屋主和设计师 点赞 吧~