********项目 型钢悬挑脚手架施工方案

目 录
1、工程概况1
2、编制依据1
3、外架的整体设计2
3.1、外架的整体布置2
3.2、悬挑架设计2
3.3、剪刀撑、"之"字撑搭设要求3
3.4、悬挑钢梁3
3.5、悬挑钢梁锚固要求4
4、施工安排5
4.1、施工准备5
4.2、搭设要求7
5、构造措施8
5.1、架体构造8
5.2、脚手架钢梁搭设11
5.3、悬挑防护棚14
5.4、卸料平台位置架体搭设15
5.5、施工电梯位置架体搭设16
5.6、架体封闭16
5.7、转角部位细部设置17
5.8、悬挑型钢锚固结构构造措施18
5.9、安全网及外立面设计19
5.10、电梯井防护架19
6、 质量保证措施21
6.1、材料质量标准21
6.2、质量检查21
7、 安全保证措施23
7.1、搭设安全要求23
7.2、安全检查及强制性要求25
7.3、脚手架拆除26
7.4、外架验收26
8、应急救援措施29
8.1、应急小组29
8.2、应急准备预案30
8.3、紧急情况处理31
8.4、应急救援物资、设备31
9、附件32
9.1计算书32
9.2 各楼架体平面布置图150
1、工程概况
**项目位于***,总建筑面积***平方米。由***组成。**楼为剪力墙结构,**为框架剪力墙结构。**楼标准层层高为**米,**楼标准层层高为**米。建筑高度为**米,设计合理使用年限为50年。结构安全等级为二级,抗震设防烈度为六度,抗震设防类别为丙类。
2、编制依据
《建筑施工扣件式钢管脚手架安全技术规范》JGJ130-2011
《建筑结构荷载规范》GB50009-2012
《建筑施工脚手架安全技术统一标准》GB51210-2016
《钢结构设计规范》GB50017-2003
《建筑施工安全检查标准》JGJ59-2011
《建筑施工高处作业安全技术规范》JGJ80-2016
《建设工程施工现场消防安全技术规范》GB50720-2011
《混凝土结构设计规范》GB50010-2010
《危险性较大的分部分项工程安全管理办法》建质[2009]87号文件
***项目施工图纸
3、外架的整体设计
3.1、外架的整体布置
外架设计:采用落地双排脚手架和型钢悬挑脚手架结合的方式,本方案为型钢悬挑脚手架施工方案。**楼从三层开始分五次悬挑,第一次(3层开始)悬挑高度15米,第二次(6层开始)悬挑高度18.5米,第三次(12层开始)悬挑高度18米,第四次(18层开始)悬挑高度18米,第五次(24层开始)悬挑高度16米。
3.2、悬挑架设计
搭设参数:
双排脚手架,搭设高度最高19.2米,立杆采用单立管。
立杆的纵距1.50米,立杆的横距0.80米,内排架距离结构0.35米,立杆的步距1.80米。
采用的钢管类型宜为φ48.3×3.6,本工程结合现场实际及市场情况选用钢管类型为φ48×3.0(计算按照最不利因素考虑取φ48×2.5)
连墙件采用2步3跨(商业部分采用2步2跨),竖向间距每层设置,水平间距4.50米。
施工活荷载为3.0kN/m2,同时考虑2层施工。
脚手板采用钢板网,荷载为0.30kN/m2,按照铺设2层计算。
栏杆采用冲压钢板,荷载为0.16kN/m,安全网荷载取0.0100kN/m2。
脚手板下大横杆在小横杆上面,且主结点间增加一根大横杆。
基本风压0.20kN/m2,高度变化系数0.6500,体型系数1.2480。
悬挑水平钢梁采用16号工字钢,悬挑段长度1.35米(最大悬挑2.95米),锚固段长度3.15米(最大锚固4.05米)。
所有悬挑工字钢刷黄色油漆;立杆间距1500mm可根据现场结构实际情况局部调整,步距1800mm,外排大横杆间距600mm,小横杆间距1500mm,小横杆伸出扣件外边缘100mm;悬挑外架所有外排横杆、立杆、小横杆及转角立杆刷黄色油漆,靠外侧的阳角必须设置转角内撑杆保证安全网在此部位悬挂顺直,剪刀撑、"之"字撑按500mm间距刷红白醒目油漆。外架安全网采用两种颜色密目安全网(暗红、绿),悬挑层前两步架体悬挂暗红色安全网,前两步以上全为绿色。钢挑梁采用斜拉式,斜拉钢丝绳采用φ17(6×19)。
3.3、剪刀撑、"之"字撑搭设要求
在架体外侧全立面连续设置剪刀撑,转角、断面处设置"之"字撑。每道剪刀撑的宽度不应小于4跨,且不应小于6m,斜杆与地面的倾角应在45~60°之间;剪刀撑的斜杆应用旋转扣件固定在与之相交的横向水平杆的伸出端或立杆上,旋转扣件的中心线至主节点的距离不应大于150mm。剪刀撑斜杆采用搭接形式,搭接长度不应小于1m,并采用不少于三个旋转扣件固定,搭接端部扣件盖板的边缘至杆端距离不应小于100mm;
3.4、悬挑钢梁
悬挑钢梁采用16#工字钢,为了便于外架搭设工字钢按下图进行加工:竖向立杆定位点采用长200mm、钢丝绳拉结点采用长100mm直径25的钢筋与工字钢焊接;(下图为正常悬挑钢梁的加工图,其他长度的悬挑钢梁立杆固定点距钢丝绳拉结点也按下图进行加工)

3.5、悬挑钢梁锚固要求
工字钢与主体结构通过预埋环进行连接,每根工字钢上预埋三个"U"型A20钢筋埋环,上方设置L63mm*6mm角钢压板用双螺母进行固定,螺栓孔中心离压板边缘不得小于40mm。具体预埋位置及预埋环安装、加工见下图:

工字钢与楼板固定及预埋锚固环加工图
4、施工安排
4.1、施工准备
4.1.1、材料准备
脚手架搭设钢管选用Ф48.0*3.0钢管搭设,扣件进场严格控制,设计时扣件抗滑系数按照0.8计算,外挂安全网采用阻燃安全网,网目密度为不低于2000目/100cm2,。
架料及扣件、垫木就近租赁,安全网由公司指定的合格供应商名录中选择,按照相关防护、防火、阻燃要求进行采购,材料供应要根据现场施工情况提前一至二周进场,物资部、安全部要对其质量进行把关做好进场,安全部按照批次进行安全网阻燃和冲击试验,并如实记录实验结果,达到要求方可用于现场。
4.1.2、人员准备
考虑到外架的搭设要求及现场实际情况,本项目外悬挑架搭设,引进专业班组搭设,项目安排专人负责管理,确保外架搭设满足安全使用的前提,保证外立面效果。所有架子工必须具备《特种作业操作证》或《特种作业临时操作证》、《安全资格上岗证》等准许施工证件。架子工进场必须进行三级安全教育和相应考核;每周一参加项目部策划的教育,并形成记录。
4.1.3、技术准备
本工程外架施工之前,项目技术部门根据方案要求对项目部管理人员、施工班组作业人员进行方案交底工作,要让每一个管理人员、架体搭设人员熟识施工方案。本方案主要根据《建筑施工扣件式钢管脚手架安全技术规范》(JGJ130-2011)编制,在施工之前技术部门对项目管理人员交底清楚,现场施工员要对施工人员在搭设过程中重复进行技术安全交底,在现场施工人员无异议的情况下方可施工。施工前架子工长必须进行二次技术及安全交底。
4.2、搭设要求
脚手架搭设前,依据建筑物形状放线,并按间距排好立杆,在相应需设置悬挑钢梁所在楼层板上根据事先放线确定工字钢位置,楼板下层钢筋绑扎完成后即对预埋锚环进行现场预埋,并且定位准确,按照工字钢排布图进行检查(填写锚环安装记录表见附件一)达到要求后方可进行该层混凝土浇筑。
工字钢外挑部位焊200mm高直径不小于25mm的钢筋头用于固定立杆。脚手架搭设顺序由下至上,脚手架搭设的工艺流程如下:
立杆定位→按事先完成的预埋锚环进行悬挑钢梁的安装、固定→摆放纵向扫地杆→竖立杆与纵向扫地杆扣紧→装横向扫地杆,并与立杆和纵向扫地杆扣紧→第一步大横杆并与各立杆扣紧→安装第一步小横杆→安装第二步大横杆→安第二步小横杆→加设斜撑,上端与第二步大横杆扣紧(装设两道边墙杆后拆除)→安第三、四步大横杆和小横杆→设置连墙杆→拉立杆→加设剪刀撑→铺设脚手板、绑扎防护栏及挡脚板→立挂安全网→完成。
根据构造要求在建筑物四角用钢尺量出内、外立杆离墙距离,并做好标记,以便安装工字钢。在搭设首层脚手架的过程中,每隔6跨向建筑内侧设置一根抛撑,拐角处双向增设,待该部位脚手架与主体结构的连墙件可靠拉结后方可拆除。当脚手架操作层高出连墙件两步时,应采取临时稳定措施,直到连墙件搭设完毕后方可拆除。双排架宜先立内排立杆,后立外排立杆。每排立杆宜先立两头的。再立中间的一根,互相看齐后,立中间部分各立杆。双排架内、外排两立杆的连线要与墙面垂直。立杆接长时,宜先立外排,后立内排。
大横杆必须在角部交圈并与立杆连接固定,铺板时处理好拐角处操作层脚手板交汇搭接形成的小错台构造。
5、构造措施
5.1、架体构造
5.1.1、立杆
起步立杆长为6m和4m(将接头错开),以后除顶部立杆外均用6m杆。采用对接扣件连接立杆接头,两个相邻立杆接头不能设在同步同跨内;各接头中心距主节点≤500mm。
立杆必须沿其轴线搭设到顶,且每层搭设超过作业面或屋面结构板高度1.5m,立杆的垂直偏差小于100mm。
5.1.2、大横杆
起步杆采用6m与4m杆错开接头,大横杆采用长度为6m钢管,布置在立杆内侧,与立杆交接处用直角扣件连接,不得遗漏。两排立杆内侧增加一道大横杆,以便于铺设钢板网片。大横杆间连接采用对接扣件,接头与相邻立杆距离≤500mm且不可在转角处。
相邻大横杆的接头必须相互错开,不得出现在同一跨内。同一排大横杆水平偏差≤该片脚手架总长度1/250且≤50mm。
5.1.3、腰杆
每步架体设置一道水平腰杆,腰杆设在外排立杆内侧,大横杆之上600mm、1200mm处分别与立杆用直角扣件加固。
5.1.4、小横杆
贴近立杆布置,搭于大横杆下方并用直角扣件与立杆扣紧,在相邻立杆之间加设1根小横杆。在任何情况下不得拆除作为基本构架结构杆件的小横杆。
5.1.5、剪刀撑
脚手架从两端和转角处起,连续设置剪刀撑,将构架与悬挑梁(架)连成一体,剪刀撑斜杆为单杆,与水平面夹角为45°~60°,沿架高连续设置。剪刀撑斜杆采用搭接接长,搭接长度不小于1m,搭接范围内采用三个扣件扣紧。剪刀撑斜杆与立杆和大横杆交接处全部用旋转扣件扣紧。

5.1.6、连墙件
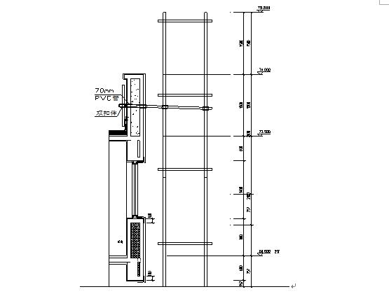
连墙杆采用在无剪力墙处每层侧梁预埋短钢管,用双扣件扣紧预埋短钢管;有剪力墙处预埋70PVC套管埋置时做到内高外低且内外两端高差不小于3cm,连墙杆从留洞伸入剪力墙内侧,内侧与外侧分别设置横向短钢管用扣件加固保证剪力墙部位连墙件的设置;连墙件靠近主节点设置,偏离主节点≤300mm。从首层第一根大横杆处开始设置,竖向为每一层都设置,连墙点水平间距4.5m;连墙件设置不得超过结构层高度,连墙件与脚手架连接的一端可稍微下斜,不容许向上翘起。设置第一排连墙件前,每隔6跨设一道抛撑,以确保架子稳定。在悬挑脚手架顶部,选择在女儿墙中预埋70PVC套管设置连墙件,依照3跨一道,连墙件高度800mm,避开防水上翻高度,连墙件做法详见下图。

有剪力墙处连墙件 无剪力墙处连墙件

悬挑架顶部扶墙构造
5.2、脚手架钢梁搭设
5.2.1、型钢悬挑梁的端部拉绳
工字钢悬挑梁端部均采用斜拉绳卸荷,用直径17mm,型号6×19钢丝绳,抗拉强度为1400MP(钢丝绳破断拉力总和为125.00KN);悬挑工字钢外沿10cm处焊接25钢筋,做钢丝绳拉结固定点,卸荷预埋环采用直径20的一级钢筋制作,布置在悬挑工字钢上层楼板的边梁里,预埋环位置距主体外沿20cm,钢丝绳两端各用四个绳卡进行加固,绳卡压板应设置在钢丝绳主要受力的一边,绳卡间距不应小于钢丝绳直径的6倍,并咋第三个卡环后面设置安全检查弯,第三个和第四个卡环间距不得小于500mm。斜拉绳作为安全措施不参与架体验算。有阳台等悬挑部位此处阳台等悬挑板不作为锚固段,均从楼层梁处开始计算锚固段。有悬挑梁从阳台和空调板部位伸出的地方在锚固梁部位将悬挑钢梁用模板或木方垫高,防止悬挑钢梁直接落在阳台和空调板上导致悬挑部位结构裂缝及破坏。



斜拉绳示意图
5.2.2、型钢悬挑梁的阳角部位、电梯井部位设置
架体阳角处需设置5根立杆,其中一根是靠外侧阳角转角内撑,4根立杆间距为800mm×800mm,为保证阳角处立杆设置,在阳角位置采用型钢悬挑横担钢梁的措施,以满足转角立杆设置。阳角型钢悬挑横担钢梁采用两根悬挑型钢长度分别为6000mm及4500mm,悬挑长度分别为2650mm及1400mm,横担两根长度为3000mm钢梁,钢梁立杆数为6根。电梯井位置,考虑采用钢梁穿电梯井构造,两根3000mm钢梁横担在悬挑梁上,保证其稳定,钢梁立杆数为6根。为避免横担钢梁产生横向滑移,横梁与悬挑梁双边焊接,同时使用U型卡环在两根工字钢交界位置套接牢固,并用螺栓加固。在阳角位置,采用直径17mm,型号6×19钢丝绳斜拉卸荷,每根悬挑钢梁端头设置两根,一根拉接至上层结构梁或墙上,第二根拉接至上两层结构梁或墙上。
5.2.3、多排立杆型钢悬挑梁位置设置
结构中凸出飘窗板、空调板等构件较多,为保证架体内排杆距结构边距离为350mm及脚手架整体美观,部分位置空隙过大,需设置多排排立杆。主要集中在**楼北侧,为保证整体悬挑架外立面,悬挑长度为1950mm,采用4500mm型钢悬挑,每根型钢搭设3根立杆,内排立杆距结构边350mm,部分立杆需穿过空调板,具体构造如下:

穿空调板处立杆构造
5.3、悬挑防护棚
由于本工程场地有限,各主楼周边区域都要布置相应的临时加工车间和材料堆场,考虑安全起见在主楼第二次悬挑处设置一道安全防护棚,防护棚采用钢丝绳斜拉工字钢悬挑式梁,横杆采用钢管搭设方式。挑梁间距3米,水平杆间距0.6米,竖向挡杆高度0.6米,间距3米,采用17mm(6×19)钢丝绳纵向间距3.0米与主体结构拉设。悬挑棚搭设完毕后在挑棚内层满铺一层密目安全网,再在平面上挂一层钢板网。
在每段悬挑架经项目架体验收小组验收合格,且对搭设悬挑棚人员进行安全技术交底后,才可进行悬挑棚搭设施工。施工时必须有专人指挥,并在专职安全人员的安全监督下进行,每次搭设先从架体的阳角处开始,排布好间距,开始搭设,且悬挑棚搭设不得与外架相连,搭设完成时,须经项目安全部门验收合格后,才可投入施工。
5.4、卸料平台位置架体搭设
按照施工需要**楼设置2个,**楼设置4个,卸料平台型号为1.7m×6m,卸料平台限重1T,卸料平台与外架架体分离,外脚手架大横杆在转料平台处断开,再用一小段钢管与两端大横杆扣件连接,卸料平台处的横杆,在未安装时连通,安装时拆除,待卸料平台拆除后再连接对该处架体进行恢复。卸料平台两侧立杆各增加一道连墙件。卸料平台钢丝绳接口处采用花篮螺栓拉结,以便根据现场情况调节卸料平台钢丝绳长度。主体施工阶段转料平台,具体布置位置见附件,其它布置细节详见悬挑式卸料平台专项方案,搭设简图如下:

5.5、施工电梯位置架体搭设
按照平面布置规划,每栋主楼设置一台施工电梯,悬挑架在施工电梯位置断开,留置5.5m宽布置施工电梯,悬挑层悬挑钢梁正常设置,内外排大横杆在此处用搭接连接且保证正常的与立杆的连接;施工电梯两侧立杆分别增加一道连墙件。在安装施工电梯时,拆除大横杆及部分立杆,此处悬挑钢梁收进楼层内,搭设电梯入口通道,保证电梯入口通道距电梯吊笼距离为100mm内。过道上铺15mm模板,模板下采用40×80mm的木方背楞,且在模板面钉制宽20mm的防滑条进行安全设防。架体搭设时按电梯布置位置预先留置电梯位置,电梯安装之前用大横杆相连,架体加固到位后开始,上部搭设,电梯位置架体搭设简图如下:
施工电梯位置电梯搭设示意图
5.6、架体封闭
外架立杆内侧满挂密目安全网,立网满挂在外立杆和大横杆的内侧,外架密目网采用绿色密目网。第一个悬挑段底部设置全封闭吊顶,上部也用模板封闭,具体效果如下图:
每个外架悬挑起步段采用40*80木方及15mm厚木模板对操作面进行硬封,悬挑钢梁位置和每次悬挑段的第三层所在位置,均采用钢板网硬封;主楼每两层操作层进行软封,水平防护应伸至结构边,每段架体硬封层外围临边设250mm高挡脚板,挡脚板按500mm间距满刷红白警示色。
结构及装修施工阶段,操作层架体满铺脚手板,施工至不同位置时将脚手板翻至该层。脚手板平铺设置在大横杆上,脚手板对接平铺,四角应用直径不小于1.2mm镀锌钢丝固定在纵向水平杆上。操作面必须满铺脚手板,离墙面≤200mm,不得有空隙和探头板、飞跳板。架体使用避免上下交叉作业。
5.7、转角部位细部设置
本工程阳角转角位置两侧布置斜工字钢,考虑到悬挑长度,转角处工字钢按照具体的位置图放置该部位的悬挑工字钢(具体见工字钢平面布置图)。阳角斜挑工字钢部位,采用扇形和主梁上横担次梁的方式布置,工字钢集中部位增加一根横向的嵌固钢梁,具体施工见下图;为满足转角处立杆的支设,在相应立杆位置底部增加两道横向工字钢,横担在悬挑钢梁上,接触部位进行满焊;此部位架体设工字钢后,前后拉两道直径17mm(6×19)卸荷钢丝绳,钢丝绳用M14的CO式花篮螺栓拉紧,为防止转角处型钢水平向失稳,在型钢交叉端部,用U型环卡紧两根工字钢,并进行双边焊接,保证其稳定性。卸荷钢丝绳作为安全措施不参与验算。(此处为最不利的部位,详见计算书)
5.8、悬挑型钢锚固结构构造措施
按照设计楼层楼板厚度为100mm,楼板短跨1.6m~3.9m不等,楼板负筋为三级钢筋直径8mm,钢筋间距为130mm~200mm,为保证外架搭设安全性,施工时悬挑层U型环增加两根长度1.5m直径C18钢筋。悬挑梁预埋U形环严格控制加工质量,埋置时置于底筋上部。对支座锚固楼板验算如下:
按照最不利情况考虑,楼板的跨度取3.9m,悬挑梁锚固点位置按距离支座1.7m考虑,区域楼板内有3根悬挑梁在楼板内用拉环钢筋锚固,计算单元范围内配3级钢筋,配筋面积As=251 mm2,fy=360 N/mm2。板的截面尺寸为 b×h=3900mm×100mm,截面有效高度 ho=85 mm。楼板底部U型环内增加两根1.5m直径18的HRB400级钢筋作为加强措施,不参与计算;
按照悬挑梁受力计算,内侧锚固点所受到的最大支座反力为-6.881KN,考虑锚固位置受集中荷载,锚固点最大弯矩为
Mmax = Fab/l=6.881×1.5×1.8/3.3= 5.63 kN.m;
C30混凝土弯曲抗压强度设计值为fcm=14N/mm2;
则可以得到矩形截面相对受压区高度:
ξ= As× fy/ ( b × ho × fcm ) = 251.000×360.000 / ( 3300.000×85.000×14.876 )= 0.022
查表得到钢筋混凝土受弯构件正截面抗弯能力计算系数为
αs = 0.033
此楼板所能承受的最大弯矩为:
M1 = αs× b× ho2×fcm = 0.033×3300.000×85.0002×14×10-6 = 11.02kN.m;
由以上结论可知: Mmax= 5.63<= M1 =11.02,最不利的阳角部位楼板,满足悬挑外架使用要求。
5.9、安全网及外立面设计
外挂安全网采用阻燃安全网,网目密度为不低于2000目/100cm2,安全网必须为公司合格供应商名录中的供应厂家,进场有全套的合格证明;外立面从每个悬挑层开始均为绿色安全密目网。
5.10、电梯井防护架
为满足梯井内防护及后期施工需要,工字钢从电梯井内穿过,并在电梯井内搭设操作架,悬挑工字钢方向立杆距墙距离根据工字钢位置确定,垂直悬挑工字钢方向立杆距墙300mm,操作架封闭自工字钢悬挑层开始设置硬防护,硬防护做法为在操作架扫地杆增加一根横杆,铺设40×80mm木方一层,木方间距200mm,顶面采用15厚模板封闭。工字钢悬挑上一层采用软防护,防护所用密目网满足上述材料要求,密目网伸直结构边,硬防护与软防护隔一布一。连墙件设置为在每层电梯间门洞口梁上设置,连墙件必须贯通与最远端立杆连接。

6、 质量保证措施
6.1、材料质量标准
1)钢管
采用外径48.0mm,壁厚3.0mm经过防锈处理的焊接钢管(Q235),其材质必须符合《碳素结构钢》(GB/T700)的相应规定,同时不得有明显变形、裂纹、压扁和锈蚀。
2)扣件
采用机械性能不低于KT-33-8的可锻铸铁扣件,其材质必须符合《可锻铸铁分类及技术条件》的规定。扣件的附件材料必须符合《碳素结构钢》中Q235钢的规定,螺纹符合《普通螺纹》的规定,垫片符合《垫圈》的规定。扣件夹紧钢管时,开口处的最小距离>5mm。扣件不得有加工不合格、无出厂合格证、表面裂纹变形、锈蚀等质量问题。
3)脚手板
采用定型的钢筋网片脚手板,宽度800mm、长度1500mm。
4)安全网
必须是经国家指定监督检验部门监定许可生产的厂家产品,同时具备监督部门批量验证和工厂检验合格证;同时符合《安全网》规定。立网采用全新暗红色、绿色密目安全网(2000目),平网采用网眼50mm安全网。
6.2、质量检查
脚手架搭设的技术要求、允许偏差与检验方法见下表
7、 安全保证措施
7.1、搭设安全要求
脚手架必须随结构施工进度搭设,搭设时避开立体交叉作业,严格按方案及相应安全规范、标准进行施工,控制好立杆的垂直度,横杆水平度并确保节点符合要求。
脚手架防雷采用40*4镀锌扁钢,每片每两层设两点与结构防雷带相焊接,必须保证脚手架整体导电不间断,摇测电阻不大于30(。遇有雷雨天气,脚手架上人员必须立即离去。
脚手架的验收和日常检查按照以下规定进行,检查合格后,方允许投入使用或继续使用。
1)单层悬挑架搭设完毕;多层悬挑架每次搭设完毕;
2)达到设计高度;
3)刚搭设完毕后或连续使用达六个月;
4)施工中途停止使用超过15天,在重新使用之前;
5)在遭受暴风、大雨、大雪、地震等强力作用之后;
6)在使用过程中,发现有显著变形、沉降、拆除杆件和拉结以及其它安全隐患存在的情况时。
搭设时及时设置连墙件和剪刀撑,不得滞后超过两步距。
所有扣件拧固时要用力矩扳手,扭力矩控制在45±5KN·m,防用力过大螺栓溢扣。
杆件端头伸出扣件之外的长度100mm,不得过小。防止杆件滑脱。
外架单层结构作业荷载不得超过3KN/㎡。脚手架严禁用作外墙模板的支撑架。
严禁上架操作人员在架面上奔跑、退行、嬉闹和坐在栏杆上,避免发生碰撞、闪失、失衡、脱手、滑跌和落物等不安全作业。
上下脚手架必须走马道,严禁攀援脚手架上下。
严禁在架面上堆放材料,杂物必须及时清除,不得把脚手架作为模板的支撑。
严禁自架上向架下抛掷材料、物品和倾倒垃圾。
严禁拆除脚手架的基本构架杆件、整体性杆件、连接紧固件和连墙件等。确需临时拆除时,必须经主管人员同意,采取相应措施,并在作业完毕后,及时恢复。
在脚手架上进行电、气焊作业时,必须有防火措施和专人看守。禁止将地线搭在脚手架上,利用脚手架当地线。
六级及以上大风和雾、雨、雪天停止脚手架上作业,雨、雪后上架操作应注意防滑,并扫除积雪。
未尽事宜执行国家、地方、行业安全法规、规范、标准和现场规定。
7.2、安全检查及强制性要求
1)钢管上严禁打孔。
2)当脚手架搭设尺寸中的步距、立杆纵距、立杆横距和连墙件间距有变化时,除计算底层立杆段外,还必须对出现最大步距或最大立杆纵距、立杆横距、连墙件间距等部位的立杆段进行验算;
3)主节点处必须设置一根横向水平杆,用直角扣件扣接并严禁拆除;
4)立杆接长除顶层顶步外。其余各层各步接头必须采用对接扣件连接。
5)一字型、开口型脚手架的两端必须设置连墙件。连墙件的垂直间距不应大于建筑物的层高,并不应大于4m(两步)。
6)连墙件必须采用可承受拉力和压力的构造。
7)脚手架必须配合施工进度搭设,一次高度不应超过相邻连墙件以上两步。
8)严禁将外径48㎜与51㎜的钢管混合使用;
9)剪刀撑、横向斜撑搭设应随立杆、纵向和横向水平杆等同步搭设。
10)拆除作业必须由上而下逐层进行,严禁上下同时作业;
11)旧扣件使用前应进行质量检查,有裂缝、变形的严禁使用,出现滑丝的螺栓必须更换;
12)脚手架搭设人员必须持证上岗、人证合一。
13)作业层上的施工荷载应符合设计要求,不得超载。不得将模板支架、缆风绳、泵送混凝土和砂浆的输送管等固定在脚手架上,严禁悬挂起重设备。
7.3、脚手架拆除
拆除前,工长要向拆除工人进行书面安全技术交底。并检查脚手架的扣件连接、连墙杆支撑是否牢固、安全以及清除脚手架上杂物及地面障碍物。
脚手架拆除时,地面必须设围栏和警戒标志,并派专人看守。严禁一切非操作人员入内。
先搭的后拆,后搭的先拆。所有连墙杆随脚手架逐层拆除,严禁先将连墙杆整层或数层拆除后再拆脚手架。分段拆除高低差<2步。当脚手架拆至下部最后一根长钢管的高度时,应先在适当位置搭临时抛撑加固,后拆连墙杆。
拆除架子时,地面要有专人指挥、清料,随拆随运,禁止往下乱扔脚手架料具。
7.4、外架验收
项目部成立脚手架验收小组:
组 长:***
副组长:****
成 员:****。
验收内容:
过程中的验收:在架体基础完成后及脚手架搭设前;每搭完6~8m高度后;达到设计高度后;遇有六级强风及以上风或大雨后;停用超过一个月,重新用时;
检查架体是否按照施工方案及规范要求进行搭设,搭设前的方案交底及技术交底是否已经全部完成,检查扣件的拧紧力、立杆的垂直度、连墙件、水平防护是否按照要求进行搭设。
每次验收前由作业班组报项目部楼号工长,工长报生产经理。生产经理策划以上验收组成员进行验收并且形成书面记录,验收小组按照下表《脚手架验收表》完成书面签字手续,验收合格后方可进行使用和进行下步架体搭设。
备注:本表一式三份工程部、安全部、技术部各留一份
8、应急救援措施
结合现场实际情况,通过对架体搭设、使用和拆除过程中潜在的火灾事件、潜在的物体打击、高处坠落和架体垮塌情况进行的辨别、评估,做出相应的准备和回应,预防或减少可能发生的危险。
工程成立施工应急施工及拆除过程中,密切注意架体的变化,一旦出现异常,立即通知应急小组,启动应急预案。
8.1、应急小组
组 长:****
副组长:****
成 员:*****。
组长:主要负责紧急情况发生时策划抢险救护队相关人员应急抢救。并根据紧急情况的性质和级别决定是否向外申请援助、上报和对善后工作的布置。
副组长:在组长的布置下落实有关设施、物资并策划实施;策划有关人员进行应急准备及回应预案培训,必要时策划演练;检查预案落实情况。并在事故发生时具体策划对紧急情况的应急处理或救护。并协助项目经理做好善后工作。
各成员职责:在副组长的指挥下协助相关部门领导开展营救工作,对紧急情况进行处理或救护,并在处理或救护过程中提供人力、物力、交通等的具体保障。紧急情况发生时可口头或电话通知项目部紧急抢险救护队主要人员。
8.1.1 主要负责人员联系电话:
**** ************
8.1.2 急救电话:救护电话:120 报警电话:110 火警电话:119
****医院:*****;
8.1.3 救援路线:
*****。具体路线如下:
$ N1 R2 H, k新浪乐居论坛8.2、应急准备预案
(1).现场设置醒目标示牌,标明应急小组名单及联系电话,救护电话等;
(2).定期检查架体,特别雨季密切关注天气预报,暴风雨后及时检查架体,加强架体基础排水设施的检查;
(3).在现场适当位置设紧急疏散指示牌;
(4).采用入场教育、施工交底中及宣传栏等形式,宣传紧急处理的有关知识。
8.3、紧急情况处理
(1).发现架体倾斜或其他紧急情况时,项目值班人员应预测判断紧急情况或类型、规模,当紧急情况能够控制时,应立即策划人员在初始阶段消除险情,防止事态恶化;当事故严重,自身难以处理时,必须立即向上级领导报告,或联络紧急救援。
(2).当紧急事故威胁到人身安全时,必须首先确保人身安全,项目经理负责策划人员迅速脱离危险区域或场所,再采取应急措施尽可能地减少损失。
(3).事故发生后,项目经理部应保护现场,接受事故调查;填写事故报告。发生重大事故的按照《生产安全事故报告和调查处理条例》中华人民共和国国务院第493号令按照要求划分事故等级,并逐级上报。
8.4、应急救援物资、设备
担架若干,抢救伤员使用;
止血急救包5个,抢救伤员使用;
手电筒15个,停电时照明使用;
对讲机6台,联系指挥救援。
9、附件
9.1计算书
9.1.1、**楼未预埋U型环部分:工字钢前端锚环设置在梁内侧100mm楼板上,悬挑长度为1.76米,锚固段长度2.75米,内排杆距墙350mm,按照750mm计算。
型钢悬挑脚手架计算书
依据规范:
《建筑施工扣件式钢管脚手架安全技术规范》JGJ130-2011
《建筑结构荷载规范》GB50009-2012
《钢结构设计规范》GB50017-2003
《混凝土结构设计规范》GB50010-2010
计算参数:
钢管强度为205.0 N/mm2,钢管强度折减系数取1.00。
双排脚手架,搭设高度16.7米,立杆采用单立管。
立杆的纵距1.50米,立杆的横距0.80米,内排架距离结构0.75米,立杆的步距1.80米。
采用的钢管类型为φ48×2.5,
连墙件采用2步3跨,竖向间距3.60米,水平间距4.50米。
施工活荷载为2.0kN/m2,同时考虑2层施工。
脚手板采用定型化钢筋网片,荷载为0.30kN/m2,按照铺设2层计算。
栏杆采用冲压钢板,荷载为0.16kN/m,安全网荷载取0.0100kN/m2。
脚手板下大横杆在小横杆上面,且主结点间增加一根小横杆。
基本风压0.20kN/m2,高度变化系数0.6500,体型系数1.2480。
卸荷吊点按照构造要求考虑,不进行受力计算!
悬挑水平钢梁采用16号工字钢,建筑物外悬挑段长度1.75米,
建筑物内锚固段长度2.75米,支承点到锚固中心点距离为2.20米。
悬挑水平钢梁采用悬臂式结构,没有钢丝绳或支杆与建筑物拉结。
钢管惯性矩计算采用 I=π(D4-d4)/64,抵抗距计算采用 W=π(D4-d4)/32D。
九.悬挑架体平面布置图
