
尺 寸
面宽10.0米 进深10.0米
建筑面积
179.0㎡
土建造价
27.0万
项目概况

△总平面示意图
项目位于山西,建筑占地100平米,基地东侧是一片树林,西侧是道路,南、北两侧是邻居家住宅。业主建房是为父母养老,因此建筑风格偏向业主父母喜欢的中式,最终选为新中式风格。
图纸设计

△一层平面图
由于占地面积有严格要求,因此如何在有限面积内完善室内功能成为首先需要解决的问题。
平面空间利用率较高,入门进入客厅,餐厅和客厅中间没有格挡,保持视线开阔。厨房借用部分楼梯间下方空间,设备间从厨房进入,将楼梯间下方空间全部利用。东侧两间卧室,公卫设计在中间,方便使用。老人房朝南,保证较好采光面。

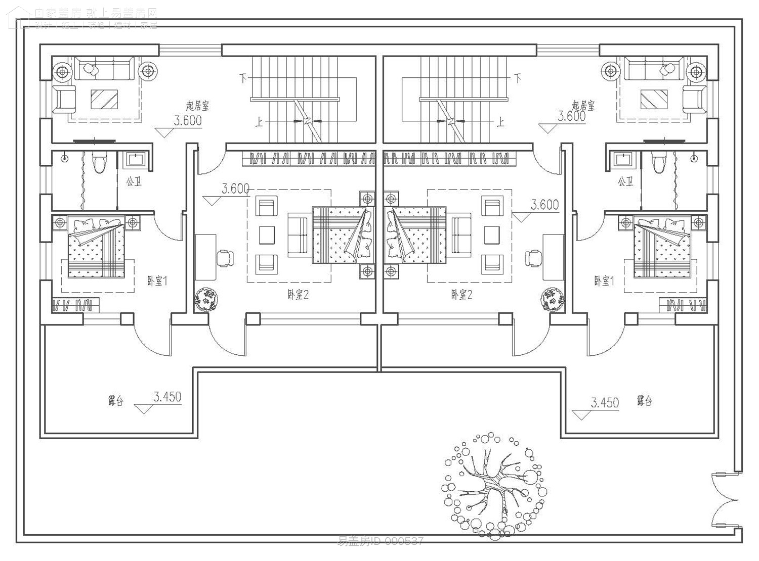
△二层平面图
二层起居室与楼梯间相邻,可从起居室进入露台或阳光房,这个位置在日后可根据业主需求自行调整功能。书房位于东北角,卧室占据南侧空间。
造型设计

△鸟瞰图
建筑整体为新中式风格,立面采用仿清水混凝土漆和白色真石漆。灰白黑的经典配色十分耐看,搭配门前小院,田园静好的感觉与业主父母的生活十分相衬。

△鸟瞰图
露台位置可做阳光房使用,阳光房选用半封闭式,既能无惧风雨赏景品茶,又能减少阳光房对起居室环境以及温度的影响。阳光房处木色装点高处空间,让整体更加温暖。

△鸟瞰图
由于使用需要,院门位置预留电动车停车位。为减少此处空间对室内采光的影响,选用玻璃顶。同时考虑到庭院较小,近端压抑感通过镂空孔洞和摆件减小。

△西南侧效果图
庭院摆放有休息桌椅和草坪绿植区,两部分空间界限分明,后期业主父母可以根据实际需求将草坪区域改为菜地。院门选用深木色,以简单造型展现低调,与整体风格相配。

△西北侧效果图

△东立面图

△西立面图

△南立面图

△北立面图

尺 寸
面宽21.5米 进深12.5米
建筑面积
443.0㎡
土建造价
67.0万
项目概况

△现场照片
项目位于北京,业主打算和弟弟一家一起盖栋双拼别墅。基地东、西、南三侧均为道路,北侧是业主妹妹家住宅。设计前期,进行实地考察时发现业主家有棵大树。业主也提出需要保留古树,因此,建筑采用简欧风格,将古树所在位置划分为庭院。

△总平面示意图
图纸设计

△一层平面图
平面根据古树和场地情况确定建筑位置。在设计时,业主提供了平面布局参考资料。由于业主提供方案的公卫面积过于狭小,在调整房间位置和一些房间面积后,公卫获得较大面积。如此设计让业主及其家人在使用时能享用到更好的体验。
老人房位于一层,拥有较大观景面,同时老人房与公卫相邻,大大方便了老人的日常生活。

△二层平面图
二层布置两间卧室和起居室。卧室均与阳台连通,互通有无的设计将室内空间连接成一个整体。平面设计以业主使用习惯和功能要求为主,尽可能丰富了室内功能。
造型设计

△鸟瞰图
建筑整体为简欧风格,由于业主对黄色的喜爱,外立面采用大面积黄色真石漆营造十分温馨的感觉。空间分层位置采用深色明确位置,颜色变化让整体感觉更加和谐统一。

△鸟瞰图
屋顶阳光房采用不规则坡屋顶,由于别墅为双拼形式,因此,阳光房不对称屋顶让相对规整的建筑轮廓有了不一样的美。阳光房内楼梯部分通过榻榻米将造型和实用结合。
屋顶其余部分可以用作晾晒空间和露台。

△东南侧效果图
古树高度刚好与建筑层高相近,从建筑东南角看去,古树为二层阳台带来更多阴凉。蓬勃的生机也使得建筑和庭院整体感觉更好。

△东北侧效果图

△阳台效果图
二层室外阳台摆放休闲桌椅和遮阳伞,打造一个休息和思考的空间。由于别墅为双拼形式,两侧阳台互相呼应,不仅能使得两家人有所交流,也弥补了庭院面积过小的缺憾。

△庭院效果图

△阳台效果图

△院门效果图
院门采用简单造型,与建筑整体设计风格保持一致。院门正对古树,如此设计让古树成为天然影壁,在保护庭院的同时也让造型单薄的院门有了更多风采。

△阳光房效果图

△东立面图

△西立面图

△南立面图

△北立面图

尺 寸
面宽24.4米 进深12.0米
建筑面积
600.0㎡
土建造价
66.0万
项目概况
业主希望自己和兄弟能够住在一起
共用一个院子
设计的住宅在分开的基础上
又要做到密切联系是关键
不仅有私人空间
也要有公共的活动空间
基地情况
基地位于北京顺义,四周是小路并且紧邻其他住宅,南边有一个公共卫生间,院子形状不规则。

效果展示
由于南边有一公厕,来往人杂,所以院子入口不设于此,而将兄弟两的车库入口放在南边,主入口设于院子东边,这样方便将人车分开,动静也就区分开来,住宅南边是兄弟俩共用的院子,在此活动非常方便。

△鸟瞰图

△鸟瞰图
入户的精致设计将兄弟两家紧密联系在一起,在左右分户的基础上,用一长走廊将两个入户的半室外门厅联系起来,使入户前的空间上和视觉上做到了很好的互动和交流,在走廊中部还特意设计一处公共的洽谈休闲区。

△入户效果图

△入门效果图
试想当夜幕降临,吃罢晚饭,两兄弟相约此处,赏一弯明月,品一番好茶~

△白天效果图

△夜晚效果图
当然也会有自家的室外休闲处,享用着经过木格栅洒进来的阳光,嗯,这会是不能再惬意的感觉~

△休息效果图

△庭院效果图
植物生长可穿过的精致木格栅,几块儿玻璃会是雨棚最好的搭档。

△雨棚效果图
用钢框架和大面积玻璃将二层阳台和一层客厅落地窗连为一体,成为整个建筑“虚”的部分,同样也是采光最好的部分,一层窗内的植物在室内生长,二层是兄弟共用的一个大阳台,两家各有一个门开向此处,这是一个非常宽敞舒适的公共空间。

△白天阳光房效果图
当然夜景也是很漂亮,晚上从室内洒出的橘色灯光,似乎要把整个世界照亮。

△夜晚阳光房效果图
兄弟住宅北边的两个楼梯井插入了两个精致玻璃盒子,增加了采光面积的同时也呼应了住宅正面的“大玻璃盒子”,当然也少不了晚上从两个小盒子洒出的灯光。

△白天效果图

△夜晚效果图
月上柳梢头,人约黄昏后~

△夜晚效果图

△夜晚效果图
一些局部效果~

△入口效果图

△入口效果图

△雨棚效果图
图纸中心
整体在设计上属于对称结构,一层设有两处卧室各带有独立卫生间,一个厨房旁边是餐厅和客厅,保证两家人居住的隐私~

△一层平面图
二层的设计也是对称,主要是用来居住,两处卧室,一个起居室;中间有一个阳光房相通,方便了两家人的沟通~

△二层平面图

△东立面图

△西立面图

△南立面图

△北立面图