也许你不喜欢马卡龙甜腻的口感,但是你却不能否认其颜色的美好,充满了温柔和纯真,符合了人们对美好和浪漫的幻想。将马卡龙颜色运用到家里,可以营造一个清新积极的居住氛围。

上图这个拥有爽朗笑容的小姐姐,就是本文的屋主,她同时也是一位教书育人的老师。她希望的家是明亮的,光看着就能让人感受到喜悦。设计师选用了她喜爱的马卡龙配色,用她最喜爱甜点的颜色赋予整个家更多甜蜜。
玄关

进门处设置鞋柜,其中一侧掏空,方便放大衣和包包。换鞋凳则设置在拐角处,波浪形的设计让人眼前一亮。

粉色背景墙,充满冒险奇幻精神的热气球,窗户上内嵌了高低错落的花架,这诸多设计,让人不由得联想到游乐园,让人不自觉的展开笑颜。
客厅

沙发选择了粉蓝色,与换鞋凳颜色相互呼应。

电视背景墙用石膏板做了三个拱门造型,非常别致。粉蓝色和玄关的粉红色也是很搭,毕竟自古红蓝出CP。

从玄关看向室内,整个公共空间包括了客厅、餐厅和厨房。

粉色的灯,黄色的小沙发,叶子造型的茶几,蓝色的沙发,颜色虽多,却分外和谐。

粉红色阅读灯和薄荷绿边几,颜值高,让人难以忽视。

客厅和餐厨之间只隔了一个过道,以墙面颜色和天花板来区分两个区域,但是看上去却是一个整体。

一字型的厨房虽然面积不大,但是对于屋主来说,已经足够了。

黄色的水管置物架,虽然工业风十足,但是刷成了柠檬黄,又多了阳光活泼的感觉。

坐在这里吃饭,也是一件很享用的事情呢。
卧室

卧室的布置十分简洁,除了床铺和床头柜以外,就没有什么大件的家具了。

以护墙板代替床头靠背,带着浓浓的自然气息。两盏薄荷绿的壁灯,演绎着独属于夏日的清爽。

胖嘟嘟的床头柜,搭配彩色条纹,别有一番趣味。
衣帽间

次卧改成了衣帽间,半开放式的设计,应该是众多女生心中的完美空间吧。

还有专业的化妆静和梳妆台,收纳首饰的抽屉上方,台面做成了玻璃,还能欣赏一下自己的收藏。
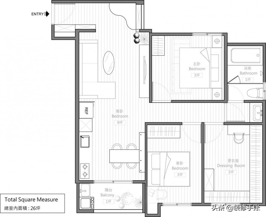
最后补上平面布置图。

整体面积有85.8平米,两室一厅。看完全屋,你喜欢这个马卡龙色系的装修吗?
END
点击下方了解更多,即可免费领取为您的户型量身定制的三套设计方案。