高端精装项目“全轻钢龙骨施工工艺标准”,能否靠技术/成本取代传统工艺?
(来源:新筑时代)
在高端精装项目中,全轻钢龙施工标准做法已经很成熟,
和传统工艺现场施工大量采用木龙骨基层、阻燃板基层、密度板基层、木工板基层等做法相比,
准化、精细化、装配化、轻钢全龙骨施工标准和设计将更有利于项目成本管控、设计品质管控、施工周期管控,做出性价比高的文明工地。

但由于受长期传统观念影响,大多数的装修工人习惯采用木基层做法,一时无法转变观念;
习惯性以为采用“全轻钢龙骨”施工会慢,成本会增加,其实不然。
可工厂定制装配化运送到现场施工的“全轻钢龙骨”结构,能实现快速安装,大幅缩短安装时间,也就降低了人工成本,和材料成本综合来看, 全轻钢龙骨标准并没有增加太多成本,反而提升了项目质量水平。

正普森工厂预制化吊顶灯槽工艺△
下面介绍项目上常用的 2种全龙骨施工工艺标准
01.“防火板材+轻钢龙骨”吊顶施工标准
防火板式轻钢龙骨基础结构工艺,是预制装配式轻钢龙骨石膏板吊顶施工工艺的核心工艺之一,吸取传统板式轻钢龙骨异型吊顶基础结构的优点,同样使用“板材”和“轻钢龙骨”结合制作异型吊顶基础结构的施工方法。
吊顶结构工艺使用防火板材替代传统工艺使用的木质板材,选用的是环保的新型多组份不燃板材-增强型玻镁板(增强型MGO板)替代木质板材

传统工艺 or 新连接件结构做法△

直线吊顶灯槽安装工序△
关于此类吊顶结构工艺,可以咨询“正普森”品牌
第一阶段:吊顶设计深化
1、吊顶施工图深化;
(1)按吊顶新工艺标准绘制吊顶深化设计图
(2)提交异型吊顶防火板材、轻钢龙骨、石膏板及专用配件清单
(3)提交异型吊顶异型M-GRG石膏预制件清单
(4)提交平面吊顶轻钢龙骨、石膏板及配件清单
职责:深化设计师实施、预算员配合

传统工艺深化做法△

新工艺深化做法△

工厂化吊顶施工图深化△

延边吊顶施工图深化△

任意曲线灯槽吊顶施工图深化△
第二阶段:放线、备料
(1)现场放线;
(2)异型M-GRG石膏预制件订货及预制加工,验收;
(3)增强型MGO板、轻钢龙骨、石膏板及专用配件订货及预制加工


第三阶段:异型吊顶施工
(4)设置边界线龙骨,确认异型吊顶位置;
(5)防火板(增强型MGO板)式异型吊顶基础结构(预设边界线结构)
(6)异型M-GRG石膏预制件安装及验收;异型M-GRG石膏预制件连接、加固;
(7)异型吊顶嵌缝、批灰、找平修整;
注:预留和增加其他施工专业(水、电、风、暖、空调等)的施工空间和时间。


第四阶段:平面吊顶施工
(8)平面吊顶轻钢龙骨结构与异型吊顶边界线结构连接;
(9)平面吊顶纸面石膏板与异型吊顶预留接口连接、安装;
(10)全部吊顶表面嵌缝、批灰、找平修整,涂刷乳胶漆。
职责:项目经理批准、施工员实施



案例:全龙骨圆弧造型施工工序展开

编龙骨造型结构△

编龙骨造型结构△

平顶封板△

平顶封板,安装外圈石膏线△

批灰休整,完成吊顶△

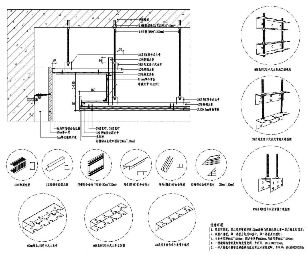
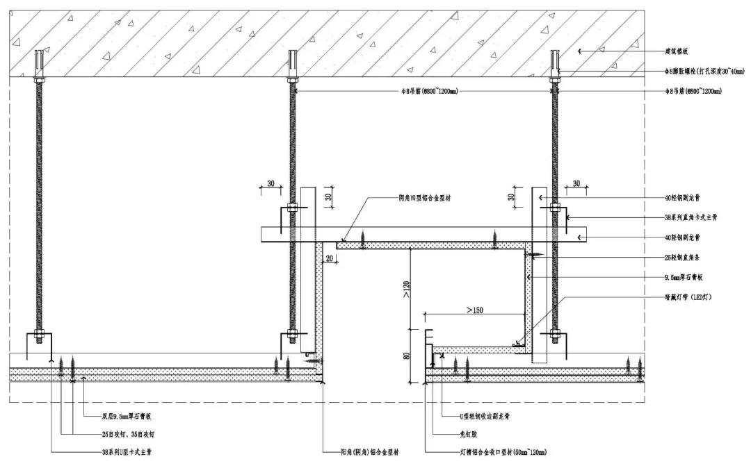
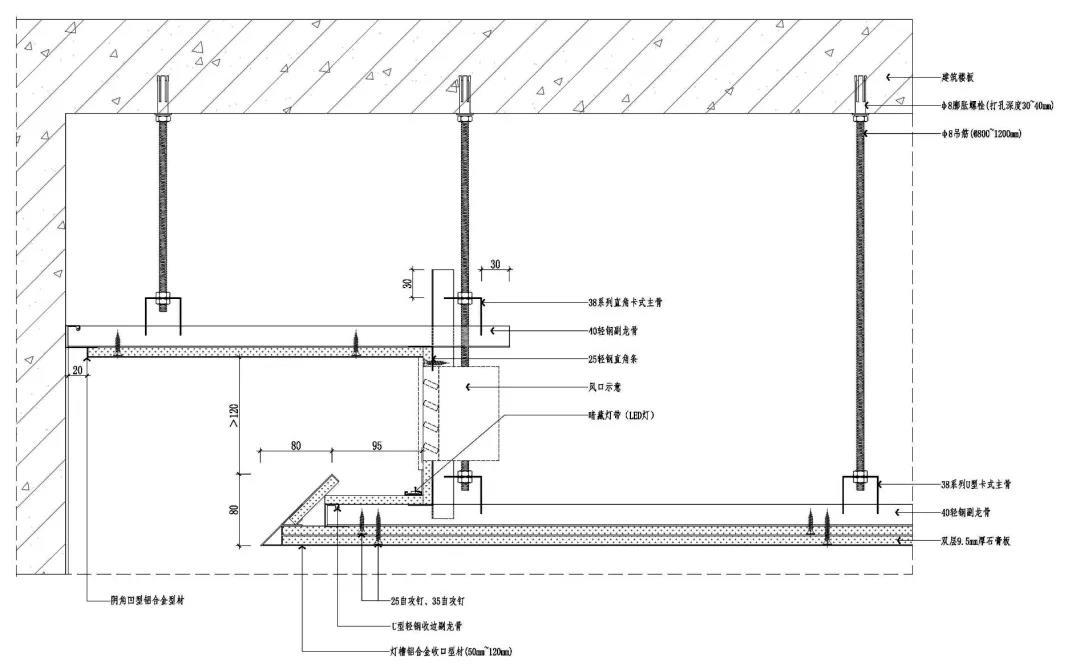
02.“免木防火轻钢龙骨”吊顶施工工艺
免木防火轻钢龙骨吊顶施工工艺,采用集成式卡式快速安装、节省人工节约材料、施工周期短结构稳定公差小(1mm)、防变形防开裂维修率极低;
防火*级A**(GB 50222-2017)、防潮不变形、解决多级吊棚造型无木材、无木材环保、绿色材料无甲醛节能环保、且施工周期短;可与工厂生产数据化、材料加工集中化、现场安装集成化
1.无木天花装配式主要配件

2.图纸及三维模型结构解析


全龙骨灯槽造型工艺(一)△


全龙骨灯槽造型工艺(二)△


全龙骨灯槽造型工艺(三)△


全龙骨灯槽造型工艺(四)△


全龙骨灯槽造型工艺(五)△


全龙骨灯槽造型工艺(六)△
3.全龙骨项目案例



深圳侨城项目现场△




某酒店项目△
本期和你分享的全龙骨标准施工,虽然国内项目短时间很难转变使用标准化、精细化的全龙骨结构工艺,但这种高标准的工法希望广大装饰同行可以掌握,以应对更加复杂的项目综合管控需要。
