
购买别人的二手房就会有个弊端,想着收拾收拾买点家具就可以搬进去,但是实际上只是没有仔细考虑。一旦正式考虑入住的时候,才发现看哪哪都不顺眼,总感觉现在是自己的房子了,到处破旧,生活怎么能将就呢,不如彻底砸掉重新做自己想要的样子。全包含拆除7万,定制1.5万。

▲原始图纸。进门是厅没有窗户,没有自然采光,只能靠灯光进行处理。厨卫夹角生活阳台。只有一间卧室,卧室隔壁其实就是个小的阳台。非常小,但是一个人住倒是不错的。

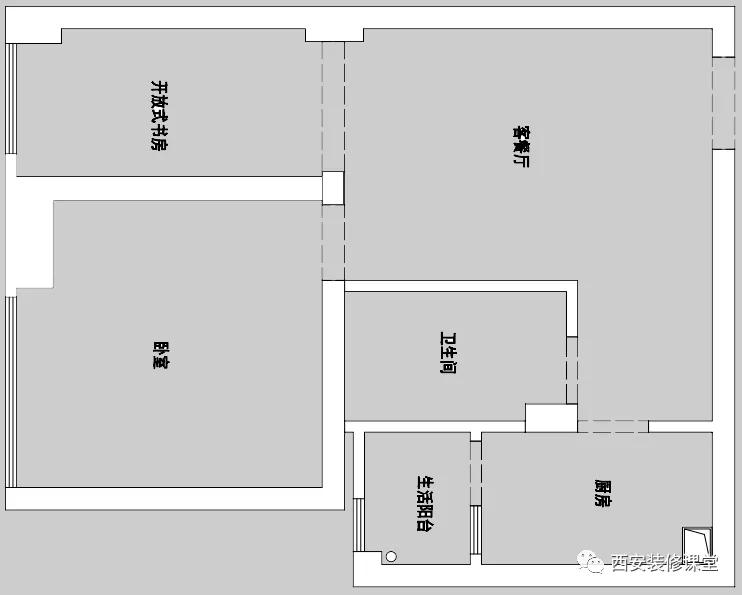
▲平面布置图,进门是厅,没有空间布局餐厅,一个人住,客厅布局,门口超薄鞋柜布局;本来计划厨房门口过道定制收纳柜,后面预算有限就放弃了,暂时只放置了冰箱。卧室隔壁的小房间做了开放式厨房,也能给客厅带来些许采光。

▲房子的原始样貌,其实要将就入住也是可以的,只不过装修没有层次感,比较陈旧而已

▲原始的客厅以及餐厅,还有门口绿色的鞋柜,墙面是过去的陈旧壁纸,反正整体感觉比较老气

▲重新装修以后的样子,彻底大白墙重新涂刷,简单的石膏边线勾勒即可;进门右手定制了白色的超薄鞋柜;蓝灰色布艺沙发与深蓝色电视墙搭配,让小空间视觉明亮,提升层次

▲鞋柜与沙发之间小几布局,背景采用复古的组合挂画,提升空间层次质感

▲进门口定制超薄鞋柜,翻板收纳满足基本需求;上方挂画以及镜子摆放,也能满足基本功能

▲没有改造时候的客厅空间,采光其实就是靠卧室隔壁的小房间

▲改造以后的客厅空间,电视墙整体蓝色变色,突出中心,视觉上提亮整体空间;卧室隔壁小房间打导致了开放式书房,同时也能满足客厅一部分采光

▲没有改造之前的书房空间,采光本身不好,而且布置混乱,空间比较浪费

▲改造之后的书房空间,靠近窗户布置书桌作为办公空间,中间定制书柜满足藏书需求,靠近门口作为健身区域,功能拓展,颜值也提升不小

▲浅色布局,角落绿植点缀,整体颜值提高不少

▲没有改造之前的卧室空间,虽然窗户很大,但是老旧的壁纸搭配,空间陈旧没有层次,没有质感

▲重新装修过的卧室空间,背景采用与电视墙呼应的深蓝色突出层次感;衣柜白色的平板,搭配黑色的金属床,视觉干净空间整体提升档次

▲衣柜因为断开害怕视觉不好看,所以采用了只开启一扇门的方法解决与床头柜的冲突问题;一边床头柜,一边莫兰迪色的落地灯满足功能

▲蓝色打底,胡桃木的床头柜与黑色铁艺床铺搭配,小空间视觉不累赘,而且还有层次感

▲莫兰迪落地灯平时阅读以及晚上起夜都非常实用,同时颜值也非常高

▲原来进入厨房的过道摆了餐桌和冰箱,显得很混乱

▲重新装修以后,考虑到一个人,就舍弃了餐桌布局,过道只放冰箱,这样空间能宽敞和整洁;同时厨卫采用黑色的网红门布局,视觉上也能提升高级感

▲没有装修之前厨房内部,颜色上没有质感,功能上也空间非常浪费。

▲重新装修以后,采用黑色的玻璃移门节省空间,同时定制木质的橱柜以及吊柜,满足操作以及收纳;灰色水泥砖素雅铺贴,整体干净而且功能更多

▲地柜满足洗切炒功能,吊柜满足收纳,为了避免吊柜挡住窗户,采用斜切角形式满足基本收纳,而且避免遮挡光线

▲没有装修之前的卫生间,昏暗而且没有层次

▲重新装修以后,网红门与淋浴隔断黑色质感定制,经典的小白砖让整体对比更有层次;定制浴柜,功能和颜值都提升很多
