
去年,一个以“水仙之美”命名的精准护肤品牌同时升级改造了他们在北京的 5家门店。
Penda China承接了这次的升级改造设计,主创设计孙大勇和万书言决定用一套完整的设计语言赋予水仙之美新的生长土壤,和旧空间相比,他们想要“简单一点、通透一点、明亮一点、快乐一点。”

半年多的时间,水仙之美如期完工,走进这些被弧线温柔贯串起来的轻盈空间,孙大勇说,以前的样子完全想不起来了,如今的效果超出预期。

洞穴故事 柔软的弧线
五年前,孙大勇带领团队在鸿坤美术馆第一次使用了拱形元素,这些蜿蜒的弧线通过起伏流转勾勒出了整个空间。

从那儿之后,拱形元素开始被设计师们大量使用在建筑和室内设计中,这一次,拱形再次成为主角,除了拱的概念完美契合水仙之美的品牌诉求以外,孙大勇的一点私心便是再次呈现真正属于Penda的拱形设计——流转融合的、无可取代的。

准备花时间完成一场精准护肤的姑娘们从来不缺少想象力和对美的感知,在美容院里的护肤过程更像是一场重新唤醒身体的私密仪式,安全感和愉悦体验都必不可少,一个“柔软轻盈的洞穴”想来能兼顾两者。

设计师用连续的弧线串联起了每个私密独立的空间,同样作为女性,另一位主创设计书言一语中的,“应该多追求女性在空间中视线的安放之处”。是啊,在你摇摇脑袋随着弧线偷瞄那些被层层叠叠隐匿起来的空间时,心里的防御已经消失了,躺在苍白盒子房间接受“改造”的美容记忆也跟着退散,女孩们怀揣的不易察觉的隐秘不安,也能被巧妙柔和的建筑线条消解。

拱形同样被设计师赋予功能,除了作为串联各个功能区的结构以外,统一的拱形元素加玻璃构成独立空间的外立面,纵向排列带来清爽的通透感。

水仙之美祥云小镇店拱门设计
作为空间入口的拱形则拥有其它元素替代不了的仪式感和神秘气息,加上厚重的丝绒门帘,戏剧效果激增,进出前后的客人,像刚刚被施了魔法。

为了和大的拱形元素呼应,设计师同样将小一些的拱形元素植入岛台、办公桌、橱窗、展架、美容室镜面,从而获得完整的视觉呈现。

温柔的色彩 被强化的女性符号

每个女性在叛逆期里都曾经拼命抵抗过某种色彩,而粉色一定榜上有名。不过随着年龄的增长,和色彩的对抗也逐渐败下阵来,她们会试着迎接鲜艳的、娇嫩的、冷静的众多色彩,在每种颜色里看到不同的自己。
而沉浸在柔和的粉色里,所有女性的温柔都能无限释放,需要舒展的细纹都能少上一两条,这就是水仙之美的颜色。

书言说,因为个人的护肤疗程时间一般都比较长,所以在整体设计上他们会考虑到材质、颜色等设计元素营造出来的状态是否足够轻松,加上女性美大概也是永远不会过时的时尚议题,所以在颜色的选择上设计师考虑了未来的趋势。
“然后很巧的是正好是今年的流行色。”

柔和的浅粉作为主色覆盖绝大部分室内墙面,深粉色则作为点缀和强调用在拱门上,而没有实体门的拱形出入口则挂起枣红色幕帘,软化了坚硬的墙面质感和固态线条。
为了搭配粉色主色调,空间内的所有设施和配饰也延续了这个配色。
顾客休息区的粉色沙发深浅拼色,线条简洁利落。

祥云小镇店美甲美足区的美容椅是统一的砖红色调,在整个空间里不会显得突兀。

而各个店面统一的粉色水磨石地面也是在整个设计施工中难度最高的部分,由于色彩和颗粒都是定做的,所以反复打样了好几次。最终地面呈现出的效果和整个空间完美的融合在一起,加上涂刷了统一颜色的天花,整个空间像一颗正在缓缓融化的糖果,而融化的美妙时刻被永远定格。

除了粉色系外,木色、米白、灰色和金色点缀在空间里,清淡柔和的同时也没有牺牲尊贵时髦的现代感,一切都恰到好处。

规整功能 提炼品牌标识

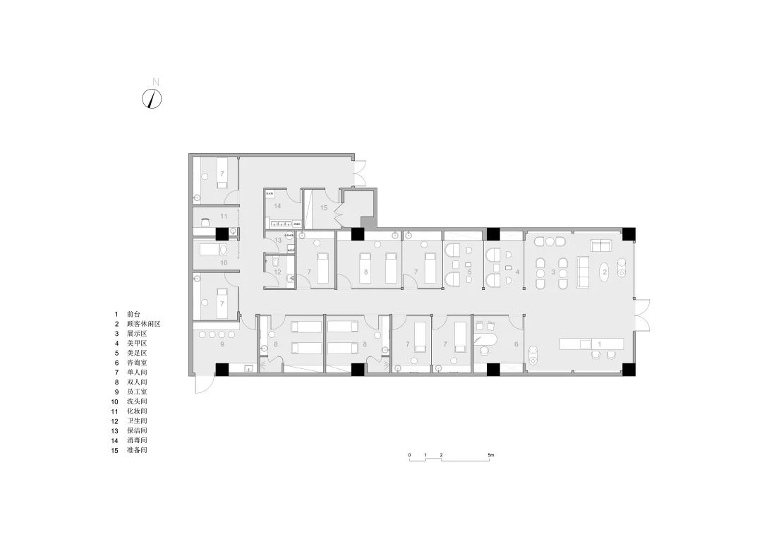
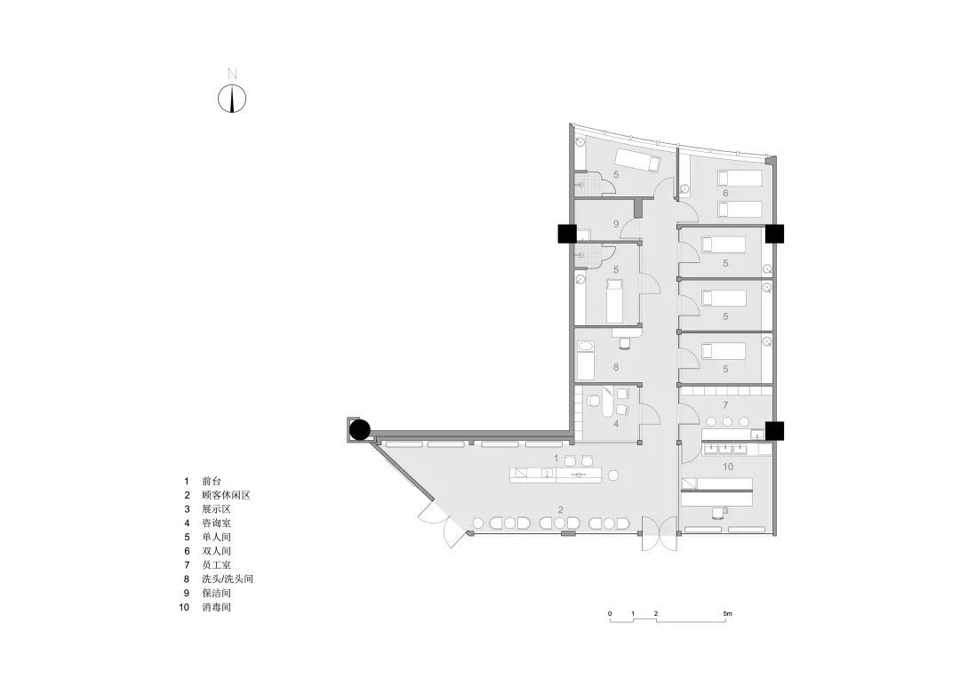
升级改造前的水仙之美每家店都呈现完全不同的功能样态和室内风格,也正是为了塑造辨识度高的记忆点,孙大勇和设计团队将这套完整的设计语言复制进每一个门店。由于每个店面改造前的面积、状态不同,所以在升级改造的过程中设计师对每个空间重新做了疏理,除了微小的功能差异外,尽量让每个店面的主要功能和区域达成统一。

滑动查看平面图,依次为:世贸天阶店、王府井店、祥云小镇店
改造后的门店都配有前台、顾客休闲区、展示区、咨询室、单人间、双人间、化妆间等等一些必备空间,而像美甲区、美足区这些补充功能区则在个别有需求的店面里设置,相对统一的功能设置也能让客人在选择门店时消除疑惑。

除此以外,对多功能空间的整合也是设计师在进行空间改造时的重要设计之一。将吧台、休闲、美甲这些美容以外的功能在开放的前厅整合起来,拿掉这些零散功能区中间的隔断,被“重组”的新区域能让人彻底放松,不论是和人交谈还是休息都能自得,而不只是困在一个个功能单一的小房间里。

设计师对话 More of 水仙之美
改造中最花精力的地方是哪里?最满意的呢?
孙大勇:因为原来的空间都很闭塞,自然光也有限。而我们想要创造的洞穴又需要大空间来表现,所以后来加入了很多镜面,让洞穴的连续性更有层次感。最后对这一部分还挺满意的。

美容行业的顾客人群以女性为主,如何通过设计更好的表达出女性审美?
万书言:女性对美的追求可能是大框架,也可能是细节,就像我们选一双高跟鞋一样。所以对于女性审美来说,设计是没有办法有一个恒定标准的,最重要的还是要细心体会,在空间设计中尽量温暖细致,同时也要给她们一定的想象空间。

改造后的项目最大的亮点是什么?
孙大勇:你想像不到空间有多大,第一次来会有点晕。它像是一个魔术空间,很有戏剧性。
万书言:我们用弧线营造了一种音乐的韵律感,也有一点点神秘色彩,而这正是美丽女性带给人们的感觉。
设计师及项目信息

孙大勇
Penda China建筑事务所创始人及主创建筑师,坚持生态绿色设计理念,提出“少即是爱”的观点。

万书言
Penda China建筑事务所合伙人,中国建筑学专业教师。参与的启皓艺舍、佛罗伦萨(大连)艺术中心、MINI Living等项目受到媒体广泛传播报道,得到社会一致好评。
项目名称:水仙美容连锁店升级 项目地点:北京
项目面积:300㎡-500㎡
设计机构:Penda China
主创设计:孙大勇、万书言
设计团队:张艺、朱玥
图片来自Penda China
撰文 | 思几
编辑 | Dorothy
封面设计 | Linke
安邸AD
加入安邸家
ADClub线上交流群
安邸AD+小程序电商
进入店铺进行选购吧
安邸家ADClub服务号
一同探索家的可能性

...................................................................................................................................................

国际权威家
居生活杂志