1、各分部分项工程的主要施工方法
1.1 污水处理厂区工程
1.1.1 分部分项工程
1.1.1.1 构筑物的具体施工
施工程序:定位→复核→灌注桩浇筑→基坑开挖→桩头处理→底板垫层→绑扎底板钢筋→支底板模板→浇筑底板砼→支池壁内模→绑扎池壁钢筋→支池壁外模板→浇筑池壁砼→支走道板或顶板模板→绑扎走道板及顶板钢筋→闭水试验→沉降观测→池内壁及外壁粉刷及涂料→栏杆等附属等安装→验收→交付设备安装。
1) 清淤回填降水工程:
因无提供详细的拟在地的地形地貌、平面及地质勘探资料。资料上只表明,拟建场地原为稻田及鱼塘,故清淤回填降水等地下工程无法详细编制施工计划。降水采用井点降水和大开挖后明沟排水法;清淤采用反铲挖土机进行开挖,用干泥或钢板桩做临时路到鱼塘中施工。
1.1.1.2 灌注桩施工
用经纬仪正确测得每个桩位,做好标记,复核后策划有关人员进行验收。成孔后浇筑砼,浇筑中导管埋深掌握在2-6m之间,成桩桩顶标高比设计高出1m左右。桩头处理至设计标高。
1.1.1.3 基坑开挖及桩头处理
基坑开挖采用机械开挖方法,土质良好的原状土未被扰动,遇有不适材料全部换砂垫层。开挖时预留20-30cm,由人工清底,基坑四周采用集水井、排水沟降水,排水。底板垫层完成后,桩头一般外露1m以上,处理桩头采用风镐破碎,破桩时不能横打,只能竖打,标高为垫层上100。桩头处理过程中,桩头钢筋完好。钢筋外露部分应满足搭接长度,处理完好桩顶砼均为密实无杂质的纯净砼。
1.1.1.4 钢筋工程:
1) 每批钢筋必须要有合格证和试拉报告。
2) 钢筋取料前,必须认真填写钢筋取料单。钢筋取料,必须按施工图及施工规范要求。
3) 钢筋如需代换时,必须经设计和建设方同意。
4) 底板为双层双向钢筋,故上层钢筋必须支设马凳,φ22@1000,用于固定钢筋和便于人员行走不下沉。池壁钢筋设S钩,
φ12@1000
,用于保证两层钢筋之间的净距满足设计要求。
5) 钢筋切断断口整齐,不得有马蹄形或端头弯曲现象,下料长度正确,允许偏差为±10mm。
6) 钢筋的弯钩长度应符合施工规范规定。钢筋成型后,应挂好标牌,分别堆放整齐。
7) 钢筋的焊接,必须符合设计及施工规范要求。
8) 钢筋的保护层应符合设计要求,用砂浆块绑扎在钢筋与模板之间。间距为500,保证钢筋有足够的保护层。
9) 钢筋的安装(插筋)绑扎和锚固长度,必须符合设计及施工规范规定。
10) 钢筋分项工程完成后,首先作好自检工作,符合要求后即通知建设方、监理方参加隐蔽工程验收,并做好验收签证记录。
1.1.1.5 模板工程:
本投标工程,各单体工程现浇结构采用定型钢模、平板、墙板,支撑采用Φ48钢管扣件连接体系。
1) 地梁和底板模板采用砖模,砖模砌在垫层上。
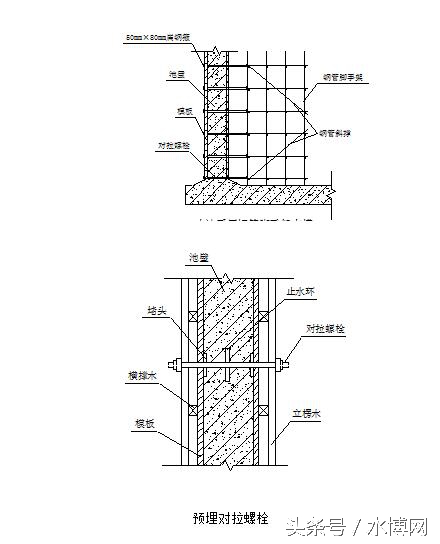
2) 池内搭设钢管脚手架支撑,先固定内模,再利用内模固定外模。内外模板用用组合螺栓或对拉螺栓固定,加焊止水环。如下图所示:脱模后,将螺栓沿基坑底割去,使伸入壁内10-20mm,抹膨胀水泥砂浆封堵。
3) 外模板距离每隔1.5-1.8m、垂直距离每隔0.9-1.2m设一0.6m×0.9m

门子板孔洞,便于下料和振捣。
4) 止水带的形状、尺寸及其物理性能,均应符合设计要求,且无裂纹,无气泡。接缝应采用叠接,接缝应牢固,不得有裂口、脱胶现象。止水带安装应牢固,位置正确,与变形缝垂直。用φ12的钢筋两根,在每钢筋上焊接φ10短头钢筋,每50cm一道,再用两根钢筋夹住止水带的一侧,用20号铅丝*绑捆**,绑扎间距为1m一道,φ12钢筋上焊接的短头钢筋与池壁钢筋用焊接固定,支设模板时止水带两侧的油浸木丝板用铁钉钉在迎头的木模板上,然后用脚手管卡住。
5) 固定在模板上的预埋管、预埋件的安装必须牢固,位置准确。
6) 池顶板模板可按常规支设肋形梁板或无梁楼板相同的方法,用木顶柱或用钢管脚手架支承。如下图:

7) 框架柱模板采用组合式钢模,Φ48钢管做抱箍,第一道抱箍离地150mm,以上每隔600-800mm设一道(不足时也应设一道)。钢模回形销要满钩,高度超高时,可在3m处留活动模板,作砼浇入口,待下部浇好后封闭,加固后,继续浇捣。
8) 构造柱模板采用定型钢模,用回形销连接,用铁皮拉结,再加支撑加固。
9) 底层承重架下无结构层时,立杆处应夯实并加垫木承托。立杆高低不一,应避免超高,不够高需接高的,应用活动扣件双道固定,且接高立杆应叉开。水平连接管一般在1.8m左右一道,且不得少于三道,并在适当位置布设剪刀撑,以保证承重架的整体性、稳定性。
10) 框架梁、连续梁当梁高大于300mm时,应加设铁皮拉结条,以保证梁的断面尺寸,不产生炸模现象。
11) 梁柱交接处,配制定型模板,固定牢固,不得东拼西凑。
12) 模板在安装前均应刷脱模剂,并应控制脱膜剂溶度。
13) 模板分项完成后,应作分项工程质量检查、评定。应符合设计轴线、标高、断面尺寸要求,且应符合模板分项工程质量要求,并应符合施工规范要求。
14) 模板拆除采取模板拆除通知制度,未接模板拆除通知单,任何人不得擅自拆除。
15) 模板拆除后,及时整顿、清理归堆,做好落手清工作。
1.1.1.6 砼工程:
本次投标工程,砼采用商品砼,保证本工程质量和进度的要求,砼用搅拌车统一运送,用砼泵送设备直接送到浇捣现场。
1) 泵送砼应保证泵送设备连续工作。输送管线宜直,转弯宜缓,接头应严密。如管道向下倾斜,应防止混入空气,产生阻塞。泵送前应先用适量的与砼内成分相同的水泥浆或水泥砂浆润滑输送管内壁。如发现故障,停歇时间超过45min或出现离析现象,应立即用压力水或其他办法冲洗管内残留砼。在泵送过程中,受料斗内应具有足够的砼,以防止吸入空气产生阻塞。
2) 底板砼浇筑前,先在垫层上支模、钉标桩控制厚度。应内侧向外侧或中间向两端或两端向中间进行,一次连续浇筑完成。浇灌方式采取斜向推进,用振捣器振捣密实;浇筑次序从排水沟,集水坑等低部位开始,顺序向上浇筑,避免出现冷缝;大面积在底板上铺铁凳。待底板浇筑完后,稍停0.5-1.0h,待沉实后再继续浇筑,避免在交接处出现蜂窝烂脖子和施工缝。池底表面在砼初凝前应压实抹光,使达到强度高、抗裂性好,内实外光。
3) 池壁砼浇筑,应从中间部位开始向两侧对称地进行,每层高度约20-30cm,以免砼浇灌时,由于荷重不均衡或砼浇筑高度不均而使整个模板向一侧倾斜;砼应通过串筒分层均匀下料,在门子洞处用振动器分层振捣密实,振动棒插入间距不应大于45cm,振动时间20-30s,使砼中多余的气体和水份排出,对砼表面出现的积水应及时排干。为保证整体性和提高抗渗性,池壁砼的浇筑应一次完成,避免留施工缝。浇筑过程中设专人随时检查花蓝螺栓、拉杆的松紧程度,模板有无变形、漏浆、套管铁件的位置有无移位。
4) 为提高池壁施工缝的抗渗性,故采用钢板止水带。池壁的施工缝,宜留在底板上面20cm-50cm,顶部宜留在顶板下面不小于20cm部。砼底板与顶板,应连续浇筑,不得留置施工缝。施工缝处继续浇筑砼前,应在已硬化的砼表面上,凿毛和冲洗干净,并保持湿润,但不得有积水。先铺一层与砼配比相同的水泥砂浆,其厚度宜为15-30mm。砼应细致捣实,使新旧砼紧密结合。
5) 各部位砼浇捣前,必须事前安排好浇捣顺序,准备好机具、设备、劳动力的调配计划等一切准备工作。
6) 必须按顺序进行,柱、池壁应分层浇捣,每层厚度(振前)不得大于500mm,且上层必须在下层砼初凝前进行,插入式震动器应掌握好插点距离(不大于振捣器作用半径的1.5倍),做到快插慢拔,表面泛浆、石子不下沉为止。楼(层)面结构浇捣时,除按顺序进行外,先浇梁用插入式震动器震实,后浇板用平板震动器纵横交叉震捣,拉平板震动器时,应重叠50mm以上,以免漏振。平板震动器振好后,表面应平整、泛浆、密实为止。池底板浇捣时,除按顺序进行外,先用插入式震动器震捣密实,然后再用平板震动器纵横交叉震捣密实平整。
7) 各部位砼浇捣时,木工、钢筋、安装各工种必须跟班看护,以保证模板不变形,钢筋位置正确,预留(埋)孔洞(件)位置正确。
8) 砼浇捣结束后,根据季节、温度及时做好覆盖和养护工作。砼养护不少于14天。池外壁在回填土时,方可撤除养护。养护水源接至现场,派专人用自来水养护。
9) 在浇筑地点制作砼试块。强度试块:每工作班不应少于一组,每拌制100m3砼不少于一组,每组三块。抗渗试块:每池按底板、池壁和顶板留置每一部位不应少于一组,每组六块。
10) 砼工程模板拆除后,应对该分项作质量检查评定,并作好自检评定记录。
1.1.1.7 试水及沉降观测
试水前,应先封闭池子进出水管或管道阀门,由池顶孔放水入池,一般分3-6次进水,根据储水高度和供水情况确定每次进水高度,充水速度为40-60t/h。从四周上下进行外观检查,每次观测1天,做好记录,如无异常,可继续灌水到设计储水标高,同时做好沉降观测。灌水到设计标高后停1天进行外观检查,并做好水面高度标记,如是闭口水池,则连续观测7天,池体外表面无渗漏现象。在人孔部位设置千分表,设专人连续观测。如是开口水池,在池壁外侧设置千分表,经三天后观测1天内水池每1m2的渗漏量(除去蒸发量),不超过3L,且伸缩缝无漏水现象。应根据实测数据填写水池满水试验记录。
施工时、试水过程中和试水合格后,根据控制点,对构筑物进行沉降观测。做好沉降记录。
1.1.1.8 池内外壁粉刷和涂料工程:
根据施工图对构筑物进行施工。如要求刷防水层,基层表面应清洁、平整、坚实、粗糙及充分湿润。水泥砂浆的稠度应控制在7-8cm,当采用机械喷涂时,水泥砂浆的稠度就控制应经试配确定。刚性多层作法防水层每层宜连续操作,不留施工缝,当必须留施工缝时,应留成阶梯茬,按层次顺序,层层搭接。阴阳角应做成圆弧形,阳角10mm,阴角50mm。
1.1.1.9 走道板栏杆安装
待构筑物基本结束,可安装栏杆等附属设施。按照图纸,在原预埋铁上,焊接金属栏杆。先弹线,再安装,保证栏杆的轴线和垂直度。如用钢栏杆,则在安装前,必须先除锈,刷防锈漆,安装后再刷两层面漆。刷油漆须仔细周到,厚度均匀,不可漏刷、厚度不一。
1.1.1.10 验收
单项构筑物全部施工完后,可策划有关部门对此构筑物进行验收。如验收不合格,根据验收意见单快速整改,为以后安装设备争取时间。
1.1.2 建筑物的具体施工
定位→复核→打桩→挖土→破桩→基础→地下室(操作楼)→上部结构柱梁钢筋、模板、浇筑→砌墙→板模板、钢筋、浇筑…..→逐层施工→屋顶→门窗安装→内装修→外装修
(1) 地下部分在前已叙述,这里不再说明。
(2) 模板工程:
在构筑物施工中已作介绍,在此介绍柱、梁支模顺序。
2.1) 柱模安装:支模前检查→大模安装→检查对角线长度差→安装柱箍→全面检查校订→整体固定→柱头找平
2.2) 梁模安装:复核轴线底标高及轴线位置→支梁底模→绑扎钢筋→支梁侧模→复核梁模尺寸及位置→与相邻梁板连接固定
(3) 砼的浇筑、养护、试块、钢筋的下料、绑扎、验收同前。
(4) 砌筑工程:
4.1) 砌筑用的材料:机制红砖、石灰、砂、水泥必须符合设计和规范要求。
4.2) 砌筑前必须将砖浇水湿润,所砌部位轴线需经复核无误,并浇水湿润,两端应立(划)好皮数杆,柱内拉结筋应事先凿出。
4.3) 砌筑砂浆配合比,应经试验室提供,计量配料,搅拌均匀,控制砂浆坍落度。砂浆试块按规定随机取样制作、养护,并按时送试验。
4.4) 砌筑时,组砌方法正确,砂浆饱满,墙面平直,不得有同缝通缝现象,断砖不得集中使用,每天做好自检自查工作,对不符合要求之墙体,必须当天处理妥当。
4.5) 砌体临时施工洞口,必须按规定留置,且应加设拉结筋(2Φ6@500、L=1000),封施工洞口时,应先浇水湿润施工洞砌体接口,然后分皮砌筑,砂浆必须嵌密实,不得有同缝通缝现象。
4.6) 砌筑作业完成后,及时做好落手清工作。
4.7) 砌筑作业完成后,及时做好分项工程质量评定,并作好自检评定记录。
(5) 屋面工程施工方案:
介绍现浇屋面
5.1) 施工准备:
5.1.1) 必须做好技术交底工作,分各单体工程编制好详细施工方案和施工策划设计,并送有关人员审核批准。
5.1.2) 穿屋面管道必须在施工前安装完毕,埋设好屋面落水头子。
5.1.3) 准备好屋面施工用的各种材料,且各种材料必须符合设计及规范要求,特别是防水材料,必须有出厂合格证及质保书。
5.1.4) 做好屋面施工用的各种机(工)具准备,并安排好施工人员。
5.1.5) 做好防雨材料的准备工作。
5.1.6) 做好屋面基层的清理工作。
5.2) 施工过程的质量管理:
施工过程的质量管理,贯串于施工全过程,为此,必须做好每道工序施工前的技术交底工作,特别是女儿墙边泛水、沿沟与屋面交接处,沿沟落水处,屋面伸缩缝处等细部。施工过程中做好监督指导工作,每道工序完成后应作好自检自查工作,施工过程中必须严格执行施工操作规范及施工质量验收规范,质量如达不到要求,不得进入下道工序施工。屋面面层施工完毕后,必须做好成品保护工作,严禁损坏和破坏表面面层。屋面面屋施工一般自高而低进行。屋面施工时,还应及时掌握天气变化情况。
5.3) 施工方案:
5.3.1) 找坡层:在清理干净基层的前提下,按设计要求拌制好找坡层材料,先在基层上套一层素水泥原浆,然后按设计要求厚度铺上找坡层,坡度必须按设计要求,质量要求达到平整、密实,并应符合质量验评标准。
5.3.2) 刚性防水层:按设计要求采用40mm厚C30细石砼,内配纵横钢筋网按各单体要求,并保证钢筋网位置正确。严格控制细石砼水灰比、坍落度、细石砼铺好后,用滚动纵横推拉提浆,保证砼的密实度,随捣随抹,表面平整。
5.3.3) 内外装修工程施工方案:
a.外墙面砖铺贴要求及施工方法:
b.吊垂直线,套方找规矩,按墙面上已弹的基准线,分别在门窗口垛、墙面等处吊垂直线,抹灰饼并按灰饼冲筋来控制墙面平整。
c.在大面积抹底层前应先浇水湿润墙面,抹底子灰分二遍抹,每遍厚度宜在5-7mm,应分层分遍与所冲筋抹平并用刮尺刮平木抹子挫毛。
d.外墙面面砖施工前,应根据图纸、尺寸核实结构实际情况,以排整砖为原则,绘制施工大样,避免出现“破”活。面砖铺贴时阳角处两角应切成45度角对角铺贴。面砖的缝隙缝宽宜为8mm左右,缝深度应凹进在砖外皮2-3mm,勾缝材料宜为1:1水泥细砂掺适量胶水拌制的砂浆,用专用勾缝工具进行勾缝,要求嵌填密实,水平缝和竖向灰缝均应做到通顺平直,宽窄深浅一致无丢缝。
e.砂采用细砂,含泥量不大于2%,并过筛使用。
f.有关细部施工,必须符合设计及有关规定。
g.原材料要求:
水泥应用325#及其以上普通水泥,宜采用同一厂家同一批生产、颜色一致的水泥。
面砖的品种、规格、颜色和图案必须符合设计要求,面砖就质地坚固耐水、抗冻、吸水率必须符合有关规定要求。
对掺用的胶水一定要符合要求,应有出厂合格证,严禁使用假冒产品。
(6) 室内装修工程:
6.1) 装饰顺序:先天棚抹灰,再墙面抹灰,最后楼地面及涂料。
6.2) 施工方案:
6.2.1) 顶棚抹灰要点:
顶棚抹灰前应做好基层清理工作,再用清水湿润并刷素水泥浆一道。
抹灰前应在四周墙上弹出水平线,以墙上水平线为依据,先抹四天棚四周,周边找平,然后再抹中间部分。
6.2.2) 墙面抹灰要点:
抹灰前必须先找好规矩,即四角规方,横线拉平、立线吊直、弹出准线。
室内墙面、柱面的阳角,按要求用1: 2水泥砂浆抹出护角,护角高度1.8m,每侧宽度不小于50mm。其做法是:根据灰饼厚度抹灰,然后粘好八字靠尺,并找方吊直,用1:2水泥砂浆分层抹平,等砂浆稍干后,再用捋角器将水泥捋出小圆角。
基层为混凝土时,抹灰前应先刮素水泥浆一道。
纸筋灰罩面,宜在底子灰5-6成干时进行,底子灰如过于干燥应先浇水湿润,罩面分两遍压实赶光。
6.2.3) 楼地面工程:
楼地面工程施工在执行国家标准《建筑地面工程施工及验收规范》时,尚应符合现行国家标准、规范以及杭州市提高建筑安装工程质量的若干规定。
楼地面各构造层所用材料的品种、规格以及杭州市提高建筑安装工程质量的若干规定。
浇筑水泥砂浆面层前,必须清除基层杂物,洒水湿润,并刷原浆一道后随抹水泥浆砂浆面层。
水泥砂面层材料要求:水泥:宜采用硅酸盐水泥和普通硅酸盐水泥,其标号不得低于425#,严禁不同品种水泥混用。
砂:宜采用中砂,含泥量不应大于3%;水:饮用水。
面层压光宜用钢皮抹子分三遍完成,并逐遍加大用力压光,压光应在水泥终凝前完成。
当水泥砂浆湿度不适宜时,可采取撒干拌的1:1水泥砂进行抹平压光工作。
面层压光后要进行养护,冬季施工应做好保温工作。
6.2.4) 地面砖施工
材料:表面色彩按设计要求选定,板块要角方、边直、面平,利于保证铺贴质量。
水泥:标号选用425#及其以上普通水泥,安定性必须合格。
砂子:中砂,含泥量不大于3%,并要求过筛。
(7) 保证室内装修工程质量的技术措施:
7.1) 顶棚抹灰前,应先做好基层清理工作,洒水湿润,再刷原浆一道。
7.2) 墙面抹灰前,应先做好基层清理工作,浇水湿润墙面,并在石柱、梁与砖墙连接处,加设钢丝网,以免抹灰后产生裂缝。
7.3) 抹灰用的水泥必须经二次试验,合格后方可投入使用。砂浆必须经试验室提供级配单,并按级配单配料。
7.4) 墙面抹灰,必须分层抹平,严格掌握墙面的平整度、垂直度,并要求达到优良等级。
7.5) 楼、地面工程,必须防止起灰、起砂、龟裂、起壳等现象,严格按操作规范施工,施工前必须做好技术交底工作,并派有关人员现场指导。
7.6) 各分项工程施工中,及时做好自检自检工作,项目部及时做好复检工作,发现质量问题,必须及时整改、修整,质量必须达到优良标准。
(8) 铝合金门窗、木门施工方案:
8.1) 铝合金门窗安装
8.1.1) 施工准备
铝合金门窗的规格、型号应符合设计要求,五金配件配套齐全,并具有产品出厂合格证。
防腐材料、水泥、砂、连接铁脚、密封膏、嵌缝材料应符合图纸要求。
结构质量经验收符合合格产品,工种之间办好交接手续。
按图示尺寸弹好门窗中线,并弹好室内+50cm水平线。校核门窗洞口位置尺寸及标高是否符合设计图纸要求,如有问题应提前进行剔凿处理,并应及时将孔洞内杂物清理干净。
铝合金门窗的拆包、检查与运输:将门窗框周围包扎布拆去。按图纸要求核对型号和检查铝合金门窗的质量,如发现有劈棱窜角和翘曲不平,偏差超标者,严重损伤,划痕严重、外观色差大者,应找有关人员协商解决,经修整或调换,鉴定合格后才能安装。
提前检查铝合金门窗,如粘有保护膜缺损者应补粘后再施工安装。
8.1.2) 操作工艺
在最高层找出窗口位置后,以其窗边线为标准,用特制大线坠将窗边线下引,并在各层窗口处划线标记,对个别不直的口边应进行剔凿处理。
窗口的水平位置应以楼层+50cm的水平线为标准,往上量出窗下皮标高,弹线找直。每一层应保持下皮标高一致。
就位和临时固定:根据找好的规矩,安装铝合金门窗,并及时将其吊直找平,同时检查其安装位置是否正确,无问题后,用木楔临时固定。
与墙体的固定:铝合金门窗与墙体的固定方法有三种:
沿窗框外墙用电锤打6孔(深60mm),并用T型DN6钢筋(40×60mm),稍粘107胶水泥浆,打入孔中,待水泥浆终凝后,再将铁脚与预埋筋焊牢。
连接铁件与预埋钢板或剔出的结构钢筋(非主筋)焊接。
用射钉枪将铁脚与墙体固定。铁脚至窗角的距离不应大于180mm,铁脚间距应小于60mm。
门窗安装固定后,应及时按设计要求处理框与墙体缝隙。若设计未规定填塞材料时,应采用矿棉或玻璃棉毡条分层填塞缝隙,外表面留5-8mm深槽口填嵌缝油膏。或在门窗两侧进行防腐处理后嵌填中性水泥砂或中性细石混凝土,但应在门窗安装后将框周缝同时嵌缝,嵌缝时防止门窗框碰撞变形。
8.1.3) 保证项目
门窗及其附件质量必须符合设计要求和有关标准的规定。
门窗安装必须牢固,预埋件的数量、位置、埋设连接方法必须符合设计要求。
门窗框与非不锈钢紧固件接触面之间必须做防腐处理,严禁用水泥砂浆作窗框民墙体之间的填塞材料。
8.1.4) 基本项目
门窗扇关闭严密,间隙均匀,扇与框搭接量应符合设计要求。
附件齐全,安装位置正确、牢固,灵活适用,达到各自的功能,端正美观。
框与墙体间缝隙填嵌饱满密实,表面平整、光滑、无裂缝,填塞材料、方法符合设计要求。
门窗表面洁净,无划痕、碰伤、无锈蚀;涂胶表面光滑、平整,厚度均匀,无气孔。
允许偏差项目应符合施工规范。
8.2) 木门制作要点
门生产操作程序:配料→截料→刨料→画线、凿眼→开榫、裁口→整顿线角→截放→拼装。
8.2.1) 木门扇安装要点
安装前检查门窗的型号、规格、质量是否合乎要求,如发现问题,应事先修好或更换。
安装前行量好门框的高低、宽窄尺寸,然后在相应的扇边上画出高低宽窄的线,保证梃宽一致,上下冒头出要画线刨直。
画好高低、宽窄线后,用粗刨刨去线外部分,再用细刨刨至光滑平直,使其合乎设计尺寸要求。
将扇放入框中试装合格后,在两头按扇高的1/8-1/10处,在框上按合页大小画线,并剔出合页槽,槽深一定要与合页厚度相适应,槽底要平。
8.2.2) 木门安装质量要求
木门框安装位置必须符合设计要求,安装必须牢固,固定点符合设计要求和规范的规定。
木门框与墙体间应嵌填严密,并作好防腐处理。
木门扇安装要求裁口顺直,表面平整光滑,开关灵活、稳定、无回弹和倒翘。
木门小五金安装要求位置适宜,槽边整齐,槽深一致,尺寸准确。小五金安装齐全,规格符合要求,木螺钉拧紧卧平,插销开启灵活。
木门、盖口条、压缝条、密封条的安装要求尺寸一致、平直光滑,与门结合牢固严密,无缝隙。
8.2.3) 油漆工程:
基层处理:
首先将木门基层面上的灰尘、锈斑、胶迹等用刮刀或碎玻璃片刮除干净。注意不要刮出毛刺,也不要刮破抹灰墙面,然后用1#以上砂纸顺木纹打磨,先磨线角,后磨四口平面,直到光滑为止。
木门基层有小块活翘皮时,可用小刀撕掉。重皮的地方应用小钉子钉牢固,如重皮较大或有烤糊印痕,应由木工修补。
满刮油腻子
抹腻子的配合比为石膏粉20,熟桐油7,水50(重量比),并加颜料调成石膏色腻子(颜色浅于样板1-2色),要注意腻子油料不可过大或过小,如油性大,刷时不易浸入木质内,如油性小,则易个钻入木质内,这样刷的油色不易均匀,颜色不能一致。用开刀或牛角板将腻子刮入钉孔、裂纹、鬃眼内。刮抹时要横抹竖起,如遇接缝或节疤较大时,应用开刀、牛角板将腻子挤入缝内,然后抹平。腻子一定要刮光,不留野腻子。待腻子干透后,用1#砂纸轻轻顺木纹打磨,先磨线角、裁口、后磨四口平面,注意保护棱角,来回打磨至光滑为止。磨完后用潮布将磨下的粉末擦净。
刷油色
将铅油、汽油、光油、清油等混合在一起过滤(颜色同样板颜色),然后倒在小油桶内,使用时经常搅拌,以免沉淀导致颜色不一致。
刷油色时,应从外至内、从左至右、从上至下进行,顺着木纹涂刷。刷门框时不得碰到墙面上,刷到接头处要轻飘,达到颜色一致;因油色干燥较快,所以刷油色时动作应敏捷,要求无缕无节,横平竖直,顺油时刷子要轻飘,避免出刷绺。
刷木门时,先刷亮子后刷门框、门扇背面,刷完后用木楔将门固定,前后刷门扇正面;全部刷好后检查是否有漏刷,小五金上沾染的油色要及时擦净。
油色涂刷后要求木材色泽一致,而又不盖住木纹,所以每一个刷面一定要一次刷好,不留接头,两个刷面交接棱口不要互相沾油,沾油后要及时擦掉,达到颜色一致。
成品保护
每遍油漆前,都应将地面、窗台清扫干净,防止尘土飞扬,影响油漆质量。
每遍油漆后,都应将门扇用木楔固定,防止门窗、框油漆粘结,破坏漆膜,导致修补及扇活损伤。
刷油后应将滴在地面及碰在墙面上的油点清刷干净。
油漆完成后应派专人负责看管。
应注意的质量问题:
漏刷:漏刷一般多发生在门的上、下冒头和靠合页小面以及门框、压缝条的上、下端部等,基主要原因是内门安装时油工与木工不配合,故往往下冒头未刷油漆就把门扇安装了,事后油工根本刷不了(除非把门合页卸下来重刷);加上习惯传统做法(后装)及把关不严、管理不到位等,往往有少刷一遍油的现象。其他漏刷问题主要是操作者不认真所致。
缺腻子、缺砂纸:缺腻子、缺砂纸一般多发生在合页槽、上中下冒头、榫头和钉孔、裂缝、节疤以及边棱残缺处等。主要原因是操作未认真按照规程和工艺标准去操作所致。
流坠、裹楞:油漆流坠、裹楞主要原因有二,一是由于漆料太稀,漆膜太厚或环境温度高,油漆干性慢等原因都易导致流坠、裹楞。二是由于操作顺序和手法不当,尤其是门边棱分色处,如一旦油量大和操作不注意就往往容易导致流坠、裹楞。
刷纹明显:主要是油刷子小或油刷未泡开刷毛发硬所致。应用相应合适的刷子并把油刷用稀米泡软后使用。
粗糙:主要原因是基层不干净,油漆内有杂质或尘土飞扬时施工,导致油漆表面常发生粗糙现象。应注意用湿布擦净,油漆要过箩,严禁刷油时清理或刮大风时刷油。
皱纹:主要是漆质不好,兑配不均匀、溶剂挥发快或催干剂过多等原因导致。
五金污染:除了操作要细和及时将小五金等污染处清擦干净外,应尽量把门锁、拉手和插销等后装(但可以事先把位置和门锁孔眼钻好),确保五金洁净美观。
(9) 脚手架工程:
本投标工程各单体工程施工脚手架,均采用Φ48钢管、扣件连接搭设,外架二层以上均加设密网围护,外架及井字架搭设好后,必须经专职人员专项验收,符合要求后,挂牌施工。施工中,未经施工人员及有关人员同意,任何人不得任意拆除支撑、缆风、栏杆、脚手片等。施工过程中,安全员应天天检查脚手架、井字架等,如发现松动、倾斜、或不符合施工规范要求处,必须及时进行处理,处理好后,经检查达到要求后,施工人员方可进入施工。脚手架、井字架拆除前,必须由施工员统一安排,拆除部位范围内必须做好临时围护,并作招牌示意。拆除工作必须从上到下进行,拆除时必须注意保护好外墙装饰面层,架子等处理好后再拆。脚手架、井字架拆除后,地面应及时进行清理归堆,及时做好工完场清工作。
建筑物脚手架搭设如下图:

在工作面与外侧面上铺设一层竹笆
(10) 附属工程:
10.1) 箱涵
10.1.1) 施工顺序:
测量→挖土→碎石土垫层施工→底板钢筋、模板、浇灌砼→上部结构钢筋、模板、浇灌砼→回填土。
10.1.1.1) 根据设计图纸放出箱涵开槽线,挖好土方。选用符合设计和规范要求的碎石进行填筑,填筑时应分层夯实,夯实采用蛙式夯。严格控制填筑标高,达到设计标高后浇筑垫层砼。浇筑垫层砼可满槽浇筑,振捣密实,抹面平整,同时按流水方向找好坡度。
10.1.1.2) 箱涵施工:先在垫上用经纬仪放出涵身中心线及边线。箱涵钢筋、模板,砼的要求同前构筑物的施工要求。一般用就地支架浇筑,全箱分两次浇筑,第一次浇筑至底板以上30cm,待砼终凝达到一定强度后,进行第二次剩余部分的砼浇筑。两次浇筑必须有良好的结合面,钢筋的预埋及搭接长度必须符合规范要求。变形缝每15m设一道,宽度为3cm。在不受水压部分,变形缝用加氟化纳等防腐掺料的沥青浸过的麻丝填塞严密,并用有纤维掺料的沥青嵌缝。在受水压部位,其变形缝除填缝外还就用橡胶上止水带封缝。做法同前。
10.1.1.3) 回填土:翼墙背及箱身两侧填土施工,应确保砼达到100%设计强度后进行,回填、奋实步骤及要求严格按设计要求及规范执行。
10.2) 污水管道施工:(管座形式120度)
10.2.1) 基础开挖,槽底土基检测无误后,开始支设基础钢模板,模板支设应牢固,严密不漏水,将砼浇入模板内,用平板振捣器振捣密实、找平,严格控制高程。基础强度达到50%后,铺设管道,做管道接口,进行管座砼的浇筑。施工时管两侧同时浇筑,用振捣器振捣密实,用木抹抹顺,管座与管身结合应严密。
10.2.2) 平口管的安装:管材运至现场后,逐节按顺序堆放于沟槽的一侧,便于下管。用吊车下管时,按设计要求复测中心线、高程。接口采用钢丝网水泥抹带,将砼管口部进行凿毛处理,用水冲净,表面涂一层素水泥浆,立即安装钢丝网条,用水泥砂浆压抹密实,确保接口结合严密。
10.3) 挡土墙工程:
厂区南靠塘侧采用浆砌块石重力式挡土墙,因为地形是明塘,故围堰施工,采用钢板桩作为防水帷幕,降水采用井点降水法。钢板桩支撑,桩与桩之间嵌横向挡土板,钢桩间隔0.8m,桩长10m,桩到位后及时嵌入挡板,顺序自下而上,板缝间隙应严密,板与型钢翼板应贴紧。浆砌块石浆缝应密实,砂浆应饱满。
1.1.3 机械设备安装
1.1.3.1 安装准备工作
工程施工前,应具备设计和设备的技术文件;对大中型、特殊的或复杂的安装工程尚应编制施工策划设计或施工方案。
工程施工前,对临时建筑、运输道路、水源、电源、蒸汽、压缩空气、照明、消防设施、主要材料和机具及劳动力等,应有充分准备,并作出合理安排。
工程施工前,其厂房屋面、外墙、门窗和内部粉刷等工程应基本完工,其混凝土强度不应低于设计强度的75%;安装施工地点及附近的建筑材料、泥土、杂物等,应清除干净。
当设备安装工序中有恒温、恒湿、防震、防尘或防辐射等要求时,应在安装地点采取相应的措施后,方可进行相应工序的施工。
当气象条件不适应设备安装的要求时,应采取措施。采取措施后,方可施工。
利用建筑结构作为起吊、搬运设备的承力点时,应对结构的承载力进行核算;必要时应经设计单位的同意,方可利用。
设备开箱应在建设单位有关人员参加下,按下列项目进行检查,并应作出记录:
箱号、箱数以及包装情况;
设备的名称、型号和规格;
装箱清单、设备技术文件、资料及专用工具;
设备有无缺损件,表面有无损坏和锈蚀等;
其他需要记录的情况。
设备及其零、部件和专用工具,均应妥善保管,不得使其变形、损坏、锈蚀、错乱或丢失。
设备基础的位置、几何尺寸和质量要求,应符合现行国家标准《钢筋混凝土工程施工及验收规范》的规定,并应有验收资料或记录。设备安装前应规定的允许偏差对设备基础位置和几何尺寸进行复检。
设备基础表面和地脚螺栓预留孔中的油污、碎石、泥土、积水等均应清除干净;预埋地脚螺栓的螺纹和螺母应保护完好;放置垫铁部位的表面应凿平。
需要预压的基础,应预压合格并应有预压沉降记录。
1.1.3.2 主要设备安装要求
设备安装的质量及技术要求以设计院提供的设计图纸为准,凡图上未加注明,均按国家有关“规程规范”和“技术标准”实施。国外设备按产品说明书(设备的操作和保养手册)要求执行,未有规定的部分,参照国内有关“规程规范”和“技术标准”实施。
钢吊车梁和吊机、格栅和输送带、污水泵和阀门与管道、螺旋传送器、鼓风机、刮泥机、污泥泵、离心泵、带式浓缩脱水机、脱水污泥收集运输带、聚合物转换设备、沼气锅炉与传送装置、止回阀、电动闸阀、电磁流量计等设备均依据下述的手册、技术标准及规范要求进行安装及验收。
《设备说明手册》;
《维修说明手册》;
《操作说明手册》;
《简明数据手册》;
《室外给水设计规范》GBJ13-86(1997年版);
《室外排水设计规范》GBJ14-87(1997年版);
《建筑给水排水设计规范》GBJ15-88(1997年版);
《工业金属管道工程施工及验收规范》GB50268-97;
《机械设备安装工程施工及通用规范》GB50231-98;
1.1.3.3 放线就位和找正调平
设备就位前,应按施工图和有关建筑物的轴线或边缘线及标高线,划定安装的基准线。
互相有连接、衔接或排列关系的设备,应划定共同的安装基准线。必要时,应按设备的具体要求,埋设一般的或永久性的中心标板或基准点。
平面位置安装基准线与基础实际轴线或厂房墙(柱)的实际轴线、边缘线的距离,其允许偏差为±20mm。
设备定位基准的面、线或点对安装基准线的平面位置和标高的允许偏差,应符合下表的规定。
设备的平面位置和标高对安装基准线的允许偏差

设备找正、调平的定位基准面、线或点确定后,设备的找正、调平均应在给定的测量位置上进行检验;复检时亦不得改变原来测量的位置。
设备的找正、调平的测量位置,当设备技术文件无规定时,宜在下列部位中选择:
设备的主要工作面;
支承滑动部件的导向面;
保持转动部件的导向面或轴线;
部件上加工精度较高的表面;
设备上应为水平或铅垂的主要轮廓面;
连续运输设备和金属结构上,宜选在可调的部位,两测点间距离不宜大于6m。
设备安装精度的偏差,宜符合下列要求:
能补偿受力或温度变化后所引起的偏差;
能补偿使用过程中磨损所引起的偏差;
不增加功率消耗;
使转动平稳;
使机件在负荷作用下受力较小;
能有利于有关机件的连接、配合;
有利于提高被加工件的精度。
当测量直线度、平行度和同轴度采用重锤水平拉钢丝测量方法时,应符合下列要求:
宜选用直径为0.35~0.5mm的整根钢丝;
两端应用滑轮支撑在同一标高面上;
重锤质量的选择,应根据重锤产生的水平拉力和钢丝直径确定,重锤产生的水平拉力应按下式计算,或按规定选配;
P=756.168d2
式中P——水平拉力(N);
d——钢丝直径(mm)。
测点处钢丝下垂度可按下式计算,或按本规范附录二的规定取值:
∫u=40·L1·L2
式中∫u——下垂度(um);
L1、L2——由两支点分别至测点处的距离(m)。
1.1.3.4 试运转
设备试运转前应具备下列条件:
设备及其附属装置、管路等均应全部施工完毕,施工记录及资料应齐全。其中,设备的精平和几何精度经验合格;润滑、液压、冷却、水、气(汽)、电气(仪器)控制等附属装置均应按系统检验完毕,并应符合试运转的要求。
(1) 需要的能源、介质、材料、工机具、检测仪器、安全防护设施及用具等,均应符合试运转的要求。
1.1) 对大型、复杂和精密设备,应编制试运转方案或试运转操作规程。
1.2) 参加试运转的人员,应熟悉设备的构造、性能、设备技术文件,并应掌握操作规程及试运转操作。
1.3) 设备及周围环境应清扫干净,设备附近不得进行有粉尘的或噪音较大的作业。
2) 设备试运转应包括下列内容和步骤:
2.1) 润滑、液压、气(汽)动、冷却和加热系统的检查和调整试验。
2.2) 电气(仪器)操纵控制系统及仪表的调整试验。
2.3) 机械和各系统联合调整试验。
2.4) 空负荷试运转,应在上述一~三项调整试验合格后进行。
3) 电气及其操作控制系统调整试验应符合下列要求:
3.1) 按电气原理图和安装接线图进行,设备内部接线和外部接线应正确无误。
3.2) 按电源的类型、等级和容量,检查或调试及断流容量、熔断器容量、过压、欠压、过流保护等,检查或调试内容均应符合其规定值。
3.3) 按设备使用说明书有关电气系统调整方法和调试要求,用模拟操作检查其工艺动作、指示、讯号和联锁装置应正确、灵敏和可靠。
3.4) 经上述一~三项检查或调整后,方可进行机械与各系统的联合调整试验。
4) 液压系统调试应符合下列要求:
4.1) 系统清洗后,其清洁度经检查应符合规定。
4.2) 按润滑油(剂)性质及供给方式,对需要润滑的部位加注润滑剂;油(剂)性能、规格和数量均应符合设备使用说明书的规定。
4.3) 干油集中润滑装置各部位的运动应均匀、平稳、无卡滞和不正常声响;给油量在5个工作循环中,每个给油孔、每次最大给量的平均值,不得低于说明书规定的调节值。
4.4) 稀油集中润滑系统,应按说明书检查和调整下列各项目:
4.4.1) 油压过载保护;
4.4.2) 油压与主机启动和停机的联锁;
4.4.3) 油压低压报警停机讯号;
4.4.4) 油过滤器的差压讯号;
4.4.5) 油冷却器工作和停止的油温整定值的调整;
4.4.6) 油温过高报警信号。系统在公称压力下应无渗漏现象。
5) 液压系统调试应符合下列要求:
5.1) 系统在充液前,其清洁度应符合规定。
5.2) 所充液压油(液)的规格、品种及特性等均应符合使用说明书的规定;充液时应多次开启排气口,把空气排除干净。
5.3) 系统应进行压力试验。系统的油(液)马达、伺服阀、比例阀、压力传感器、压力继电器和蓄能器等,均不得参与试压。试压时应先缓慢升压到下表的规定值,保持压力10min,然后降至公称压力,检查焊缝、接口和密封处等,均不得有渗漏现象。
液压试验压力

5.4) 启动液压泵,进油(液)压力应符合说明书的规定;泵进口油温不得大于60℃,且不得低于15℃;过滤器不得吸入空气,调整溢流阀(或调压阀)应使压力逐渐升高到工作压力为止。升压中应多次开启系统放气口将空气排除。
5.5) 应按说明书规定高速安全阀、保压阀、压力继电器、控制阀、蓄能器和溢流阀等液压元件,其工作性能应符合规定,且动作正确、灵敏和可靠。
5.6) 液压系统的活塞(柱塞)、滑块、移动工作台等驱动件(装置),在规定的行程和速度范围内,不应有振动、爬行和停滞现象;换向和卸压不得有不正常的冲击现象。
5.7) 系统的油(液)路应通畅。经上述调试后方可进行空负荷试运转。
6) 气动、冷却或加热系统调试应符合下列要求:
6.1) 各系统的通路应畅通并无差错;
6.2) 系统应进行放气和排污;
6.3) 系统的阀件和机构等的动作,应进行数次试验,达到正确、灵敏和可靠;
6.4) 各系统的工作介质供给不得间断和泄漏,并应保持规定的数量、压力和温度。
7) 机械和各系统联合调试应符合下列要求:
7.1) 设备及其润滑、液压、气(汽)动、冷却、加热和电气及控制等系统,均应单独调试检查并符合要求。
7.2) 联合调试应按要求进行;不宜用模拟方法方替。
7.3) 联合调试应由部件开始至组件、至单机、直至整机(成套设备),按说明书和生产操作程序进行,并应符合下列要求:
7.3.1) 各转动和移动部分,用手(或其他方式)盘动,应灵活,无卡滞现象。
7.3.2) 安全装置(安全联锁)、紧急停机和制动(大型关键设备无法进行此项试验者,可用模拟试验代替)、报警讯号等经试验均应正确、灵敏、可靠。
7.3.3) 各种手柄操作位置、按扭、控制显示和讯号等,应与实际动作及其运动方向相符;压力、温度、流量等仪表、仪器指示均应正确、灵敏、可靠。
7.3.4) 应按有关规定调整往复运动的行程、变速和限位;在整个行程上其运动应平稳,不应有振动、爬行和停滞现象;换向不得有不正常的声响。
7.3.5) 主运动和进给运动机构均应进行各级速度(低、中、高)的运转试验。其启动、运转、停止和制动,在手控、半自动化控制和自动控制下,均应正确、可靠、无异常现象。
(8) 设备空负荷试运转应符合下列要求:
8.1) 应按本规范规定机械与各系统联合调试合格后,方可进行空负荷运转。
8.2) 应按说明书规定的空负荷试验的工作规范和操作程序,试验各运动机构的启动,其中对大功率机组,不得频繁启动,启动时间间隔应按有关规定执行;变速、换向、停机、制动和安全连锁等动作,均应正确、灵敏、可靠。其中连续运转时间和断续运转时间无规定时,应按各类设备安装验收规范的规定执行。
8.3) 空负荷试运转中,应进行下列各项检查,并应作实测记录:
8.3.1) 技术文件要求测量的轴承振动和轴的窜动不应超过规定。
8.3.2) 齿轮副,链条与链轮啮合应平稳,无不正常的噪声和磨损。
8.3.3) 传动皮带不应打滑,平皮带跑偏量不应超过规定。
8.3.4) 一般滑动轴承温升不应超过35℃,最高温度不应超过70℃;滚动轴承温升不应超过40℃,最高温度不应超过80℃;导轨温升不应超过15℃,最高温度不应超过100℃。
8.3.5) 油箱油温最高不得超过60℃。
8.3.6) 润滑、液压、气(汽)动等各辅助系统的工作应正常,无渗漏现象。
8.3.7) 各种仪表应工作正常。
8.3.8) 有必要和有条件时,可进行噪音测量,并应符合规定。
(9) 空负荷试运转结束后,应立即作下列各项工作:
9.1) 切断电源和其他动力来源。
9.2) 进行必要的放气、排水或排污及必要的防锈涂油。
9.3) 对蓄能器和设备内有余压的部分进行卸压。
9.4) 按各类设备安装规范的规定,对设备几何精度进行必要的复查;各紧固部分进行复紧。
9.5) 设备空负荷(或负荷)试运转后,应对润滑剂的清洁度进行检查,清洗过滤器;需要时间可更换新油(剂)。
9.6) 拆除调试中临时的装置;装好试运转中临时拆卸的部件或附属装置。
9.7) 清理现场及整顿试运转的各项记录。
1.1.3.5 各类污水处理机械安装
(1) 一般的安装要求
1.1) 依照设计要求和图纸浇筑机械基础。
1.2) 基础的混凝土标号、基面位置高程应符合说明书和技术文件规定。
1.3) 依照混凝土规程、强度应符合龄期后的规定,即使赶工安装,其强度也不应低于设计强度75%。
1.4) 地脚螺丝依照原机的出厂说明书要求预埋,有关参数应符合规定要求。保证安装后机械的稳固性。
1.5) 安装好机械应严格符合外形尺寸的公称允许偏差,不允许超差。
1.6) 基础施工后要求平整坚实,并有隔离吸振的措施,防止运转中产生谐振现象。
1.7) 污水或清水池预埋件水平度及平整度要符合设计规范。
1.8) 地脚螺丝位置应准确,螺纹、长度、垫圈螺母都要合格,少量位置尺寸与标高可以调整,其调整方法如下:
地脚螺丝对少量尺寸(包括标高)的调整可以使用标高处理法与位置偏差处理法进行调整。
(2) 垫铁的应用与方法
为提高设备的稳定性,二次灌筑混凝土,可应用厚0.3~20mm垫铁,斜垫铁使用必须成双配用。平垫铁的尺寸与斜垫铁的尺寸如下:

斜垫铁的外形尺寸代号:L—长 W—宽 H—高 A—面宽 B—梯高
(3) 各种机械设备安装后试车运转要求
1) 启动运转要平稳,运转中无振动和异常声响。启动时注意依照有标注箭头方向旋转。
2) 各运转啮合与差动机构运转要依照规定同步运行,并且没有阻塞碰撞现象。
3) 在运转中保持动态所应有的间隙,无抖动晃摆现象。
4) 各传动机运行灵活(包括链条与钢丝绳等柔质机件不碰不卡、不缠、不跳槽),并保持紧张状态。
5) 在试运转之前或后,以手动或自动操作,全程动作各5次以上,动作准确无误,不卡、不抖不碰。
6) 各限位开关运转中动作及时,安全可靠。
7) 电机运转中温升在正常值内。
8) 在滚动轮与导向槽轨,各自啮合运转,无卡齿、发热现象。
9) 一般空车运转2h,带负荷运转4h,保证运转正常,不振颤,不抖动,无噪异声不卡塞,各传动灵活可靠。
10) 各部轴承注加规定润滑油,应不漏、不发热。升温小于60℃。
11) 运转中要测定转速、功率及其它电压电流等参数,并应符合设计规定,并填登记录表格。
(4) 主要机械设备安装施工方法
1) 手电两用铸铁镶铜方闸门
1.1) 手电两用铸铁镶铜方闸门的安装要求
该闸门采用墙式升杆启闭的型式,分为闸门、传动螺杆、轴导支架、电(手)动启闭装置等若干部件,在现场联接组装。
1.1.1) 检测设备外表如门框、门体、启闭装置、传动螺杆等是否变形,零部件是否齐全完好。
1.1.2) 复测土建工程的标高及预留孔的尺寸是否满足设计图纸要求,以及检查所有的埋件留孔要求是否符合安装条件。
1.1.3) 将门框紧贴于土建洞孔的井壁上(附壁安装形式),用基础螺栓将门框紧固,同时应保证门框底槽、二侧导轨的水平度与垂直度偏差均小于1/1000mm。
1.1.4) 将启闭装置的连接底板与基础平台的预埋钢铁焊接,并检查启闭中心与门体螺杆中心在同一铅垂线上,垂直度偏差的控制应小于1/1000mm。
1.1.5) 调整楔紧装置,使门体在关闭状态下密封面紧密贴合,300mm长度范围内的最大间隙不大于0.1mm。
1.1.6) 手动操作启闭装置,门体上下灵活,无卡阻现象。
1.2) 手电两用铸铁镶铜方闸门的安装
1.2.1) 门槽检查:对门槽尺寸和表面情况进行检查,除去杂物,必要时对高点进行的磨,测量门槽的实际中心线。
1.2.2) 框座安装:检查方形闸门的制作情况,对密封面进行重点检查,应干净、无高点。
1.2.3) 门框座的定位是先将门框吊入闸门井,复测启闭器中心预留孔位置,放出闸门起吊中心线和安装高度;测量门枢座的横向水平度和纵向垂直度,并调整至符合要求;门枢座的固定,采用上面吊、下面垫。四周撑的方式进行固定,由于该闸门座重量较大,固定一定要牢固、可靠。
1.2.4) 导轨闸门体安装:等门框座二次谨浆达到规定强度后可进行门框和闸门体安装。门枢和门体如为组合体件,即可进行整体吊装,如是分开部件,则应先组装后再进行安装。用螺栓将门框和门体固定在门框座上,连接导轨,确定基础螺栓的位置,土建配合灌浆固定。
1.2.5) 启闭器和丝杆连接杆的安装:复测门体起吊中心定出启闭器定位中心,将丝杆旋入启闭器的铜螺母内,对准中心孔进行吊装;在门体上安装好吊连接杆,并套入中间轴导架,将丝杆和连接杆用套筒联轴器连接起来;中间轴导架的安装时,孔隙间隙应均匀,位置正确,基础螺栓连接牢固。
1.2.6) 配合电器安装,作好上下行程限位的调整,并在外螺丝杆导轨等部件上涂上润滑脂,作好保养。
1.3) 手电两用铸铁镶铜方闸门的检验和调试
1.3.1) 安装完毕后,对启闭机内的润滑油脂进行检查和加注。
1.3.2) 在无水条件下,至少作门板启闭3次试验,操作灵活手感轻便,螺杆的旋合平稳,门板无卡位、突跳现象,限位正确,启闭机的过载保护机构应动作灵敏可靠。
1.3.3) 进行现场泄漏试验,在最大设计水位下,闸门的泄漏量应不大于1.25l/min·m(密封长度)。
2) 手电两用铸铁镶铜圆闸门
手电两用铸铁镶铜圆闸门采用墙式升杆启闭的型式,分为闸门、传动螺杆、轴导支架、电(手)动启闭装置等若干部件,在现场联接组装。安装方式具体以厂家出具的安装说明书为准,圆闸门的安装技术要求及检验和调试与前述手电两用铸铁镶铜圆闸门相类似。
3) 回转式格栅除污机
3.1) 回转式格栅除污机的安装要求
3.1.1) 设备安装平面位置偏差应小于±20mm,标高偏差不大于±20mm,两侧符合设计要求;
3.1.2) 设备安装定位应准确,其安装角(指格栅与水平线的夹角)偏差不大于±0.5°,各机架安装应联接牢固。
3.1.3) 格栅栅条对称中心应与导轨的对称中心重合,栅条的纵向面与导轨侧面相平行,其平行度允差不大于0.5/1000。
3.1.4) 两侧针齿条跨距(中心线)与导向轨、导轨导向跨距(中心线)的偏差不大于2mm。
3.1.5) 耙齿与栅条的啮合应无卡阻,且侧隙不大于0.5mm,啮合深度不小于35mm。
3.2) 回转式格栅除污机的安装
3.2.1) 骨架安装:将下段骨架吊至水室底面,用支撑物使其稳固,再吊上段骨架,按下图所示与下段骨架联接,其联接顺序为:先联接锥形构件,再集中联接两段的导轨架和纵向槽钢翼板。
3.2.2) 支承座安装:将限位板装于骨架的纵向槽钢上,以确保支承座的初始位置,从支承座上拆下导向板,将带滚柱的托架置于两限位板中间,再将导向用螺钉紧固在托架上,最后将底座焊在预埋件的底板上。
3.2.3) 传动系统的安装:将链轮组件装于传动轴上,吊减速机置于机架上,移动减速机,使其对应的主动链轮处于同一平面内,当链条达到松紧适当后将减速机固紧。
3.2.4) 滚刷:用螺钉将滚刷联接盘与支架联接成一体,轴向移动滚刷,使小链轮与对应的链轮牌同一平面内后将滚刷固紧。
3.2.5) 主链条的安装:将托架上的滚轮置于导轨槽钢内,再将板刷与托架、链条脚板与托架用螺钉联成一体,根据用户的需要,板刷毛插入格栅的深度,可用调整螺钉调整。板刷与滚刷的尼龙丝交叉深度,可用支架上的调整螺杆高速。
3.2. 6)声光安全报警系统:由安全销、蜂鸣器和多功能电机保护器组成。安全销已装入链轮组件内,蜂鸣器和多功能电机保护器体积小重量轻,用户可根据需要,经信号采集线路联接到控制室内。
3.3) 格栅除污机的试运行
安装完毕后,按技术要求对各部位进行全面检查,减速机应按厂家说明书加注润滑油脂。准确无误后,接通电源。
在无水条件下,空载运行2小时,应传动平稳,栅片运动位置应准确、无卡位、突跳现象,过载装置动作灵敏可靠。
同时进行现场负载试验,在最大设计水位条件下,检查清污效果,栅片上的垃圾应无回落渠内现象。
格栅除污机的整机噪声应小于76dB(A)。
4) 无轴螺旋输送压榨机
4.1) 无轴螺旋输送压榨机的安装要求
螺旋输送压榨机分主机、排渣管、排水管等三个部件,在现场法兰联接,主机为整机安装,并对进料口与格栅机卸料口的密封护罩用螺栓进行联接组装。
各部件之间的配合关系和安装要求应按制造厂家的安装手册为准。
4.1.1) 螺旋输送压榨机的轴心线和设计中心线的位置偏差应不大于±5mm,螺旋体轴线的水平度偏差不大于1/1000。
4.1.2) 螺旋输送压榨机的进料斗应与相应设备的卸料口相对应,压榨后的物料应沿排渣管准确排落至垃圾小车内。
4.1.3) 进料斗、出料管、排水管等联接应整齐,法兰联接紧密无隙,不得渗漏。
4.2) 螺旋输送压榨机的试运行
4.2.1) 安装完毕后,按技术要求进行检验,保证其允差值符合规定的指标。
4.2.2) 对减速机加注润滑油脂。
4.2.3) 空载运行2小时,应传动平稳,无异常噪音,过载装置动作灵敏可靠。
4.2.4) 进行现场实物负载试验,物料的输送功能符合性能指示。
5) 离心污水泵
5.1) 离心污水泵的安装技术要求
5.1.1) 该污水泵的安装顺序应严格按照制造厂家的安装手册为准。
5.1.2) 污水泵在安装时,其安装位置和标高应符合设计要求,平面位置偏差不大于±10mm,标高偏差不大于±30mm。
5.1.3) 整体安装的污水泵,纵向安装水平偏差不应大于0.10/1000,横向安装水平偏差不应大于0.20/1000,并应在泵的进出口法兰面或其它水平面上进行测量,解体安装的泵纵向和横向安装水平偏差均不应大于0.05/1000,并应在水平中分面、轴的外露部分、底座的水平加工面上进行测量。
5.2) 污水泵的试运行
污水泵安装后,负责人按技术要求进行检验,确定符合设计要求。
污水泵带负荷运转1小时,检测其流量、扬程及效率是否符合设计要求,运转时污水泵是否平稳、无异常声音和振动,电机电流值是否正常。
6) 旋流沉砂池
6.1 旋流沉砂池安装要求
6.1.1) 浆叶式分离机由驱动装置、空心立轴、浆板等部件组成,安装时在现场组装。浆叶式分离机安装时,应保证其空心立轴垂直水面,其垂直度允许偏差不大于1/1000,固定于空心立轴上的数叶浆板安装倾角应一致,保证其浆叶呈静态平衡状态。
6.1.2) 输砂泵安装基础平台应平整,输砂管路中各连接口应无渗水现象,各管路中心标高应准确。
6.1.3) 水洗装置在安装时,其管路连结不得渗漏。
6.1.4) 在进行设备安装前,其安装位置和标高应符合设计要求,平面位置偏差不大于±10mm,标高偏差不大于±20mm。
6.1.5) 砂水分离机为螺旋输送式,应在现场整机安装,安装基础平台应平稳、与进砂管、溢水管的连结应无渗水现象。
6.2) 旋流沉砂池设备的试运行
6.2.1) 安装完后,按技术要求进行检验,保证整套装置符合规定的指标。
6.2.2) 按安装手册上的说明检查和加注润滑油脂。
6.2.3) 提供工厂除砂效率报告,以进水及上水渠横断面同时分上、中、下、左、中、右各取三点作水样干燥符合试验,以检测浆叶式分离机对砂粒沉降效果、水洗效果等应符合设计要求。
7) 潜水搅拌器
制造潜水搅拌器的全部材料应适用于污水的腐蚀环境,未经保护或非防腐性材料应按基本要求5.1.2条款规定进行处理。
7.1) 安装和检验
参考标准
CJ/T109-2000 潜水搅拌机
GB50231-98 机械设备安装工程施工及验收通用规范
SZ-06-99 排水工程机电设备安装质量检验评定标准
制造厂 搅拌机安装技术手册
7.2) 设备结构要素
上述搅拌机可沿垂直导轨升降和调节转角,助水推流。
搅拌机需按主机、安装导轨和起吊架等三个部件在现场联接组装,主机为整机安装。
安装顺序应按制造厂安装手册为准。
在安装前,制造厂为防止部件损坏而包装的防护粘贴,不得提前撕离。
7.3) 安装技术条件
设备安装前,投标商应对水池相关尺寸及安装标高进行检测,并应符合设计要求。
升降用导轨安装时应垂直于水面,其垂直度允差应不大于1/1000mm。
搅拌机沿池长方向斜置300安装角度偏差应不大于±100。
7.4) 现场检验和调试
安装后,应按技术要求进行检验,保证其允差值符合规定的指标。
应检查和加注润滑油脂。
潜水搅拌机在无水条件下,空载运行2小时,应传动平稳,无卡位和抖动现象。
进行现场负载试验,在设计工况条件下进行24小时的带负载运行,测定单位容积功率和检验池底流速。
8) 潜污泵
8.1) 潜污泵安装技术条件
8.1.1) 潜水轴流泵安装顺序应以制造厂家的安装手册为准。
8.1.2) 潜水轴流泵安装时,其安装位置和标高应符合设计要求,平面位置偏差不大于±10mm,标高偏差不大于±30mm。
8.1.3) 潜水泵底座应调整水平,其水平度不大于1/1000。
8.1.4) 潜水泵出水配管法兰应平直。
8.2) 潜污泵安装
潜水轴流泵是采用潜水电机与泵体直联的立式安装型式,由泵壳和叶轮组成,通过电动葫芦、提升吊链沿井筒下降,下降时能与联接座自动藕合。
8.2.1) 定支承块的位置:定进水管道及电机的支承块的位置,在每一侧的池壁上划一竖线记号,该竖线作为支承块安装对称准线。
8.2.2) 安装支承块:使支承块的中心线与安装基准线重合,按支承块的槽距在池壁中心钻两孔,插入胀锚螺丝钉把支承块固定,但不完全拧紧。
8.2.3) 安装底座:
a.先确定底座的正确位置:把底座把入池底,自支承块上挂下一根铅垂线,使其与支承块的中心线重合,根据铅垂线找正底座的中心线,并注意使支承块上的两圆锥体中心和底座上的两圆锥体中心在同一铅垂面上,划好底座地脚螺孔的位置。
b.打底座地脚螺孔:移开底座,根据划好的孔位和胀锚螺钉直径和大小钻孔,把孔中的灰屑彻底清除,放上底座,插入螺栓并拧紧。
c.安装导管:用联轴器将导管与短导管联接起来,并用内角紧定螺钉使其紧固,同样务必使导管垂直。
d.固定支承块、底座和导管所组成的系统:再次检查支承块,导管与支座,确使它们垂直,并使支承块中心线与底座的中心线在同一平面内,最后紧固系统中所有螺钉,使整个系统在垂直与水平方向都无活动余地。此时注意牢固地宁紧固定螺栓,足够的地脚基础厚度,高质量的砼,是泵无震动工作的不可缺少的条件。
8.2.4) 安装排水管路:根据水泵生产厂家提供的详细安装图,用螺栓及密封垫圈等依次联接好排水管、减震橡胶接管、弯管、出墙管、旋启式止回阀、楔式闸阀等,并用砼将出墙管与墙体填实。
8.2.5) 安装支架:将型面垫圈嵌入支架内,注意型面垫圈安装的方向性,其橡胶法兰边一样厚的一面是电泵法兰面接口的,而橡胶法兰有厚薄的一边是与底座接口的,并要使最厚处在安装孔的最上端。用螺栓、垫圈将支架固定在泵出口的法兰上,为保证其密封性,应将螺栓交替对角拧紧。
8.2.6) 吊入水泵:将链条装在电泵的吊环孔内,将水泵吊起使其沿导管滑至污水池内,最后卡在底座两侧面的筋板上,这样由于泵本身的重量,可以使泵自动地获得正确的工作位置,保证泵出口与底座的密封性能。
8.3) 潜污泵检验和调试
8.3.1) 设备安装完毕后,应按技术指标进行检验,符合设计要求。
8.3.2) 带负荷运转1小时(根据进水池的水位确定运行时间),检测其流量、扬程及效率是否符合设计要求。
8.3.3) 运转时应平稳,无异常声音和振动,电机电流值正常,潜水电机外壳防护等级IP68。
9) 管式微孔曝气器
9.1) 管式微孔曝气器的安装要求
9.1.1) 微孔管式曝气器、水下空气分配管及支撑管等均为现场组装。
9.1.2) 各部件之间的配合关系和安装顺序按制造厂安装手册为准。
9.1.3) 管式微孔曝气器安装前,其安装位置和标高应符合设计要求。
9.1.4) 水下空气分配管及管配件与垂直于池内壁立管联结安装时,各结点应紧密、无泄露。各水下支管排列应整齐。
9.1.5) 水下空气分配管与水下支管的联结分布应均匀,其水平误差不得超过5mm。
9.1.6) 管路安装时,管道内应清理,吹扫干净,无杂物堵塞。
9.1.7) 布气支管水平度落差不大于±10mm。
9.1.8) 曝气管的支架具有足够的锚固力。
9.2) 管式微孔曝气器的检验和调试
9.2.1) 安装完毕后,应参照CJ/T3015.2标准进行检验,保证其允差值符合规定的指标。
9.2.2) 微孔曝气器外观质量应无缺损和变形。
9.2.3) 在无水状况下,配管的相邻支座跨中作100kg集中荷载试验,配管应无弯曲变形。
9.2.4) 在清水状态下,按标准风量检测气泡分布情况和充氧量等技术性能测定,进行布气均匀性和机械、理化性能的测定。
9.2.5) 耐久性试验的应按0.1%供货数量抽检,试验以浸没水深300mm,操作周期100万次,每次持续时间10s,并提交样品试验后的阻力损失、静态水的氧转移率、尺寸公差及外形特征检验合格的报告。
9.2.6) 与鼓风机配合进行空载试运行及负载连续运行试验。
10) 鼓风机
10.1) 鼓风机的清洗和检查要求
10.1.1) 各机件和附属设备应清洗洁净,当有锈蚀时应清除,并应防止安装期间再生产锈蚀。
10.1.2) 机壳垂直中分面不应拆卸清洗,带调整垫结构的组件拆洗时应做好记录,并不得互换组别或位置。
10.1.3) 润滑系统、密封系统中的油泵、过滤器、油冷却器和安全阀等应拆卸清洗、油冷却器应作严密性试验。
10.1.4) 气体冷却器应拆卸清洗洁净后,再作严密性试验,气体管路的阀门和调节装置应清洗洁净,当无特殊要求,可不作严密性试验。
10.2) 鼓风机的安装要求
10.2.1) 应按机组体积的大小选择成对斜垫铁,对于转速超过3000r/min的机组,各块垫铁之间和垫铁与底座之间的接触面面积均不应小于接合面的70%,局部间隙不应大于005mm。
14.2.2) 座浆法平垫铁的安装水平偏差不应大于±10mm,标高偏差不大于±20mm。
10.2.3) 检查轴承座与底座之间未拧紧螺栓时的间隙,其间隙不应大于0.5mm。
10.2.4) 底座上的导向键与机体间的配合间隙应均匀,并应符合设备技术文件的规定。
10.3) 鼓风机的安装
各部件之及辅助设备之间的联接和安装顺序应按制造厂手册产准。
鼓风机与驱动电机、联轴器、底座连为整体进行整机安装,且配以进风阀、消声器、空气过滤器及管道等辅助设备进行安装联接。
10.3.1) 地脚螺栓孔,采用地次灌浆。
10.3.2) 机组安装的基础面应浇成凸面并要平整,根据进排气口之方向和维修之需要,基础面四周应留有适当宽裕的地方。
10.3.3) 确定机体内无杂物,然后封闭进气孔,彻底清除管道内的铁锈和焊渣等杂物,再与风机接通,要求各法兰接合面不得漏气。
10.3.4) 消声器应设置于靠近鼓风机进排气口处(压力仪表前)。
10.3.5) 在靠近鼓风机进、排气口的直管段上,应装置压力仪表,当风机超负荷运行时,仪表应能折射出或发出报警信号。
10.3.6) 冷却水的进水口前需配制调工阀,但不宜将调节阀装在出水口端。
10.4) 鼓风机启动前的准备工作
10.4.1) 检查各紧固件和定位销的安装质量。
10.4.2) 检查进、排气管道和阀门等安装质量。
10.4.3) 检查风机的装配间隙是否符合要求。
10.4.4) 检查风机与电机的找正,找中质量。
10.4.5) 检查机组的底座是否全部垫实,地脚螺栓是否紧固。
10.4.6) 向油箱注入润滑油脂。
10.4.7) 向冷却部通水。
10.4.8) 打开所有鼓风机进、排气阀门,盘动转子,注意倾听各部位有无不正常的杂声。
10.4.9) 检查电动机转向是否符合指向要求,把负荷之控制器调整到允许额定值。
10.5) 鼓风机试运转
10.5.1) 在进、排气口阀门全开的条件下投入运转。
10.5.2) 试运转时应观察润滑油的气溅情况是否正常,如过多或过少应调整油量。
10.5.3) 风机运转时没有不正常的气味或冒烟现象,没有碰撞和磨擦声,轴承部位的径向振幅不大于0.08mm。
10.5.4) 空负荷运转30分钟左右,如情况正常,即可投入带负荷运转,如发现运转不正常,应立即进行检查排除后仍需作空负荷运转。
10.5.5) 带负荷运转时,要逐步缓慢地调节,带上负荷,直到额定负荷,不允许一次就调节到额定负荷。
10.5.6) 风机正常工作中,严禁完全关闭进、排气口阀门,也不准超负荷运行。
11) 带式污泥浓缩脱水机
11.1) 带式污泥浓缩脱水机的安装要求
11.1.1) 因带式压滤机体积大,因此需运至工地现场进行拆箱安装,安装前检查设备各部件。
11.1.2) 清除设备上的脏物,设备应整机安装,就位后应认真进行水平校下,确保设备稳定。
11.1.3) 检查各辊间的平行度,检查电路、油路、供水系统、供药系统、滤带清洗系统是否正常,各润滑点供油是否正常。
11.1.4) 装滤带前应检查各辊表面及与滤带有接触的部位,不允许有毛刺尖边等,同时检查滤饼排除系统和排水系统应正常。
11.1.5) 无接头滤带缝合时纤维之间受力应一致,缝合处应牢固。
11.1.6) 设备安装完毕后要全面检查各紧固件是否拧紧,滤带之间不应有金属等杂物存在。
11.2) 带式污泥浓缩脱水机的安装
11.2.1) 整体吊装就位,大型分本式机型可分体吊装到位后对接,牢固连体后整体操平,紧固底脚螺栓。其操平后横向水平误差不应大于2mm,给向水平误差不受限制。
11.2.2) 絮凝反应器出泥口与带式压滤机入泥口法兰要良好对接,不可强行紧固联接螺栓,以防止带式压滤机封泥系统变形,压卡过滤网带。
11.2.3) 皮带输送机安装时应保证带式压滤机刮泥板卸料置于皮带中部范围,不可偏向一侧。
11.2.4) 空压机应置于远离操作区域的地方,以尽可能地降低机房主噪音。
11.2.5) 电气控制柜的输入电缆与输出至各电机的负荷电缆,部分设备与配电柜之间控制信号线的线径选择,敷设方式应按工程设计图纸给定数据及方案执行。
11.2.6) 各设备的安装尺寸参见安装基础图。
11.2.7) 滤带安装:参考工作原理图,配合主机实物,先装下滤带,在絮凝反应器侧(主机后部导向辊处)以滤带上箭头指示方向为始端沿污泥前进方向送入,牵引至尾端到达初始位置时,两端接头对齐穿入联接单丝,并在滤带两侧将联接单丝折返回滤带接口中30mm。上滤带在上刮泥辊处以箭头指示方向为始端沿运动方向送入,人工牵引至辊处时,间断开机以动力送带,至尾端达到初始位置联接两接口同前。
11.2.8) 更换滤带时,只要将旧带接口拆开,新、旧滤带首尾用联接单丝相联,间断开机以动力送带即可。
11.2.9) 安装滤带前,应彻底清理机器,以保证无任何物质损坏滤带,同时上张紧气缸应全部伸出,下张紧气缸全部缩入,以便联接穿丝。
112.10) 气控系统压力调整:带式压滤机设计滤带张力为4KN/m,气源及纠偏缸工作压力为.7Mpa,上、下张紧气缸的工作压力在0.45-0.62Mpa范围内,其具体数据根据不同机型,不同介质要求进行调整。且应保证带式压滤机工作时两条滤带均不出现局部松驰和打褶现象。
a. 调整空压机压力继电器整定螺钉,使其在稍大于0.7Mpa时自动关机。
b. 上提气控箱内气源三联件空气减压阀调节幅,顺时针转动增大压力,逆时针减小压力,使气源压力表指示为0.7Mpa,调定后下压调节幅使之复位。
c. 分别调整上、下张紧气缸工作压力,方法同前。
d.气源三联体油雾器内加注纯净10#机械油或仪表油,调节注油孔上面螺钉,旋松加大油雾量,旋紧为减少,一般调节在90-120滴/分钟为宜,且其油位应经常保持在油位线以上。
11.2.11) 纠编量调整:纠偏行程开关安装位置前后移动和旋转头角度定位协调配合使滤带横向偏移量不大于20mm为准。
11.2.12) 滤带运行速度调整:顺时针旋动无级变速器手柄提高带速,反之降低,其速度调整应综合考虑处理量与滤饼含水率指标,亦应最大限度提高处理量又能保证一定滤饼厚度为佳。
11.2.13) 卸料装置调节,调节刮泥板固定螺钉,使刮泥板刃口与卸料辊切线方向紧密吻合,刮板与卸料辊接触力的调节,上刮泥装置调整配重块数量,下刮泥装置调节弹簧拉紧力。
11.3) 带式污泥浓缩脱水机的试运行
11.3.1) 作好各部位的润滑工作。
11.3.2) 全面检查各设备的联接,配合运动部位及润滑是否正常,各动力信号线联接是否正确牢固,接地是否完好。
11.3.3) 配电柜内空气开关送电,检查面板上三块电压表指示正常。
11.3.4) 启动系统电源。
11.3.5) 启动空压机,检查其工作正常。
11.3.6) 检查张紧、纠偏气缸,纠偏、急停行程开关动作灵活可靠。
11.3.7) 启动带式压滤机空运转2小时。
11.3.8) 其它附助设备及各泵类均做正、反转试验,各泵类空运转时间不得超过2分钟。
12) 加药泵
12.1) 试泵前的准备工作:检查各连接部位是否紧固,在加药箱内注入清水,作为补充水用,以保证连续运行,关闭放空阀门,打开进水管阀门。
12.2) 启动:打开电源,使泵进行工作,把调量表打开,使调量表指针转至某一刻度,旋转调量表时,应注意不得过快或过猛,应按从小到大流量调节,若需从大流量向小流量调节时,应把调量表旋过数格,再向大流量方向旋至刻度,调节完毕后,用锁紧螺母锁紧,以防松动。时刻注意运行情况,并作记录。
12.3) 停泵:关闭进口阀门,切断电源,关闭出口阀门。
13) 阀门
13.1) 阀门的安装技术要求
13.1.1) 安装前,对阀门进行检查,核对该阀门标志与使用情况(水流方向)是否相符。
13.1.2) 上下游侧管道管口露出混凝土墙面的长度,一般不小于300mm。
13.1.3) 阀门安装时应管道外检查其开度指示与阀板实际情况是否一致,其开、关是否到位,可用电动或手动观察。
13.1.4) 安装基准线与建筑轴线中心偏差,一般不大于±10mm,阀的水平度和垂直度偏差应小于0.5/1000。
13.1.5) 底座与基础板组合缝间隙用0.05mm塞尺检查不通能过,允许有局部间隙,用不大于0.10mm塞尺检查,深度不应超过组合面宽度约1/3,总长不应超过周长的20%。
13.1.6) 阀门在安装时,应至少使一端管道连接的法兰可以自由伸缩,不许先将两端法兰固定,再将阀门靠强行收紧螺栓来消除阀门同管道的间隙,法兰连接螺栓连接牢固,螺纹露出长度为2-4螺距。
14) 二氧化氯发生器
完整的二氧化氯发生器,每套应成套地配备安全、有效及可靠运行所需的附件。
14.1) 设计与性能
14.1.1) 概述
二氧化氯发生器应是自动控制运行的真空投加系统,操作应安全。用于生成二氧化氯的反应物应是氯酸钠和盐酸。
水流经水射器生成发生器中的真空,使二氧化氯溶液与水射器投加水混合,加入工艺过程,流过发生器的反应物被真空抽出,由可变面积流量计测量流量。
系统在自动控制运行工况下,通过余氯检测仪控制原料驱动泵过,调节二氧化氯的发生量。
发生器应配置各种安全装置,确保运行安全。当真空下降到最小值以下时,由真空操作开关关闭反应物进料管。
流量计中应安装光学检测器,以便检测反应物是否存在;如果三种反应物中有一或两种不足,将会报警。
水射器形成的真空由前面板上的真空表指示,前面板应同时包括可变面积流量计,以及自动/手动、开/停控制开关。
二氧化氯发生器应提供4-20mA信号输出,用于指示手动/自动运行状态及反应物控制三通阀的开度。
系统的所有装置应安装在一个玻璃钢柜内,免维护。
14.1.2) 设备构造及功能描述
设备组成构件主要包括:水射器、观察窗、化学反应室、压差调节器、反应物自动控制投加系统、氯酸流量计、盐酸流量计、压力放泄阀、水流量计、真空表、真空开关、真空放泄阀、化学品添加挤截止阀等;
――投加量控制器:
自动控制发生器:可以通过系统当前/位置转换器,接收一或两个来自流量计以及二氧化氯控制器的4-20mA信号;在发生器手动控制工作模式下,可以允许手动调节二氧化氯的生成。
――真空控制和安全装置
真空放泄阀:真空由一个放泄排放阀来保持一个大约40Kpa的真空度,防止发生器真空度过低或过高。
反应物气动截止阀:如果真空低于最小值26Kpa时,系统提供的一个三通阀门应能自动切断反应物的进料。
真空开关:为一光学装置,在真空低于最低值时,产生一个干燥触点,触点值:SPDT 10A,220V-50Hz。
反应物匮乏报警:如果三种反应物中的一种或两种匮乏,系统应报警,并输出两个报警信号。
―― 连接件及反应物过滤器:
供货商必须提供全套发生器和反应物池的连接管和连接接头。需保证连接件为抗腐蚀材质制造。供货商还需提供反应物管上安装的活性炭过滤器,用于过滤反应物中的固体悬浮物杂质。
――水射器:
水的流量和压力应取决于二氧化氯的最大投加量、水射器的背压和排放管的压力降;水射器的喷嘴和喉管的尺寸应根据工艺条件计算,同时水射器的主体和附件应是通用的。水射器应装配在发生器的内部。水射器允许的最大压力应≥20kg/cm2。
――柜体:玻璃钢材质;
――电源:电源:110/220V AC,50Hz;
――输出信号:——三通物料投加控制阀阀位4-20mA信号;
——指示发生器手动/自动操作的SPDT触点;
——真空度不足的报警信号输出;
——发生量不足报警信号输出;
――工艺自动控制系统:
二氧化氯发生器应安装测量与控制仪表系统以实现对二氧化氯自动投加的控制。该系统应能实现以下各工艺过程的自动化:
恒定流量和恒定溶解氧浓度的工艺;
变化流量和恒定溶氧浓度的工艺;
恒定流量和变化溶氧浓度的工艺;
变化流量和变化溶氧浓度的工艺;
为实现以上各工艺的自动化,应为系统配置以下组件(但不限于):a.电磁流量计;b.二氧化氯分析仪;c.控制器;d.记录仪;e.漏氯检测仪;
安全控制报警器:应具备以下功能:
——检测真空度不足报警信号;
——检测反应物(三种)不足报警信号;
——检测空气中二氧化氯含量过高报警信号;
当报警器检测到以上三种报警信号的任一种时,都应切断电源,应能切断电源,同时切断水射器的供水,并应驱动报警信号灯;
底板:供货商应配套提供安装二氧化氯发生器和反应物供料泵的底板,底板上应配套安装开、停按纽和保护装置;
c. 备件
承包商须将运行三年所需的备件列出清单。
1.1.4 管道部分
管道的安装技术要求
(1) 焊接钢管分部安装
管道在使用前,按设计要求核对其规格、材质、型号,卷管煤油渗漏合格,成品管应有出厂合格材质证明书。必要时,对管子外观质量、材质进行抽查,均应达到现行标准。对不合格材料作报废处理。
1.1) 管道配件
检查弯头、三通、异径管、法兰、盲板等,使用前按设计要求核对其规格、材质、型号,应具有出厂合格证书及材质证明书。
1.2) 管路支架
管路支架制作符合设计要求,不得有漏焊、裂纹咬肉等缺陷。支架安装时,首先根据设计或相关规范、标准图要求确定其位置,再根据管道设计标高、坡度及预埋的支架、管口、套管的标高,拉线划出同一直线上各支架的位置。支架安装牢固、平整,保证管子与支架接触良好,不得有间隙。
1.3) 管道安装
金属管道按规范GB50268—97要求进行安装,并满足下述要求:
a. 工艺区内管道安装在工艺设备及支架安装完成之后进行。布管从工艺设备开始,按坡度向一个方向顺序进行,以保证管线坡度的正确。法兰、焊缝及其它连接件的设置便于检修,并不紧贴墙壁、楼板或支架。
b. 沟渠内多层管道安装时,铺设底层管道,在底层管道安装完毕、试验合格、防腐回填之后,方可进行第二层管道的铺设。
c. 管沟内将用三角架进行对口。安装组对管口时,不用强力对口,不用加垫等方法来调整接口间隙、错口。组对质量要求同钢管卷制。
d. 埋地管道如有间断,将可靠封闭管口,以免积水、积泥。埋地管道在回填之前作好隐蔽记录,画出管线埋地位置图,并经项目监理签证。
e. 管道基础、基槽开挖、回填及管道穿越构(建)筑物按符合设计图要求进行。
f. 管道下沟前先检查管沟,管标高、直线长度及垫层是否符合设计及相关规范的要求。
g. 管道安装时,要防止存损,吊装用钢绳上加橡皮软管保护管道。严禁将管直接抛入管沟,下管时缓慢放入管沟。运管时,车上安垫枕木,并绑扎牢实。钢管防护层若破损,要作修复处理。
h. 管道安装的允许偏差
坐标及标高
室外架空敷设、地沟铺设允许偏差15mm;
室外埋地敷设允许偏差25mm;
室内架空敷设允许偏差10mm;
室内地沟敷设允许偏差15mm;
水平管弯曲:
D≤100,允许偏差1/1000(最大为20mm);
D>100,允许偏差1.5/1000(最大为20mm);
立管垂直度:
允许偏差2/1000(最大为15mm);
成排管段:
在同一平面上允许偏差5mm;
间距允许偏差+5mm;
交叉
管外壁或保温层间距允许偏差+10mm;
1.4) 钢管防腐
钢管防腐是钢管安装的重要组成部分,施工将严格按照设计要求和施工规范进行。
1.4.1) 施工工艺
a. 底层涂料同前。
b. 中间层涂料同前。
c. 面层涂料厚浆型环氧涂料。
施工气温>10℃,环境相对湿度<85%;
与中间层涂料施工间隔时间12—24h;
面漆层涂料施工间隔时间>24h;
养护时间>7d。
d. 面层涂料厚浆型PF—01。
施工气温>5℃,环境相对湿度<85%;
与中间层涂料施工间隔时间12—24h;
面漆层涂料施工间隔时间>24h、<48h;
养护时间>5d。
1.4.2) 管道焊接圈的涂料防腐
a. 管道焊接圈防护:
焊接过程由于高温会对涂层导致破坏而产生锈蚀;焊接圈锈蚀的表面处理受现场环境条件的限制,埋管工程的管道贴近地面而无法使表面达到涂装面的清洁标准;管道往往会遇到潮湿和雨淋的不良环境,这些因素均是管道外防腐使用功能的隐患。如不采用具有牺牲阳极特种功能的富锌涂料,埋管在潮湿环境中形成电化学腐蚀,锈蚀点成为阳极,产生孔蚀,很有可能在短时间内腐蚀穿孔。
选用具有牺牲阳极特种功能的环氧富锌底涂料,距管口100mm距离内涂刷,干膜厚度20μm,防锈期为6-9个月,并可带漆焊接,不影响焊接强度。此类底涂料高温浇伤面积小,距焊缝10~20mm,仅为一般涂的1/3~1/10,减少了二次除锈工作量。
b. 焊接圈二次除锈及涂料涂装:
焊接圈环氧富锌保养底层受焊接高温损伤,钢铁基层易锈蚀,现场除锈只能采用手工或动力工具,表面处理清洁度为St3级,再按照钢管内防腐、钢管外防腐的要求进行二次涂刷。
1.4.3) 涂装面清洁要求
涂装防腐工程质量影响因素为:钢铁表面除锈质量(影响程度占49.5%),涂层厚度(影响程度占19.1%),涂装工艺条件等其它因素(影响程度占26.5%)。由此可见,涂装前钢铁表面的除锈质量是确保漆膜防腐效果和防护寿命的关键因素,其次是涂装工艺环境条件(温度、相对湿度、涂装时间间隔等)。
除锈标准:内壁应达到《涂装前钢材表面处理规范》(SYJ4007-86)要求的St3级标准。
外壁应达到(GB8923-88)要求的St2.5级标准,表面粗糙度30—70μm。操作环境气温>0℃,环境相对湿度<85%
(2) 工艺管道的安装
污水管、污泥管与空气管均采用焊接钢管,明装部分采用焊接和法兰连接,埋地部分采用焊接,明装给水管道采用镀锌钢管丝接,其余采用焊接法兰连接,加药管道采用ABS管道粘接,排水检查井之间采用混凝土管水泥抹带接口。
2.1) 污水管的安装:
污水管采用焊接钢管,直接埋地的钢管均外刷三遍沥青防腐,外露钢管均刷二遍防锈漆,一遍蓝色面漆。
2.1.1) 焊接钢管安装前,应进行机械除锈,使管道呈金属光泽。
2.1.2) 焊接钢管,选用焊条E4303,烘干保温使用,施焊前按材质制定焊接工艺评定,在评定基础上施焊,工艺评定可选用厂制的焊接工艺标准和焊接工艺评定。
2.1.3) 表面处理完后进行防腐,防腐前,表面不得有水,也要求不得到雨天露天进行防腐施工等。
2.1.4) 埋地钢筋的坡度要符合设计要求。
2.1.5) 在安装前,管道支、托架应先预埋,在同一个安装平面中,支、托架应向同一个方向。
2.1.6) 管道在对接时,不许强力对口,应在自然状态下对口,因为强力对口会产生很大内应力,在管道运行中会产生大的冲击力,破坏管道。
2.1.7 管道壁厚小于3mm时,不用开切口,但对口应留焊缝位置,大于3mm时,应开切口,管子切口表面应该平整,不得有皱纹、毛刺、凸凹。溶渣、铁屑应清除干净。
2.1.8 管道焊接时应先点焊,然后将管道调到正确位置,然后焊接第一遍,焊完后将药渣去除,然后进行第二遍焊接,焊接时应使焊条成小月状摆动,力求焊缝光滑,并有一定厚度。
2.2) 给水管安装:
给水管采用镀锌钢管,采用砂轮切割机切割,采用套丝机套丝,实行标准下料,标准套丝,保证丝口连接紧密,安装好后有2-3丝外露,及时清理丝口角丝,并做好丝口防腐。
2.2.1) 丝扣连接,转角、变径及分支处使用弯头、大小头、三通、丝扣的制作(套丝)需按规定进行,不得一定套成。
2.2.2) 给水管的坡度要符合设计要求。
2.2.3) 给水管安装完毕后,进行试压试验,试验时请建设单位领导到现场监督,并及时做好验收记录。
3) 管道的连接
3.1 焊接钢管焊接
3.1.1 管道加工:管道的加工主要是管道的切割,焊接钢管的切割应采用机械方法切割,即采用管道切割机。当采用氧乙炔火焰切割时,必须保证尺寸准确和表面平整,切口表面应平整,无裂纹、重皮、毛刺、凹凸、缩口、熔渣、氧化物等,切口端面倾斜偏差不应大于管子外径的1%,且不得超过3mm。
3.1.2) 管道坡口加工
采用氧乙炔热加工的方法进行,在加工坡口之后,应除去坡口表面的氧化皮、熔渣及影响接头质量的表面层,并应将凹凸不平处打磨平整,管道坡口的清理采用手提砂轮机,砂纸、锉刀等工具进行。
3.1.3) 焊接的组对
应采用螺栓连接的专用组对器,管外径大于200的采用内口组对器,小于200的采用外口组对器。如需采用焊接组对卡具时,焊接工艺及焊接材料应与管道焊接的要求一致。焊接卡具有拆除宜采用氧乙炔焰切割,残留的焊疤应用手提砂轮打磨掉,经卡具缚对固定好后的两管口中心线应在同一直线上,其平直度偏差不得超过1mm/m,全长最大偏差不得超过10mm,禁止用强力级对的方法来减少错边量或不同心度偏差,也不得用加热法来缩小对口间隙。
3.1.4) 点固焊
点固焊的场地应不受天气的影响,其工艺及焊接材料应与该管道焊接要求一致,点固焊焊缝长度为10-15mm,高度为2-4mm,点焊间距一般为50-300mm,每个焊口的点焊点不得少于三处。
3.1.5) 焊接工艺
焊接时应采取措施,不得受天气影响,焊接时所采取的措施必须符合要求,不得操作母材,焊接前应先作检查,应采取合理的施焊方法及顺序。
管道焊接过程中,应防止管内穿堂风,每条焊缝应一次性连续完成焊接,若因故被迫中断,应采取保护措施,再次焊接前,应确认无裂纹后,方可按原工艺要求继续施焊。管道冷拉焊口组对时所使用的工具,应等整个焊口焊接及热处理完毕后方可拆除。对不合格的焊缝,应进行质量分析,定措施返修。
3.2) 镀锌钢管丝接
3.2.1) 断管:采用砂轮机或套丝机上的割刀进行切割,操作方法应正确,以防用力过猛管子变形,之后要将管口断面的管膜、毛刺清除干净。
3.2.2) 套丝:应分几次套制成型,丝扣长度适当,锥度合适,管螺纹应达到以下要求,螺纹表面应光洁,无裂缝,螺纹断缺不得纵向连贯,不得有偏丝、细丝、乱丝等缺陷。
3.2.3) 配装管件:铅油抹层和麻丝缠裹应均匀,管件拧紧后丝扣外露2-3扣,去掉麻头,擦净铅油。
3.3) 混凝土管水泥抹带接口
水泥砂浆的配比是:325#水泥:细砂=1:2.5,水灰比为0.6,在对口前先将承插口内外污垢擦净,留有对口间隙,先塞入油麻2-3圈并均匀捣实,再用水泥砂浆填实抹光,在承口外抹一圈45度倾角的保护口,然后用湿土或湿草帘覆盖养护。
3.4) ABS管道粘接
3.4.1) 断管:采用专用断管工具,断口应平整、并垂直于管轴线。
粘接:粘接时,环境温度应在材料的允许温度范围内,先用干布擦净承口表面,涂抹胶粘剂时,先涂承口、再涂插口,涂抹应均匀、适量,涂抹粘接剂后,应在20秒内完成操作,插入时要对准轴线,可稍作转动,但不得在插入底部后旋转,粘接完成,应立即将接口处的胶粘剂擦拭干净。
3.4.2) 养护:刚粘接好的接头,应避免受力,需静置固化一段时间,牢固后再安装固定。
4) 管道的安装
4.1) 空气管道干管按4‰的坡度向所接构筑物渐升,污水及加药管道采用架空敷设,干管按4‰的坡度向所接构筑物渐降。其他管道均埋地敷设。
4.2) 与管道有关的土建工程及构筑物已检验合格,满足要求。
4.3) 法兰连接的管道,法兰应与管道同心,并应保证螺栓自由穿入,法兰螺栓孔应跨中安装,法兰间应保持平行,不得用强紧螺栓的方法消除歪斜。
4.4)管道安装工作有间断时,应及时封闭敞开的管口。
4.5) 埋地管道在安装前做好防腐(焊接部分应留出),之后埋管,找好坡度校订后进行管道试验,等合格之后进行焊缝部位的防腐,隐蔽验收,管沟回填。
4.6)连接机器设备的管道,其固定焊口应远离设备,管道与机器连接前,应在自由状态下检验法兰的平行度和同轴度其允许偏差应符合要求。管道系统与机器连接时,应在联轴节上架设百分表监视机器的位移。
4.7)管道安装合格后,不得承受设计以外的附加荷载。
4.8) 管道经试压、吹扫合格后,应对该管道与机器的接口进行复位检验,其偏差值应符合规定。
4.9) 为保证管道的热胀冷缩,在焊接管道的安装中,一定距离之后的管道应采用法兰连接。
4.10) 混凝土排水管道的管基必须坚实,按规定的坡度找坡,在回填土时以检查井分段进行灌水试验,灌水面要高一地坪,以不渗不漏、灌水面无下降为合格。
5) 管道的防腐
明装镀锌管道安装后刷银粉两道,明装焊接钢管安装后除锈再刷底漆,面漆各两道,埋地焊接钢管安装后先除锈,再作普通防腐层,即冷底子油、沥青、牛皮纸。
管道的防腐刷漆在施工前必须先验证材料的质量合格否,严禁不合格品用于施工,之后按规程进行操作。
1.1.5 电气设备部分安装施工方法
(1) 总则
①、所有设备的安装应满足有关设备制造规范,安装验收规范及产品的安装要求,也应符合电气设备详细安装图纸的要求。因提供的产品与设计图纸不符或其它原因需修改设计图纸的工作应在安装工作开始前完成,该工作作为本安装工程的一部分。
低压开关柜,变压器及各类配电箱控制箱等在搬运和安装时应采用防震,防潮,防止框架变形和漆面受损等措施,必要时将易损元件拆下。当产品有特殊要求时,应根据产品的特殊要求实施。
②、承包商应在设备进场后取得完整的开箱资料,包括设备的合格证书,安装手册,操作手册,维护保养手册等文件,并应从供货商处获得设备安装所必需的设备安装指导手册和设备安装参数等交接资料。
③、承包商应在设备安装前取得完整的设备施工安装图纸,并应对图纸提出的各种要求作详细的了解和全面的复核与计算。
④、承包商在设备安装过程中严格按合同执行并建立工程联系单事项,在设备安装过程中对设备安装的修改和调整应以书面形式向业主和监理工程师提交报告,并应在得到肯定的书面答复后方可执行。
⑤、承包商应在设备安装竣工后向业主提交下列文件:
所有电气设备的合格证书,安装手册,操作手册,维护保养手册等文件
电气设备的通电试验报告,包括耐压试验和绝缘试验报告
完整的工程联系单
完整的电气设备安装竣工图
电气设备的试运行报告
其他必需的附加文件
供电部门的验收报告
上述文件应装订成册
(2)低压开关柜,控制信号屏及配电箱的安装
低压开关柜,配电箱到达现场后,承包商应在规定期限内作验收和检查,并应符合下列要求:
1)包装及密封良好
2)开箱检查型号及规格符合设计要求,设备无损伤,附件备件齐全
3)产品的技术文件齐全
4)外观检查应合格
承包商在进行低压开关柜及配电屏(箱)的安装前应对土建施工提供的设备安装条件包括沟槽尺寸及预埋件的位置等进行检查和验收,如果土建条件未能符合设备安装条件时,承包商有责任协助土建单位作必要的修正。
所有开关柜和配电箱在安装前应作全面的特性测试。
所有设备安装用的紧固件,除地脚螺栓外,应用镀锌制品,开关柜和配电箱内母线的涂漆颜色应符合规范规定。
开关柜和配电箱的基础型钢安装允许偏差应符合下列要求:
a. 不直度偏差每米不大于1毫米,全长不大于5毫米。
b. 水平度偏差每米不大于1毫米,全长不大于5毫米
基础型钢应可靠接地,柜箱本体及内部设备与各构件连接应牢固,柜箱本体与基础型钢应用螺栓连接,基础型钢应除锈油漆。
开关柜与配电箱单独或成列安装时,其安装允许偏差应符合下列要求:
a. 相邻两柜或箱顶部水平度偏差不大于2毫米
b. 全部柜或箱顶部水平度偏差不大于5毫米
c. 相邻两柜或箱面不平度偏差不大于1毫米
d. 全部柜或箱面不平度偏差不大于5毫米
e. 柜与箱间接缝偏差不大于2毫米
f. 柜与箱垂直度偏差每米不大于1.5毫米
低压抽屉式开关柜的安装应符合下列要求:
a. 抽屉推拉应灵活轻便,无卡阻及碰撞现象,相同型号的抽屉应能互换
b. 抽屉的机械连锁或电气连锁装置应动作准确可靠,断路器分闸后,隔离触头才能分开
c. 动触头和静触头的中心线应一致,触头接触紧密
d. 抽屉与柜体间的二次回路连接插件应接触良好
e. 抽屉与柜体间的接触及柜体,框架的接地应良好
凡需悬挂安装的配电箱,应用型钢制作固定支架,将其固定在墙上或栏杆上,安装高度详见图纸说明,安装支架应作必要的除锈及防腐处理。
1.1.6 仪表安装施工方法
(1) 技术标准规范
①、施工技术规范、标准
《电气安装工程盘柜及二次回路结线工程施工及验收规》……GB50171-92
《建设工程施工现场供用电安全规范》……… …………GB50194-94
②、质量检验评定标准
《自动化仪表安装工程质量评定标准》 ……………………… GBJl31-90
《电气装置安装工程电气设备交按试验标准》…… ………GB50150-91
③、施工安全技术标准
《施工现场临时用电安全技术规程》…………………………JGJ46一88
《建筑工程施工现场安全用电规范》………………………GB50194一93
《建筑施工安全检查评分标准》………………………………JGJ59一88
说明:以上规范如果有更新版则按照最新版执行。
(2) 现场施工程序
①、根据本工程项目特点和进度要求配备自动化仪表施工班组,并进行入场前的学习和动员工作。根据施工现场条件,合理安排布置临时用电设施和其它设备工程所需各种技术资料及安全技术资料等,做好一切开工前的准备工作。
②、熟悉施工图纸。策划施工班组熟悉图纸,参加图纸会审,了解设计意图,并根掘土建施工进度下达安装工艺卡,解决班组在施工中的问题,使班组领会设计意图,对工程的顺利进行打下基础。
③、预留、预埋。本工程预埋量大且需要配合主体施工进行交叉作业。预留预埋工作质量的好坏直接影响工程的创优计划,为此需制定施工总进度计划、月进度计划及周作业计划,按月填写安装工艺卡下达班组,对班组进行月作业计划、技术及安全等要求的交底,便班组作到有的放矢,有序施工。在各项预笋施工结束后,进行工程自检、抽检、专检工作,严把质量关,经检验合格后填写隐蔽工程资料及时通知业主现场代表及监理做隐蔽工程验收。
④、电缆敷设。在地上安装工程进入尾声,根据施工图在现场测定确定每条电缆的走向及长度,制定出电缆敷设的施工计划,策划人员进行电缆安装,施工完毕应测量其绝缘电阻,通知业主代表及监理进行隐蔽工程验收,并办理隐蔽工程资料后盖板隐蔽,作好各层的防火隔离措施等。
⑤、系统调试。电缆施工结束后及时进行各设备电机的接线工作,在正式电未送达前利用临时用电来调试,正式电送达后进行系统调试工作,填写调试记录,做好内部验收的准备工作后申请内部验收。
⑥、传感器仪表的供电均采用22OVAC单相交流或24VDC供电。
⑦、控制系统及电磁流量计接地电阻要小于40Ω;接地极要与电气设备地分开。
⑧、信号及供电回路电缆应穿Φ50的钢管地埋,模拟信号电缆的屏蔽层单独接地,信号电缆与交流供电电缆分开配置。
⑨、竣工验收。内验合格后,报请质监站、监理公司及业主共同验收,验收 质量达标后办理竣工资料及交工手续。
(3) 施工方法
①、管线工程
埋设电管,不得歪斜进入箱盒,进入落地柜电管排列整齐,管与箱的连接采用丝扣连接,管口应打磨光滑。暗埋电管采用套管焊接,套管长为其外径的1.5-3倍。线管预埋其弯曲半径应大于6倍管外径,且弯曲处不应有孔洞、裂纹或皱折,预埋管盒开口处应妥善作好临时封堵,避免砂浆或异物落入而导致堵墓 配电箱、柜采用机械开孔,严禁采用氧、电焊开孔。
②、支架制作
各类文吊架应按设计或规范要求制作,支架制作采用机械切割,开孔采用机械钻孔,杜绝粗制滥造。支架在安装前应进行防腐处理。电气支架单独设置,不得与其它支架相互依托受力。
③、电气配线
电源线路导线应分为:A相为黄色;B相为绿色;C柏为红色;N相为兰色;PE相为黑色 (双色)。单股铜芯线应绕接后搪锡,多股铜芯线采用套管压接。插座接线采用左零右火接地的作法。
④、箱、柜、盒安装
落地式配电箱、柜应安装在基础槽钢上,要求调平找正后用螺栓固定;安装在墙上或柱上的配电箱,应按照配电箱的背板配做支架用螺栓固定。箱柜内导线应排列有序,色标及编号正确,有操作按钮的箱门应作接地。
⑤、电缆施工
电缆施工前,应该对电缆和附件的型号、规格进行核对,并检查外观,表面应无伤痕、不扭绞,交做绝缘测试,电缆敷设应尽量减少交叉,做到托盘内电缆整齐美观固定牢固。放电缆时电缆应从盘的上部引出,避免电缆在地面磨擦损坏。电缆终端头采用热缩工艺制作,并做好标识牌。
1.2 管网工程
1.2.1 主要施工方法概述
1.2.1.1 测量放样
1) 工程施工前应由设计单位进行设计交底。当施工单位发现施工图有错误时应及时向设计单位提出变更设计要求。根据施工图会审纪要以有关单位确定,本工程管道中心线定位以小区内已建成的永久性建筑物为参照进行放样。
2) 水准点控制体系:依据国家一级或二级水准点或小区内的高程控制点,沿管线敷设位置,于沿原有道路的适当位置,每100米测设水准控制点,根据测量复核标准的有关规定,形成高程控制体系。
3) 施工测量应符合下列规定:
施工前,建设单位应策划有关单位向施工单位进行现场交桩;
临时水准点和管道轴线控制桩的设置应便于观测且必须牢固,并应采取保护措施。开槽铺设管道的沿线临时水准点,每200米不宜少于1个;
临时水准点、管道轴线控制桩、高程桩,应经过复核方可使用,并应经常校核;
已建管道、构筑物等与本工程衔接的平面位置和高程,开工前应校
1.2.1.2 施工阶段划分
根据施工情况分析,整个工程施工可划分为以下几个施工阶段:
沟槽开挖阶段计划
基础浇筑阶段计划
管道安装阶段、
井室砌筑阶段
闭水试验阶段
沟槽回填阶段
以上六个施工阶段组成系统又既相互联系又相互制约,因此在施工过程中应尽量遵循“平行流水、立体交叉”的法则来策划施工,使相关的施工阶段做到衔接紧密、穿插有序。
1.2.1.3 原材料采购与复试
工程所需原材料的产地有规格均由业主及监理方认可并以就近采购为宜,复试工作应及时按设计和有关规定要求进行,复试时将在监理人员旁证下进行取样。复试合格后,经工程有关各方签字后原材料方可进场。
1.2.1.4 临时设施、施工用电和施工用水
1) 工程施工用电主要为沟槽排水、钢管焊接、回填夯实及混凝土浇捣时服务。
2) 施工用水接至搅拌机放置的位置。
3) 业主应在开工令下达之前办理好施工用电和施工用水的接入工作。
1.2.1.4 排水管涵施工准备
排水管道施工之前,应认真做好施工前的各项准备工作和管线测量放样。调查好各种施工条件,以保证施工活动的顺利进行。另外,现场施工准备还应与预制件加工准备相结合、与施工班组相结合。其程序为:
1) 中线测量
在施工中,根据设计设定的路线控制点,在现场测中线的起点、终点控制中心桩(用木桩固定,桩顶钉中心钉设定)。
2) 坡度板
埋设坡度板间距设为10米左右,当机械挖槽时应在人工清槽前埋设坡度板。坡度板应埋设牢固,不应高出地面,伸出槽帮长度不小于30㎝。坡度板的截面尺寸为8×20㎝。坡度板上的管线中心钉和高程板的高程钉保持垂直。
2) 沟槽开挖
2.1 沟槽断面形式
本工程土质考虑到相关情况,本工程采用的沟槽断面形式为直槽,边坡用钢板桩支护。管道工程的沟槽断面图以下:
管道沟槽底部的开挖宽度,按下式计算:
B=D+2(b1+b2+b3)
式中B—管道沟槽底部的开挖宽度(mm);
D—管道结构的外缘宽度(mm),查《全国通用给水排水标准图集》S222;
b1—管道一侧的工作面宽度(mm),可按下表采用;
b2—管道一侧的支撑厚度,可取150~200mm;
b3—现场浇筑混凝土或钢盘混凝土管渠一侧模板的厚度(mm)。

注:1.槽底需设排水沟时,工作面宽度b1应适当增加;
2.管道有现场施工的外防水层时,每侧工作面宽度宜取800mm。
3.管道结构宽度无管座时按管道外坡计,有管座时,按管座外皮计。
根据《全国通用给水排水标准图集》S222,b2取150mm,b3取25mm,则算出各沟槽底宽如下表:
2.2 沟槽开挖
沟槽采用直槽开挖,挖土采用机械和人工结合的方法施工。为防止扰动槽底土层,机械挖除控制在距槽底土基标高20~30㎝处采用人工挖土、修整槽底。沟槽挖土,随挖随运,及时外运至业主指定地点,沟槽边不得堆土,以减少沟槽壁的侧压力。为保证槽底土的强度和稳定,施工时不得超挖,也不能扰动;当发生超挖或扰动时,必须按规程进行地基处理。
沟槽排水根据当地水文、气象等资料,管道施工期间为多雨季节,我们必须在沟槽底两侧设置排水明沟,确保沟槽内无水施工。
2.3 土方堆放
根据现场实际情况,土质可能为三、四类土,按规范化可以作为沟槽的回填土,故开挖出来的土一部分可以运作回填,剩余土运到业主的指定点。
2.4 沟槽支撑
沟槽开挖的支撑采用钢板桩支撑。
2.4 沟槽排水处理
本工程采用坑内明沟排水,在坑底随同挖方一起设置集水井。并沿坑底的两侧挖排水沟,使水流入集水井内,然后用水泵抽出坑外,施工排水最后经过沉砂池,才排入市政污水管网。排水沟离坡脚0.5m,断面取0.3×0.3m,坡度为0.5%,集水井隔40m左右设置一个,集水井的直径为0.8m。深度随挖土的加深适当设置。坑内排水简图如下:

3) 混凝土基础浇筑
在沟槽开挖接近尾声时,应迅速做好管道基础准备,迅速摊铺碎石和浇筑混凝土基础,不使沟底土基暴露时间过长,导致不必要的损害。
砂砾垫层按规定的沟槽宽度满堂铺设、摊平、压实。铺设结束后,在铺好的砂砾垫层上混凝土基础。混凝土的级配由有资质的试验室试验人员按设计规定的强度进行配合比设计,混凝土基础浇筑采用钢模板立模,管道基础第一次浇筑成水平形状,待安管后再浇管座。混凝土用插入式振动器振实后,再用平板式振动器振平及抹平,基础浇筑完毕后2小时内不得浸水,并进行养护。
未尽事宜参照《全国通用给水排水标准图集》S222/30-6、7、8
管道基础分别采用90°、135°及135°混凝土基础,基础大样图如下,具体做法见《全国通用给水排水标准图集》S222。
1.2.2 管道铺设
1.2.2.1 垫层平基验收合格后,达到一定的强度即可安管。把混凝土管运至施工现场,沿线摊开,做好严格按产品标准进行逐节检验,不符合标准的不得使用。管材要经试验合格后才能使用,并要有质保单,合格证书。在施工时,排管前做好清除基础表面污泥、杂物和积水,复核好高程样板的中心位置与标高。排管自下游排向上游。下管采用人工和8T汽车吊配合。铺管时,将管节平稳吊下,用手拉葫芦吊将管子平移到排管的接口处,用人工安排放置,调整管节的标高和轴线,使管子平顺相接。 管道铺设验收合格后,即可进行混凝土管座及接口施工。
1.2.2.2 安管方法:普通法安管施工程序:
施工要点:
平基混凝土应在验槽合格后及时浇筑,终凝前不得泡水,并应进行养护。
平基混凝土的高高程应严格控制,不得高于设计高程,低于设计高程不超过10mm.
平基混凝土强度达到5MP以上时,方可直接下管。
安管的对口间隙为10mm。
浇筑管座混凝土前平基应凿毛冲净。
平基与管子相接触的三角部分,应用同等强度等级混凝土中的软灰填捣密实。
浇筑管座混凝土时,应两侧同时进行,以防将管子挤偏。
1.2.3 检查井的砌筑施工
污水检查井的砖砌体必须保证灰浆饱满、灰缝平直,不得有通缝,壁面处理前必须清除表面污物、浮灰等。流槽与井壁同时砌筑,流槽高度:污水井与管内顶平。井内流槽应平顺,不得有建筑垃圾等杂物。井内壁在流槽上D/2+200mm(D:管径)上采用20mm厚1:2.5水泥砂浆抹面,以上用1:2防水水泥砂浆勾缝。遇地下水时,井外墙用20mm厚1:2防水水泥砂浆抹面至地下水位以上500mm。井圈采用C30砼,铸铁井盖及座圈安装时用1:2水泥砂浆座浆,并抹三角灰,井盖顶面与路面平。铸铁井盖及座圈必须完整无损,安装平稳,位置正确。本工程的检查井采用收口式。
砂浆采用机械拌和,拌和时间不得少于3分钟,砂浆应随拌随用,一般在3个小时内用完,当气温超过30℃时,砂浆应在2小时内用完。严禁使用隔夜砂浆。
未尽事宜参照《排水检查井》(国标02S515)图集施工

1.2.4 倒虹吸施工方法
本工程内有倒虹吸施工段,由于倒虹吸施工技术工程量较大,需要全面开挖和围堰堵水,所以施工成本相对较高。
(1) 施工内容
管线全线设有管道倒虹, 管沟开挖边坡为1:0.5-1:2,沟槽底部铺设20厘米中粗砂垫层,管道安装后进行中粗砂包角90°,在倒虹处设排水三通,用DN500螺旋钢管引至排泥湿井,既方便检修时排水,又能排除倒虹内的泥沙。
(2) 导流工程施工
1) 围堰施工
导流渠开挖:开挖导流渠采用单斗挖掘机,配置一定数量的推土机以配合单斗挖掘机的工作。在开挖到接近导流沟进、出口处时,应距上、下游围堰坡脚留出一定安全距离。在河槽内修筑拦河坝的同时,挖通导流渠,并随时清除阻水障碍,使水流能平顺地通过导流渠进入下游河道。
围堰填筑结合开挖同时进行,围堰填筑工程量较大,可以利用多台机械设备,挖掘机在取土区(开挖沟槽的土)装车,自卸汽车运输至施工现场,围堰填筑时上下游同时进行,并用推土机进行压实。
2) 围堰拆除措施
当倒虹吸施工完成后,进行围堰拆除。施工顺序:下游围堰拆除、上游围堰拆除。拆除围堰的土方一部分回填导流渠,多余弃土挖运至监理人指定的弃土区。
3) 施工排水在地下水位高于基底高程的土方开挖过程中,地下水会渗入坑内,不但会使施工条件恶化,而更严重的是会导致边坡塌方和地基承载能力下降。在基坑土方开挖前、开挖过程施工中,采用基坑内潜水泵抽水降低地下水位,保持基坑处于干地施工状态。
4) 施工排水包括初期排水和经常性排水,初期排水包括河或沟内积水及可能的降水量;经常性排水主要是由基坑渗水、排水时降雨量及施工弃水等组成。
5) 施工期间排水设施应处于随时可运行状态,施工排水系统排出的水,应输送至抽水半径范围经外,不得影响交通,不得破坏道路、农田、河岸及其他构筑物。施工排水过程中不得间断排水,并应对排水系统经常检查和维护。当管道未具备抗浮条件时严禁停止排水。施工排水终止抽水后,排水井及拔除点管所留的孔洞应立即用砂、石等材料填实;地下水静水位以上部分,可采用粘土填实。冬季施工时,排水系统的管路应采取防冻措施;停止抽水后应立即桨泵体及进出水管内的存水放空。
6) 开挖地下水位以下的土方前,先修建排水井,排水井的井壁应支护;当排水井处于细砂、粉砂或轻亚粘土等土层时,应采取过滤或封闭措施。封底后的井底高程根据水量大小计算确定,同时不小于1.2m。
7) 配合沟槽开挖,排水沟应及时开挖及降低深度,排水沟的深度不小于0.3m,沟槽开挖至设计高程后宜采用肓沟排水。当肓沟排水不能满足排水量要求时,宜在排水沟内埋设管径为150-200 mm的排水管,管接口处应留缝,两侧和上部宜采用卵石或碎石回填。
8) 井点降水应使地下水位降至沟槽底面以下,并距沟槽底面不小于0.5 m。井点孔的直径应为井点管外径加2倍外滤层厚度,滤层度宜为10~15cm。本次施工排水设计采用明沟排水与管井降水相结合,对于土层沟槽,采用明沟排水,管道基坑开挖面接近地下水位时,在开挖断面的底部,开挖一条纵向排水沟,沿沟每隔一定距离挖横向排水沟及集水坑,安装电动潜水泵集中将渗水排至管道沿线的支流及沟渠内。沟底应低于于渠底0.5~1.0m。根据施工进度安排,每个施工段排水时间安排为15天。
9) 对于中粗砂沟槽,采用管井排水,根据水文地质情况计算基坑涌水量,并由总涌水量计算出管井数量,根据单井涌水量每眼配一台电动潜水泵排水,基坑排出的水可直接排入管道沿线的支流及沟渠内。根据施工进度安排,考虑到土方开挖前需先进行基坑排水,基坑排水时间约15天。根据实际涌水量大小,确定排水是否沿管道两侧布置。
10) 在排水施工应先根据现场实际抽水段,进一步确定施工排水设计参数,合理布置明沟及管井。
(3) 施工方法
围堰打好后,挖掘机沿管道中心线开挖,边坡控制为1:2,人工进行清基夯实后,底部铺设中粗砂垫层,用水准仪控制高程,利用吊车安放钢管于设计位置;报请监理验收合格后,在管道两侧用中粗砂进行90°包角。
管道安装前,首先对管道进行合理的布放,管道由平板车托运至现场管沟一侧按顺序布放。下管前并对管道、管件、阀门等的规格、
质量进行检查。合格的方可进行安装。
1) 管道的安装:
1.1)铺管前复核开挖的底高程,测定管节中心线。
1.2)排管顺序应自下游排向上游,内企口向上游方向,外企口向下游方向。井、阀井与管道相接处,用钢管相连。
1.3)管子在铺设前,先将管节的企口内表和外表用钢丝刷把油污杂物清除干净,按管径规格选用相应的橡胶密封圈,并套入内企口内,要求做到四周均匀、平顺、无扭曲。
1.4)下管时,吊点设在管子的重心处,用拦腰起吊的方式起吊,根据现场实际情况或采用专用吊具。避免采取钢索穿管吊管的方法,在吊运管时,注意防止管节接口受损。
1.5)铺管时,将管节平稳吊下,平移到排管的接口处,调整管节的标高和轴线,用紧管设备将管子的插口缓缓插人承口,在承插管子的过程中,管节仍需悬吊着,以降低紧管时的拉力,管节拉紧后,调整管子的轴线和标高,然后用管枕击实。管节插入时,注意橡胶圈不出现扭曲、脱槽等现象。
2) 钢管的安装
钢管采用吊车下管,吊车下管吊装时,用绳索扣系住管身两端,保持管身平衡均匀溜放到沟槽内,并用吊车进行调试直至位置符合设计要求。调试符合设计要求并通过监理验收合格后进行管缝焊接,焊接后并用检测仪进行质量检测,合格的进行环缝两侧200mm内的防腐涂装,不符合要求的重新焊接直至符合设计要求。
钢管及附件内、外防腐前应进行表面预处理。除锈等级应达到《涂装前钢材腐蚀等级和除锈等级GB8923-88》中规定的指标,即人工除锈应达到St3级;喷砂或化学除锈时应达到Sa2.5级。
钢管及附件外防腐采用屏障GZ-2新型高分子防腐涂料重加强级(二布四油)。防腐层结构为底漆一道+玻璃布一层+底漆一道+玻璃布一层+面漆两道。干膜厚度280~300微米。内防腐采用屏障GZ-2新型高分子防腐涂料普通级(两底两面)。防腐层结构为底漆两道+面漆两道。干膜厚度80~100微米。
1.2.5 沉管法施工方法
(1) 工程概况
护城河段水深河宽,主要旅游地段,不能断航,施工安度相当困难,因此在设计中采用了河底沉管施工技术。
沉管法是预制管段沉放法的简称,是在水底建筑隧道的一种施工方法。其施工顺序是先在船台上或干坞中制作隧道管段(用钢板和混凝土或钢筋混凝土),管段两端用临时封墙密封后滑移下水(或在坞内放水),使其浮在水中,再拖运到隧道设计位置。定位后, 向管段内;

加载,使其下沉至预先挖好的水底沟槽内。管段逐节沉放,并用水力压接法将相邻管段连接。最后拆除封墙,使各节管段连通成为整体的隧道。在其顶部和外侧用块石覆盖,以保安全。水底隧道的水下段,采用沉管法施工具有较多的优点。适合于沉管法施工的主要条件是:水道河床稳定和水流并不过急。前者不仅便于顺利开挖沟槽,并能减少土方量;后者便于管段浮运、定位和沉放。

(2)管段制作
按管段制作方式可分为船台上制作和干坞中制作两大类型:
①船台型管段制作。是利用船厂的船台,先预制钢壳,将其沿滑道滑移下水后,在浮起的钢壳内灌筑混凝土。该类管段的横断面一般为圆形、八角形和花篮形。由于管段内轮廓为圆形,在车辆限界以外的上下方空间虽可利用为送、排风道,但车道高程相应压低,致使隧道深度增加,因此沟槽深度和隧道长度均相应增大;又因其内径受限制而只能设置双车道的路面,亦即限制了同一隧道的通行能力;同时耗钢量大,管段造价高,而且钢壳焊接质量及其防锈尚未能完善解决,因此只是早期

应用较多。
②干坞型管段制作。是在临时的干坞中制成钢筋混凝土管段,向干坞内放水后,将其浮运到隧址沉放。其断面大多为矩形,不存在圆形断面的缺点;不用钢壳,可节省大量钢材。但在制作管段时,对混凝土施工工艺须采取严格措施,以满足其均质性和水密性特别高的要求,并保证必需的干舷(管段顶部浮出水面的高度)和抗浮安全系数。
(3)管段沉放
浮箱吊沉法是比较新的一种管段沉放法。通常在管段上方放4只方形浮箱,用吊索直接将管段系吊,浮箱分成前后两组,每组两只浮箱用钢桁架联成整体,并用锚索将各组浮箱定位,在浮箱顶上安设起吊卷扬机和浮箱定位卷扬机。管段的定位须在其左右前后另用锚索牵拉,其定位卷扬机则设于定位塔的顶部。这一沉放法的主要特点是设备简单,适用于宽度20米以上的大、中型管段。
(4) 沉管法
小型管段可采用方驳杠吊法,即在管段两侧分设4艘或2艘方驳船,左右两艘之间设钢梁作杠吊管段的杠棒。这一方法在沉放时较平稳,且在浮运时可以用左右的方驳夹住管段以提高稳定性。
(5)管段水下连接
对钢壳制作的管段,曾采用水下灌筑混凝土的方法进行水下连接。对钢筋混凝土制作的矩形管段,现在普遍采用水力压接法。此法是在50年代末期在加拿大隧道实践中创导致功的,故也称温哥华法。它利用作用于管段后端封墙上的巨大水压力,使安装在管段前端周边上的一圈尖肋型胶垫产生压缩变形,形成一个水密性良好的止水接头。施工中在每节管段下沉着地时,结合管段的连接,进行符合精度要求的对位,然后使用预设在管段内隔墙上的 2台拉合千斤顶(或利用定位卷扬机),将刚沉放的管段拉向前一节管段,使胶垫的尖肋略为变形,起初步止水作用。完成拉合后,即可将前后两节管段封墙之间被胶垫封闭的水,经前节管段封墙下部的排水阀排出,同时利用封墙顶部的进气阀放入空气。排水完毕后,作用在整个胶垫上更为巨大的水压力将其再次压缩,达到完全止水。完成水力压接后,便可拆除封墙(一般用钢筋混凝土筑成),使已沉放的管段连通岸上,并可开始铺设路面等内部装修工作。
(6)管段基础处理
处理处理沉放管段基础的目的是使沟槽底面平整,而不是为了提高地基的承载力。在水下开挖的沟槽,其底面凹凸不平,如不加以整平,管段沉放后会因地基受力不均匀而导致局部破坏,或因不均匀沉陷而开裂。为了提高沟槽底面的平整性,至今绝大多数建成的水底隧道采用垫平的方法。早期大多采用一种在管段沉放之前先铺砂石作为垫层的先铺法。它是在作业船上通过卷扬机和钢索操纵特制的刮铺机或钢犁,沿着沟槽底面两侧设置的、具有规定标高和坡度的导轨,将放下的垫料往复刮平。该法缺点较多。另一种垫平的方法为后填法。即先将管段沉放在沟槽底上的临时支座上,并使管底形成一定的空间(管段底板内预设液压千斤顶,在定位时可以顶向支座,调节管段高程),随后用垫层材料充填密实。后填法中最早用的是灌砂法,仅适用于底宽不大的船台型管段。
基础处理采用成熟的喷砂法,适用于宽度较大的大型管段。从水面上用砂泵将砂水混合料通过伸入管段底下的喷管向管底空间喷注,使形成一厚实均匀的砂垫层,喷砂作业须设专用台架和一套喷砂与回吸用的 L形钢管。喷砂开始前,可利用它清除沟槽底上回淤土或塌方土。喷砂完毕,随即松开定位千斤顶,利用管段重量将砂垫层压实。
1.2.6 顶管技术施工方法
(1) 工程概况
本工程范围内的外部管网部分中广府内城因为地形复杂,街道本来就很窄,管道埋深都在6—8米之多,有很多管道需要顶管施工。
(2) 施工方案
1)施工准备:
1.1) 施工技术资料准备:在工程开工前把施工策划设计、安全管理实施细则、工程质量保护措施等技术资料编制完毕。同时对现场的管线进行摸底、查找,并进行登记和做好记号。
1.2 ) 材料准备:在开工前一天,必须完成材料的准备或采购工作。
1.3) 施工工具配置
1.4) 施工人员配备:本工程有三个施工班组配合施工。施工一班8人,施工二班8人,分二组交换接班施工;电工班4人,分二组交换接班施工。
2) 施工方法和施工顺序:
2.1) 根据本工程的特点,采用机械钻孔穿管的施工方法。
2.2) 本工程按以下工艺流程进行施工:管线勘察—进场—人工挖工作坑—导向—回括—回拖—管口处理—场地修复、清理、退场。

2.3 ) 机械成孔的施工工艺过程:钻孔(最大孔直径为200mm)
第一次扩孔(最大孔直径为400mm)
第二次扩孔(最大孔直径为600mm)
由于钻孔机的特性和所配钻头的限制,每次扩孔的直径均只比上次增加200mm。孔的直径必须比管道的直径大100mm,管道才能安装。根据这一特点,扩孔的次数(或说扩孔直径)应由单管径的大小或管束的外径来决定。本次采取扩孔回拉的方法进行管道安装。
泥浆的作用一方面起到对孔壁土层的凝固,防止塌孔,另一方面起到减少钻头阻力和降温的作用。它是由膨润土、聚合物和水混合组成的。泥浆的配方是:每立方米孔采用:膨润土30kg,聚合物5升,水1立方。
泥浆制作后,用专用注射机输送达到钻头的前方。
泥浆随着钻孔长度的增加会慢慢的减少,为了保证成孔后管道的顺利穿过,在成孔过程中,还要不断的往钻孔内注水。利用水的压力支撑钻孔孔壁和防止孔内泥浆凝固。
由于不受场地的限制,钻机进入工作坑道施工的轨迹是直线的。但要根据现场的实际情况,如地下管线的位置如何,管机的工作面有无障碍,管道长度的大小来决定,但一般不小于10度(如下示意图)。

(3) 施工技术措施:
1) 施工过程严格遵照设计要求和执行施工规程规定工艺和控制质量。
2) 料检验:由材料员对每种进场材料进行材质检验,到场材料必须具有符合要求的合格证书,如对到场材料的所怀疑,可以停止使用,直到复试合格方可用于工程,否则勒令退场。
3) 在人工挖基坑之前,对基坑位置、深度和垂直度进行复核,以确保成孔的正确性。
4) 基坑检查,基坑成孔之后对孔径、孔深等检测指标进行复验,必须达到设计和施工规范要求后方可进行下道工序施工。
5) 机械钻孔:机械钻孔必须符合设计和施工规范要求。出孔位置必须控制偏差在允许范围之内。
1.2.7 架空管道施工方法
(1) 工程概况:
广府内城污水收集后进入古城北泵站,必须要通过护城河,但是护城河年久深彻,淤泥积厚,河面宽约60多米,且不能筑堤断行,因此采用管道架空工艺施工技术。
(2)管道安装工艺流程:
放线定位――浇筑砼支架基础――架空管道敷设安装――排气阀安装――固定支架安装――管道探伤――水压试验――管道保温修补
钢管焊接工艺方法选用氩弧焊打底,手工电弧焊盖面的工艺,以焊接质量来保证本工程安装质量。
架空管道安装:
1) 根据设计图纸的位置,进行测量,打桩、放线、挖土、基础浇筑等。
2) 管道吊装前,应检查桁架的偏差尺寸是否在设计和规范要求内。
3) 管道应先在进行分段焊接,每段长度在25~35M范围内。
4) 阀门、配件、排气阀支架等,应按施工要求在试压前安装完毕。
5) 管道水压试验,应按设计要求和规范规定。
(3) 施工技术措施:
1) 材料的验收检验工作,管道用的钢管材,管件,排气阀等,必须经质
量技术监督行政主管部门的安全认可证书或受理证书,同时还需如产品质量证明书,否则不得验收用于工程中。
2) 管道的焊接工作,必须有持相应焊接位置项目的焊工担任,且在有效期内。焊后经焊接检验员检测合格后方可进行探伤检测。
3) 管道水压试验,试验压力按照设计及规范要求执行,稳压30min,压力不下降,无渗漏为合格;
4) 管道水压试验结束后,按照规范要求应进行水冲洗等。
(4) 管道焊接工艺:
1) 架空热力管道施工,焊接是重要的工艺之一,焊接质量的好坏关系到管网的正常运行,寿命及安全可靠性,因此焊接质量控制是质量控制的中心环节之一,围绕焊接质量控制和影响焊接质量因素,有关环节必须为确保焊接质量提供必要的保证。
根据管道的技术要求和设备、人员、现场环境要求等条件,采用氩弧焊打底,手工电弧焊盖面的焊接工艺方法。对接接头的坡口形式为单面、V型;强调按工艺要求开坡口,以保证焊透;
2) 焊前准备 65°±5°
2.1)坡口加工和清理除锈 0.8~1mm
坡口加工要求采用坡口机加工出坡口, 2~3mm
坡口的加工角度要求如图,并留出适当的钝边,如1mm左右
坡口的清理用角向砂轮机,将坡口面和坡口附近20mm范围内,打磨漏出金
属光泽。除锈、去油,除去污物,要求当天清理干净,当天焊接完毕,不允许,隔夜才焊。
2.2) 焊接设备及工装
①要求使用直流电焊机,配好电流、电压表,如ZX5-400Y,气冷氩弧焊焊枪,氩弧焊时采用直流正接法,手工电弧焊时,采用直流反接法;
②管子组对时,应采用专用工装组对,避免强力组对焊口;
③对焊接部位,应采用临时挡风措施,并注意将管子一头堵死,以防止穿堂风的影响;
④准备好焊条烘箱和焊条保温筒;
⑤施焊的环境条件符合通用工艺要求,阴雨天和湿度过大的天气,应停止焊接(或采取措施后焊接);
⑥焊工每人应配齐角向磨光机,以便及时打磨层间和接头等部位。
2.3) 焊材的选择:焊条、焊丝、管材等主要材料都应有材质证明书和质量合格证并经检验、验收符合国家标准或其它有关标准方可使用;
2.4) 焊工必须持有相应焊工证,且施焊项目应在其合格项目范围之内,方可上岗。
2.5) 针对直埋热力管道的有关规定和设计要求依据焊接工艺评定试验、编制焊接工艺卡、指导焊接施工是保证架空热力管道焊接质量的重要措施。
1.2.8 井点降水管道施工方法
本工程管线较长,处于沼泽、湿地地带,地下水位高,所以给施工带来渗水难度,在施工过程中必须采用井点降水措施,个别地段可能要采用双层井点降水才能确保施工安全。
轻型井点系在基坑外围或一侧、二侧埋设井点管深入含水层内,井点管的上端通过连接弯管与集水总管连接,集水总管再与真空泵和离心水泵相连,启动抽水设备,地下水便在真空泵吸力的作用下,经滤水管进入井点管和集水总管,排出空气后,由离心水泵的排水管排出,使地下水位降低到基坑底以下。本法具有机具设备简单,使用灵活,装拆方便,降水效果好。可提高边坡的稳定,防止流砂现象的发生,降水费用较低等优点。但需配置一套井点设备。本工艺标准适用于渗透系数为 0.1-5.0m/d 的土及土层中含有大量的细砂和粉砂的土,或明沟排水易引起流砂、坍方的基坑降水工程。
(1) 材料要求
1) 井点管
用直径 38-55mm 钢管,带管箍,下端为长 2m 的同直径钻有 Ф 10mm梅花形孔(6排)的滤管,外缠8号铁丝、间距20mm,外包尼龙窗纱二层,棕皮三层,缠20号铁丝、间距40mm。
2) 连接管
用塑料透明管、胶皮管,直径 38-55cm;顶部装铸铁头。
3) 集水总管
用直径 75-100mm钢管带接头。
4) 滤料
粒径 0.5-3.0cm石子,含泥量小于1%。