转自:微笑彩虹 这两天无意间浏览网站,发现这篇文章巨详细的介绍了整个BIM在项目中的应用过程,如果之前对于BIM在项目中的运用不甚了解,感觉看完这篇基本上就明白了。

一、成果运用概述
工程项目是施工企业最基本经济单元,最核心的管理对象,最主要的利润来源,加强项目管理就显得尤为重要。随着公司业务规模的扩大,多功能商住楼项目不断涌现,就如何优化综合管网布线,减少返工;如何更好地严格控制项目成本,降低损耗,提高利润增长点;如何加强项目各单位配合协作,保证数据传递更加准确、高效等方面提出了更高的要求。公司决定借助BIM加强项目过程管理,并确定公司重点工程渝富总部为试点项目,首先运用在该项目中的机电安装分部,研究如何从商业综合楼综合管道施工的常规思路中,寻求一种优于传统作法,经济实用、技术先进又操作方便的施工方法。通过利用BIM建模后进行施工,减少传统合图过程中出现的误差;减小操作人员的操作时间,降低难度,在保证建筑产品质量的同时,提高企业生产效率,节约大量资源,为企业实现成本节约,进而促进企业打造质量品牌,提高核心竞争力!
工程概况:总部项目共计8层,其中地下2层,地上6层,建筑结构为框架结构,其耐火等级为一级,总建筑面积45196.73m2。其中地下2层为车库和设备用房,地上6层为办公楼,合同工期为330天,工程造价约3800万。
施工范围该工程施工范围:室内给排水系统、消火栓给水系统、自动水喷淋系统、电气系统(电气应急照明、动力、消防报警和联动以及广播)、通风与空调系统、防雷接地系统、潜水池设备系统等。1、电气系统:从配电室低压柜到各楼层配电箱或终端配电箱间电气配管、桥架安装及该部位的电线、电缆敷设,配电箱(柜)到各机电设备、通风空调设备间管、线安装,各功能性用房和地下车库照明安装。照明系统干线为低烟无卤YJV型电缆沿桥架敷设,支线为低烟无卤阻燃型导线穿阻燃型PVC电线管;事故照明、消防动力系统干线为BTTZ型矿物电缆;事故照明灯具设计为节能型自带电池筒灯或圆形吸顶灯或荧光灯,应急时间不小于90分钟;一般照明以日光灯为主,其中地下车库采用LED新型日光灯管。动力系统干线为低烟无卤YJV型电缆沿桥架敷设,其中屋面桥架为不锈钢材质;电气竖井内桥架穿楼板孔洞均采用防火堵料进行封堵,以满足消防设计要求。防雷接地系统:利用建筑物混凝土基础地梁底部的两根主钢筋和桩基内钢筋焊接成环网,作为接地装置。本建筑物采用联合接地,使用≥Φ12圆钢作跨接,并保证焊接长度10㎝焊缝饱满,接地电阻不大于1欧姆。其中屋面女儿墙及突出屋面的建筑物为明装不锈钢扁管避雷带。屋面设置网格不大于10x10m的避雷网。安装于屋面的所有金属管道、设备、桥架等均作了接地连接。2、给水管道系统:室内生活给水主管道的安装、屋面生活用及消防用不锈钢水箱安装。市政直供引入管、消防水池的引入管、室外给水环管、室内消火栓系统管道及室外消火栓和水泵接合器、室内自动水喷淋管道和设备以及室外水泵接合器的安装。给水管道管材为PSP钢塑复合压力管,G型连接。3、排水系统:室内虹吸雨及一般雨水排水管道安装、室内生活排水管道安装。室内生活污水采用重力流排出管为UPVC塑料排水管,粘接连接;地下车库潜水排污泵连接的管道为焊接钢管,焊接连接;室外污水及雨水排水管网为双壁波纹管,其检查井为成品塑料检查井;屋面虹吸雨水水管采用HDPE高密度聚乙烯管,热熔对焊接或电熔连接;4、消防系统:消防控制中心设在一层,室内安装有消防报警设备、消防监控及联动设备、消防水炮监视控制设备等。消防水系统包括消火栓给水系统、喷淋系统、消防水泵房及增压稳压设备、消防水泵接合器及室外消火栓安装。消防水池及消防水泵房设在负一层,消防稳压设备设在屋顶层。消火栓系统及自动水喷淋系统管道均热镀锌钢管,DN≥80为卡箍式连接,DN<80为丝扣连接;消火栓及自动水喷淋系统由负一层消防水池通过水泵提供压力水,屋面消防水箱通过屋面的稳压设备稳压后向系统供水。消防报警系统配管配线均为阻燃型PVC电线管,导线为低烟无卤阻燃或低烟无卤耐火导线;主要设备由感烟探测器、感温探测器、报警模块、广播及通讯系统、火灾报警及显示盘、消防联动控制盘、消防水炮控制盘以及气体灭火系统安装。负一层网络机房、热水锅炉房、配电室及一层消防中心室均设置为气体灭火装置。5、通风系统:风管与配件制作、风管系统安装、通风机安装。地下一、二层为车库均划分为二个防烟分区。通风系统按照防烟分区设置,机械排风,地下一、二层设置机械送风,通风系统兼作排烟系统。一至六层均采用机械的排烟机和送风,其中一层分为三个防火分区,二层和三层均为四个防火分区,四至六层均为二个防火分区。通风系统风管为镀锌钢板现场制作,其中一至六层吊顶内的风管采用了夹筋铝箔玻璃棉保温。地下一层和地下二层设置智能型诱导风机,以降低CO气体浓度。6、空调系统:空调系统设计为多联机系统。主机设在屋顶的四个角,通过氟利昂制冷管与室内盘管风机相连。制冷管道及凝结水管的保温为橡塑保温材料。新风系统风管为单面彩钢酚醛复合板材制作。7、潜水池设备系统潜水池设在一层室内,其水循环及水处理设备机房设在负一层。潜水池室内地板设计有水系统循环地暖管。潜水池热水由负一层的无压热水锅炉提供。潜水池循环水管道为UPVC型塑料给水管,粘接连接;排水管为PVC塑料排水管粘接连接。潜水池热水由地下一层的无压热水锅炉提供;空调系统设备设计为三集一体机,安装于负一层机房房内,其室外机安装在南侧弧形车道下。室内潜水池空调风管材料为单面彩钢酚醛复合板材制作,风口为条形百叶风口,与室内天棚装饰成为一体。潜水池内进水和排水均采用池底供给和排放,池壁设置吸污口和装饰灯具。
该工程是大型综合型项目,我司决定努力争创鲁班奖,及时地组建了经验丰富、管理先进、年富力强的项目管理团队,并举全司技术管理力量作为其坚强后盾,深入前期策划、加强过程控制、重视总结提升,将打造精品工程、提升安全管理、优化项目工期、节约项目成本等作为项目管理的目标。在此背景下,运用先进的BIM技术,更为精品工程和综合目标管理项目的打造锦上添花。拟从塔楼标准层管线综合排列开始,解决非标准层、管网层、设备层等高难的技术方案策划,即在未施工前先根据所施工图纸在计算机上进行图纸“预装配”,直观折射出设计图纸,尤其在施工中各专业之间设备管线的位置冲突和标高冲突等问题。根据模拟结果,结合原有设计图纸的规格和走向,进行综合考虑后再对施工图纸进行深化,从而形成实际的施工图纸进行指导施工。
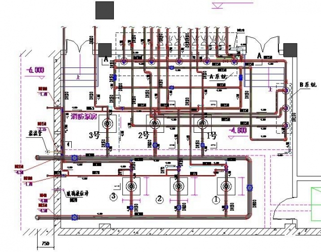
渝富项目为市重点工程,消防泵房管道众多,为了让消防泵房管道布局合理美观,也采用了BIM技术进行控制,收到了良好的效果。
二、成果应用程序
(一)策划
我司于2011年5月提出在施工中使用BIM技术,通过前期大量收集其他已使用该技术项目的信息和数据,进行对比、分析,梳理、确定研究方向和试用项目。研究方向首先确定为解决安装施工过程中综合管线布置的碰撞检测。
(二)准备
信息中心策划渝富总部项目、研发中心等相关人员听取BIM软件厂商介绍,在欧特克,鲁班,广联达三家软件提供商提供的BIM软件中,经过试用,对比研究决定采用欧特克公司的Revit软件。公司于2011年11月成立由总理经挂帅的BIM技术应用小组,购买5套软件成立BIM工作室。同时考虑到现场电压不稳定,环网开挖容易导致电线电缆破坏,导致正在实施的数据不安全,所以工作室配备了大功率UPS电源,保证突然断电对项目的影响减到最小。为了保证数据的安全性,工作室还要求每周对数据进行一次备份,采用刻录为光盘的形式进行保存,力保实验数据的真实有效。
(三)应用
1、在施工进行前,对项目建筑物进行建模,可以对项目有个直观的了解,并对材料数量精确计算。

2、协调冲突方面:建立模型后,运行碰撞检测,找出各专业系统间的碰撞点,优化设计,减少返工。通过三维模型与时间维度结合创建4D模型,对施工进度进行监控。

3、把握设计意图方面:用直观的三维模型对施工班组进行技术交底。根据三维模型图纸与合作单位进行沟通交流,减少交叉作业导致的损失。
(四)改进与创新
在实际应用初期,由于没有经验,在建立模型的时候采用的是综合管线图。一张图纸上包含所有系统,导致建立模型的时候要不停的关闭切换图层才能看清当前建立模型的图纸。后来我们发现只采用单系统图纸进行建模,等全部系统都建立模型后再进行合图,效率和精确度都得到了提高。
(五)技术、经济与综合效益
1、技术效益
本研究课题公开发表论文一篇,申报QC成果一项,作为本课题的技术研究总结和今后实际应用的理论依据。
2、经济效益
渝富总部项目消防泵机房管道综合布置观感质量好,各专业管道的布置科学合理,管道的施工是一次施工到位,提高了机房内各专业管道的施工质量,为该工程创优打下了坚实的基础,同时,也标志着本工程BIM技术在施工中成功的运用。
3、碰撞检测
在对渝富总部项目消防泵机房进行建模后,运行碰撞检测发现了一些碰撞点。而且由于原图纸设计考虑不周全,没有把消防泵房空间狭窄,不便于以后操作人员使用的因素考虑进去,导致设计的管道走向不够人性化。我司又对BIM模型进行了深化设计,排除了碰撞点,并且把以后操作人员的通道留了出来。




消防泵机房BIM模型与实际工程对比图
4、工期提前
消防泵机房实际作业人员工期表
|
根据现场进度计划及实际操作情况得出以下数据 |
||||||
|
施工策划 |
专业 |
作业人数 |
计划工期 |
提前工期 |
实际工期 |
备注: |
|
平行施工 |
空调水专业 |
8人 |
60 |
10 |
50 |
施工部位:消防泵机房;消防泵机房工期:60天。 |
|
暖通专业 |
4人 |
21 |
5 |
16 |
||
|
电气专业 |
4人 |
18 |
3 |
15 |
由表可知:消防泵机房空调水专业工期提前10天,暖通专业工期提前5天,电气专业工期提前3天,总工期提前至50天;
通过BIM施工技术成功实施后,消防泵机房各专业施工质量、施工进度、施工成本都得到了显著提高。
4、本项目的科技成果在工程实际中得以运用,其经济效益分析如下:
渝富总部项消防热泵机房管道综合布置观感质量好,各专业管道的布置科学合理,管道的施工是一次施工到位,提高了机房内各专业管道的施工质量,为该工程创优打下了坚实的基础,同时,也标志着本工程BIM技术在施工中成功的运用。
消防泵机房实际作业人员工期表
|
根据现场进度计划及实际操作情况得出以下数据 |
||||||
|
施工 策划 |
专业 |
作业人数 |
计划工期 |
提前工期 |
实际工期 |
备注: |
|
平行 施工 |
空调水专业 |
8人 |
60 |
10 |
50 |
施工部位:消防泵机房;消防泵机房工期:60天。 |
|
暖通专业 |
4人 |
21 |
5 |
16 |
||
|
电气专业 |
4人 |
18 |
3 |
15 |
由表可知:消防泵机房空调水专业工期提前10天,暖通专业工期提前5天,电气专业工期提前3天,总工期提前至50天;
通过BIM施工技术成功实施后,消防泵机房各专业施工质量、施工进度、施工成本都得到了显著提高。
BIM技术平行施工消防泵机房节省人工费用表
|
序号 |
费用组成 |
计算过程 |
计算结果(元) |
|
一 |
人工费 |
1.1+1.2+1.3 |
|
|
1.1 |
通风班组平均人工费 |
10工日×4人×180元/人·工日 |
7200元 |
|
1.2 |
空调水班组平均人工费 |
10工日×8人×220元/人·工日 |
17600元 |
|
1.3 |
电气班组平均人工费 |
10工日×4人×200元/人·工日 |
8000元 |
|
合计 |
32800元 |
根据上表的计算可知,采用建筑模拟信息施工技术大大的节约了施工成本,消防泵机房实施工期比计划工期提了10天,节省工期比率为16.67%,费用节省了32800元。
总费用计算说明:
消防泵机房费用节省:[节省人工费]32800元
2)可减少企业管道施工质量问题产生的工程回访保修费用,实现企业的运行成本节约。
4)可提高企业生产效率,节约工期,项目得到工期(价值)奖励及新增后续工程,可实现企业的新增利润。
3、技术成果的运用对企业的综合影响分析
1)项目工程顺利交验,促进打造企业质量品牌;
2)降低安全风险,减少对企业的负面影响,提升企业社会形象;
3)提高生产效率,实现企业承接同类施工任务的效益。
三、应用总结
研究成果在2个项目中成功应用。通过我们阶段性地对检查信息进行分析,对质量发展趋势、成本管理效果进行评价后发现,使用了“建筑信息化模型BIM”的项目,综合管网施工质量得到了明显提高,工程进度成本等方面得到了有效控制,提升了公司社会形象,增加了建筑产品品牌附加值。
研究成果的使用,大大提高了综合管网施工的一次成型率,管网工程施工质量得以保障,管网布置合理美观,得到了甲方、监理等的肯定和好评,更对项目实施的全过程良好运行有着积极的促进作用。根据现场项目提供的对比分析结果可知,企业实现了减少返工率,减少材料浪费,减少人工费,提高工程效率,节约了成本。研究成果的成功推广应用,也使之逐步成为企业的核心技术之一。
四、应用实例

金融街项目 一号楼标准层绘制

项目 一号楼标准层碰撞检测

项目消防泵房管道材料表

项目消防泵房效果
如果觉得我们的文章有价值,请关注我们(上海交大建工项目中心)