
阿道夫总部中心作为阿道夫集团未来的总部高端办公场所,位于广州市白云区,坐落于重点打造的广州设计之都核心地块,与白云山风景区仅约2公里。项目总用地面积约1万平方米,总建筑面积约5.3万平方米。

区位优势与得天独厚的自然景观为总部项目提供了良好的设计基础,但同时政府对项目周边及本地块均做出了严格的限定:本次设计为南北相邻的两个地块,中部被一条城市支路所隔开,两个地块均有严格的限高和一定的贴线率要求。在这些多重限定下,建筑形体一高一低,几乎直上直下,裙房只是稍微突出主楼,很难形成对场所营造更为有利的围合的空间形态。
在建筑基本体量无法改变的前提下,如何 应对城市需求便成为场地布局设计的出发点:在建筑体量布置在基地西侧以回应贴线率要求的前提下,将东侧作为向城市主要人流来向打开的主入口广场,同时成为由北往南的云谷公园、设计殿堂到东南角集中绿地的开放空间序列上的重要组成部分。从城市空间角度,贴线位置的裙房采用退台式设计,有效消解建筑体量对于街道的压迫感。

△布局分析
南北两个地块被道路分割,为增加互动性与一体性,我们不仅在建筑体量上使用了连桥的物理连接,同时设计上保持了两栋塔楼体量边界收齐,入口广场空间保持界面空间尺度和功能流线的高度一致,形成南北入口从视觉上的一体化。

△方案生成过程

广州设计之都作为政府的重点项目,其整体规划及本地块均有严格的限定:整个区域周边规划大量超高层办公建筑,但本项目两个地块的高度分别被限定在70米和40米。这意味着我们的建筑主体在这一区域高度不占优势,且形体基本固定,很难从体量上做出先发优势。但作为未来阿道夫公司的企业总部大楼,标志性和辨识度依然是本项目需要达成的目标,而造型设计则是完成这一目标的唯一手段。
马丁·海德格尔(Martin Heidegger)曾经说过,“唯有理解,方能倾听”。只有充分理解企业品牌的精神内核,我们才可能做出最正确的应对。在对阿道夫这一品牌深入了解后,我们理解了阿道夫作为国内领先的个人洗护用品品牌推崇“简约、经典、绿色”的企业理念。对这一理念的建筑学理解和转译成为我们这次造型设计的核心追求。
“直线属于人类,而曲线属于上帝”,我们认为,阿道夫真正的精神内核,来源于对自然美的追求,而自然美是感性和纯粹的,是经典永恒的,曲线恰恰能完美地契合这一精神内核。

△设计手稿
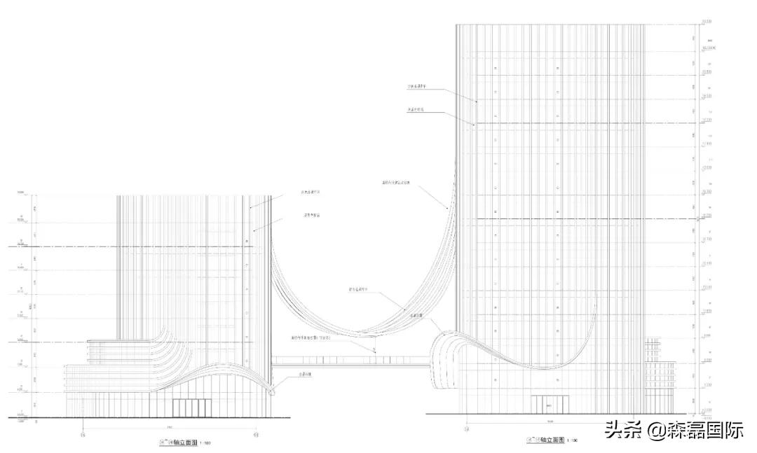
我们提取岭南建筑及白云山的曲线元素,在整体的平面上采用圆角设计,让体量圆润富有温度。立面上采用大量玻璃幕墙与竖向杆件,用疏密变化以及曲线蜿蜒结合,形成从上到下自然飘逸的发丝造型,暗合阿道夫品牌“以人为本”的洗护理念。主入口所在的东立面作为城市车流来向的第一展示面,设计了极具标识性和张力的曲线型雨棚造型,与竖向线条一道,最终形成了“女神的裙摆”这一城市第一印象。两栋塔楼之间采用连桥与其上方的悬索杆件共同连接,形成优雅的悬链线组合,生动而优雅。


△符合自然重力的悬链线
建筑整体形象轻盈清爽,主立面简约纯粹,竖向线条结合疏密有序的变化,呈现出简洁而精致的效果,重现了阿道夫简约、经典、绿色的企业理念。


在细节方面,我们力求创造更佳的落地效果,对立面的各个重点元素从概念到实施进行了细致的深化工作,从把控尺度与细节,到探索建筑设计如何与幕墙、灯光、结构以及材料等各方面统筹考虑,均做出了相当的努力。
在概念设计阶段,富有韵律的白色杆件对塔楼主体玻璃面形成大面积的包裹,营造出典雅富有韵律的整体形象。杆件的尺度和截面造型,一方面影响整体立面造型,另一方面,需要综合考虑遮阳以及灯光效果。
在进行了多方案比选以后,杆件截面最终确定采用矩形一侧抹圆角的基本形式,保证杆件在日间有足够的体量感,同时两侧不同的处理也让杆件从两层产生不同的光影变化。同时灯光一体化设计,确定采用开槽泛光的基本形式,见光不见灯,确保曲线段杆件的灯光过渡平滑。


△更精致的杆件形式
另一个难点则在于构造的轻巧化。
本项目立面最引人注目的曲面雨棚,最大出挑将近4米。为避免拉杆影响效果,采用横向钢结构支撑加强的做法,但最远端的结构厚度达到了500mm以上。为避免视觉上直接感知到如此厚重的结构边缘,我们采用化整为零的思路,将雨棚边缘做成双层结构,真实钢结构位于下层,其外沿再利用铝板外包做第二层边缘,将边缘最薄处控制到70mm,最终达到“非常轻薄”的视觉效果。



△更轻薄的曲面雨棚

△室内外一体化设计

不同于常规办公建筑关注的通用需求,作为企业总部自用和出租的中型办公综合体,广州阿道夫总部中心在场地和高度受限的条件下,力图从体量和细节中创造出独特的优雅气质,以满足高端办公和企业精神展示的双重需求。在设计过程中,我们试图在感性与理性之间寻找平衡,追求概念与细节的最终落位,并将此次设计作为一次对企业哲学作出建筑学转译的积极尝试。


△北塔北立面图

△东西组合立面图

△北塔标准层平面图

△南塔标准层平面图