系统调试:
通风与空调工程安装完毕必须进行系统的测定和调整,在各独立系统作好调试的基础上,系统联合试运转及调试。主要有:
1、供电、控制系统调试
2、主机调试
3、风系统调试
4、冷(却)水系统调试
5、系统的综合调试
主机设备调试:
模块式风冷热泵主机安装调试:
模块式风冷热泵机组是由一个或多个模块组合而成,模块机中25、30、35 kW(一般情况下)的模块机每个模块只有一个模块单元,55、60、65kW(一般情况下)的模块机每个模块有两个模块单元组成。每个模块单元都有自己独立的电控,模块单元的电控之间以通讯网络连接进行信息交换。机组采用全中文微电脑控制系统,能自动地根据负荷的大小进行能量控制,达到最佳匹配,真正实现最佳的节能运转。
一、电源线连接
1、确认在施工现场所选用的电气部件是根据以下规格要求选用的,并且应保证遵照标准和相关规范。
2、对于25、30、35kW的模块机,一个模块只有一个模块单元;而对于制冷量为55、60、65kW的模块机,一个模块有两个模块单元,每个模块单元的主电源必须分开接线设置电气开关。
3、检查及保证机组正确接上地线,以防漏电事故,其接地装置需严格按电气规范要求施工。
4、主电源接线:
1)主电源开关控制箱应选在使非专门维护人员不容易碰到的位置,以免产生误动作。
2)通过电线连接孔把主电源、电源中性线和接地线接到机组电气箱内,牢固地将电线接到A、B、C和N的接线端子上及地线座上。
3)在主电源线的连接上要求相序必须一致。
二、控制接
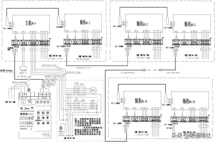
1、主机模块通讯线的连接
机组每个模块之间的通讯(对60、65kW的模块机,其内部两个模块单元之间的通讯线在出厂前已接好)需要现场连接,通讯线采用三芯屏蔽线,模块之间的连接必须采用总线性连接,依次接入主、子模块电控箱的小三位接线座P、Q、E接线端子上,每个模块单元控制板的信息,都可通过与主模块相接的线控器进行操作和显示。有关线控器接线等详情请参照《模块式风冷热泵机组线控器安装说明书》。
2、水流开关控制线的连接
将水流开关的引线(用户自备)接到主机的W1、W2接线端子上。
3、水泵控制线的连接:
水泵交流接触器的控制线路必须通过主机的P1、P2接线端子,如图a所示:

4、辅助电加热器控制线的连接:
辅助电加热器的交流接触器控制线路必须通过主机的H1、H2接线端子,如图b所示:
5、注意:水流开关、水泵、辅助电加热器只与被设定为0号地址的主机控制器相连。
三、模块单元控制器上地址开关设定(本段以美的为例)
1、警告:地址开关的设定必须在机组断电情况下进行,机组通电情况下严禁拨动地址开关。
2、如下地址开关中的数字、字母表示的含义为:
0代表0号主机,1~F依次代表1~15 号辅机。
3、对于55、60、65kW的模块机,一个模块有两个模块单元,有两个地址。而25、30、35kW的模块机,一个模块只有一个模块单元,一个地址。
4、各模块单元的地址码不能重复,否则将出现保护而不能启动机组。因此必须将拨动开关拨到指向不同的地址码。
5、有数码单元的模块机,其数码单元优先设定为主机。机组模块单元机型的确认:(请根据控制板上拨动开关,按照下图所示进行区分)

注意:对机型设定的拨动开关出厂前已设定好,请勿更改。
25、30、35kW模块机的主机与辅机之间的联网通讯和接线示意图:

55、60、65kW模块机的主机与辅机之间的联网通讯和接线示意图:

四、水路检查
1、机组与用户水路系统的安装参考下页“机组与用户水路系统的安装示意图”。
2、用户水管在与机组接驳前,必须对整个管路系统进行清洗,然后拆下过滤器的过滤网清洗干净再装上,确认管路中没有颗粒及杂质方可与机组接驳。
3、为防止A系列模块式风冷热泵机组的板式换热器堵塞,检查Y型过滤器目数是否为40目以上(滤网网孔直径不得超过1.2mm)。如过滤器滤网网孔过大,则须在内部铺设一层网孔直径不超过1.2mm的不锈钢丝网。
4、对水系统管路经多次冲刷排污后,确认水质洁净度符合要求,系统再次注水排空后开启水泵,确认水流量、出口压力符合要求内部空气全部排空,水流开关在进水管道上安装正确。
5、在冬季环境温度很低的情况下,夜间停机时期板式换热器和管道内的水可能冻结,从而损坏设备和管路。为防止冻结,绝不允许机组断电(因机组有自动防冻功能)。如果在夜间停机,机组在不断电的情况下还有可能结冰,那么必须把水管里的水全部排出,如果排水比较困难,可使用防冻结混合物乙二醇或丙二醇。
6、注意:切勿使用盐类防结冰混合物,以免腐蚀机组,损坏设备。
机组与用户水路系统的安装示意图:

五、试运转
1、机组启动前12小时将主电源接通,以使加热带通上电,对压缩机进行预加热。如不进行足够的预加热,可能导致压缩机损坏。当压缩机要长时间停止运行而切断电源,切记重新启动机组前12小时应通电进行预加热。
2、线控器的设定:具体操作方法请参照《模块式风冷热泵机组线控器的使用说明书》
3、为确保先开水泵后再开机组,在换热器的进水侧应装设水流开关,并将其引线接到主机的W1、W2接线端子上。
注:由于水泵由机组主模块控制器控制,在进行水系统运行时,可临时接线使水泵交流接触器控制回路通电(参照图b),以使水泵运转。
警告:在水系统未调好以前,禁止通过主机来开水泵。
4、打开线控器,如发现机组有故障代码显示,先消除故障,确认机组无故障后,参照 “线控器的使用说明”操作方法启动机组。
5、试运转30分钟,进出水温度稳定后,调整水流量至名义值,保证机组正常运行。停机后,须间隔10分钟再投入运行,以防止机组频繁启动。最后按表六要求检查机组控制及保护装置是否正常。
6、由于主机可以对水泵进行启停控制,在水系统冲刷时,不得通过主机来控制水泵的运行。
水系统未充分排空前,不得开启机组。
7、必须正确安装水流开关,水流开关的接线必须按照指定位置连接,否则在机组运行中出现断水而引起的故障由用户负责。
8、试运转中机组停机后间隔不到4分钟,不得再次手动开机。
六、检查功能
1、故障保护显示
如机组在不正常的情况下运行,控制板、线控器上都显示故障保护代码,并且线控器上的指示灯会以5Hz的频率闪烁,其显示代码如下表:

水冷螺杆、离心主机安装调试
1、在各独立的系统全部调试完毕的基础上,开启制冷机组,对机组进行调试。
2、制冷设备、空调器的试运转应符合设备技术文件和《制冷设备、空气分离设备安装工程施工及验收规范》GB50274-2010的有关规定,正常运转8小时以上无异常。
3、其他严格遵循主机设备安装使用手册的要求进行规范调试。
冷冻(却)水系统调试:
1、冷冻(却)水系统调试应在系统试压、清洗、排污合格后进行。
2、开启冷冻循环水泵及冷却塔、冷却水泵试运转2h以上。
3、各类水泵叶轮旋转方向应正确、运转平稳、无异常振动和声响,紧固连接部件无松动。水泵连续运转2h后,滑动轴承外壳不得超过70℃,滚动轴承不得不得超过75℃。
4、检查水系统管道排空情况,并通过末端设备上的排气阀对设备进行排空。
5、系统水流量必须严格按照设计要求,调整到许可的偏差范围内,避免大流量、小温差,使各回路达到水力均衡。(详见水系统流量调节)
6、在设计图纸中标明各分支回路、末端设备的水流量,有条件应在各分支回路及风柜等大型末端设备上设置检测和流量调节用的平衡阀。
7、认证记录整顿各回路的调整参数及水泵等设备的运行参数,为以后的运行维保、改造的原始参数。
制冷系统的综合调试
1、测定、调整各房间的送风量、温度
2、测定、调整各末端的水流量(详见水系统流量调节)
3、测定、调整冷冻(却)水系统水流量(详见水系统流量调节)
冷水机组维护保养
一、日常检查
1、为确保机组长期可靠地运转,机组调试应由设备厂家专业人员或中具有一定空调知识人员在设备厂家专业人员指导下进行,日常的操作、维护也必须由经过专业培训的空调人员来进行。
2、机组应定期按照调试试运转阶段的相关参数的相同项目进行日常检查,同时须特别注意以下项目:
1)根据说明书要求对机组进行定期维护,以保证机组运行状况良好。
2)不可用手接触冷媒排气部件,以防被烫伤。
3)不要把接保护装置的线路短接,否则可能引起事故。
4)如不幸发生火灾,应立即将主电源关闭并用灭火器扑灭。
5)机组不可在易燃气体(油漆、涂料、汽油等)附近操作,以防止火灾或爆炸。
二、主要部件维护
1、在运行过程中应密切注意系统的排气、吸气压力,如发现异常及时找出原因,排除故障。
2、定期检查电气接线有无松动,接触点氧化、外物等引起接触不良,如有须及时处理。经常留意工作电压、电流和相位平衡。
3、及时检查电气器件的可靠性,应对失效及不可靠的器件及时更换。
4、控制和保护设备,在现场切勿随意调节设定点。
三、除垢
设备长期运行后,水侧换热器传热表面会沉积氧化钙或其它矿物质,这些矿物质在传热表面结垢较多时,会影响传热性能而导致电能消耗增加、排气压力过高(或吸气压力过低)。因此须定期用清洁药剂对水系统管路和水侧换热器进行清洗除垢。
1、清洁水侧换热器须由专业人士进行,清洁药剂可采用甲酸、柠檬酸、醋酸等有机酸清洗。
2、清洁药剂绝不能用含氯酸或氟化物的清洁药剂,因水侧换热器的材料是不锈钢,容易被其腐蚀,导致冷媒泄漏。
3、在使用清洁药剂后,用干净水清洁水管以及热交换器,进行水处理以防水系统被腐蚀或清洁后水垢的再吸附。
4、在使用清洁药剂的情况下,根据污垢沉积情况调节清洁药剂的浓度、清洁时间和温度。
5、在完成用酸洗清洁后,需对废液进行中和处理,处理后的废液需联系废液处理公司对废液进行处理。
6、清洁药剂和中和药剂对眼睛、皮肤、鼻粘膜等有腐蚀作用,因此在清洁工作中必须使用保护装置(如护镜,保护手套,保护鞋,保护面具等)以防吸入或接触这些药剂。
四、系统防冻
1、当冬季关机时,应清洗机组内外表面,并吹干,为了防尘,对机组要进行覆盖,打开放水阀,放净水侧换热器及水管内的存水,以防发生冻结事故,最好在水管内注入防冻剂。
2、在较低环境温度下停机备用时,若机组放在室外温度低于0℃的环境中应将水侧换热器中的水排尽。
3、在运行时如果冷冻水水流开关和防冻温度传感器失效时将可能导致水管冻结现象,因此水流开关必须按照接线原理图接线。
4、在给机组充注制冷剂或为了维修而放掉制冷剂时,有可能冻裂水侧换热器。无论何时只要容器中制冷剂的压力在0.4MPa以下,就有可能发生管路结冰,为此,一定要使换热器中的水保持流动或将水彻底放干净。
五、停机初次启动
任何长时间停机后,机组再次启动时须作以下准备:
1、彻底检查和清理机组
2、清洁水管路系统。
3、检查水泵、调节阀及水管系统的其它设备。
4、检查所有电线连接处是否紧固。
六、零部件更换
更换部件应使用本公司的原厂配件,切勿随便更换任何不相同的零部件。零部件的更换应严格按照主机设备安装使用手册和相关技术规范要求进行。
水系统流量调节:
空调负荷的分布,随季节温度和日气温的变化极不均衡,在空调季节一般设计负荷约占全年总运行时间的6~8%左右,详见下表。因此根据负荷变化情况对水系统流量进行调节具有具有显著的节能效益和经济效益。
空调负荷全年分布(引自美国制冷协会ARI550/590-98标准)

注:《公共建筑节能设计标准》GB50189-2015(供参考),IPLV部分负荷性能系数如下:

在空调水系统中,主机或末端设备的负荷改变与水流量的变化并非线性比例关系,详见下表,水系统的调节必须优先考虑系统的动态平衡和稳定性。

系统水流量必须严格按照设计要求,调整到许可的偏差范围内,避免大流量、小温差,使各回路达到水力均衡。调试时应在设计图纸中标明各分支回路、末端设备的水流量,应在各分支回路及风柜等大型末端设备上设置检测和流量调节用的平衡阀。记录整顿各回路的调整参数及水泵等设备的运行参数,作为以后的运行维保、改造的原始参数。
空调水系统机房冷水机组一般采取定流量调节方式,出于节约运行电能的目的,越来越多采取变流量方式。空调系统变流量方式主要有两种:
1、冷源主动变流量方式(或称冷量控制变流量):根据室外温度和负荷变化,判断制冷量需求,确定投入运行机组的台数或机组负荷开启比例,控制循环泵的转速或台数,实现变流量运行。其流量控制精确度低。
2、用户主动变流量方式(或称空调末端变流量):在计量收费的运行方式下,供冷负荷及循环水流量的变化取决于用户需求,系统末端总循环流量的变化决定于用户的变化。其流量控制精确度高。
水泵流量调节
在水系统空调中,空调循环水泵的能耗占到空调系统总能耗的15~20%左右,因此通过改变水泵的运行情况实现变流量运行,使水泵能耗能随流量的增减而增减,更具节能意义。水泵的运行情况受管路影响较大,在变流量系统系统中,供、回水环路之间必须设置旁通(压差)调节装置。水泵流量调节方式主要有以下几种:
1、节流调节
2、台数调节
3、变速调节(及水泵变频调节)
一、节流调节
1、节流调节其流量调节范围不大,只能在水泵效率允许区间进行调节,适用于单台水泵系统小范围调节,由于采用阀门调节,流量控制的精确度低。
2、所谓水泵节流调节就是改变水泵出口阀门开度,利用节流过程的损失减小流量,特点是单位流量功耗加大,扬程升高,效率下降。因此水泵自身节能效果不明显,流量减小使主机供回水温差加大,主机运行负荷百分比降低而达到节能目的。
3、采用节流调节时宜采用特性曲线相对较平坦的水泵,其流量调节区间较大。为避免水泵气蚀,节流调节阀不应设置在水泵回水端,应设置在水泵出水端。

二、台数调节
1、通过检测水系统压差、流量或主机供回水温差等参数的改变来控制水泵运行的台数,适用于多台并联运行的水泵系统。一般主要有两种控制方法:
1)压差控制调节
利用水泵并联后的总特性曲线,设定某个压力作为上限,另一个作为下限,各台水泵在设定的压差范围内运行。当末端侧流量改变时,压力随之变化,当压力超过设定的上限值时,开始减少水泵台数;反之增加水泵台数。
2)流量控制调节
在供水总管上设置流量计测得实际用水量,通过变送器将信号发送到台数控制器,台数控制器根据各水泵预设定的流量范围和变送器送来的信号进行比较。若实际用水量小于一台水泵的流量,则停止一台水泵,若水量继续减少则继续停泵;反之,则增加水泵运行。
2、采用台数调节的并联水泵宜采用特性曲线陡降型的水泵,水泵扬程最好一致,应尽可能选择同型号水泵。
3、采用台数调节时,应安排好水泵的启停能依次顺序进行,保持水泵的工作机会均等,同时设置一台备用泵是必要的。
4、台数减少时,流速会降低,水泵流量偏大,扬程降低,水泵容易过载烧毁水泵电机。当减至只有一台水泵工作,流量继续下降,应及时让旁通阀自动开启。

三、变速调节(即水泵变频调节)
一般取3—5个末端供回水压差信号为循环流量的控制信号,当全部压差信号都大于设定值时循环水泵降低转速,当任意一个压差小于设定值时,循环水泵增加转速。
水力平衡调节:
一、水力平衡调节概述
1、水力平衡调节主要目的是达到系统水力工况平衡,使水流量进行合理分配。在空调管网中,水是载冷(热)介质,水流量的合理分配是空调设备工况平衡的基础。一般在进行水力工况设计时,多采用假想各分支流量的情况下进行的,但实际上由于管材及最高流速的限制等参数影响,管网安装完成后,阻力系数不能达到设计理想状态。因此,实际水力工况不可避免出现与设计水力工况不一致,严重时会出现出现水力工况失衡,易形成近端流量过大,远端流量不足等失调现象。
2、空调管网都是闭路循环的管网,其水力工况是指系统各点的压力,各管段的流量、压差。由公式△P=SG2
△P——压差或称阻力损失
S——管段或系统的阻力系数
G——管段或系统的流量
可知,流量和压力是相关参数,流量和压力的调控互为手段和目的。减压手段是减少上游管路的流量;减少流量也是减少管路前点的压力或增加管路后点的压力。流量变化必然导致压力的变化;S值不变的系统,压差的变化必然起因于流量的改变。
近端资用压头大于末端设备需用压头必然导致流量过大,必须用阀门消耗富裕压头。(富裕压头=资用压头-需用压头)
二、水力不平衡常见影响
水力工况设计一般可以用水压图表示(见图一), 而实际运行时要达到水力平衡,必须由阀门平衡调 节而形成。用阀门调节水力工况的过程是建立合理水压图的过程,在设计合理的情况下,这两个水压图会重合较好。但在实际运行中常出现一些水力工况失衡现象:

1、水泵烧毁
1)由于运行水力工况是水泵的工作曲线与外*特网**性曲线交点形成的,对于外*特网**性曲线△P=SG2,由于并联的近端支路S值会小于设计值,导致总S值远小于设计值。
2)若循环水泵在选型时扬程选择过大,使水泵在小扬程大流量工况下运行,水泵轴功率加大、效率降低。严重时出现轴功率大于电机铭牌功率,电机超额定电流,导致烧电机事故发生。
2、水泵出力不足,导致远端末端设备过不去水
1)可能由于水泵扬程选择小于管网实际阻力值,导致水泵出力不足,导致远端末端设备水流量小。
2)可能由于管网近端支线阻力小、流量大,导致水泵实际扬程小于铭牌扬程,导致远端流量小,水泵工作点偏移在大流量、小扬程、低效率的工作点。
3、锅炉或供暖设备换热器阻力大,锅炉或换热器标称阻力都远小于实际阻力。
在冬季气候温和地区,冬季采用采暖的循环水量与夏季制冷循环水量差别很大,冬季总循环水泵不变,水量的加大必然导致锅炉或换热器的阻力加大。有数据表明当水流量增大40%,供暖设备设备阻力会增加一倍。
三、水力平衡调节
1、水力平衡调节
水力平衡调节就是用平衡阀增加近端阻力,使近端支路S值增大至设计值,总S值增大至设计值。使远近流量分配均匀合理,循环水泵在设计工况下运行,达到节约初运行成本,提高运行效率,增加经济效益。水力平衡调节主要利用各分支回路及风柜等大型末端设备上设置检测和流量调节用的平衡阀进行调节。

2、平衡阀安装位置对水力平衡调节的影响
1)末端阀门及各压力点(如图二示意):系统供水干管压力为P1,系统回水干管压力为P4,末端设备实际供水压力为P2,实际回水压力为P3。
2)当平衡阀安装在末端设备供水管时P3近似等于P4,P2压力线近乎平行P4;安装在末端设备回水管时P2近似等于P1,P3压力线近乎平行P1(如图三示意)。
3)平衡阀安装在设备供水端,供水压力P2可能低于回水压力P3,会导致运行倒空,因此平衡阀宜安装于末端设备回水端。
四、平衡阀的性能与用途
平衡阀应称为为水力工况平衡用阀。一切用于水力工况平衡的阀门如调节阀、减压阀、自力式流量控制阀、自力式压差控制阀都可归为平衡阀。
静态平衡阀:指手动调节阀或手动平衡阀。
动态平衡阀:指自力式流量控制阀和自力式压差控制阀。自力式流量控制阀也称作自力式流量控制器、自力式平衡阀。
1、手动平衡阀
1)手动平衡阀适用于冷源主动变流量系统,在冷源主动变流量系统中手动平衡阀能保证流量的一致等比变化。
2)手动平衡阀具有造价低,元件使用权用寿命长等优点,对支路不多的小型管网可方便进行水力工况平衡。
3)手动平衡阀的汽蚀振动:通常阀门在小开度情况下阀口的流速过高,在阀后会形成旺盛紊流的蜗旋区,蜗旋区核心压力很低,该处压力低于水温对应的饱和压力时水蒸汽的闪蒸。尤其采暖季节,会导致汽蚀产生严重噪音,阀门及管道振动剧烈,甚至破坏阀门或管道、管支架。为防止这种事故的发生应调节温度较低回水管上的阀门或将平衡阀安装在回水上。
2、自力式流量控制阀
1)自力式控制阀工作原理
孔板流量计——导阀——主阀原理。主阀前设置一个流量孔板,导阀感测、比较孔板前后压力差,如压力差大于设定压差,意味着流量超过设定流量,导阀控制主阀做关阀动作。如感测压差小于设定压差,则意味着流量小于设定流量,导阀控制主阀开阀动作。导阀上的设定压差可条,通过调大调小设定压差,可以变大变小设定流量。
2)自力式流量控制阀其流量可调范围很小,在保持流量精度的前提下,流量可调比不会超过2:1。阀门一般有最小工作压差的要求,一般产品要求最小工作压差20KPa,如果安装在最不利回路上,势必要求循环泵多增加2米水柱的工作扬程,所以应采取近端安装,远端不安的办法。
3)自力式流量控制阀的适用性
自力式流量控制阀在大型管网上应用可以使流量分配工作变得简单便捷。但对于变流量运行的管网不可采用自力式流量控制阀。在冷源主动变流量的情况下,近端回路维持流量不变,而远端回路流量会严重不足。在用户主动变流量的情况下,用户主动调小流量时,自力式流量控制阀会开大阀门,尽量维护原流量,直到全开失效为止。用户主动调大流量时,自力式流量控制阀会关小阀门,直到全闭失效为止。亦即只有自力式流量控制阀失效,用户主动的流量要求才能实现。

3、自力式压差控制阀
自力式自身压差控制阀为关闭状态时,若阀前、后的压差小于设定压差,则继续关闭;若阀前、后的压差大于设定压差,则阀门开启。为开启状态时,可自动调整开度,使阀前、后的压差基本恒定。
自力式自身压差控制阀可用于对冷热源的保护,与传统的电动控制保护相比,有控制可靠、价格低廉的优点。
1)自力式压差控制阀的应用意义
■自力式压差控制阀消耗系统的富裕压头。
■自力式压差控制阀起到隔绝末端间流量变化互相干扰作用。
■对于电动控制的自动控制系统,隔绝各并联支路间调节的干扰,避免自控系统的多余动作提高自控系统稳定性、可靠性。
■起到特殊工况的限流作用。在特殊工况下末端的需求会超出冷源的供冷能力,自力式压差控制阀会有效的限制近端流量使远端空调设备达到预定效果。
2、自力式压差控制阀选用参数
1)压差可调性
一般情况下设计上很难准确计算末端设备或支管阻力,而末端设备或支管阻力(在设计流量下)可能在0.01—0.03MPa间变化,因此自力式压差可调比至少应为1:3以上。
2)流量系数的最大值和最小值
最大流量系数是阀门全开的流量系数,应能保证最小富裕压头下达到设计流量;最小流量系数为阀门全关位的漏过流量系数,应能保证最大富裕压头下达到调节工况可能的最小流量值。这两参数对阀门的应用选型是至关重要的。
3)压差控制精度,应达到10%以保证流量精度达到5%。
3、自力式压差控制阀工作情况
1)当前状态为关闭。若阀前后压差△P小于设定压差△Ps,则继续关闭,这时就是一个关断阀。若△P大于△Ps,阀门开启;达到平衡状态时,进、出口压差△P近似回落到设定压差△Ps。
2)当前状态为开启。可自动调整开度,保持阀门前后的压差基本恒定。
4、自身压差控制阀在空调工程中的应用
对于空调系统中的冷水机组,如果冷冻水量太小,也可能导致蒸发排管局部结冰冻结,进而使机组受到破坏。

如图五所示,在旁通管路上,装设自力式自身压差控制阀。由于用户调节等原因使系统流量减小,压差控制阀前后的压差△P就会随之增大,当△P大于设定压差△Ps时,压差控制阀开启,增大通过冷热源的流量,保障机组安全运行。在压差控制阀为开启状态时,可始终保持阀前后的压差基本恒定。而通过阀的流量则与用户系统的流量呈相反的变化,即用户系统的流量减小,通过压差控制阀的流量就会增大;反之,用户系统的流量增大,则通过压差控制阀的流量减小。这样就可保证通过冷热源的流量不致有太大的变化,既保护了冷热源,又提高了机组运行的稳定性。
保护冷热源的传统方式是在旁通管路上装设电动压差控制阀。当系统流量减小,使电动阀前后压差大于设定压差时,电信号驱动电动阀开启,使冷热源机组维持必须的最小流量。但电动压差控制阀由于对电源和传递电信号的线路的依赖,因此可靠程度不如自力式压差控制阀。
常用参数:
一、水系统常用计算公式

二、常用材料规格型号
常用无缝钢管型号规格重量:Kg/m

常用镀锌钢管或焊接钢管型号规格重量:Kg/m

常用PP-R管型号规格管壁厚度:mm

三、冷凝水管管径选择
一般情况下,每1kW冷负荷每1h约产生0.4kg左右冷凝水;在潜热负荷较高的场合,每1kW冷负荷每1h约产生0.8kg冷凝水。通常根据末端的冷负荷,按下列数据选定冷凝水管的公称直径。

四、水管流速假定和水系统阻力损失
1、管内流速选择:

采暖:

集管1.0~1.5m/s(流量特别大时,流速可增加,但不可超过3.5m/s)。
水管流速除满足以上要求外,一般采用假定流速,按摩擦压力损失100~300Pa/m选择管道管径。

2、水系统阻力损失

五、水泵选择
1、暖通工种中常用水泵型号示意
1)单级单吸清水离心泵:IS 泵入口直径(mm)—泵出口直(mm)径—泵叶轮名义直径(mm)
2)管道泵:ISG 泵吸入、排出口直径(mm)—泵在管路安装长度(mm)
2、水泵的性能参数
1)流量
2)扬程
3)效率
4)转速
5)必须气蚀余量
6)功率
水泵的各性能参数之间既相互协调统一,又相互制约,如果要求某一性能较好则要牺牲另一方面的性能。对于闭式系统一般主要考虑流量、扬程和效率,对于开式系统必须重点考虑水泵安装位置和必须气蚀余量。
3、水泵工作特性

如图所示,离心水泵的扬程曲线一般有三种类型:
1)平坦型:流量变化很大时能保持基本恒定的扬程,其优点是泵在较大的流量范围内都能在高效率区间运行节能效果明显;不足之处是泵的功率要能满足在最大流量点运行时的需要,功率的富裕量大。适合单台水泵运行。
2)陡降型:流量变化很大时,扬程的变化相对较大,其优点是泵在较大的流量调节范围内,不易超功率运行;不足之处是泵的高效率区间窄,节能效果不明显。适合多台水泵并联运行。
3)驼峰型;当流量自零开始增加时,相应的扬程最初上升,达到最高值后`开始下降。这一类型的泵在一定的运行条件下可能出现不稳定工作,一般不用在空调系统中。
4、水泵选择注意事项
1)首先要满足最高运行工况的流量和扬程,在水泵的流量扬程能够足够满足使用要求的情况下,水泵的工作状态点是否处于高效率范围应作为重要选择参数。
2)泵的流量和扬程应有10~20%的富裕量。
3)当流量较大时,宜考虑多台并联运行,但并联台数不宜超过3台。
4)多台泵并联运行时,应尽可能选择同型号水泵。
5)选泵时必须考虑系统静压对泵体的作用。高层建筑水系统采用闭式循环时,系统的静压力大大超过系统克服沿程摩擦和局部阻力损失所需的压力,在选用水泵时应注明所承受的静压值,必要时由制造厂家做特殊处理。
5、水泵扬程计算
1)对闭式水系统:
∑△h=K(Hf+Hd+Hm)
Hf /Hd—水系统沿程阻力和局部阻力损失Pa;
Hm—设备阻力损失Pa;
K—系数,K=1.1 ~ 1.2。
Hd / Hf—值,小型住宅建筑在1~1.5之间;大型高层建筑在0.5~1之间。
2)冷冻水泵扬程估算方法(扬程在25~50m之间)
■冷水机组阻力:30~80kPa(3-8m),可以参考设备样本蒸发器水侧阻力参数
■管路阻力:
制冷机房内的除污器、集水器、分水器及管路等的阻力:50kPa(5m水柱);
输配侧管路比摩阻100~300 Pa/m,则沿程阻力=最不利回路管路总长×0.01~0.03米;
局部阻力为磨擦阻力的50~150%,则局部阻力=沿程阻力×0.5~1.5;
■空调未端装置阻力:10~50kPa(1-5m),可以参考设备样水侧阻力参数
■调节阀的阻力:40kPa(4m)
■水系统的阻力为以上1~4项的总和
■水泵扬程:取10~20%的安全系数。
3)冷却水泵扬程计算方法(扬程在20~40m之间)
冷却水塔扬程计算公式为
Hp=K(hf+hd+hm+hs+h0)
Hf /Hd―冷却水管路系统总的沿程阻力和局部阻力(参照冷冻水泵的方法);
hm―冷凝器阻力60~100kPa(6-10m)(可以参考厂家样本);
hs―冷却塔中水的提升高度(从冷却塔盛水池到喷嘴的高差);
h0―冷却塔喷嘴喷雾压力,约等于5m水柱
6、水泵流量计算
1)冷冻水量
冷冻水量应根据系统主机和末端设备配置情况选择,由于设备负荷改变与水流量的变化并非线性比例关系,所以流量应以制冷主机的冷冻水量来配制水泵。
2)冷却水量
G= Qc/Cw(tw1-tw2)
QC—冷却塔冷却热量,对压缩式制冷机取制冷负荷1.2倍左右,吸收式取2.5倍左右。
CW—水的比热(4.19kJ/kg.k)
tw1- tw2—冷却塔进出口温差,一般取5℃,在夏季湿度的地区取3~4℃
G—m3/h
K-系数,1.1~1.5,根据末端总流量选择。
Q—主机制冷量。
CW—水的比热(4.19kJ/kg.k)
tw1- tw2—冷却塔进出口温差,一般取5℃
G—m3/h
膨胀水箱选择
1、闭式水系统膨胀水量计算公式
Vp=α×Vc×Δt
α——水的膨胀系数,取0.0006;
Vc——系统水容量(L);
Δt——水的平均温差,冷水取15℃,热水取45℃。
估算时膨胀量按:冷水约0.1L/KW;热水约0.3L/KW。

电气开关和配线选择:
1、单相电动机电流计算公式
额定电流(A)=功率(KW)×1000/(220V×0.75)
单相电动机效率如未标明,一般按0.75选取
每KW产生额定电流约6.1A
最大电流(A)=功率(KW)×1000/(220V×0.56)
0.56为功率因子(取0.75)与电机效率(取0.75)积
每KW产生最大电流约8.11A电流
2、三相电动机电流计算公式
额定电流(A)=功率(KW)×1000/(1.73×380V×0.85)
三相电动机效率如未标明,一般按0.85选取
每KW产生额定电流1.8A电流每相
最大电流(A)=功率(KW)×1000/(1.73×380V×0.72)
0.72为功率因子(取0.85)与电机效率(取0.85)积
每KW最大产生约2.11A电流每相
3、电流确定
1)电气开关和配线的选择必须根据运行电流进行确定。
2)额定电流与最大电流差别较大,所以运行电流需根据设备的运行时间、使用工况综合确定。
3)风冷机组的外机应按照最大电流来选取。
4、电气开关选择
设备的手动电气开关或熔体的额定电流一般按照运行电流的1.5~2.5倍选择。
5、配线选择
1)空调系统设备应按照国家有关电气规范充分接地。
2)空调主机或室内机设备电源为220V,电源线必须采用3线,分别为火线、零线、接地线;电源为
380V,电源线必须采用3相5线制,分别为3根火线和零线、接地线,其中零线、接地线可为火
线线径的一半。
3)电源线端部的电压(电源变压器侧)和尾部电压(机组侧)的电压降必须小于2%,若长度无法缩
短,则电源线需加粗;相间的电压差不超过额定值的2%,且最高与最低相电流差值应小于额定值
的3%。
4)设备电源线配线简单公式:

注:以上公式和选型参数仅供参考,具体配电方案需根据敷设方式、电缆间间距和布管环境等实际情况综合考虑。
城市区域噪声标准和建筑物噪音要求:
1、城市区域环境噪声最高限值
等效声级LAeq dB

2、各类建筑物室内允许噪音

3、室内允许噪音(A声级值dB)

本文来源于互联网,暖通南社整顿编辑于2018年3月9日。由于篇幅较长,拆分为两篇。此为第二篇。(END)