现在随着农村发展越来越好,农村的房屋也是逐渐多样化,欧式、现代、托斯卡纳、美式等各种风格的别墅都有。但不管房子怎么设计,老人都一定要有一个大堂屋,觉得没有大堂屋的房子不是好房子。接下来就给大家推荐5套带大堂屋的图纸,总有一套适合你。
第1套:大堂屋+落地窗+舒适阳台,11×12米暖色调美宅,主体预算30万
占地尺寸:12.3m*11.5m
占地面积:123.6㎡
建筑面积:239.3㎡
总 高 度 :10.1m
建筑情况:共设4室 2厅 4卫 1厨 1堂屋 1起居室 1电脑房 1衣帽间 2阳台

这套别墅外观造型美观,素雅的奶白色与温暖的浅橙色打造的外观柔和而雅致,再搭配上秀丽简洁的立柱与原木色窗框,整栋别墅低调端庄中带着几分复古雅韵,非常符合农村的审美。

进门即是一个大堂屋,符合农村地区的建房习俗。南向还设立了大客厅和卧室,居住体验更好。二层北侧设立了一个起居室和电脑房,南向则是三个大卧室,方便家人居住。

第2套:弧形采光窗+大堂屋+多阳台,9×12米三层欧式美墅,主体预算50万
占地尺寸:12.4m*9.75m
占地面积:123㎡
建筑面积:346㎡
总 高 度 :11.5m
建筑情况:共设6室 2厅 5卫 1厨 1堂屋 1棋牌室 1储藏间 2起居室 1书房 2杂物间 3阳台 1露台

这是一套经典的欧式别墅,利用繁复优雅的欧式元素装饰的外观造型亮点十足,无论是浪漫精致的拱形窗还是结合阳台设计的时尚门斗,都将欧式建筑的优雅精致展现得淋漓尽致。

户型设计也非常好,进门处设立大堂屋,符合农村地区的建房习俗。所有卧室均设立在南侧,充分保障了居住体验。


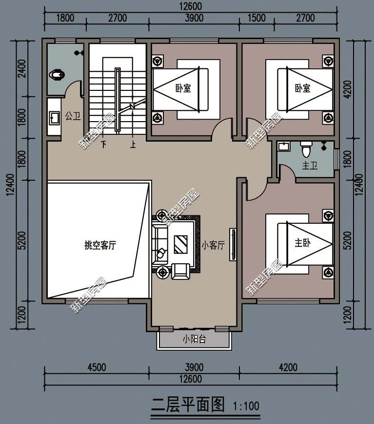
第3套:挑空客厅+大堂屋+双露台,12×12米新中式别墅,主体预算50万
占地尺寸:12.6m*12.4m
占地面积:150㎡
建筑面积:386㎡
总 高 度 :11.6m
建筑情况:共设6室 3厅 6卫 1厨 1堂屋 1健身房 2阳台 2露台

这套新中式别墅外观端庄大气,素雅的外观色彩与简约的线条设计,打造出水墨情调的典雅,显得整体颜值很高。

进门处设立一个大堂屋,跟大客厅相连,室内更显宽敞通透。南向再设立一个带套卫的老人房,方便家中老人起居。二层经典的三室一厅设计,公卫设计成干湿分离设计,使用体验更佳。三层设立健身房和双露台,丰富精神娱乐生活。


第4套:大堂屋+舒适外廊+大卧室,15×12米浪漫法式别墅,主体预算40万
占地尺寸:15.2m*12.5m
占地面积:169㎡
建筑面积:275㎡
总 高 度:10.1m
建筑情况:共设3室 1堂屋 2厅 1厨 3卫 1洗衣间 1檐廊 3阳台

这套别墅外观精致大气,采用对称设计结合拱形的窗棱,精美的铁艺围栏,尽显法式建筑的浪漫优雅。

入户为一个大堂屋,堂屋左右两边为餐厅客厅,巧妙地将空间区域划分开来。一层不设卧室,保证了公共区域的宽敞大气。二层三间卧室面积宽敞,且都带独立阳台,居住体验更好。

第5套:大堂屋+土灶厨房+大露台,10×20米新中式雅宅,主体预算50万
占地尺寸:20.8m*10m
占地面积:198㎡
建筑面积:351㎡
总 高 度:8.4m
建筑情况:共设6室 2厅 3卫 2厨 1堂屋 1杂物间 1绿化区 1书房 2阳台 1露台

这套新中式风格的二层雅宅,外观采用灰白两色的真石漆,结合清新的木色窗棂,营造出中式建筑独有的古朴典雅。

一层设立一个宽敞的大厅,将堂屋、餐厅、客厅等区域连接在一起,室内显得宽敞通透,空间利用率也更高。西侧设立两个厨房,一个现代化厨房,一个柴火灶,更适合现在的农村。

想看更多农村别墅图纸,可以关注头条号:新型房屋。