
Geoffrey von Oeyen为Malibu家庭设计了锯齿屋顶办公室
Geoffrey von Oeyen designs jagged-roof office addition for Malibu home
美国设计师Geoffrey von Oeyen在加利福尼亚州南部设计了家庭办公室,内设木质外墙和抽象的锯齿形屋顶。
American designer Geoffrey von Oeyen has created a home office in southern California that features wooden exterior walls and a highly abstracted sawtooth roof.

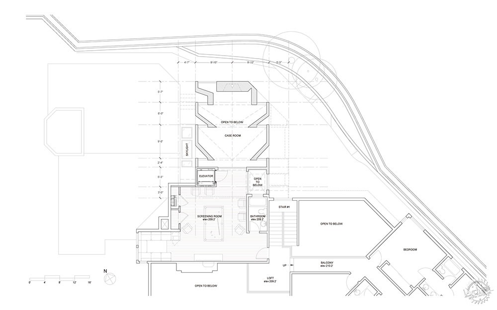
该项目名为Case Room,建筑师需要为目前居住在美国加州滨海地区马里布的一对律师夫妇设计一间住宅内的办公场所,这座两层建筑建造于上世纪80年代末。律师夫妇希望拥有办公场所,这里不仅可以满足他们的日常工作需求,还可以用于与客户的沟通,以及工作人员的办公,建筑扩建部分位于原有L型住宅的后侧庭院之中。
The project, called Case Room, entailed creating a home office for a pair of attorneys living in a two-storey, late-1980s dwelling in the beach city of Malibu. The couple wanted a satellite office where they could not only work privately, but also meet with clients and bring in staff. The extension was constructed at the rear of the L-shaped residence, in a spot formerly occupied by a patio.

设计团队并没有运用简单的直线体量,而是采取了雕塑策略。设计师Geoffrey von Oeyen在一份声明中表示,设计面积约650平方英尺(60平方米),由“一系列倾斜体量有秩序地堆叠而成”。Von Oeyen曾在弗兰克•盖里事务所工作,并且在洛杉矶拥有一家同名建筑设计事务所。
Rather than create a simple rectilinear volume, the design team took a sculptural approach. Encompassing 650 square feet (60 square metres), the addition was envisioned "as a series of blocks obliquely sliced and assembled in a descending sequence in section", said designer Geoffrey von Oeyen in a statement. Von Oeyen, who formerly worked for Frank Gehry, runs an eponymous design and architectural practice in Los Angeles.

建筑顶部有抽象的锯齿形屋顶,角形切口的形状和大小各不相同。设计师说:“屋顶山墙连续而对称,其高度逐渐向下,并且呼应内部的功能空间。”
The extension is topped with an abstracted sawtooth roof, with angular cuts that vary in shape and size. "The serial, symmetrical roof gables, which step down one foot at each progression from the maximum city-defined height limit, align in plan with the major programmatic divisions of the space," the designer said.

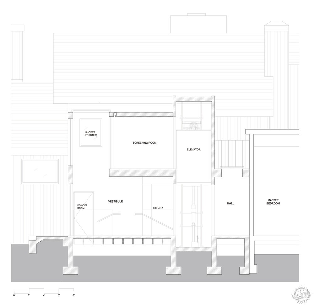
新建筑外立面为黑色雪松,模仿现有住宅的红木外立面。为了将办公室与住宅分隔开,Geoffrey von Oeyen在西面建造了一个带天窗的走廊,并在南面设计了入口前厅。建筑的另一面则面向后院。
The new building is wrapped in dark-toned cedar, which mimics the redwood cladding on the existing dwelling. To separate the office from the home, the team constructed a skylit hallway on the west side, and created an entry vestibule on the south. The other sides of the addition face the backyard.



在建筑内部,建筑师设置了单个房间,但被分为不同的功能区。一边是壁炉和休息区,律师可以在舒适的环境中与客户会面,角落里则放置有搁架和橱柜。
房间的另一侧设有书架、小厨房和一个可容纳8人的会议桌。上面是一个大窗户,从二楼的电梯和媒体室可以看到办公场景。在该项目中,建筑师特意添加了电梯,让残障人士也能很好地使用空间。
Inside, the extension contains a single room that is subtly divided into different programmatic areas. Occupying one side is a fireplace and sitting area, where the lawyers can meet with clients in a cosy setting. The sitting nook is surrounded by shelving and cabinetry.
The other side of the room features shelves, a small kitchen area and a conference table that seats up to eight. Up above is a large window, which provides views into the office from an elevator landing and a media room on the second floor. The elevator, which was not required by the city, enables visitors with limited mobility to access the newly renovated media room.


设计团队还为办公室设计了户外区域,使用者在这类可以看到丘陵景观。“为了白天和晚上的活动,我们增加了放置有长椅、壁炉、喷泉和户外厨房的室外露台。” Geoffrey von Oeyen说。
办公室内采用金色的木材、白色的墙壁和石板瓷砖地板。大面积窗户和木框玻璃门让通高的空间充满自然光线。
The team also created an outdoor zone for the office that overlooks the hilly landscape. "For daytime and evening events, a landscaped exterior patio with built-in benches, a fireplace, a fountain and an outdoor kitchen were added," the studio said.
The office is fitted with blonde wood, white walls and slate tile flooring. Numerous windows and wood-framed glass doors flood the double-height space with natural light.


建筑师说:“全天反射的日光在折叠式天花板相互反射,为工作空间带来柔和的自然采光。”
“面向庭院的玻璃门,位于Case Room东侧,通过电子系统调节玻璃色调,在需要隐私时玻璃可以切换为不透明状态。”
"The interplay of reflected daylight on the folding ceiling surfaces throughout the day provides a gently modulating, diffused top lighting for contemplative work," the architect said.
"The glass doors facing the patio, on the east side of the Case Room, are electrochromatic and can be switched opaque when privacy is required."

随着21世纪工作模式的转变,家庭办公室和工作室变得越来越普遍。其他类似作品还有Matt Fajkus Architecture设计的一间办公室,建筑师将这间办公室与位于奥斯汀的中世纪住宅结合在一起,除此之外还有由Modal Design事务所为威尼斯海滩住宅扩建的视频工作室。
摄影:Kyle Monk
As work patterns have shifted in the 21st century, home offices and studios have become increasingly common. Others include a light-filled office by Matt Fajkus Architecture that was added to a mid-century dwelling in Austin, and an angular video studio by Modal Design that was added to a Venice Beach residence.
Photography is by Kyle Monk.






由专筑网缕夕,李韧编译
【专筑网版权与免责声明】:本网站注明“来源:专筑网”的所有内容版权属专筑网所有,如需转载,请注明出处