
同学们,大家好!
今天继续《零基础学清单》系列的第四讲——挖基坑土方。
如果你的资料库里还没有《工程量清单计价规范》(GB50500-2013),可以在公众号里回复「13清单」,领取清单pdf版文件。

挖基坑土方是指:底面积≤150㎡,且底长≤3倍底宽的土方项目。
它的的工程量清单项目在规范的第6页,如下图。

一、挖沟槽、基坑、一般土方的划分判断
判断方法如下:
沟槽:底宽≤7m,底长>3 倍底宽;
基坑:底长≤3 倍底宽、底面积≤150㎡;
一般土方:超出上述范围则为一般土方。
工程上一般把所有的土方工程均叫挖基坑,而造价预算是不同的,一个合格预算员对于工程项目的划分理解是至关重要的,决定了能否准确计算工程量和合理计价的依据。所以一定要重点记忆,判断挖基坑土方是方法:①底长≤3 倍底宽,②底面积≤150㎡。

二、挖基坑土方的规则与计算
清单工程量计算规则:
房屋建筑按设计图示尺寸以基础垫层底面积乘以挖土深度计算。
实际应用中,计算又分两种计算方法,土方放坡与不放坡的情况,下面是分别给出它们的计算公式,也和挖一般土方计算方法通用。
两种形式:放坡与不放坡。

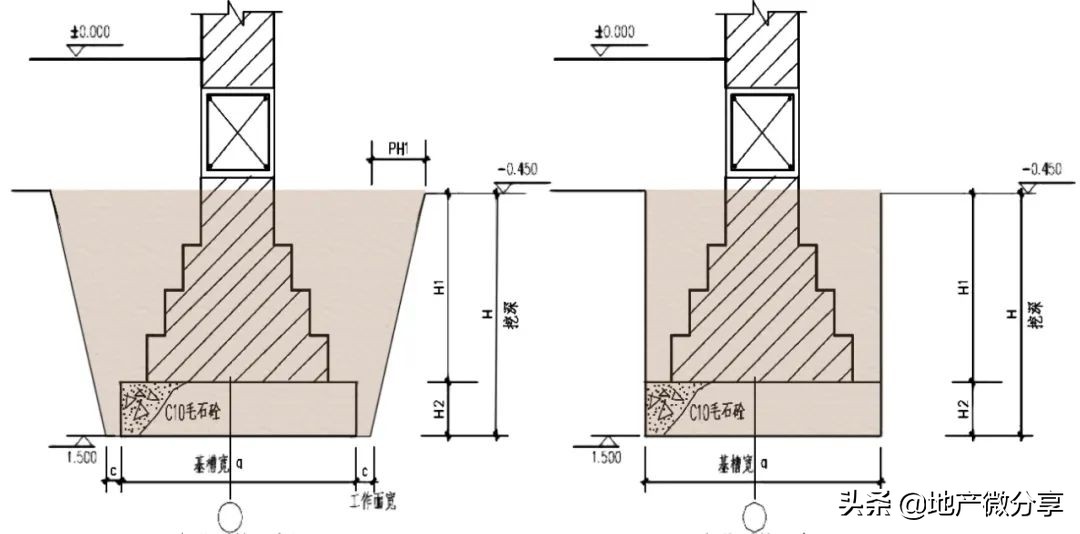
计算之前还有个名词需要解释。工作面:是根据基础施工的需要,向周边放出一定范围的操作面,作为工人施工时的操作空间,如下图,C为工作面

工作面宽度的取值根据基础的不同也不相同,可以参考清单给A.1-4表格,

1.不放坡土方计算
先看比较简单的不放坡的计算公式。

V=(a+2c)*(b+2c)*H
V——挖基坑土方体积
a——垫层长
b——垫层宽
c——工作面宽
H——挖土深度
2.放坡土方计算
放坡时会涉及到坡度大小,是由放坡系数决定的。放坡系数就是深度和坡宽的比值,土壁边坡坡度以基高h与底宽b之比表示。
边坡坡度=1: m=h:b,如下图,m为放坡系数。

举个例子,放坡系数是1,那么h:b=1:1,就是挖1m深,放坡的宽度就是1m宽,其实就是45°角放坡。
土方放坡系数的确定可以参考考清单给A.1-3表格,例如挖掘机在坑内挖,挖的是一类土且深度达到了1.2m,就需要考虑计算放坡,计算采用的放坡系数就是0.33。

a底面积规则挖土方计算公式
知道放坡系数后可以采用以下公式计算,公式适用于底面是矩形的情况。

V——挖基坑土方体积
a——垫层长
b——垫层宽
c——工作面宽
K——放坡系数
h——挖土深度
b底面积不规则挖土方计算公式
如果开挖的形状不规则,可以用以下公式计算,当然规则的同样适用,所采用顶面面积,顶面面积均是包含开挖工作面的。

V——挖基坑土方体积
S上——上部面积
S下——坑底部面积
h——挖土深度
三 、清单编制和组价
根据(建设工程工程量清单计价规范》,招标人对土方开挖清单项的项目特征描述一般有挖土壤类别,挖土深度和运距。
土壤类别按清单中相关要求确定,如土壤类别不能准确划分时,招标人可注明为综合,由投标人根据地勘报告决定报价。
四、案例
下面用清单宣贯辅导中一个案例来讲计算基坑土方工程量与工程量清单编制。案例如下,相关的信息如下。

基础图纸如下,为条形基础与独立基础,需要计算的独立基础的挖基坑土方在图纸中间。

图纸3-3剖面如下

1.挖基坑土方工程量的计算
工作面为300mm,放坡系数是0.33,图纸已经给出,没有给出也可依据清单计价规范的表格找到。根据基坑土方的公式V=1/3h(S上+√S上*S下+S下),需要计算基坑土方体积V,还需要以下数据:
挖土深度h
=-0.45-(-2.00)=1.55m
基坑底面面积S下
=(2.1+0.1*2+0.3*2)²=2.9²=8.41㎡
基坑底面面积S上
=(2.1+0.1*2+0.3*2+0.33*1.55*2)=3.92²=15.37㎡
基坑土方体积V
V=1/3h(S上+√S上*S下+S下)
=1/3*1.55*(2.9²+2.9*3.92+3.92²)
=18.16m³
挖基坑土方体积是18.16m³,结果是保留两位小数,注意t为单位时需要保留3位小数。
2.清单计价表编制

今天的内容就到这里,相信通过这几期的土方讲解与案例计算,你已经能分清不同土方的区别与计算还有清单编制,而由于定额编的规则方法和计算各省都有不同的要求,不再过多讲解,下期开始清单的土方回填的讲解。