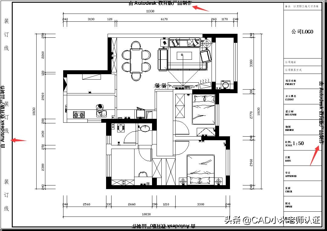
相信每个人在使用CAD的过程中,总会碰到这样的情况:图纸打印出来边缘出现“由Autodesk教育版产品制作”的字样,但是作为一名合格的CAD使用者,打印出来的图纸出现教育版戳记,那就显得太不专业了。

那应该如何去除呢?
方法1:通过另存为的方式去除
适用版本:正常情况下是所有版本CAD都可以的。
操作步骤:
1、首先打开这个带有教育版戳记的文件,点击继续当前操作。

2、然后Ctrl+Shift+S另存为dxf格式的文件。

3、打开刚刚另存的DXF文件,然后Ctrl+Shift+S另存为DWG文件。

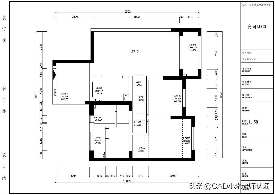
打开刚刚另存的DWG文件,打印的时候已经没有出现教育版戳记啦。
偶发问题:有时候另存的DXF打不开,或者打开后软件直接崩溃。
方法2:去教育打印戳记插件
操作步骤:
1、*载下**插件到电脑。
2、打开带有教育版戳记的CAD文件。
3、在命令行输入快捷键AP(或菜单栏--工具--加载程序)。
4、找到插件的位置(对应版本的arx文件)。
5、点击加载,显示已成功加载。
6、然后保存即可,戳记就被去除啦。


不同版本的CAD,它对应的加载文件也不一样哦。
方法3:永久去除教育版破解补丁
AutoCAD永久去教育版破解补丁(2002~2020),该破解补丁使用非常简单,打开之后直接应用即可,去除功能很强大!
操作步骤:
1、*载下**补丁之后,右键以管理员身份去运行。

2、点击应用;

3、出现此窗口,点击【否】。

4、出现文件补丁已成功完成,退出即可。

5、再次打开CAD图纸,打印即没有教育版戳记。✌ 实在太棒啦!

免费获取去教育版插件方式:
1、关注我,转发此文章。
2、私信我:去教育插件,你就能收入囊中啦。
❤你点的每个赞,我都认真当成了喜欢。